407-990-2746
Menu

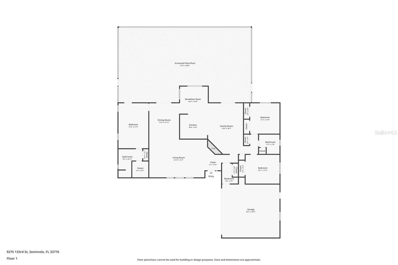
9275 133rd Street, Seminole, FL

NEXT
PREV
$739,000

($369/sqft)

List Status: Active
9275 133rd Street
Seminole, FL 33776


3 beds
2 baths
2004 living sqft
Top Features
  • Subdivision: Oakhurst Trails
  • Built in  1987
  • Single Family Residence
Description
WELCOME to this beautifully maintained property located in a wonderful, sought-after neighborhood near top-rated schools, shopping, dining, and beaches. Designed for both comfort and entertaining, this home offers spacious, light-filled living areas and a thoughtfully designed floor plan. Cathedral ceilings enhance the beauty of the living, dining, kitchen and family room areas. The kitchen boasts ample cabinetry and counter space, seamlessly flowing into the dining and living areas with a large fireplace; oversized bedrooms provide comfort and privacy, while the primary suite offers a relaxing retreat with an en-suite bath and walk in closet. There are ample closets throughout the home. Step outside to your private backyard oasis featuring a sparkling saltwater pool with jacuzzi, bar, grilling area and dining, perfect for year-round enjoyment. The pool offers low-maintenance living, gentler water on skin and eyes, and reduced chemical use, making it ideal for families and entertaining. There is an oversized driveway and home is located in a subdivision with only one way in and out. No expense has been spared in this home, lovingly cared for and maintained. Home is completely wired for multiple tvs and sound systems, including pool area. It is located in unincorporated Pinellas and is in a no flood zone. This home is move in ready and a must-see! This home combines lifestyle, location, and comfort! Schedule your appointment today.
Property Details
Additional Information
Additional Parcels YN
false
Alternate Key Folio Num
30-15-20-62818-000-0040
Appliances
Bar Fridge, Dishwasher, Disposal, Dryer, Electric Water Heater, Ice Maker, Microwave, Range, Refrigerator, Washer, Water Softener
Architectural Style
Florida
Association YN
false
Attached Garage YN
true
Available For Lease YN
1
Bathrooms Total Integer
2
Building Area Source
Public Records
Building Area Total
2682
Building Area Total Srch SqM
249.17
Building Area Units
Square Feet
Calculated List Price By Calculated SqFt
368.76
Carport YN
false
Community Features
Street Lights
Construction Materials
Block, Brick
Cooling
Central Air
Country
US
Cumulative Days On Market
59
Current Price
739000.00
Direction Faces
West
Elementary School
Bauder Elementary-PN
Exterior Features
Private Mailbox, Rain Gutters, Sidewalk, Sliding Doors, Sprinkler Metered
Fencing
Fenced, Vinyl
Fireplace Features
Family Room, Wood Burning
Fireplace YN
true
Flood Zone Code
X
Flood Zone Date
2021-08-24
Flood Zone Panel
12103C0177H
Flooring
Carpet, Ceramic Tile
Foundation Details
Block
Furnished
Unfurnished
Garage Spaces
2
Garage YN
true
Heating
Central, Electric
High School
Seminole High-PN
Homestead YN
1
Interior Features
Cathedral Ceiling(s), Ceiling Fans(s), Eat-in Kitchen, Kitchen/Family Room Combo, Living Room/Dining Room Combo, Primary Bedroom Main Floor, Solid Surface Counters, Solid Wood Cabinets, Split Bedroom, Stone Counters, Vaulted Ceiling(s), Walk-In Closet(s), Window Treatments
Internet Address Display YN
true
Internet Automated Valuation Display YN
false
Internet Consumer Comment YN
false
Internet Entire Listing Display YN
true
Laundry Features
Electric Dryer Hookup, In Garage, Washer Hookup
Levels
One
List AOR
Suncoast Tampa
Living Area Meters
186.18
Living Area Source
Public Records
Living Area Units
Square Feet
Lot Features
Landscaped, Sidewalk, Paved
Lot Size Acres
0.2
Lot Size Dimensions
78x110
Lot Size Square Feet
8537
Lot Size Square Meters
793
Middle Or Junior School
Seminole Middle-PN
Minimum Lease
No Minimum
Modification Timestamp
2026-04-18T19:06:21.281Z
New Construction YN
false
Occupant Type
Owner
Ownership
Fee Simple
Parcel Number
20-30-15-62818-000-0040
Patio And Porch Features
Covered, Patio, Rear Porch, Screened
Pool Private YN
true
Previous List Price
749900
Price Change Timestamp
2026-04-01T13:12:27.000Z
Property Condition
Completed
Public Survey Range
15
Public Survey Section
20
RATIO Current Price By Calculated SqFt
368.76
Realtor Info
As-Is, Short Term Rental Allowed, Sign
Road Responsibility
Public Maintained Road
Road Surface Type
Paved
Roof
Shingle
Room Count
4
Security Features
Security System
Senior Community YN
false
Sewer
Public Sewer
Showing Requirements
Appointment Only, Call Before Showing, Call Listing Agent, No Lockbox
Status Change Timestamp
2026-02-18T16:43:48.000Z
Tax Annual Amount
2603
Tax Block
4
Tax Book Number
96-56
Tax Legal Description
OAKHURST TRAILS LOT 4
Tax Lot
4
Tax Year
2025
Total Acreage
0 to less than 1/4
Total Annual Fees
0.00
Total Monthly Fees
0.00
Township
30
Universal Property Id
US-12103-N-203015628180000040-R-N
Unparsed Address
9275 133RD ST
Utilities
BB/HS Internet Available, Cable Available, Cable Connected, Electricity Available, Electricity Connected, Phone Available, Public, Sewer Connected, Sprinkler Well, Underground Utilities, Water Available, Water Connected
Vegetation
Mature Landscaping, Trees/Landscaped
Water Source
Public
Waterfront YN
false
Window Features
Blinds, Shades, Shutters, Storm Window(s), Window Treatments
Zoning
R-2
Neighborhood Map
Popup

Property Photos
Listing Photo
Listing Photo
Listing Photo
Listing Photo
Listing Photo
Listing Photo
Listing Photo
Listing Photo
Listing Photo
Listing Photo
Listing Photo
Listing Photo
Listing Photo
Listing Photo
Listing Photo
Listing Photo
Listing Photo
Listing Photo
Listing Photo
Listing Photo
Listing Photo
Listing Photo
Listing Photo
Listing Photo
Listing Photo
Listing Photo
Listing Photo
Listing Photo
Listing Photo
Listing Photo
Listing Photo
Listing Photo
Listing Photo
Listing Photo
Listing Photo
Listing Photo
Listing Photo
Listing Photo
Listing Photo
Listing Photo
Listing Photo
Listing Photo
Listing Photo
Listing Photo
Listing Photo
Listing Photo
Listing Photo
Listing Photo
Listing Photo
Listing Photo
Listing Photo
Listing Photo
Listing Photo
Listing Photo
Listing Photo
Listing Photo
Listing Photo
Listing Photo
Listing Photo
Listing Photo
Listing Photo
Listing Photo
Listing Photo
Listing Photo
Listing Photo
Listing Photo
Listing Photo
Listing Photo
Listing Photo
Listing Photo
Listing Photo
Listing Photo
Listing Photo
Listing Photo
Listing Photo
Listing Photo
Listing Photo
Listing Photo
Listing Photo
Listing Photo
Listing Photo
Listing Photo
Listing Photo
Listing Photo
Listing Photo
Listing Photo
Listing Photo
Listing Photo
Listing Photo
Listing Photo
Listing Photo
Listing Photo
Listing Photo
Listing Photo
Listing Photo
Listing Photo
Listing Photo
Listing Photo
Listing Photo
Listing Photo
Listing Photo
Listing Photo
Listing Photo
Listing Photo
Listing Photo
Listing Photo
Listing Photo
Listing Photo
Listing Photo
Listing Photo
Listing Photo
Listing Photo
Listing Photo
Listing Photo

MLS #MFRTB8477708 Listing courtesy of Century 21 Beggins provided by Stellar MLS.

Similar Listings

$675,000
9913 Key Haven Road
Seminole
3BR/2BA
| Active
$679,000
9548 123rd N Way
Seminole
3BR/2BA
| Active
$679,900
7265 122nd Way
Seminole
3BR/2BA
| Active
$689,000
11738 96th Place
Seminole
3BR/2BA
| Active



All listing information is deemed reliable but not guaranteed and should be independently verified through personal inspection by appropriate professionals. Listings displayed on this website may be subject to prior sale or removal from sale; availability of any listing should always be independent verified. Listing information is provided for consumer personal, non-commercial use, solely to identify potential properties for potential purchase; all other use is strictly prohibited and may violate relevant federal and state law. The source of the listing data is as follows: Stellar MLS (updated 4/27/26 3:50 PM) |

Listing Search



Translate Tool

Featured Listings
Flagler Beach Real Estate
$969,900
4 BED
3 BATH
MOVE-IN READY! This stunning country estate is located in the gated community of Flagler Polo Club, offering the perfect... Read More
Tampa Real Estate
$950,000
3 BED
3 BATH
One or more photo(s) has been virtually staged. Under Construction. Welcome to the pinnacle of urban luxury living in on... Read More
Plant City Real Estate
$890,000
3 BED
3 BATH
Welcome to your private slice of Florida living in Plant City- where modern luxury meets space, comfort and resort style... Read More
Tampa Real Estate
$899,000
4 BED
2 BATH
Under contract-accepting backup offers. Rare Opportunity in beautiful Sunset Park! Seize this incredible chance to build... Read More
Osprey Real Estate
$1,289,000
3 BED
3 BATH
This beautifully remodeled waterfront condo in Osprey, Florida offers the perfect blend of luxury, comfort, and coastal ... Read More
Geneva Real Estate
$1,250,000
4 BED
3 BATH
Welcome to Seminole Woods and to the architecturally intriguing design of this Arthur Rutenberg built home on five woode... Read More
Orlando Real Estate
$999,900
4 BED
3 BATH
Under contract-accepting backup offers. One or more photo(s) has been virtually staged. Welcome to one of Hunters Creek'... Read More
Venice Real Estate
$1,425,000
3 BED
3 BATH
A newly constructed heated saltwater pool and spa, paired with a newly built 3.5-car hurricane-rated garage addition, se... Read More
Palm Harbor Real Estate
$989,000
3 BED
2 BATH
Welcome to this Modern Coastal waterfront home located in the highly desirable Baywood Village community of Palm Harbor.... Read More
Bradenton Real Estate
$1,100,000
3 BED
3 BATH
Set on a private lake with preserve and golf course views, this pristine, fully updated contemporary residence is locate... Read More
Contact Sandra Pardo

407-990-2746

Wendy Morris LLC

Licensed in the State of Florida
BK 3146762
16797 Broadwater Avenue
Winter Garden, Florida 34787

Your privacy is our utmost concern. We will never sell your personal information. Privacy Policy
©2026 sandrapardohomes.com - all rights reserved. | Site Map