407-990-2746
Menu

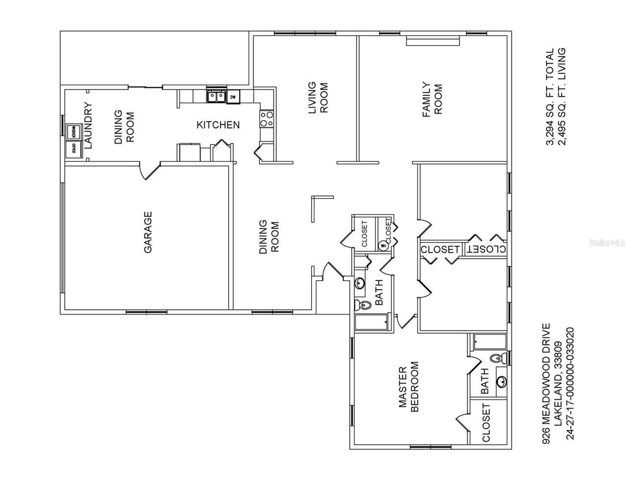
926 Meadowood Drive, Lakeland, FL

NEXT
PREV
$599,950

($240/sqft)

List Status: Pending
926 Meadowood Drive
Lakeland, FL 33809


3 beds
2 baths
2495 living sqft
Top Features
  • Subdivision: Meadowood Sub
  • Built in  1978
  • Single Family Residence
Description
Property Details
Additional Information
Additional Parcels YN
false
Additional Rooms
Breakfast Room Separate, Family Room, Formal Dining Room Separate, Formal Living Room Separate, Inside Utility
Alternate Key Folio Num
17-27-24-000000-033020
Amenities Additional Fees
Buyer/Buyer Agent to verify Deed Restrictions for community.
Appliances
Dishwasher, Electric Water Heater, Microwave, Range, Refrigerator
Association YN
false
Attached Garage YN
true
Bathrooms Total Integer
2
Building Area Source
Public Records
Building Area Total
3294
Building Area Total Srch SqM
306.02
Building Area Units
Square Feet
Calculated List Price By Calculated SqFt
240.46
Carport YN
false
Community Features
Deed Restrictions
Construction Materials
Block
Contract Status
Appraisal, Financing, Inspections
Cooling
Central Air
Country
US
Cumulative Days On Market
15
Current Price
599950.00
Direction Faces
South
Expected Closing Date
2026-03-09T00:00:00.000
Exterior Features
Other, Rain Gutters, Sliding Doors, Storage
Fencing
Chain Link
Fireplace Features
Decorative, Wood Burning
Fireplace YN
true
Flood Zone Code
X
Flood Zone Date
2016-12-22
Flood Zone Panel
12105C0170G
Flooring
Carpet, Luxury Vinyl, Tile
Foundation Details
Slab
Furnished
Unfurnished
Garage Dimensions
22x25
Garage Spaces
2
Garage YN
true
Heating
Central
Interior Features
Ceiling Fans(s), Chair Rail, Stone Counters, Walk-In Closet(s)
Internet Address Display YN
true
Internet Automated Valuation Display YN
true
Internet Consumer Comment YN
true
Internet Entire Listing Display YN
true
Laundry Features
Inside
Levels
One
List AOR
Lakeland
Living Area Meters
231.79
Living Area Source
Public Records
Living Area Units
Square Feet
Lot Features
In County, Pasture, Zoned for Horses
Lot Size Acres
2.13
Lot Size Dimensions
200x464
Lot Size Square Feet
92626
Lot Size Square Meters
8605
Modification Timestamp
2026-01-28T13:55:09.274Z
New Construction YN
false
Occupant Type
Vacant
Other Structures
Other, Shed(s), Storage, Workshop
Ownership
Fee Simple
Parcel Number
24-27-17-000000-033020
Patio And Porch Features
Deck, Other, Patio, Porch, Rear Porch
Pool Private YN
true
Postal Code Plus 4
0894
Public Remarks
Situated on over 2 fully fenced acres, this newly renovated property offers exceptional outdoor space, an in-ground pool with paver pool deck, and a massive 1, 260 sq ft detached garage with second floor and electric — a rare and valuable combination. Whether you’re seeking room to expand, entertain, or store vehicles and equipment, this property delivers unmatched flexibility and privacy. The backyard also features a rear patio perfectly positioned for a future addition or screened-in porch, along with a spacious back porch ideal for relaxing and outdoor gatherings. This property is also zoned for horses. Inside, the home has been thoughtfully updated with fresh paint throughout, plush new carpeting in the bedrooms, and beautifully updated bathrooms. The functional layout includes a formal dining room, living room, and a generous family room highlighted by a stunning floor-to-ceiling fireplace that serves as the heart of the home. The kitchen offers ample cabinet space and a charming breakfast nook, making it both practical and inviting. The large primary bedroom provides a peaceful retreat with its own ensuite bathroom and walk-in cedar-lined closet. Additional updates include a new electric water heater for added peace of mind and comfort. This property combines modern updates, exceptional outdoor amenities, and abundant space — an ideal setting for both everyday living and entertaining. USDA FINANCING AVAILABLE FOR ELIGIBLE BUYERS, WITH NO MONEY DOWN. CALL TODAY FOR MORE DETAILS.
Public Survey Range
24
Public Survey Section
17
Purchase Contract Date
2026-01-28
RATIO Current Price By Calculated SqFt
240.46
Realtor Info
As-Is, Floor Plan Available, No Sign, See Attachments
Road Surface Type
Asphalt
Roof
Metal
Room Count
3
Senior Community YN
false
Sewer
Septic Tank
Showing Requirements
Appointment Only, Combination Lock Box, See Remarks, ShowingTime
Status Change Timestamp
2026-01-28T13:54:08.000Z
Tax Annual Amount
5933
Tax Book Number
P-81
Tax Legal Description
E 200 FT OF W 630 FT OF N1/2 OF N1/2 OF S3/4 OF NW1/4 LESS S 30 FT FOR RD R/W BEING LOT 42 OF UNRE MEADOWOOD
Tax Lot
42
Tax Year
2025
Total Acreage
2 to less than 5
Total Annual Fees
0.00
Total Monthly Fees
0.00
Township
27
Universal Property Id
US-12105-N-242717000000033020-R-N
Unparsed Address
926 MEADOWOOD DR
Utilities
Electricity Connected
Vegetation
Mature Landscaping, Trees/Landscaped
Water Source
Well
Waterfront YN
false
Zoning
RC
Neighborhood Map
Popup

Property Photos
Listing Photo
Listing Photo
Listing Photo
Listing Photo
Listing Photo
Listing Photo
Listing Photo
Listing Photo
Listing Photo
Listing Photo
Listing Photo
Listing Photo
Listing Photo
Listing Photo
Listing Photo
Listing Photo
Listing Photo
Listing Photo
Listing Photo
Listing Photo
Listing Photo
Listing Photo
Listing Photo
Listing Photo
Listing Photo
Listing Photo
Listing Photo
Listing Photo
Listing Photo
Listing Photo
Listing Photo
Listing Photo
Listing Photo
Listing Photo
Listing Photo
Listing Photo
Listing Photo
Listing Photo
Listing Photo
Listing Photo
Listing Photo
Listing Photo
Listing Photo
Listing Photo
Listing Photo
Listing Photo
Listing Photo
Listing Photo
Listing Photo
Listing Photo
Listing Photo
Listing Photo
Listing Photo
Listing Photo
Listing Photo
Listing Photo
Listing Photo
Listing Photo
Listing Photo
Listing Photo
Listing Photo
Listing Photo
Listing Photo
Listing Photo
Listing Photo
Listing Photo
Listing Photo
Listing Photo
Listing Photo
Listing Photo
Listing Photo
Listing Photo
Listing Photo
Listing Photo
Listing Photo
Listing Photo
Listing Photo
Listing Photo
Listing Photo
Listing Photo
Listing Photo
Listing Photo
Listing Photo
Listing Photo

MLS #MFRL4958481 Listing courtesy of Porchlight Homes Llc provided by Stellar MLS.

Similar Listings

$544,900
425 E Belmar Street
Lakeland
3BR/2BA
| Active
$549,800
1301 Lanier Road
Lakeland
3BR/2BA
| Active
$550,000
4618 Deeson Road
Lakeland
3BR/2BA
| Active
$550,000
3431 Arrowwood Drive
Lakeland
3BR/2BA
| Active



All listing information is deemed reliable but not guaranteed and should be independently verified through personal inspection by appropriate professionals. Listings displayed on this website may be subject to prior sale or removal from sale; availability of any listing should always be independent verified. Listing information is provided for consumer personal, non-commercial use, solely to identify potential properties for potential purchase; all other use is strictly prohibited and may violate relevant federal and state law. The source of the listing data is as follows: Stellar MLS (updated 2/3/26 2:01 AM) |

Listing Search



Translate Tool

Featured Listings
Bradenton Real Estate
$850,000
3 BED
2 BATH
Lakewood Ranch Real Estate
$899,000
3 BED
2 BATH
St Petersburg Real Estate
$825,000
3 BED
3 BATH
Ormond Beach Real Estate
$1,500,000
4 BED
3 BATH
Reunion Real Estate
$1,299,999
4 BED
3 BATH
Altamonte Springs Real Estate
$1,109,990
4 BED
3 BATH
Land O Lakes Real Estate
$824,900
5 BED
3 BATH
Palm Coast Real Estate
$849,000
4 BED
3 BATH
Deltona Real Estate
$880,000
3 BED
2 BATH
Treasure Island Real Estate
$900,000
2 BED
2 BATH
Contact Sandra Pardo

407-990-2746

Wendy Morris LLC

Licensed in the State of Florida
BK 3146762
16797 Broadwater Avenue
Winter Garden, Florida 34787

Your privacy is our utmost concern. We will never sell your personal information. Privacy Policy
©2026 sandrapardohomes.com - all rights reserved. | Site Map