407-990-2746
Menu

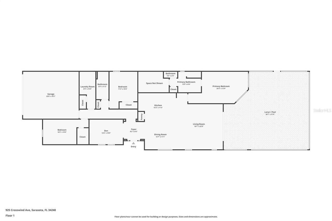
925 Crosswind Avenue, Sarasota, FL

NEXT
PREV
$994,900

($461/sqft)

List Status: Pending
925 Crosswind Avenue
Sarasota, FL 34240


3 beds
2 baths
2158 living sqft
Top Features
  • Frontage: Lake Front
  • View: Water
  • Subdivision: Lakehouse Cove/waterside Ph 4
  • Built in  2022
  • Single Family Residence
Description
Under contract-accepting backup offers. Set along the tranquil shores of Lake Ibis, this exceptional lakefront residence showcases spectacular, long, uninterrupted water views and breathtaking sunset vistas that define true Florida living. Built in 2022 by Homes by Towne, the Skiff floor plan offers thoughtful design, quality construction, and an enviable waterfront setting. Spanning 2,158 square feet, the home features three bedrooms, two full baths, a dedicated office/den, and an open-concept layout designed to maximize natural light while framing the stunning lake views from multiple living areas. The kitchen is both stylish and functional, featuring quartz countertops, custom cabinetry with soft-close drawers and pull-out shelving, under-cabinet lighting, stylish backsplash, and a layout ideal for everyday living or elaborate entertaining. The great room opens seamlessly to an extended lanai with a full-view screen enclosure, preserving clear sightlines across the water and front-row views of vibrant sunsets. The outdoor living area is a true highlight, offering a pool, separate standalone spa, generous covered seating area, an ideal setting for morning coffee overlooking the lake or evening gatherings as the sun sets aglow with color over the water. The owner’s suite is positioned to capture serene water views and glowing sunsets, creating a peaceful retreat complemented by a spa-inspired bath with dual quartz vanities, and upgraded finishes. Two additional bedrooms and full bath on the other side of the home provide private flexibility for guests or family, while a light-filled office offers a quiet space for work or hobbies. Additional features include a large laundry room and a two-car garage with epoxy flooring and storage. Residents of LakeHouse Cove enjoy resort-style amenities, including a pool and spa, state of the art fitness center, clubhouse with catering kitchen, boathouse with kayak launches, pickleball courts, fire pits, dog parks, and a full cale
Property Details
Additional Information
Additional Lease Restrictions
Application to HOA. Owner to provide $2K deposit to HOA. See HOA Documents for more information.
Additional Parcels YN
false
Additional Rooms
Den/Library/Office
Alternate Key Folio Num
0198030337
Appliances
Dishwasher, Disposal, Dryer, Gas Water Heater, Microwave, Range, Refrigerator, Tankless Water Heater, Washer
Approval Process
SEE HOA DOCUMENTS
Architectural Style
Coastal
Association Amenities
Clubhouse, Fitness Center, Maintenance, Pickleball Court(s), Playground, Pool, Spa/Hot Tub, Trail(s)
Association Approval Required YN
1
Association Email
melissa.cramer@realmanage.com
Association Fee
1192
Association Fee Frequency
Quarterly
Association Fee Includes
Pool, Maintenance Grounds, Recreational Facilities
Association Fee Requirement
Required
Association URL
www.lakehousecovehoa.com
Association YN
true
Attached Garage YN
true
Available For Lease YN
1
Bathrooms Total Integer
2
Builder Model
Skiff
Builder Name
Homes by Towne
Building Area Source
Public Records
Building Area Total
2840
Building Area Total Srch SqM
263.84
Building Area Units
Square Feet
CDDYN
1
Calculated List Price By Calculated SqFt
461.03
Carport YN
false
Community Features
Clubhouse, Community Mailbox, Deed Restrictions, Fitness Center, Golf Carts OK, Irrigation-Reclaimed Water, Playground, Pool, Sidewalks
Construction Materials
Block, Stucco
Contract Status
Inspections
Cooling
Central Air
Country
US
Cumulative Days On Market
26
Current Price
994900.00
Direction Faces
North
Elementary School
Tatum Ridge Elementary
Expected Closing Date
2026-03-31T00:00:00.000
Exterior Features
Hurricane Shutters, Rain Gutters, Sidewalk, Sliding Doors
Fireplace YN
false
Flood Zone Code
X
Flood Zone Date
2024-03-27
Flood Zone Panel
12115C0157G
Flooring
Carpet, Ceramic Tile
Foundation Details
Slab
Furnished
Unfurnished
Garage Spaces
2
Garage YN
true
Heating
Electric, Natural Gas
High School
Booker High
Homestead YN
1
Interior Features
Ceiling Fans(s), In Wall Pest System, Kitchen/Family Room Combo, Open Floorplan, Tray Ceiling(s), Walk-In Closet(s), Window Treatments
Internet Address Display YN
true
Internet Automated Valuation Display YN
false
Internet Consumer Comment YN
false
Internet Entire Listing Display YN
true
Laundry Features
Inside, Laundry Room
Lease Restrictions YN
1
Levels
One
List AOR
Sarasota - Manatee
Living Area Meters
200.48
Living Area Source
Public Records
Living Area Units
Square Feet
Lot Features
In County, Landscaped, Sidewalk, Paved
Lot Size Acres
0.15
Lot Size Square Feet
6505
Lot Size Square Meters
604
Middle Or Junior School
McIntosh Middle
Minimum Lease
1-2 Years
Modification Timestamp
2026-02-24T17:16:13.200Z
Monthly HOA Amount
397.33
New Construction YN
false
Occupant Type
Owner
Other Equipment
Irrigation Equipment
Ownership
Fee Simple
Parcel Number
0198030337
Pet Restrictions
SEE HOA DOCUMENTS
Pets Allowed
Breed Restrictions
Pool Private YN
true
Postal Code Plus 4
1224
Property Condition
Completed
Public Survey Range
19
Public Survey Section
10
Purchase Contract Date
2026-02-24
RATIO Current Price By Calculated SqFt
461.03
Road Responsibility
Public Maintained Road
Road Surface Type
Paved
Roof
Concrete, Tile
Room Count
6
SW Subdiv Community Name
Not Applicable
Senior Community YN
false
Sewer
Public Sewer
Showing Requirements
Supra Lock Box, Appointment Only, ShowingTime
Spa Features
Above Ground
Spa YN
true
Status Change Timestamp
2026-02-24T17:15:57.000Z
Tax Annual Amount
8880
Tax Block
1
Tax Book Number
53-232-238
Tax Legal Description
LOT 337, LAKEHOUSE COVE AT WATERSIDE PHASE 4, PB 53 PG 232-238
Tax Lot
337
Tax Other Annual Assessment Amount
1514
Tax Year
2025
Total Acreage
0 to less than 1/4
Total Annual Fees
4768.00
Total Monthly Fees
397.33
Township
36
Universal Property Id
US-12115-N-0198030337-R-N
Unparsed Address
925 CROSSWIND AVE
Utilities
Cable Connected, Electricity Connected, Natural Gas Connected, Public, Sewer Connected, Sprinkler Recycled, Underground Utilities, Water Connected
Water Access
Lake
Water Access YN
1
Water Frontage Feet Lake
50
Water Source
Canal/Lake For Irrigation
Water View
Lake
Water View YN
1
Waterfront Feet Total
50
Waterfront YN
true
Zoning
V
Neighborhood Map
Popup

Property Photos
Listing Photo
Listing Photo
Listing Photo
Listing Photo
Listing Photo
Listing Photo
Listing Photo
Listing Photo
Listing Photo
Listing Photo
Listing Photo
Listing Photo
Listing Photo
Listing Photo
Listing Photo
Listing Photo
Listing Photo
Listing Photo
Listing Photo
Listing Photo
Listing Photo
Listing Photo
Listing Photo
Listing Photo
Listing Photo
Listing Photo
Listing Photo
Listing Photo
Listing Photo
Listing Photo
Listing Photo
Listing Photo
Listing Photo
Listing Photo
Listing Photo
Listing Photo
Listing Photo
Listing Photo
Listing Photo
Listing Photo
Listing Photo
Listing Photo
Listing Photo
Listing Photo
Listing Photo
Listing Photo
Listing Photo
Listing Photo
Listing Photo
Listing Photo
Listing Photo
Listing Photo
Listing Photo
Listing Photo
Listing Photo
Listing Photo
Listing Photo
Listing Photo
Listing Photo
Listing Photo
Listing Photo
Listing Photo
Listing Photo
Listing Photo
Listing Photo
Listing Photo
Listing Photo
Listing Photo
Listing Photo
Listing Photo
Listing Photo
Listing Photo
Listing Photo
Listing Photo
Listing Photo
Listing Photo
Listing Photo
Listing Photo
Listing Photo
Listing Photo
Listing Photo
Listing Photo
Listing Photo
Listing Photo
Listing Photo
Listing Photo
Listing Photo
Listing Photo
Listing Photo
Listing Photo
Listing Photo
Listing Photo
Listing Photo
Listing Photo
Listing Photo
Listing Photo
Listing Photo
Listing Photo
Listing Photo
Listing Photo
Listing Photo
Listing Photo
Listing Photo
Listing Photo
Listing Photo
Listing Photo
Listing Photo
Listing Photo
Listing Photo
Listing Photo
Listing Photo
Listing Photo
Listing Photo
Listing Photo
Listing Photo
Listing Photo
Listing Photo
Listing Photo
Listing Photo
Listing Photo
Listing Photo
Listing Photo
Listing Photo
Listing Photo
Listing Photo
Listing Photo
Listing Photo
Listing Photo
Listing Photo
Listing Photo
Listing Photo
Listing Photo
Listing Photo
Listing Photo
Listing Photo
Listing Photo
Listing Photo
Listing Photo
Listing Photo
Listing Photo
Listing Photo
Listing Photo

MLS #MFRA4679579 Listing courtesy of Compass Florida Llc provided by Stellar MLS.

Similar Listings

$896,500
9397 Midnight Pass Road
Sarasota
3BR/2BA
| Active
$899,000
7820 Midnight Pass Road
Sarasota
3BR/2BA
| Active
$899,000
2170 Robinhood Street
Sarasota
3BR/2BA
| Active
$899,000
5247 Carmilfra Drive
Sarasota
3BR/2BA
| Active



All listing information is deemed reliable but not guaranteed and should be independently verified through personal inspection by appropriate professionals. Listings displayed on this website may be subject to prior sale or removal from sale; availability of any listing should always be independent verified. Listing information is provided for consumer personal, non-commercial use, solely to identify potential properties for potential purchase; all other use is strictly prohibited and may violate relevant federal and state law. The source of the listing data is as follows: Stellar MLS (updated 3/28/26 8:03 PM) |

Listing Search



Translate Tool

Featured Listings
St Petersburg Real Estate
$815,000
3 BED
2 BATH
Now is your chance! Buyer's financing fell through right before closing. Appraisal and inspection were both great! Set w... Read More
Orlando Real Estate
$889,000
4 BED
3 BATH
REMODELED, LOWEST PRICED HOME IN 24 HOUR GATED & GUARDED PHILLIPS LANDING COMMUNITY. SOLAR HEATED COVERED SCREENED IN PO... Read More
Sarasota Real Estate
$888,000
3 BED
3 BATH
Step into this one level Luxury Open Concept, Modern meets Mid Century Home on a Corner Lot. A stunning Single Family Ho... Read More
Maitland Real Estate
$995,000
3 BED
2 BATH
Rare opportunity to own a private 0.66-acre estate lot in Maitland with deeded direct Lake Sybelia access. 790 S Lake Sy... Read More
Windermere Real Estate
$945,000
4 BED
2 BATH
Pro Pics Coming Soon * Open House March 29, 2026 12pm to 4pm * Extremely rare opportunity to get a move in ready 4 Bedro... Read More
Englewood Real Estate
$1,350,000
3 BED
3 BATH
A truly RARE opportunity to own a fully reimagined home in one of the most sought-after locations on Manasota Key—comple... Read More
Sarasota Real Estate
$1,399,999
3 BED
4 BATH
Under contract-accepting backup offers. Welcome to 8968 Artisan Way, a stunning three-bedroom, five bath residence nestl... Read More
Palm Coast Real Estate
$1,225,000
4 BED
3 BATH
Simply elevated in design and highlighted by soaring 12-16 ft ceilings, this luxury NEW CONSTRUCTION HOME on an expansiv... Read More
Windermere Real Estate
$900,000
3 BED
2 BATH
FULLY RENOVATED DREAM HOME. This home is located right in the heart of the Town of Windermere. Welcome to 4 Chase Rd, Wi... Read More
St Pete Beach Real Estate
$850,000
2 BED
2 BATH
WAKE UP TO THE GULF EVERY SINGLE DAY !! PREMIER BEACHFRONT LUXURY LIVING AT BEAU MONDE OFFERING A 2ND FLOOR CONDO FEATUR... Read More
Contact Sandra Pardo

407-990-2746

Wendy Morris LLC

Licensed in the State of Florida
BK 3146762
16797 Broadwater Avenue
Winter Garden, Florida 34787

Your privacy is our utmost concern. We will never sell your personal information. Privacy Policy
©2026 sandrapardohomes.com - all rights reserved. | Site Map