407-990-2746
Menu

897 Lantern Way, Clearwater, FL

NEXT
PREV
$379,000

($231/sqft)

List Status: Active
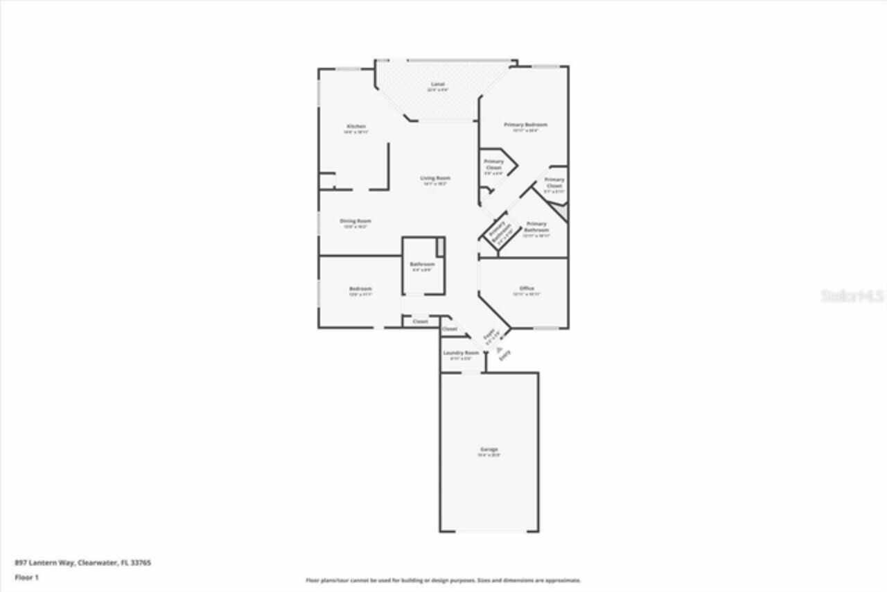
897 Lantern Way
Clearwater, FL 33765


2 beds
2 baths
1638 living sqft
Top Features
  • View: Trees/Woods
  • Subdivision: Coachman Reserve Condo
  • Built in  2007
  • Condominium
Description
Property Details
Additional Information
Additional Lease Restrictions
Confirm with Association
Additional Parcels YN
false
Alternate Key Folio Num
122915168550131010
Appliances
Dishwasher, Disposal, Dryer, Electric Water Heater, Exhaust Fan, Microwave, Range, Refrigerator, Washer
Approval Process
Confirm with Association
Association Amenities
Fitness Center, Pool
Association Approval Required YN
1
Association Email
info@coachmanreserve.com
Association Fee
575
Association Fee Frequency
Monthly
Association Fee Includes
Pool, Maintenance Structure, Maintenance Grounds, Management, Recreational Facilities, Sewer, Trash
Association Fee Requirement
Required
Association YN
true
Attached Garage YN
true
Available For Lease YN
1
Bathrooms Total Integer
2
Building Area Source
Public Records
Building Area Total
1638
Building Area Total Srch SqM
152.18
Building Area Units
Square Feet
Calculated List Price By Calculated SqFt
231.38
Carport YN
false
Community Features
Fitness Center, Pool, Sidewalks, Street Lights
Complex Community Name NCCB
COACHMAN RESERVE CON
Condo Land Included YN
1
Construction Materials
Block, Metal Frame
Cooling
Central Air
Country
US
Cumulative Days On Market
235
Current Price
379000.00
Direction Faces
West
Exterior Features
Courtyard, Rain Gutters, Sidewalk, Sliding Doors
Fireplace YN
false
Flood Zone Code
X
Floor Number
1
Flooring
Carpet, Tile
Foundation Details
Slab
Garage Spaces
1
Garage YN
true
Heating
Central, Electric
Home Warranty YN
false
Homestead YN
1
Interior Features
Ceiling Fans(s), High Ceilings, Open Floorplan, Primary Bedroom Main Floor, Solid Surface Counters, Solid Wood Cabinets, Split Bedroom, Thermostat, Walk-In Closet(s)
Internet Address Display YN
true
Internet Automated Valuation Display YN
true
Internet Consumer Comment YN
true
Internet Entire Listing Display YN
true
Laundry Features
Electric Dryer Hookup, Laundry Room, Washer Hookup
Lease Restrictions YN
1
Levels
One
List AOR
Suncoast Tampa
Living Area Meters
152.18
Living Area Source
Public Records
Living Area Units
Square Feet
Management
Full Time
Max Pet Weight
101
Minimum Lease
8-12 Months
Modification Timestamp
2025-12-06T23:18:08.730Z
Monthly HOA Amount
575.00
New Construction YN
false
Num Of Own Years Prior To Lease
1
Num Times per Year
1
Occupant Type
Owner
Ownership
Condominium
Parcel Number
12-29-15-16855-013-1010
Patio And Porch Features
Rear Porch, Screened
Pet Restrictions
Confirm with Association
Pet Size
Extra Large (101+ Lbs.)
Pets Allowed
Yes
Pool Private YN
false
Postal Code Plus 4
2139
Previous List Price
365000
Price Change Timestamp
2025-11-15T04:13:26.000Z
Property Attached YN
true
Property Description
Corner Unit
Public Remarks
Welcome to the Coachman Reserve Gated Community - Located in a high and dry non evacuation zone where comfort and elegance embrace serene living! Nestled amidst a picturesque natural vistas, this spacious 2Br/2BA condo with a den/office, 1 car attached garage with longer driveway for additional parking offers a seamless blend of style and convenience. Step inside and be captivated by the open and split floor plan, accentuated by high ceilings that add to the spacious feel in every room. The large kitchen with a delightful breakfast nook opens to the screened lanai, making every meal enjoyable. The graceful dining room effortlessly flows into the welcoming family room, creating a space perfect for gathering with loved ones. Unlock the joy of entertaining as you slide open the glass doors in the family room and kitchen, inviting guests to meander comfortably. The Master bedroom is a true sanctuary, boasting two walk-in closets and sliding glass doors that lead to a private escape. Master bath features dual sinks, a garden tub, a separate shower, and a water closet - a perfect retreat to unwind after a long day. Discover many amenities at Coachman Reserve, including a beautiful pool and fitness center, ensuring every day feels like a vacation. Seize this extraordinary opportunity to claim this prestigious address as your own. Just minutes away from the pristine Clearwater Beach, renowned for its soft white sands and inviting Gulf waters. Also very close by are the quaint towns of Dunedin and Safety Harbor. Minutes to major thoroughfares, shopping, dining, banking, beaches, parks, golfing, downtown Clearwater. Experience a life of distinction and elegance at Coachman Reserve, where luxury living harmonizes with nature's beauty. Seize this extraordinary opportunity to claim this prestigious address as your own. Ample guest parking is located just a few steps away from this unit.
Public Survey Range
15
Public Survey Section
12
RATIO Current Price By Calculated SqFt
231.38
Realtor Info
As-Is
Road Surface Type
Paved
Roof
Tile
Room Count
3
Security Features
Fire Alarm, Fire Sprinkler System, Gated Community, Secured Garage/Parking, Security Gate
Senior Community YN
false
Sewer
Public Sewer
Showing Requirements
Appointment Only, ShowingTime
Status Change Timestamp
2025-06-20T20:46:21.000Z
Stories Total
2
Tax Annual Amount
2233.98
Tax Block
013
Tax Book Number
147-4
Tax Legal Description
COACHMAN RESERVE CONDO PHASE 4 BLDG 13, UNIT 101
Tax Lot
1010
Tax Year
2024
Total Acreage
Non-Applicable
Total Annual Fees
6900.00
Total Monthly Fees
575.00
Township
29
Unit Number YN
1
Universal Property Id
US-12103-N-122915168550131010-S-897
Unparsed Address
897 LANTERN WAY
Utilities
Cable Connected, Electricity Connected, Fire Hydrant, Public, Sewer Connected, Water Connected
Vegetation
Mature Landscaping
Water Source
Public
Waterfront YN
false
Window Features
Blinds, Thermal Windows
Years Of Owner Prior To Leasing Req YN
1
Neighborhood Map
Popup

Property Photos
Listing Photo
Listing Photo
Listing Photo
Listing Photo
Listing Photo
Listing Photo
Listing Photo
Listing Photo
Listing Photo
Listing Photo
Listing Photo
Listing Photo
Listing Photo
Listing Photo
Listing Photo
Listing Photo
Listing Photo
Listing Photo
Listing Photo
Listing Photo
Listing Photo
Listing Photo
Listing Photo
Listing Photo
Listing Photo
Listing Photo
Listing Photo
Listing Photo
Listing Photo
Listing Photo
Listing Photo
Listing Photo
Listing Photo
Listing Photo
Listing Photo
Listing Photo
Listing Photo
Listing Photo
Listing Photo
Listing Photo
Listing Photo
Listing Photo
Listing Photo
Listing Photo
Listing Photo
Listing Photo
Listing Photo
Listing Photo
Listing Photo
Listing Photo
Listing Photo
Listing Photo
Listing Photo
Listing Photo
Listing Photo
Listing Photo
Listing Photo
Listing Photo
Listing Photo
Listing Photo
Listing Photo
Listing Photo
Listing Photo
Listing Photo
Listing Photo
Listing Photo
Listing Photo
Listing Photo
Listing Photo
Listing Photo
Listing Photo
Listing Photo
Listing Photo
Listing Photo
Listing Photo
Listing Photo
Listing Photo
Listing Photo
Listing Photo
Listing Photo
Listing Photo
Listing Photo
Listing Photo
Listing Photo
Listing Photo
Listing Photo
Listing Photo
Listing Photo
Listing Photo
Listing Photo
Listing Photo
Listing Photo
Listing Photo
Listing Photo
Listing Photo
Listing Photo
Listing Photo
Listing Photo
Listing Photo
Listing Photo
Listing Photo
Listing Photo
Listing Photo
Listing Photo
Listing Photo
Listing Photo
Listing Photo
Listing Photo
Listing Photo
Listing Photo
Listing Photo
Listing Photo

MLS #MFRTB8399310 Listing courtesy of Burwell Real Estate provided by Stellar MLS.

Similar Listings

$345,000
2222 Norwegian Drive
Clearwater
2BR/2BA
| Active
$347,500
5152 Bay Isle Circle
Clearwater
2BR/2BA
| Active
$349,000
14773 Feather Cove Road
Clearwater
2BR/2BA
| Active
$349,000
1516 Lemon Street
Clearwater
2BR/2BA
| Pending



All listing information is deemed reliable but not guaranteed and should be independently verified through personal inspection by appropriate professionals. Listings displayed on this website may be subject to prior sale or removal from sale; availability of any listing should always be independent verified. Listing information is provided for consumer personal, non-commercial use, solely to identify potential properties for potential purchase; all other use is strictly prohibited and may violate relevant federal and state law. The source of the listing data is as follows: Stellar MLS (updated 12/15/25 6:44 PM) |

Listing Search



Translate Tool

Featured Listings
Daytona Beach Real Estate
$990,000
5 BED
3 BATH
Osprey Real Estate
$850,000
3 BED
2 BATH
Osprey Real Estate
$800,000
3 BED
2 BATH
Orlando Real Estate
$899,000
5 BED
3 BATH
Winter Garden Real Estate
$814,900
5 BED
3 BATH
Winter Park Real Estate
$1,157,000
3 BED
2 BATH
Winter Garden Real Estate
$912,271
4 BED
3 BATH
Winter Garden Real Estate
$889,091
4 BED
3 BATH
Bushnell Real Estate
$845,000
2 BED
2 BATH
Port Charlotte Real Estate
$944,800
3 BED
2 BATH
Contact Sandra Pardo

407-990-2746

Wendy Morris LLC

Licensed in the State of Florida
BK 3146762
16797 Broadwater Avenue
Winter Garden, Florida 34787

Your privacy is our utmost concern. We will never sell your personal information. Privacy Policy
©2025 sandrapardohomes.com - all rights reserved. | Site Map