407-990-2746
Menu

8685 Bayou N Way, Pinellas Park, FL

NEXT
PREV
$823,400

($236/sqft)

List Status: Pending
8685 Bayou N Way
Pinellas Park, FL 33782


4 beds
3 baths
3496 living sqft
Top Features
  • View: Garden, Pool
  • Subdivision: Bayou West Sub
  • Built in  2001
  • Single Family Residence
Description
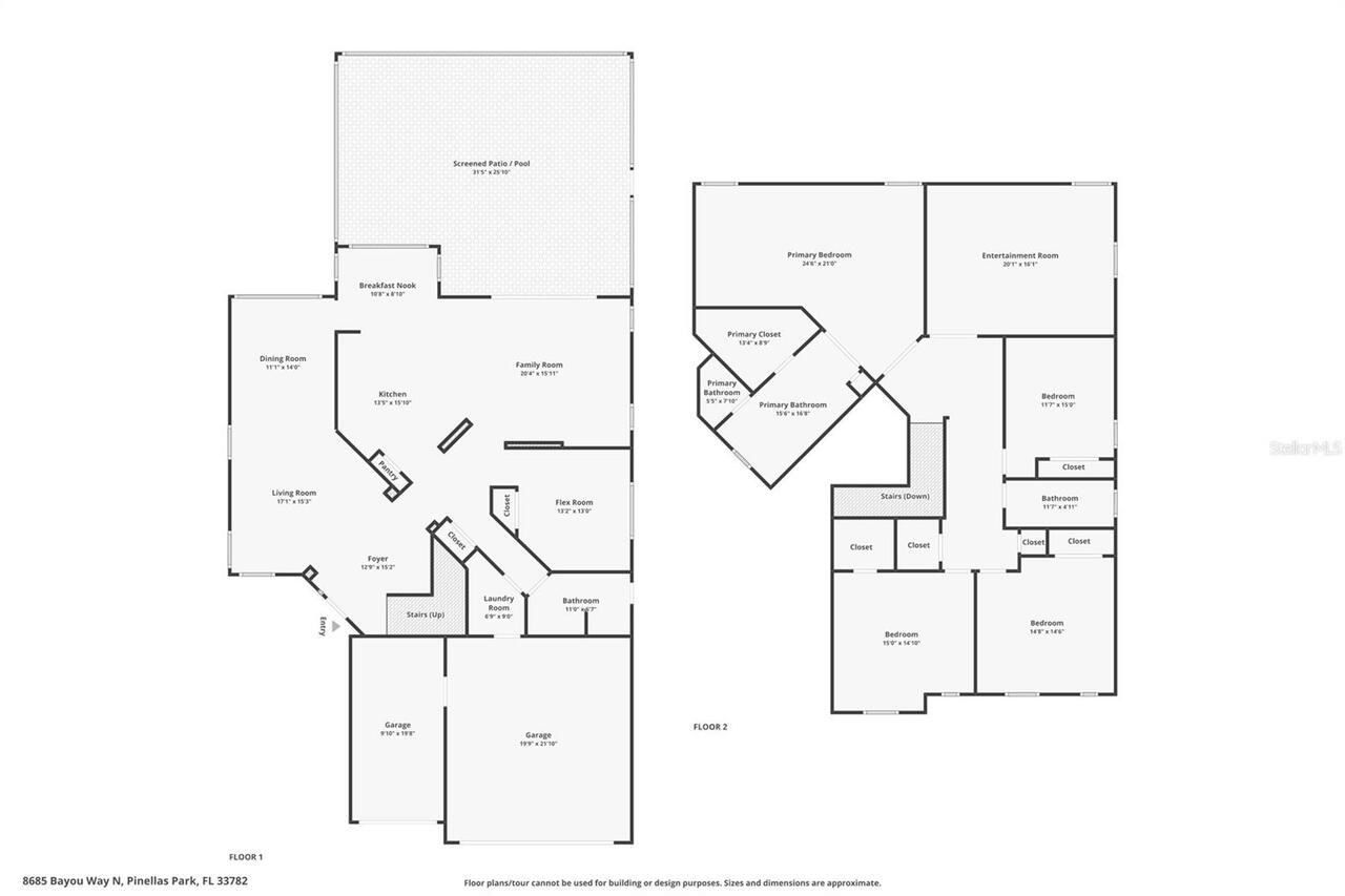
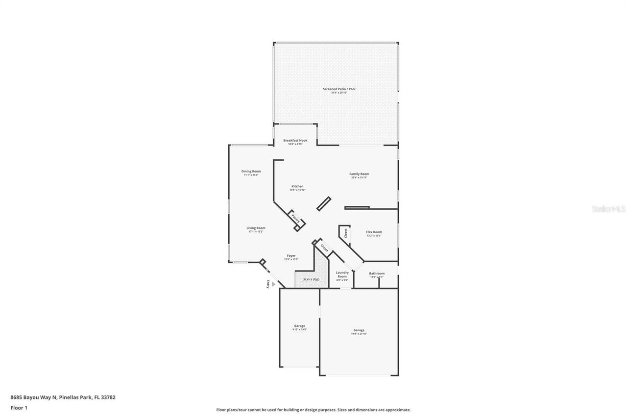
One or more photo(s) has been virtually staged. Spacious pool home with nearly 3,500 sq ft of well-designed living space, able to adapt to any homeowner’s changing needs. The first floor features a dramatic 20+ ft entry, formal living and dining areas, a full bath, and a separate study - perfect for a home office or even possible 5th bedroom. The open-concept kitchen flows seamlessly into the spacious family room and out to the beautifully pavered pool deck, making it ideal for everyday living and entertaining. Upstairs, a massive bonus room offers flexible space for a media room, gym, or additional bedroom, easily allowing this to function as a 5- or even 6-bedroom home. The serene primary suite includes a cozy sitting area, perfect for unwinding. Freshly painted in neutral tones, with a newer tile roof (2021) and A/C units (2023 & 2024), this home is tucked into a quiet, deed-restricted community with no through traffic, right in the heart of Pinellas County. Homes like this are rare, schedule your private tour today!
Property Details
Additional Information
Additional Lease Restrictions
12 month minimum lease
Additional Parcels YN
false
Additional Rooms
Bonus Room, Den/Library/Office, Family Room, Inside Utility
Alternate Key Folio Num
30-16-19-04001-000-0100
Appliances
Dishwasher, Disposal, Dryer, Microwave, Range, Refrigerator, Washer
Approval Process
please verify with property manager
Association Amenities
Fence Restrictions, Vehicle Restrictions
Association Approval Required YN
1
Association Email
csarkozi@franklycoastal.com
Association Fee
200
Association Fee Frequency
Quarterly
Association Fee Includes
None, Other
Association Fee Requirement
Required
Association YN
true
Attached Garage YN
true
Available For Lease YN
1
Bathrooms Total Integer
3
Building Area Source
Public Records
Building Area Total
4348
Building Area Total Srch SqM
403.94
Building Area Units
Square Feet
Calculated List Price By Calculated SqFt
235.53
Carport YN
false
Community Features
Deed Restrictions, Irrigation-Reclaimed Water, Sidewalks
Complex Community Name NCCB
BAYOU WEST
Construction Materials
Block, Stucco, Frame
Cooling
Central Air
Country
US
Cumulative Days On Market
57
Current Price
823400.00
Direction Faces
West
Elementary School
Cross Bayou Elementary-PN
Expected Closing Date
2026-04-02T00:00:00.000
Exterior Features
Sidewalk, Sprinkler Metered
Fencing
Vinyl
Fireplace YN
false
Flood Zone Code
X500
Flood Zone Date
2021-08-24
Flood Zone Panel
12103C0201J
Flooring
Ceramic Tile, Luxury Vinyl
Foundation Details
Slab
Furnished
Unfurnished
Garage Dimensions
22x30
Garage Spaces
3
Garage YN
true
Heating
Central, Electric
High School
Dixie Hollins High-PN
Homestead YN
1
Interior Features
Built-in Features, Ceiling Fans(s), Crown Molding, Eat-in Kitchen, Kitchen/Family Room Combo, Living Room/Dining Room Combo, PrimaryBedroom Upstairs, Walk-In Closet(s)
Internet Address Display YN
true
Internet Automated Valuation Display YN
true
Internet Consumer Comment YN
true
Internet Entire Listing Display YN
true
Laundry Features
Inside, Laundry Room
Lease Restrictions YN
1
Levels
Two
List AOR
Suncoast Tampa
Living Area Meters
324.79
Living Area Source
Public Records
Living Area Units
Square Feet
Lot Features
City Limits, Irregular Lot, Sidewalk, Street Dead-End
Lot Size Acres
0.18
Lot Size Dimensions
irreglar
Lot Size Square Feet
7993
Lot Size Square Meters
743
Middle Or Junior School
Pinellas Park Middle-PN
Minimum Lease
1-2 Years
Modification Timestamp
2026-03-09T17:31:11.003Z
Monthly HOA Amount
66.67
New Construction YN
false
Occupant Type
Vacant
Other Equipment
Irrigation Equipment
Ownership
Fee Simple
Parcel Number
19-30-16-04001-000-0100
Patio And Porch Features
Covered, Patio, Screened
Pets Allowed
Cats OK, Dogs OK, Yes
Pool Private YN
true
Postal Code Plus 4
4549
Previous List Price
849700
Price Change Timestamp
2026-03-02T15:46:45.000Z
Public Survey Range
16
Public Survey Section
19
Purchase Contract Date
2026-03-05
RATIO Current Price By Calculated SqFt
235.53
Realtor Info
As-Is
Road Responsibility
Public Maintained Road
Road Surface Type
Asphalt
Roof
Tile
Room Count
6
Senior Community YN
false
Sewer
Public Sewer
Showing Requirements
Supra Lock Box, Appointment Only, Lock Box Electronic, ShowingTime
Spa YN
false
Status Change Timestamp
2026-03-09T17:30:41.000Z
Stories Total
2
Tax Annual Amount
7546.47
Tax Block
04001
Tax Book Number
120-54
Tax Legal Description
BAYOU WEST SUB LOT 10
Tax Lot
10
Tax Year
2025
Total Acreage
0 to less than 1/4
Total Annual Fees
800.00
Total Monthly Fees
66.67
Township
30
Universal Property Id
US-12103-N-193016040010000100-R-N
Unparsed Address
8685 BAYOU WAY N
Utilities
BB/HS Internet Available, Cable Connected, Electricity Connected, Public, Sewer Connected, Sprinkler Recycled
Water Source
Public
Waterfront YN
false
Neighborhood Map
Popup

Property Photos
Listing Photo
Listing Photo
Listing Photo
Listing Photo
Listing Photo
Listing Photo
Listing Photo
Listing Photo
Listing Photo
Listing Photo
Listing Photo
Listing Photo
Listing Photo
Listing Photo
Listing Photo
Listing Photo
Listing Photo
Listing Photo
Listing Photo
Listing Photo
Listing Photo
Listing Photo
Listing Photo
Listing Photo
Listing Photo
Listing Photo
Listing Photo
Listing Photo
Listing Photo
Listing Photo
Listing Photo
Listing Photo
Listing Photo
Listing Photo
Listing Photo
Listing Photo
Listing Photo
Listing Photo
Listing Photo
Listing Photo
Listing Photo
Listing Photo
Listing Photo
Listing Photo
Listing Photo
Listing Photo
Listing Photo
Listing Photo
Listing Photo
Listing Photo
Listing Photo
Listing Photo
Listing Photo
Listing Photo
Listing Photo
Listing Photo
Listing Photo
Listing Photo
Listing Photo
Listing Photo
Listing Photo
Listing Photo
Listing Photo
Listing Photo
Listing Photo
Listing Photo
Listing Photo
Listing Photo
Listing Photo
Listing Photo
Listing Photo
Listing Photo
Listing Photo
Listing Photo
Listing Photo
Listing Photo
Listing Photo
Listing Photo
Listing Photo
Listing Photo
Listing Photo
Listing Photo
Listing Photo
Listing Photo
Listing Photo
Listing Photo
Listing Photo
Listing Photo
Listing Photo
Listing Photo
Listing Photo
Listing Photo
Listing Photo
Listing Photo
Listing Photo
Listing Photo
Listing Photo
Listing Photo
Listing Photo
Listing Photo
Listing Photo
Listing Photo
Listing Photo
Listing Photo
Listing Photo
Listing Photo
Listing Photo
Listing Photo
Listing Photo
Listing Photo
Listing Photo
Listing Photo
Listing Photo
Listing Photo
Listing Photo
Listing Photo
Listing Photo
Listing Photo
Listing Photo
Listing Photo
Listing Photo
Listing Photo
Listing Photo
Listing Photo
Listing Photo
Listing Photo
Listing Photo
Listing Photo
Listing Photo
Listing Photo

MLS #MFRTB8461097 Listing courtesy of Future Home Realty Inc provided by Stellar MLS.

Similar Listings

$749,900
6016 82nd N Terrace
Pinellas Park
4BR/3BA
| Active



All listing information is deemed reliable but not guaranteed and should be independently verified through personal inspection by appropriate professionals. Listings displayed on this website may be subject to prior sale or removal from sale; availability of any listing should always be independent verified. Listing information is provided for consumer personal, non-commercial use, solely to identify potential properties for potential purchase; all other use is strictly prohibited and may violate relevant federal and state law. The source of the listing data is as follows: Stellar MLS (updated 3/9/26 4:28 PM) |

Listing Search



Translate Tool

Featured Listings
Lake Mary Real Estate
$1,150,000
4 BED
3 BATH
Don't miss the opportunity to own this stunning estate home. Nestled on a 1.89-acre cul-de-sac lot in the exclusive Shan... Read More
Dade City Real Estate
$949,900
5 BED
3 BATH
Welcome to this beautifully crafted 5-bedroom, 3-bath, 3 car garage lakefront home offering 2,446 sqft of refined living... Read More
Winter Garden Real Estate
$996,000
5 BED
4 BATH
Experience luxury living in this pristine, brand-new 2025 construction located in the highly desirable Winter Garden are... Read More
Davenport Real Estate
$849,950
8 BED
5 BATH
Exceptional Luxury Vacation Rental Investment in ChampionsGate Resort. This spectacular 8-bedroom luxury vacation home i... Read More
Orlando Real Estate
$849,000
4 BED
3 BATH
Modern conveniences with classic Victorian charm sets this 4 bed, 3 bath abode apart with over 2,400 sq ft. Located in t... Read More
Citra Real Estate
$995,000
3 BED
2 BATH
Price adjustment!! Nestled within the historic Black Sink Prairie of Citra, this freshly remodeled, exceptional 21+ acre... Read More
Orlando Real Estate
$872,500
4 BED
3 BATH
Experience spacious Florida living in this CUSTOM-BUILT ESTATE set on more than half an acre in the desirable Lake Nona ... Read More
Longwood Real Estate
$825,000
5 BED
3 BATH
Nestled in the heart of Sweetwater Springs, a beautiful, gated enclave bordering Wekiwa Springs State Park, this excepti... Read More
Palmetto Real Estate
$897,689
4 BED
3 BATH
Welcome to a Deep-Water Tropical Oasis in Palmetto, Florida. Enter through the gated courtyard framed by elegant arches ... Read More
Bradenton Real Estate
$1,197,000
3 BED
4 BATH
Welcome to elevated waterfront living in Tidewater Preserve, one of Bradenton's most sought-after gated, non-CDD boating... Read More
Contact Sandra Pardo

407-990-2746

Wendy Morris LLC

Licensed in the State of Florida
BK 3146762
16797 Broadwater Avenue
Winter Garden, Florida 34787

Your privacy is our utmost concern. We will never sell your personal information. Privacy Policy
©2026 sandrapardohomes.com - all rights reserved. | Site Map