407-990-2746
Menu

8631 W Kimberly Court, Homosassa, FL

NEXT
PREV
$168,900

($169/sqft)

List Status: Active
8631 W Kimberly Court
Homosassa, FL 34448


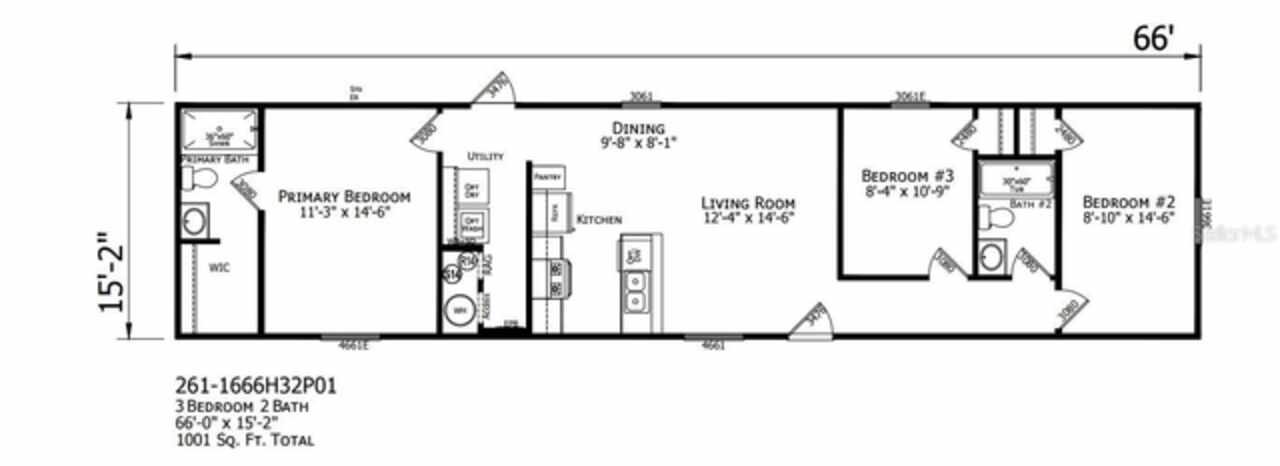
3 beds
2 baths
1001 living sqft
Top Features
  • Subdivision: Kimberly Estates Unrec Sub
  • Built in  2025
  • Manufactured Home
Description
Property Details
Additional Information
Additional Parcels YN
false
Alternate Key Folio Num
2244771
Appliances
Dishwasher, Electric Water Heater, Ice Maker, Range, Refrigerator
Association YN
false
Available For Lease YN
1
Bathrooms Total Integer
2
Body Type
Single Wide
Building Area Source
Builder
Building Area Total
1001
Building Area Total Srch SqM
93.00
Building Area Units
Square Feet
Calculated List Price By Calculated SqFt
168.73
Carport YN
false
Construction Materials
Metal Siding
Cooling
Central Air
Country
US
Cumulative Days On Market
91
Current Price
168900.00
Direction Faces
South
Exterior Features
Lighting
Fireplace YN
false
Flood Zone Code
AE
Flood Zone Date
2021-01-15
Flood Zone Panel
12017C0302E
Flooring
Vinyl
Foundation Details
Other
Furnished
Unfurnished
Garage YN
false
Heating
Central, Electric
Home Warranty YN
true
Interior Features
Ceiling Fans(s), Living Room/Dining Room Combo, Thermostat
Internet Address Display YN
true
Internet Automated Valuation Display YN
true
Internet Consumer Comment YN
false
Internet Entire Listing Display YN
true
Laundry Features
Electric Dryer Hookup, Inside, Washer Hookup
Levels
One
List AOR
Suncoast Tampa
Living Area Meters
93.00
Living Area Source
Builder
Living Area Units
Square Feet
Lot Features
Paved
Lot Size Acres
0.51
Lot Size Square Feet
22264
Lot Size Square Meters
2068
Make
Champion
Minimum Lease
No Minimum
Modification Timestamp
2025-11-11T20:55:09.611Z
New Construction YN
true
Number Of Septics
1
Number Of Wells
1
Occupant Type
Vacant
Ownership
Fee Simple
Parcel Number
17E-19S-03-0000-24120-0020
Patio And Porch Features
Deck
Pool Private YN
false
Postal Code Plus 4
1484
Previous List Price
179000
Price Change Timestamp
2025-11-11T20:54:47.000Z
Property Condition
Completed
Public Remarks
Welcome to your brand-new home in beautiful Homosassa, Florida! This 3-bedroom, 2-bath manufactured home sits on a spacious ½-acre lot that you own — no lot rent or HOA. Enjoy peace of mind with a 6-year home warranty, plus a brand-new septic system and new well equipment, both under warranty, meaning no costly public water or sewer bills. Step inside to an open and inviting layout, where the living room flows effortlessly into the modern kitchen. All-new stainless steel appliances make cooking a joy, while ceiling fans in every bedroom and the living room keep you comfortable year-round. The primary suite is a private retreat, featuring a walk-in closet and a full bathroom with a step-in shower. Outside, the partially fenced yard offers space for pets, a garden, or outdoor gatherings under Florida’s sunny skies. With no HOA restrictions, you have the freedom to truly make this property your own. Enjoy your morning coffee or evenings on an oversized 10x6 front deck. Located in the heart of Homosassa, you’ll be near the area’s crystal-clear springs, waterfront dining, and charming small-town shops — all while enjoying the privacy and space you deserve. This is more than a home — it’s the perfect blend of comfort, convenience, and freedom. Schedule your private tour today! Owner is a licensed real estate associate.
Public Survey Range
17
Public Survey Section
3
RATIO Current Price By Calculated SqFt
168.73
Realtor Info
List Agent is Owner
Road Responsibility
Public Maintained Road
Road Surface Type
Asphalt, Paved
Roof
Shingle
Room Count
8
Security Features
Smoke Detector(s)
Senior Community YN
false
Sewer
Private Sewer, Septic Tank
Showing Requirements
Combination Lock Box
Status Change Timestamp
2025-08-13T01:04:34.000Z
Tax Annual Amount
174
Tax Block
24120
Tax Book Number
3485-1120
Tax Legal Description
KIMBERLY ESTS UNREC SUB LOT 2 DESC AS: COM AT NE COR OF S 341 FT OF N 731 FT OF NW 1/4 OF SE 1/4 OF SEC 3-19-17 TH S 88DEG 02M 14S W 1807.56 FT TO POB TH S 02DEG 18M 30S E 145.5 FT TH S 88DEG 02M 14S E 150.63 FT TH N 02DEG 18M 30S W 145.5 FT TH N 88D EG 02M 14S E 150.63 FT TO POB
Tax Lot
2
Tax Year
2024
Total Acreage
1/2 to less than 1
Total Annual Fees
0.00
Total Monthly Fees
0.00
Township
19
Universal Property Id
US-12017-N-1719030000241200020-R-N
Unparsed Address
8631 W KIMBERLY CT
Utilities
BB/HS Internet Available, Electricity Connected, Sewer Connected, Water Connected
Water Source
Private, Well
Waterfront YN
false
Window Features
Blinds
Zoning
LDRMH
Neighborhood Map
Popup

Property Photos
Listing Photo
Listing Photo
Listing Photo
Listing Photo
Listing Photo
Listing Photo
Listing Photo
Listing Photo
Listing Photo
Listing Photo
Listing Photo
Listing Photo
Listing Photo
Listing Photo
Listing Photo
Listing Photo
Listing Photo
Listing Photo
Listing Photo
Listing Photo
Listing Photo
Listing Photo
Listing Photo
Listing Photo
Listing Photo
Listing Photo
Listing Photo
Listing Photo
Listing Photo
Listing Photo
Listing Photo
Listing Photo
Listing Photo
Listing Photo
Listing Photo
Listing Photo
Listing Photo
Listing Photo
Listing Photo
Listing Photo
Listing Photo
Listing Photo
Listing Photo
Listing Photo
Listing Photo
Listing Photo
Listing Photo
Listing Photo
Listing Photo
Listing Photo
Listing Photo
Listing Photo
Listing Photo
Listing Photo
Listing Photo
Listing Photo

MLS #MFRTB8416968 Listing courtesy of Dalton Wade Inc provided by Stellar MLS.

Similar Listings

$160,000
5511 S Bob White Drive
Homosassa
3BR/2BA
| Active
$185,000
4462 S Skylark Terrace
Homosassa
3BR/2BA
| Active



All listing information is deemed reliable but not guaranteed and should be independently verified through personal inspection by appropriate professionals. Listings displayed on this website may be subject to prior sale or removal from sale; availability of any listing should always be independent verified. Listing information is provided for consumer personal, non-commercial use, solely to identify potential properties for potential purchase; all other use is strictly prohibited and may violate relevant federal and state law. The source of the listing data is as follows: Stellar MLS (updated 12/6/25 4:49 PM) |

Listing Search



Translate Tool

Featured Listings
Clearwater Real Estate
$829,800
3 BED
2 BATH
Temple Terrace Real Estate
$875,000
5 BED
3 BATH
Sarasota Real Estate
$1,069,000
4 BED
3 BATH
Orlando Real Estate
$1,250,000
5 BED
4 BATH
Mount Dora Real Estate
$1,298,888
3 BED
3 BATH
Palm Harbor Real Estate
$934,900
4 BED
3 BATH
Geneva Real Estate
$1,299,000
3 BED
3 BATH
Tampa Real Estate
$959,990
4 BED
3 BATH
Sarasota Real Estate
$1,395,000
2 BED
2 BATH
Winter Garden Real Estate
$814,900
5 BED
3 BATH
Contact Sandra Pardo

407-990-2746

Wendy Morris LLC

Licensed in the State of Florida
BK 3146762
16797 Broadwater Avenue
Winter Garden, Florida 34787

Your privacy is our utmost concern. We will never sell your personal information. Privacy Policy
©2025 sandrapardohomes.com - all rights reserved. | Site Map