407-990-2746
Menu

8541 75th Place, Seminole, FL

NEXT
PREV
$515,000

($383/sqft)

List Status: Active
8541 75th Place
Seminole, FL 33777


3 beds
2 baths
1344 living sqft
Top Features
  • Subdivision: Boulevard Acres 1st Add
  • Built in  1960
  • Single Family Residence
Description
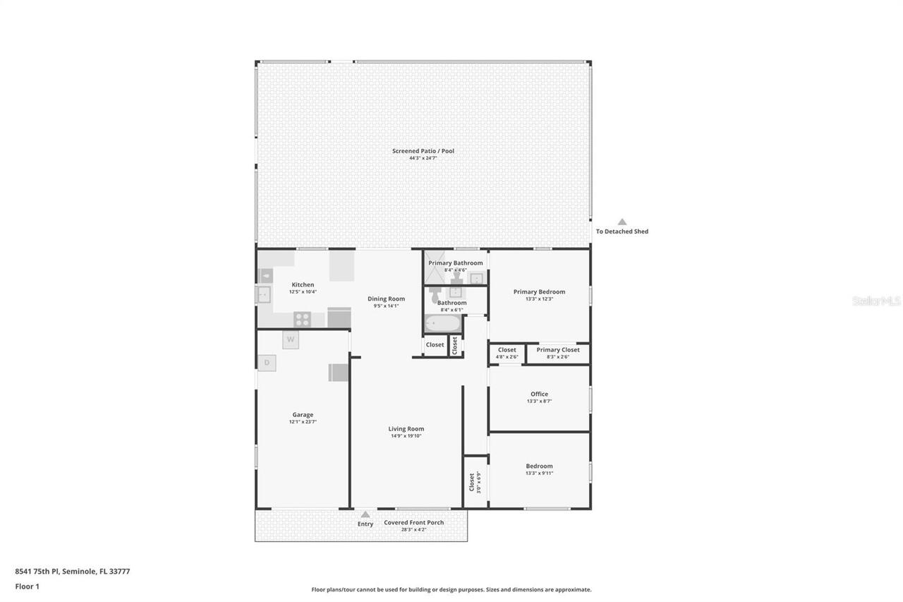
Welcome to your dream pool home in Seminole! This beautifully remodeled 3-bedroom, 2-bath residence offers the perfect blend of modern comfort, style, and exceptional outdoor living. Step inside to discover attractive, low-maintenance luxury vinyl plank flooring throughout and a stunning updated kitchen featuring wood cabinetry, solid surface countertops, a convenient breakfast bar, and stainless-steel appliances. The spacious living area provides an ideal setting for relaxing or entertaining family and friends. From the kitchen and dining area, step outside to your private outdoor oasis and enjoy Florida living at its finest with a screened saltwater pool surrounded by newly sealed pavers that create multiple lounging and entertaining spaces. The backyard also features a covered patio, a dedicated covered grilling area, and a bonus covered gazebo, perfect for hosting gatherings or unwinding in style. The fully fenced, low-maintenance yard includes two gates and offers ample room for boat, trailer, or RV parking, along with a storage shed for additional convenience. Enjoy peace of mind with a newer roof and updated plumbing, all in an unbeatable location just minutes from local parks, boating access, and some of Florida’s most beautiful beaches. This Seminole gem truly has it all—schedule your private showing today.
Property Details
Additional Information
Additional Parcels YN
false
Alternate Key Folio Num
253015104400000030
Appliances
Dishwasher, Electric Water Heater, Microwave, Range, Refrigerator
Architectural Style
Ranch
Association YN
false
Attached Garage YN
true
Available For Lease YN
1
Bathrooms Total Integer
2
Building Area Source
Public Records
Building Area Total
2047
Building Area Total Srch SqM
190.17
Building Area Units
Square Feet
Calculated List Price By Calculated SqFt
383.18
Carport YN
false
Construction Materials
Block
Cooling
Central Air
Country
US
Cumulative Days On Market
24
Current Price
515000.00
Direction Faces
South
Exterior Features
Lighting, Outdoor Grill, Sliding Doors, Storage
Fireplace YN
false
Flood Zone Code
X500
Flood Zone Date
2021-08-24
Flood Zone Panel
12103C0184H
Flooring
Ceramic Tile, Laminate
Foundation Details
Slab
Furnished
Unfurnished
Garage Spaces
1
Garage YN
true
Heating
Central
Interior Features
Ceiling Fans(s), Solid Surface Counters, Solid Wood Cabinets
Internet Address Display YN
true
Internet Automated Valuation Display YN
true
Internet Consumer Comment YN
true
Internet Entire Listing Display YN
true
Laundry Features
Other
Levels
One
List AOR
Suncoast Tampa
Living Area Meters
124.86
Living Area Source
Public Records
Living Area Units
Square Feet
Lot Features
Cleared, City Limits, In County, Landscaped, Level, Paved
Lot Size Acres
0.16
Lot Size Dimensions
70x100
Lot Size Square Feet
6996
Lot Size Square Meters
650
Minimum Lease
No Minimum
Modification Timestamp
2026-04-19T19:06:41.928Z
New Construction YN
false
Occupant Type
Vacant
Other Structures
Shed(s), Storage
Ownership
Fee Simple
Parcel Number
25-30-15-10440-000-0030
Patio And Porch Features
Covered, Enclosed, Front Porch, Patio
Pool Private YN
true
Postal Code Plus 4
4429
Public Survey Range
15
Public Survey Section
25
RATIO Current Price By Calculated SqFt
383.18
Road Surface Type
Paved
Roof
Shingle
Room Count
6
Senior Community YN
false
Sewer
Public Sewer
Showing Requirements
Appointment Only, See Remarks, ShowingTime
Status Change Timestamp
2026-03-26T13:42:02.000Z
Stories Total
1
Tax Annual Amount
6286.95
Tax Block
01
Tax Book Number
54-8
Tax Legal Description
BOULEVARD ACRES 1ST ADD LOT 3
Tax Lot
3
Tax Year
2025
Total Acreage
0 to less than 1/4
Total Annual Fees
0.00
Total Monthly Fees
0.00
Township
30
Universal Property Id
US-12103-N-253015104400000030-R-N
Unparsed Address
8541 75TH PL
Utilities
Electricity Connected, Sewer Connected, Water Connected
Vegetation
Trees/Landscaped
Water Source
Public
Waterfront YN
false
Zoning
R-3
Neighborhood Map
Popup

Property Photos
Listing Photo
Listing Photo
Listing Photo
Listing Photo
Listing Photo
Listing Photo
Listing Photo
Listing Photo
Listing Photo
Listing Photo
Listing Photo
Listing Photo
Listing Photo
Listing Photo
Listing Photo
Listing Photo
Listing Photo
Listing Photo
Listing Photo
Listing Photo
Listing Photo
Listing Photo
Listing Photo
Listing Photo
Listing Photo
Listing Photo
Listing Photo
Listing Photo
Listing Photo
Listing Photo
Listing Photo
Listing Photo
Listing Photo
Listing Photo
Listing Photo
Listing Photo
Listing Photo
Listing Photo
Listing Photo
Listing Photo
Listing Photo
Listing Photo
Listing Photo
Listing Photo
Listing Photo
Listing Photo
Listing Photo
Listing Photo
Listing Photo
Listing Photo
Listing Photo
Listing Photo
Listing Photo
Listing Photo
Listing Photo
Listing Photo
Listing Photo
Listing Photo
Listing Photo
Listing Photo
Listing Photo
Listing Photo
Listing Photo
Listing Photo
Listing Photo
Listing Photo
Listing Photo
Listing Photo
Listing Photo
Listing Photo
Listing Photo
Listing Photo
Listing Photo
Listing Photo
Listing Photo
Listing Photo
Listing Photo
Listing Photo
Listing Photo
Listing Photo
Listing Photo
Listing Photo
Listing Photo
Listing Photo
Listing Photo
Listing Photo
Listing Photo
Listing Photo

MLS #MFRTB8480865 Listing courtesy of Re/max Action First Of Florida provided by Stellar MLS.

Similar Listings

$474,000
11225 59th Avenue
Seminole
3BR/2BA
| Active
$475,000
12161 100th Avenue
Seminole
3BR/2BA
| Active
$475,000
13583 87th Avenue
Seminole
3BR/2BA
| Active
$479,000
7125 102nd Lane
Seminole
3BR/2BA
| Active



All listing information is deemed reliable but not guaranteed and should be independently verified through personal inspection by appropriate professionals. Listings displayed on this website may be subject to prior sale or removal from sale; availability of any listing should always be independent verified. Listing information is provided for consumer personal, non-commercial use, solely to identify potential properties for potential purchase; all other use is strictly prohibited and may violate relevant federal and state law. The source of the listing data is as follows: Stellar MLS (updated 4/27/26 7:36 PM) |

Listing Search



Translate Tool

Featured Listings
Maitland Real Estate
$979,000
4 BED
3 BATH
Beautiful and spacious home at 1281 Wellington Terrace featuring high beam ceilings and elegant tile floors throughout. ... Read More
Floral City Real Estate
$850,000
3 BED
2 BATH
Welcome to one of the most sought after subdivisions in Floral City! This unique 3 bed 2 bath Derby Oaks home has so muc... Read More
Brooksville Real Estate
$974,900
3 BED
3 BATH
Under Construction. A welcoming covered front porch leads into the entryway of this home, where a private home office aw... Read More
Orlando Real Estate
$1,099,999
3 BED
3 BATH
This fully renovated 3-bed, 3.5-bath home offers rare lakefront living with 152 feet of private frontage on Lake Concord... Read More
Port Charlotte Real Estate
$898,000
4 BED
3 BATH
Brand new waterfront custom home with Gulf access and wide water views, ideally positioned **less than 600 feet from the... Read More
Longwood Real Estate
$1,095,000
6 BED
4 BATH
Privately on 1.62 acres along one of the sought-after corridors of Markham Woods Road in Longwood, this exceptional prop... Read More
Windermere Real Estate
$1,175,000
5 BED
4 BATH
ADU A beautiful home located in the heart of downtown Windermere offering 4-bedrooms, 3-bathrooms, with a perfect blend ... Read More
Treasure Island Real Estate
$999,000
3 BED
2 BATH
Stunning, fully renovated coastal retreat just steps (less than 200 yards) from the sugar-white sands of Sunset Beach on... Read More
Winter Garden Real Estate
$875,000
5 BED
4 BATH
One or more photo(s) has been virtually staged. Positioned in one of Horizon West’s most desirable communities, this Sum... Read More
Bradenton Real Estate
$875,000
3 BED
3 BATH
THIS IS A GOLF DEEDED HOME! TURNKEY!! Welcome to 5010 Tivoli Run, an elegant 3-bedroom, 3 full bathroom and half bath si... Read More
Contact Sandra Pardo

407-990-2746

Wendy Morris LLC

Licensed in the State of Florida
BK 3146762
16797 Broadwater Avenue
Winter Garden, Florida 34787

Your privacy is our utmost concern. We will never sell your personal information. Privacy Policy
©2026 sandrapardohomes.com - all rights reserved. | Site Map