407-990-2746
Menu

840 Via Tunis, Punta Gorda, FL

NEXT
PREV
$615,000

($379/sqft)

List Status: Active
840 Via Tunis
Punta Gorda, FL 33950


3 beds
2 baths
1621 living sqft
Top Features
  • Frontage: Canal - Saltwater
  • View: Water, Pool
  • Subdivision: Punta Gorda Isles Sec 07
  • Built in  1989
  • Single Family Residence
Description
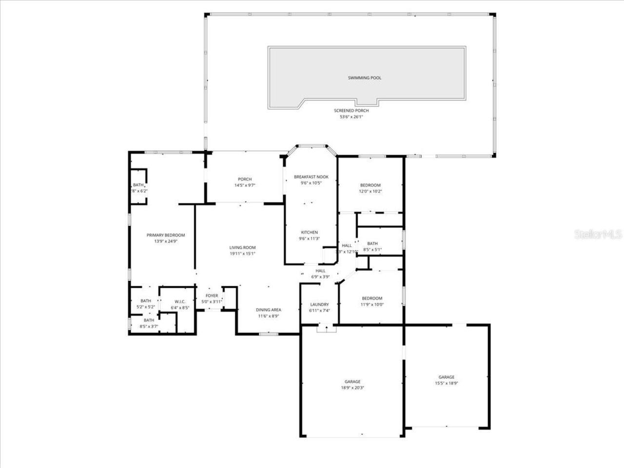
Perfectly positioned on a spectacular corner lot in a peaceful cul-de-sac within the highly sought-after deed-restricted community of Punta Gorda Isles, this FURNISHED luxury waterfront pool home offers the ultimate Florida boating lifestyle. Featuring three bedrooms, two-and-a-half baths, and an oversized three-car garage, the property spans nearly half an acre of prime saltwater frontage on Sea Bass Strait, complete with a 32-foot city-maintained concrete seawall, 41-foot concrete dock, and a 7,000-lb boat lift with water and electric. Enjoy quick powerboat access to Charlotte Harbor and beyond to the Gulf. Inside, the light-filled interior offers a spacious split-bedroom floor plan. The open-concept great room showcases cathedral ceilings, tile flooring throughout, and sliding glass doors that open to the lanai. A separate dining area flows seamlessly from the main living space, ideal for entertaining. The kitchen features white Shaker style cabinetry, stone countertops, Subway tile backsplash, closet pantry, and a casual dining nook overlooking the pool and waterfront. Appliances include range, built-in microwave, refrigerator, and dishwasher. The inside laundry room offers a washer, dryer, utility sink, and additional storage. The primary suite provides private access to the Florida Room and lanai, along with a walk-in closet and en-suite bath with dual sinks, wood cabinetry, stone counters, and a walk-in shower. Two generously sized guest bedrooms share a well-appointed bath with stone counters, wood cabinetry, and a tub/shower combination. Outdoor living is where this home truly shines. Sliding doors open to a screened lanai with a covered seating area with ceiling fan, expansive pool deck and a sparkling heated in-ground pool. A paver walkway leads to an outdoor patio area and continues to the dock and waterfront beyond. Additional highlights include hurricane shutters and impact windows, screened front entry, new chain link fence (2025), circular driveway w
Property Details
Additional Information
Additional Parcels YN
false
Additional Rooms
Breakfast Room Separate, Florida Room, Great Room, Inside Utility
Appliances
Dishwasher, Dryer, Electric Water Heater, Microwave, Range, Refrigerator, Washer
Architectural Style
Custom, Florida
Association YN
false
Attached Garage YN
true
Available For Lease YN
1
Bathrooms Total Integer
3
Building Area Source
Public Records
Building Area Total
2196
Building Area Total Srch SqM
204.01
Building Area Units
Square Feet
Calculated List Price By Calculated SqFt
379.40
Carport YN
false
Community Features
Deed Restrictions, Street Lights
Construction Materials
Block, Stucco
Cooling
Central Air, Humidity Control
Country
US
Cumulative Days On Market
56
Current Price
615000.00
Direction Faces
Southwest
Disaster Mitigation
Hurricane Shutters/Windows
Elementary School
Sallie Jones Elementary
Exterior Features
Hurricane Shutters, Lighting, Rain Gutters, Sliding Doors
Fencing
Chain Link
Fireplace YN
false
Flood Zone Code
9AE
Flood Zone Date
2003-05-05
Flood Zone Panel
12015C0237F
Flooring
Tile
Foundation Details
Slab
Furnished
Furnished
Garage Dimensions
38x20
Garage Spaces
3
Garage YN
true
Heating
Central, Electric
High School
Charlotte High
Homestead YN
1
Interior Features
Cathedral Ceiling(s), Ceiling Fans(s), Eat-in Kitchen, High Ceilings, Living Room/Dining Room Combo, Open Floorplan, Primary Bedroom Main Floor, Solid Wood Cabinets, Split Bedroom, Stone Counters, Thermostat, Vaulted Ceiling(s), Walk-In Closet(s)
Internet Address Display YN
true
Internet Automated Valuation Display YN
false
Internet Consumer Comment YN
false
Internet Entire Listing Display YN
true
Laundry Features
Inside, Laundry Room
Levels
One
List AOR
Port Charlotte
Living Area Meters
150.60
Living Area Source
Public Records
Living Area Units
Square Feet
Lot Features
Corner Lot, FloodZone, City Limits, Landscaped, Near Golf Course, Oversized Lot, Paved
Lot Size Acres
0.34
Lot Size Dimensions
188x130x32x125
Lot Size Square Feet
14811
Lot Size Square Meters
1376
Middle Or Junior School
Punta Gorda Middle
Minimum Lease
No Minimum
Modification Timestamp
2026-04-10T13:46:09.974Z
New Construction YN
false
Occupant Type
Vacant
Other Equipment
Irrigation Equipment
Other Exemptions YN
1
Ownership
Fee Simple
Parcel Number
412213131016
Patio And Porch Features
Covered, Patio, Screened
Pets Allowed
Yes
Pool Dimensions
38x10
Pool Private YN
true
Postal Code Plus 4
6625
Previous List Price
625000
Price Change Timestamp
2026-03-26T14:34:48.000Z
Public Survey Range
22
Public Survey Section
13
RATIO Current Price By Calculated SqFt
379.40
Realtor Info
As-Is, Sign
Road Responsibility
Public Maintained Road
Road Surface Type
Asphalt, Paved
Roof
Metal
Room Count
8
SW Subdiv Community Name
Punta Gorda Isles
Security Features
Smoke Detector(s)
Senior Community YN
false
Sewer
Public Sewer
Showing Requirements
No Lockbox, Other, See Remarks, ShowingTime
Spa YN
false
Status Change Timestamp
2026-02-13T15:43:57.000Z
Tax Annual Amount
4667.82
Tax Block
74
Tax Book Number
1-7
Tax Legal Description
PGI 007 0074 0044 PUNTA GORDA ISLES SEC7 BLK74 LT 44 740/371 DC968-1368 968-1369 EAS1014-90
Tax Lot
44
Tax Year
2025
Total Acreage
1/4 to less than 1/2
Total Annual Fees
0.00
Total Monthly Fees
0.00
Township
41
Universal Property Id
US-12015-N-412213131016-R-N
Unparsed Address
840 VIA TUNIS
Utilities
Cable Available, Electricity Available, Electricity Connected, Public, Sewer Connected, Water Connected
Vegetation
Trees/Landscaped
Water Access
Bay/Harbor, Canal - Saltwater, Gulf/Ocean
Water Access YN
1
Water Body Name
SEA BASS STRAIGHT
Water Extras
Bridges - Fixed, Lift, Seawall - Concrete
Water Extras YN
1
Water Frontage Feet Canal Saltwater
32
Water Source
Public
Water View
Canal
Water View YN
1
Waterfront Feet Total
32
Waterfront YN
true
Window Features
Storm Window(s)
Zoning
GS-3.5
Zoning Compatible YN
1
Neighborhood Map
Popup

Property Photos
Listing Photo
Listing Photo
Listing Photo
Listing Photo
Listing Photo
Listing Photo
Listing Photo
Listing Photo
Listing Photo
Listing Photo
Listing Photo
Listing Photo
Listing Photo
Listing Photo
Listing Photo
Listing Photo
Listing Photo
Listing Photo
Listing Photo
Listing Photo
Listing Photo
Listing Photo
Listing Photo
Listing Photo
Listing Photo
Listing Photo
Listing Photo
Listing Photo
Listing Photo
Listing Photo
Listing Photo
Listing Photo
Listing Photo
Listing Photo
Listing Photo
Listing Photo
Listing Photo
Listing Photo
Listing Photo
Listing Photo
Listing Photo
Listing Photo
Listing Photo
Listing Photo
Listing Photo
Listing Photo
Listing Photo
Listing Photo
Listing Photo
Listing Photo
Listing Photo
Listing Photo
Listing Photo
Listing Photo
Listing Photo
Listing Photo
Listing Photo
Listing Photo
Listing Photo
Listing Photo
Listing Photo
Listing Photo
Listing Photo
Listing Photo
Listing Photo
Listing Photo
Listing Photo
Listing Photo
Listing Photo
Listing Photo
Listing Photo
Listing Photo
Listing Photo
Listing Photo
Listing Photo
Listing Photo
Listing Photo
Listing Photo
Listing Photo
Listing Photo
Listing Photo
Listing Photo
Listing Photo
Listing Photo
Listing Photo
Listing Photo
Listing Photo
Listing Photo
Listing Photo
Listing Photo
Listing Photo
Listing Photo
Listing Photo
Listing Photo
Listing Photo
Listing Photo

MLS #MFRC7521777 Listing courtesy of Marina Park Realty Llc provided by Stellar MLS.

Similar Listings

$554,900
46 Sao Paulo Drive
Punta Gorda
3BR/2BA
| Pending
$555,000
200 Capri Isles Court
Punta Gorda
3BR/2BA
| Pending
$559,000
3250 Southshore Drive
Punta Gorda
3BR/2BA
| Active
$559,298
17219 River Otter Road
Punta Gorda
3BR/2BA
| Pending



All listing information is deemed reliable but not guaranteed and should be independently verified through personal inspection by appropriate professionals. Listings displayed on this website may be subject to prior sale or removal from sale; availability of any listing should always be independent verified. Listing information is provided for consumer personal, non-commercial use, solely to identify potential properties for potential purchase; all other use is strictly prohibited and may violate relevant federal and state law. The source of the listing data is as follows: Stellar MLS (updated 4/14/26 3:46 PM) |

Listing Search



Translate Tool

Featured Listings
Madeira Beach Real Estate
$989,000
3 BED
2 BATH
Offered FURNISHED and BEACH-READY, this 2022-built WATERFRONT residence delivers a rare combination of newer constructio... Read More
Orlando Real Estate
$875,000
4 BED
3 BATH
This charming home sits in a well-established, sought-after neighborhood. This striking four-bedroom, three-bath residen... Read More
Winter Park Real Estate
$1,175,000
5 BED
3 BATH
Welcome to this beautifully updated Winter Park home, perfectly positioned on a desirable corner lot and zoned for Audub... Read More
Bradenton Real Estate
$1,125,000
4 BED
2 BATH
Experience luxury waterfront living in this beautifully updated residence where thoughtful upgrades and coastal design c... Read More
Tampa Real Estate
$1,395,000
4 BED
3 BATH
*HOME IS BACK ON MARKET: BUYER FINANCING FELL THROUGH- HAVE DOCS TO VERIFY* Welcome to 2702 W Cass Street, a stunning ne... Read More
St Petersburg Real Estate
$809,900
3 BED
2 BATH
Now is your chance! Buyer's financing fell through right before closing. Appraisal and inspection were both great! Set w... Read More
Clermont Real Estate
$1,350,000
6 BED
4 BATH
Welcome to your private Tuscan-inspired retreat—where elegance, space, and resort-style living come together in the hear... Read More
Ormond Beach Real Estate
$849,999
5 BED
4 BATH
Under contract-accepting backup offers. Back On Market, a fresh opportunity to make this home yours. Experience refined ... Read More
Celebration Real Estate
$969,000
5 BED
3 BATH
SELLER INCENTIVE: Seller offering $10,000 Project Credit to Buyer for any work they'd like to customize the home to thei... Read More
Tampa Real Estate
$1,149,000
4 BED
3 BATH
Welcome to this Bayshore Beautiful nearly new home on a lovely tree lined street steps from Bayshore Blvd.  Step into th... Read More
Contact Sandra Pardo

407-990-2746

Wendy Morris LLC

Licensed in the State of Florida
BK 3146762
16797 Broadwater Avenue
Winter Garden, Florida 34787

Your privacy is our utmost concern. We will never sell your personal information. Privacy Policy
©2026 sandrapardohomes.com - all rights reserved. | Site Map