407-990-2746
Menu

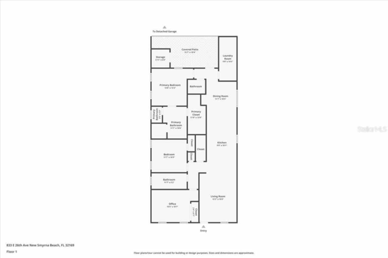
833 E 26th Avenue, New Smyrna Beach, FL

NEXT
PREV
$1,250,000

($716/sqft)

List Status: Active
833 E 26th Avenue
New Smyrna Beach, FL 32169


3 beds
2 baths
1746 living sqft
Top Features
  • View: Pool
  • Subdivision: New Smyrna Beach
  • Built in  2021
  • Single Family Residence
Description
Nothing quite like this in this price range. Welcome to a custom-designed ultra modern 3-bedroom, 2.5-bath beachside masterpiece in beautiful New Smyrna Beach, just steps from a beach walkover to the Atlantic ocean and a nature park with trails and a fishing pier at the river’s edge. Thoughtfully designed with unparalleled quality, this home features a detached 2-car garage connected by a covered breezeway to a courtyard oasis with a custom pool and spa. Situated on an oversized lot, the property offers a long, gated driveway to the oversized garage with an 8' high door, side-mounted motor, and overhead storage, perfect for larger vehicles. The exterior boasts recessed soffit lighting, front and rear covered porches, and a fully fenced backyard for privacy. Inside, every detail exudes sophistication, from luxury flooring and high-end fixtures to built-in closet systems in every room. The chef’s kitchen is a showstopper, equipped with commercial-grade appliances, a Sub-Zero refrigerator, a gas range with hood, quartz counters, ceiling-high herringbone backsplash, and warm wood shelving. The dining room just off the kitchen opens to the rear lanai for outdoor cooking and the choice to eat al fresca. The split-bedroom plan ensures privacy, with two spacious guest rooms, a half bath, and a luxurious primary suite featuring a transom window, a massive walk-in closet, dual vanity, and a dual-head shower. The 15' laundry room, air-conditioned storage room off the lanai, and outdoor shower add convenience. The courtyard pool and spa, complete with custom lighting and water features, create a magical ambiance for relaxing or entertaining. With a metal roof, hurricane-rated windows and doors, and pre-wiring for security cameras, this home is a coastal retreat like no other. Located in a golf-cart-friendly neighborhood near Flagler Avenue and grocery store, yet walking distance to restaurants and shopping, this modern beachside home is a cut above the rest! ALL INFORMATION IS
Property Details
Additional Information
Additional Lease Restrictions
1 month minimum
Additional Parcels YN
false
Additional Rooms
Inside Utility, Storage Rooms
Additional Water Information
Beach Walkover across A1A. Also, river park at west end of street with fishing oier on river.
Alternate Key Folio Num
3822382
Appliances
Built-In Oven, Dishwasher, Disposal, Electric Water Heater, Exhaust Fan, Ice Maker, Microwave, Range, Range Hood, Refrigerator
Architectural Style
Coastal, Contemporary, Courtyard
Association YN
false
Attached Garage YN
true
Available For Lease YN
1
Bathrooms Total Integer
3
Building Area Source
Builder
Building Area Total
2038
Building Area Total Srch SqM
189.34
Building Area Units
Square Feet
Calculated List Price By Calculated SqFt
715.92
Carport YN
false
Construction Materials
Block, Concrete, Stucco
Cooling
Central Air
Country
US
Cumulative Days On Market
291
Current Price
1250000.00
Direction Faces
North
Disaster Mitigation
Above Flood Plain, Hurricane Insur. Deduction Qual., Hurricane Shutters/Windows
Elementary School
Coronado Beach Elem
Exterior Features
Courtyard, Lighting, Outdoor Shower, Rain Gutters, Storage
Fencing
Fenced, Vinyl
Fireplace YN
false
Flood Zone Code
X
Flood Zone Date
2017-09-29
Flood Zone Panel
12127C0544J
Flooring
Luxury Vinyl
Foundation Details
Concrete Perimeter, Slab
Furnished
Negotiable
Garage Spaces
2
Garage YN
true
Green Energy Efficient
Appliances
Green Landscaping
Fl. Friendly/Native Landscape
Heating
Electric
High School
New Smyrna Beach High
Homestead YN
1
Interior Features
Built-in Features, Ceiling Fans(s), Eat-in Kitchen, High Ceilings, Open Floorplan, Primary Bedroom Main Floor, Solid Wood Cabinets, Split Bedroom, Stone Counters, Thermostat, Walk-In Closet(s), Window Treatments
Internet Address Display YN
true
Internet Automated Valuation Display YN
true
Internet Consumer Comment YN
true
Internet Entire Listing Display YN
true
Laundry Features
Inside, Laundry Room
Lease Restrictions YN
1
Levels
One
List AOR
Orlando Regional
Living Area Meters
162.21
Living Area Source
Builder
Living Area Units
Square Feet
Lot Features
City Limits
Lot Size Acres
0.17
Lot Size Dimensions
50 X 150
Lot Size Square Feet
7500
Lot Size Square Meters
697
Middle Or Junior School
New Smyrna Beach Middl
Minimum Lease
1 Month
Modification Timestamp
2025-10-03T14:07:08.853Z
New Construction YN
false
Occupant Type
Owner
Other Structures
Storage
Ownership
Fee Simple
Parcel Number
74-22-01-58-0480
Patio And Porch Features
Covered, Front Porch, Porch, Rear Porch
Pool Private YN
true
Postal Code Plus 4
3615
Previous List Price
1295000
Price Change Timestamp
2025-10-03T14:06:08.000Z
Public Survey Range
34
Public Survey Section
22
RATIO Current Price By Calculated SqFt
715.92
Realtor Info
As-Is
Road Responsibility
Public Maintained Road
Road Surface Type
Asphalt
Roof
Metal
Room Count
9
Security Features
Secured Garage/Parking
Senior Community YN
false
Sewer
Public Sewer
Showing Requirements
Supra Lock Box, Appointment Only, ShowingTime
Spa Features
Heated, In Ground
Spa YN
true
Status Change Timestamp
2024-12-17T00:39:03.000Z
Tax Annual Amount
11589
Tax Block
Z
Tax Book Number
7-29
Tax Legal Description
LOT 48 BLK Z NEW SMYRNA BEACH MB 7 PG 29 MB 12 PGS 127-128 INC PER OR 3112 PG 0785 PER OR 7202 PG 3918 PER OR 8143 PG 2561 PER OR 8240 PG 1207
Tax Lot
48
Tax Year
2023
Total Acreage
0 to less than 1/4
Total Annual Fees
0.00
Total Monthly Fees
0.00
Township
17
Universal Property Id
US-12127-N-742201580480-R-N
Unparsed Address
833 E 26TH AVE
Utilities
BB/HS Internet Available, Cable Connected, Electricity Connected, Natural Gas Available, Public, Sewer Connected, Underground Utilities, Water Connected
Water Access
Beach, Gulf/Ocean
Water Access YN
1
Water Body Name
ATLANTIC OCEAN
Water Source
Public
Waterfront YN
false
Window Features
Storm Window(s), Window Treatments
Zoning
10R2
Neighborhood Map
Popup

Property Photos
Listing Photo
Listing Photo
Listing Photo
Listing Photo
Listing Photo
Listing Photo
Listing Photo
Listing Photo
Listing Photo
Listing Photo
Listing Photo
Listing Photo
Listing Photo
Listing Photo
Listing Photo
Listing Photo
Listing Photo
Listing Photo
Listing Photo
Listing Photo
Listing Photo
Listing Photo
Listing Photo
Listing Photo
Listing Photo
Listing Photo
Listing Photo
Listing Photo
Listing Photo
Listing Photo
Listing Photo
Listing Photo
Listing Photo
Listing Photo
Listing Photo
Listing Photo
Listing Photo
Listing Photo
Listing Photo
Listing Photo
Listing Photo
Listing Photo
Listing Photo
Listing Photo
Listing Photo
Listing Photo
Listing Photo
Listing Photo
Listing Photo
Listing Photo
Listing Photo
Listing Photo
Listing Photo
Listing Photo
Listing Photo
Listing Photo
Listing Photo
Listing Photo
Listing Photo
Listing Photo
Listing Photo
Listing Photo
Listing Photo
Listing Photo
Listing Photo
Listing Photo
Listing Photo
Listing Photo
Listing Photo
Listing Photo
Listing Photo
Listing Photo
Listing Photo
Listing Photo
Listing Photo
Listing Photo
Listing Photo
Listing Photo
Listing Photo
Listing Photo
Listing Photo
Listing Photo
Listing Photo
Listing Photo
Listing Photo
Listing Photo
Listing Photo
Listing Photo
Listing Photo
Listing Photo
Listing Photo
Listing Photo
Listing Photo
Listing Photo
Listing Photo
Listing Photo
Listing Photo
Listing Photo
Listing Photo
Listing Photo
Listing Photo
Listing Photo
Listing Photo
Listing Photo
Listing Photo
Listing Photo
Listing Photo
Listing Photo
Listing Photo
Listing Photo
Listing Photo
Listing Photo
Listing Photo
Listing Photo
Listing Photo
Listing Photo
Listing Photo
Listing Photo
Listing Photo
Listing Photo
Listing Photo
Listing Photo
Listing Photo
Listing Photo
Listing Photo
Listing Photo
Listing Photo
Listing Photo

MLS #MFRNS1083299 Listing courtesy of Collado Real Estate provided by Stellar MLS.

Similar Listings

$1,198,000
1508 S Riverside Drive
New Smyrna Beach
3BR/2BA
| Active
$1,199,000
123 Marina Bay Drive
New Smyrna Beach
3BR/2BA
| Active
$1,199,999
1422 N Atlantic Avenue
New Smyrna Beach
3BR/2BA
| Active
$1,215,000
250 Minorca Beach Way
New Smyrna Beach
3BR/2BA
| Active



All listing information is deemed reliable but not guaranteed and should be independently verified through personal inspection by appropriate professionals. Listings displayed on this website may be subject to prior sale or removal from sale; availability of any listing should always be independent verified. Listing information is provided for consumer personal, non-commercial use, solely to identify potential properties for potential purchase; all other use is strictly prohibited and may violate relevant federal and state law. The source of the listing data is as follows: Stellar MLS (updated 4/3/26 1:33 PM) |

Listing Search



Translate Tool

Featured Listings
St Petersburg Real Estate
$1,149,000
4 BED
3 BATH
Welcome to 2348 2nd Ave S! Imagine owning a private, single-family sanctuary at the epicenter of St. Petersburg’s most e... Read More
Lakewood Ranch Real Estate
$819,900
4 BED
3 BATH
Priced $20K BELOW appraisal! This home has been impeccably maintained and is in pristine, move-in-ready condition-truly ... Read More
Orlando Real Estate
$899,900
4 BED
3 BATH
CONSTRUCTION COMPLETE! Welcome to The Kauai, where bold design meets everyday livability in the heart of Lake Nona’s Lau... Read More
Longboat Key Real Estate
$850,000
3 BED
3 BATH
Embrace the island life style within the gates of Longboat Key's premier resort community of Bay Isles. You'll love this... Read More
Venice Real Estate
$925,350
4 BED
3 BATH
Welcome to the Costa Mesa at Oakbend, where thoughtful design meets everyday luxury in a boutique Wellen Park setting. T... Read More
Holmes Beach Real Estate
$1,270,000
2 BED
2 BATH
Steps to the Beach: A Deluxe Retreat with Massive Rental Power! Why choose between a vacation home and a smart investmen... Read More
Dade City Real Estate
$1,081,842
4 BED
4 BATH
A rare blend of privacy, elegance, and effortless modern living, without the wait. Welcome to The Monica, a showcase of ... Read More
Orlando Real Estate
$1,085,000
4 BED
3 BATH
WATERFRONT!!Welcome to this beautifully designed 4 bedroom, 3 1/2 bath with office, Baldwin Park home on a corner lot wi... Read More
Oviedo Real Estate
$1,375,000
6 BED
5 BATH
Welcome to Ravencliffe, a private gated enclave in the heart of Oviedo. Located off Alafaya Trail and Lake Hayes Road, t... Read More
Ocala Real Estate
$1,050,000
4 BED
3 BATH
Under contract-accepting backup offers. Exceptional opportunity in a premier, gated equestrian community located in the ... Read More
Contact Sandra Pardo

407-990-2746

Wendy Morris LLC

Licensed in the State of Florida
BK 3146762
16797 Broadwater Avenue
Winter Garden, Florida 34787

Your privacy is our utmost concern. We will never sell your personal information. Privacy Policy
©2026 sandrapardohomes.com - all rights reserved. | Site Map