407-990-2746
Menu

7734 Cardiff Court, St Petersburg, FL

NEXT
PREV
$525,000

($300/sqft)

List Status: Active
7734 Cardiff Court
St Petersburg, FL 33709


3 beds
2 baths
1752 living sqft
Top Features
  • View: Garden, Pool
  • Subdivision: Westchester Estates Unit Two
  • Built in  1977
  • Single Family Residence
Description
Property Details
Additional Information
Additional Lease Restrictions
Buyer to verify with Pinellas County
Additional Parcels YN
false
Additional Rooms
Den/Library/Office, Family Room, Formal Dining Room Separate, Formal Living Room Separate, Great Room
Appliances
Dishwasher, Dryer, Electric Water Heater, Microwave, Range, Refrigerator, Washer
Association YN
false
Attached Garage YN
true
Available For Lease YN
1
Bathrooms Total Integer
2
Building Area Source
Public Records
Building Area Total
2520
Building Area Total Srch SqM
234.12
Building Area Units
Square Feet
Calculated List Price By Calculated SqFt
299.66
Carport YN
false
Construction Materials
Block, Stucco
Cooling
Central Air
Country
US
Cumulative Days On Market
2
Current Price
525000.00
Direction Faces
North
Elementary School
Rawlings Elementary-PN
Exterior Features
Hurricane Shutters, Sidewalk, Storage
Fencing
Fenced, Vinyl
Fireplace YN
false
Flood Zone Code
X500
Flood Zone Date
2021-08-24
Flood Zone Panel
12103C0203J
Flooring
Bamboo, Carpet, Tile
Foundation Details
Slab
Furnished
Unfurnished
Garage Dimensions
25x20
Garage Spaces
2
Garage YN
true
Heating
Central, Electric
High School
Dixie Hollins High-PN
Homestead YN
1
Interior Features
Built-in Features, Open Floorplan, Solid Wood Cabinets, Split Bedroom, Stone Counters, Vaulted Ceiling(s), Walk-In Closet(s), Window Treatments
Internet Address Display YN
true
Internet Automated Valuation Display YN
false
Internet Consumer Comment YN
false
Internet Entire Listing Display YN
true
Laundry Features
Laundry Room
Levels
One
List AOR
Suncoast Tampa
Living Area Meters
162.77
Living Area Source
Public Records
Living Area Units
Square Feet
Lot Features
Landscaped, Oversized Lot, Sidewalk, Paved
Lot Size Acres
0.23
Lot Size Square Feet
10206
Lot Size Square Meters
948
Middle Or Junior School
Pinellas Park Middle-PN
Minimum Lease
No Minimum
Modification Timestamp
2026-01-25T18:06:11.616Z
New Construction YN
false
Occupant Type
Owner
Other Equipment
Irrigation Equipment
Other Structures
Shed(s), Storage, Workshop
Ownership
Fee Simple
Parcel Number
31-30-16-96267-000-0560
Patio And Porch Features
Rear Porch, Screened
Pets Allowed
Yes
Pool Private YN
true
Public Remarks
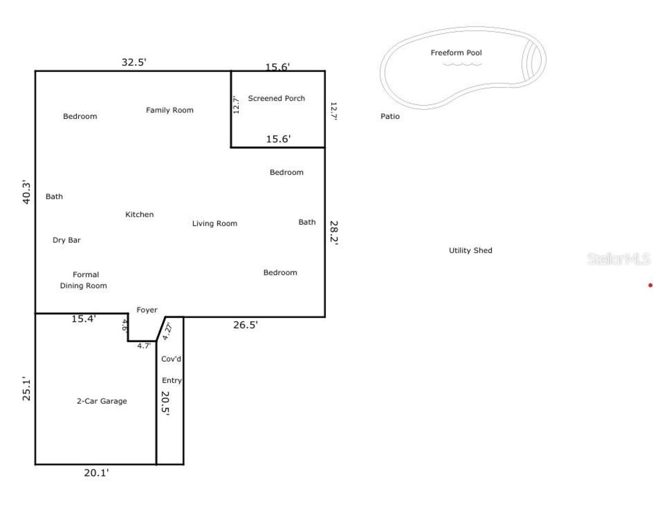
Gorgeous 3 bedroom, 2 bath, 2 car garage POOL Home in Westchester Estates. The oversized yard measures 97x104. Plenty of room for the fenced swimming pool, and still spacious yard area for playing catch, fetch or just puttering with the flowers. The inviting swimming pool is gorgeous and has an expansive pavered pool deck ready for your loungers. Perfect setup for entertaining or family time – this is an oasis of peacefulness. Open floorplan connects everyone to the Fun! A bright and cheerful home. Vaulted ceilings accentuate the generous room sizes. The split bedroom layout is the best for privacy and quiet. The kitchen has been updated with granite counters, real wood cabinets including a pantry with pull out shelving, and bamboo flooring. The master bath is lovely and tastefully redone. The screened porch views the pool area and rear yard. A perfect spot to relax in the cool shade. The grass is gorgeous, and the landscaping and flowers are so beautiful. Landscaping is easily maintained with the automatic irrigation system that uses reclaimed water. The oversized barn shed provides wonderful storage, features electric, a skylight and is actually pretty! Second shed is great for extra storage! Just a few of the many upgrades include the following: a new 200 AMP electrical panel, New roof (2025), AC (2023), Water heater (2023), Upgraded impact rated garage door and opener (2025), Pool resurfaced (2016) and updated pool pump (2018), Kitchen & bathrooms updated (2015), whole house replumb (2015), newer kitchen & laundry appliances (2019-2023), and upgraded metal pull down attic stairs. Westchester Estates is a quiet neighborhood comprised of Cul-de-sacs with sidewalks. Pride of ownership is evident here. GREAT LOCATION - VA hospital is only 5 minutes away and Maderia Beach is only 10 minutes away. This is a HIGH AND DRY LOCATION! No Flood insurance required here. No issues from previous storms. No HOA, Not a flood zone, SAVES YOU MONEY $$ !!
Public Survey Range
16
Public Survey Section
31
RATIO Current Price By Calculated SqFt
299.66
Realtor Info
Sign
Road Surface Type
Paved
Roof
Shingle
Room Count
10
Senior Community YN
false
Sewer
Public Sewer
Showing Requirements
24 Hour Notice, Appointment Only, Lock Box Electronic-CBS Code Required, ShowingTime
Status Change Timestamp
2026-01-24T03:58:16.000Z
Tax Annual Amount
3205
Tax Block
000
Tax Book Number
76-19
Tax Legal Description
WESTCHESTER ESTATES UNIT TWO LOT 56 & E 1/2 OF LOT 57
Tax Lot
56
Tax Year
2025
Total Acreage
0 to less than 1/4
Total Annual Fees
0.00
Total Monthly Fees
0.00
Township
30
Universal Property Id
US-12103-N-313016962670000560-R-N
Unparsed Address
7734 CARDIFF CT
Utilities
Cable Available, Electricity Connected, Public, Sewer Connected, Sprinkler Recycled, Water Connected
Vegetation
Mature Landscaping
Water Source
Public
Waterfront YN
false
Window Features
Double Pane Windows, Shutters, Window Treatments
Zoning
R-3
Neighborhood Map
Popup

Property Photos
Listing Photo
Listing Photo
Listing Photo
Listing Photo
Listing Photo
Listing Photo
Listing Photo
Listing Photo
Listing Photo
Listing Photo
Listing Photo
Listing Photo
Listing Photo
Listing Photo
Listing Photo
Listing Photo
Listing Photo
Listing Photo
Listing Photo
Listing Photo
Listing Photo
Listing Photo
Listing Photo
Listing Photo
Listing Photo
Listing Photo
Listing Photo
Listing Photo
Listing Photo
Listing Photo
Listing Photo
Listing Photo
Listing Photo
Listing Photo
Listing Photo
Listing Photo
Listing Photo
Listing Photo
Listing Photo
Listing Photo
Listing Photo
Listing Photo
Listing Photo
Listing Photo
Listing Photo
Listing Photo
Listing Photo
Listing Photo
Listing Photo
Listing Photo

MLS #MFRTB8468424 Listing courtesy of Realty Experts provided by Stellar MLS.

Similar Listings

$474,900
2217 65th N Place
St Petersburg
3BR/2BA
| Active
$474,900
6149 37th N Avenue
St Petersburg
3BR/2BA
| Active
$474,999
2290 60th N Way
St Petersburg
3BR/2BA
| Active
$475,000
4441 16th N Street
St Petersburg
3BR/2BA
| Active



All listing information is deemed reliable but not guaranteed and should be independently verified through personal inspection by appropriate professionals. Listings displayed on this website may be subject to prior sale or removal from sale; availability of any listing should always be independent verified. Listing information is provided for consumer personal, non-commercial use, solely to identify potential properties for potential purchase; all other use is strictly prohibited and may violate relevant federal and state law. The source of the listing data is as follows: Stellar MLS (updated 1/27/26 7:33 PM) |

Listing Search



Translate Tool

Featured Listings
Belleview Real Estate
$1,350,000
4 BED
3 BATH
Reunion Real Estate
$980,000
5 BED
4 BATH
Tavares Real Estate
$1,450,000
5 BED
4 BATH
Venice Real Estate
$1,050,000
3 BED
3 BATH
Sarasota Real Estate
$1,260,000
4 BED
4 BATH
North Venice Real Estate
$825,000
3 BED
3 BATH
St Petersburg Real Estate
$1,300,000
2 BED
2 BATH
St Petersburg Real Estate
$849,000
4 BED
3 BATH
Bartow Real Estate
$1,090,000
4 BED
3 BATH
Arcadia Real Estate
$1,099,000
5 BED
3 BATH
Contact Sandra Pardo

407-990-2746

Wendy Morris LLC

Licensed in the State of Florida
BK 3146762
16797 Broadwater Avenue
Winter Garden, Florida 34787

Your privacy is our utmost concern. We will never sell your personal information. Privacy Policy
©2026 sandrapardohomes.com - all rights reserved. | Site Map