407-990-2746
Menu

7725 Sw 46th Court, Ocala, FL

NEXT
PREV
$262,990

($169/sqft)

List Status: Active
7725 Sw 46th Court
Ocala, FL 34474


4 beds
2 baths
1560 living sqft
Top Features
  • Subdivision: Derby Creek
  • Built in  2026
  • Single Family Residence
Description
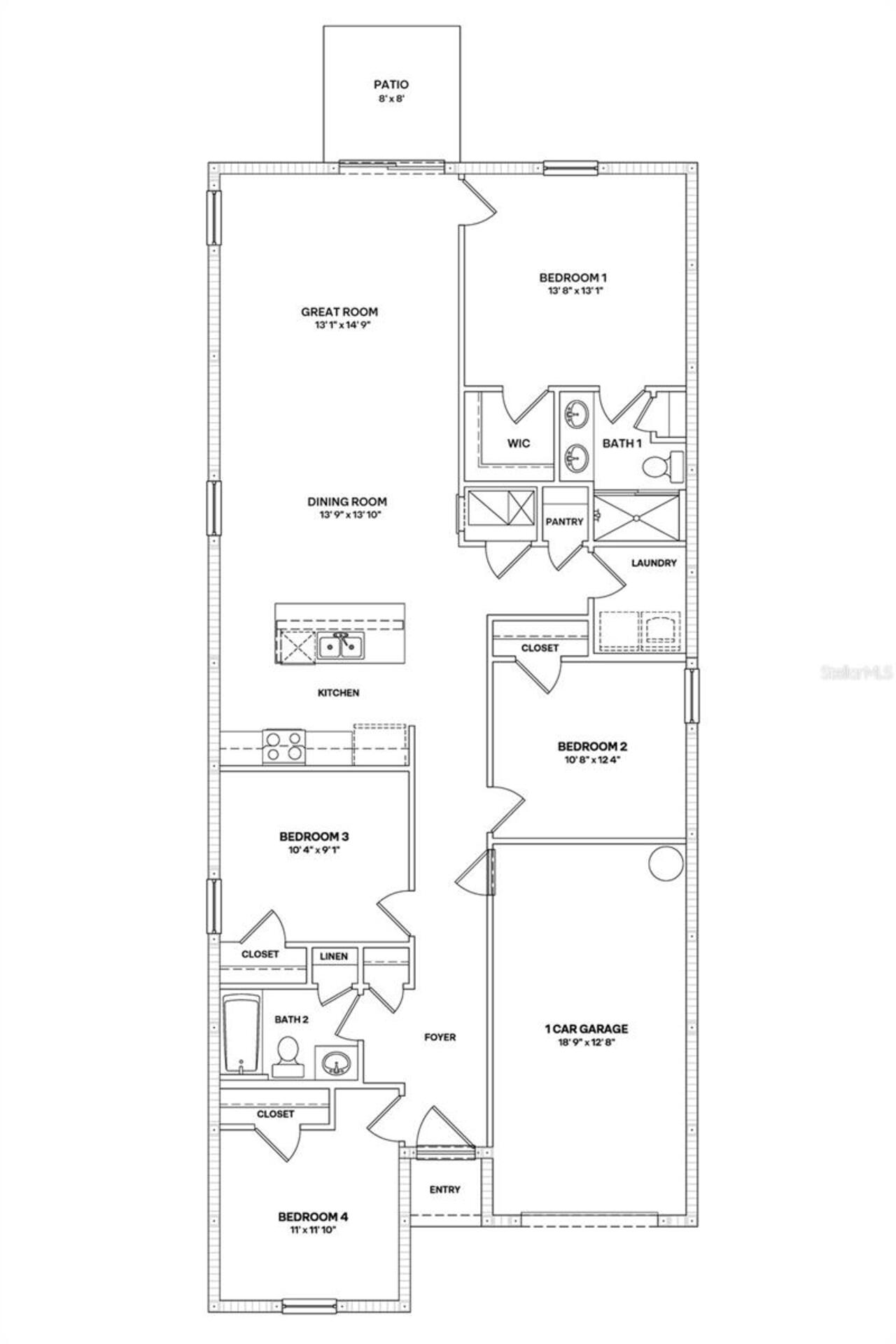
One or more photo(s) has been virtually staged. Under Construction. The Cameron floorplan is a beautifully designed single-story home that blends modern style with everyday functionality. This home offers comfort, efficiency, and versatility for today's lifestyles, featuring 4 bedrooms, 2 bathrooms, and 1,560 square feet of living space. As you step inside, you're welcomed by 3 bedrooms sharing a full bathroom with quartz countertops. The kitchen flows into the dining and living areas overlooking the outdoor patio. This open-concept living space is deal for both family time and entertaining. The kitchen showcases sleek quartz countertops, a large center island, and stainless-steel appliances. The Owner's Suite is placed in the rear of the home for added privacy and features a walk-in closet and ensuite bathroom with a double vanity sink and quartz countertops. With its modern finishes, thoughtful layout, and stylish touches throughout, the Cameron is the perfect place to call home. The Cameron is complete with a state-of-the-art smart home system that keeps you connected to your home at all times. Pictures, photographs, colors, features, and sizes are for illustration purposes only and will vary from the homes as built. Home and community information including pricing, included features, terms, availability and amenities are subjext to change and prior sale at any time without notice or obligation. CRC057592.
Property Details
Additional Information
Additional Lease Restrictions
Per HOA Guidelines
Additional Parcels YN
false
Appliances
Dishwasher, Microwave, Range
Approval Process
Per HOA Guidelines
Association Approval Required YN
1
Association Email
bthomas@accessdifference.com
Association Fee
51.2
Association Fee Frequency
Monthly
Association Fee Requirement
Required
Association YN
true
Attached Garage YN
true
Available For Lease YN
1
Bathrooms Total Integer
2
Builder License Number
CRC057592
Builder Model
Cameron
Builder Name
DR Horton INC
Building Area Source
Builder
Building Area Total
1560
Building Area Total Srch SqM
144.93
Building Area Units
Square Feet
Calculated List Price By Calculated SqFt
168.58
Carport YN
false
Construction Materials
Block
Cooling
Central Air
Country
US
Cumulative Days On Market
54
Current Price
262990.00
Direction Faces
Northwest
Fireplace YN
false
Flood Zone Code
x
Flooring
Carpet, Luxury Vinyl
Foundation Details
Slab
Furnished
Unfurnished
Garage Spaces
1
Garage YN
true
Heating
Electric, Heat Pump
High School
West Port High School
Home Warranty YN
true
Interior Features
Open Floorplan
Internet Address Display YN
true
Internet Automated Valuation Display YN
true
Internet Consumer Comment YN
false
Internet Entire Listing Display YN
true
Laundry Features
Laundry Room
Lease Restrictions YN
1
Levels
One
List AOR
Ocala - Marion
Living Area Meters
144.93
Living Area Source
Builder
Living Area Units
Square Feet
Lot Size Acres
0.1
Lot Size Square Feet
4400
Lot Size Square Meters
409
Middle Or Junior School
Liberty Middle School
Minimum Lease
7 Months
Modification Timestamp
2026-05-06T15:39:11.780Z
Monthly HOA Amount
51.20
New Construction YN
true
Occupant Type
Vacant
Other Equipment
Irrigation Equipment
Ownership
Fee Simple
Parcel Number
35521-01-007
Permit Number
BLD25-2367
Pet Restrictions
Per HOA Guidelines
Pets Allowed
Yes
Pool Private YN
false
Previous List Price
264990
Price Change Timestamp
2026-05-06T15:38:09.000Z
Projected Completion Date
2026-04-25T00:00:00.000
Property Condition
Under Construction
Public Survey Range
21
Public Survey Section
10
RATIO Current Price By Calculated SqFt
168.58
Road Surface Type
Asphalt
Roof
Shingle
Room Count
4
Senior Community YN
false
Sewer
Public Sewer
Showing Requirements
Contact Call Center
Status Change Timestamp
2026-03-13T12:13:29.000Z
Tax Block
-
Tax Book Number
016/196
Tax Legal Description
SEC 10 TWP 16 RGE 21 PLAT BOOK 016 PAGE 196 WINDING OAKS RESIDENTIAL PHASE 2 LOT 7
Tax Lot
7
Tax Year
2025
Total Acreage
0 to less than 1/4
Total Annual Fees
614.40
Total Monthly Fees
51.20
Township
16
Universal Property Id
US-12083-N-3552101007-R-N
Unparsed Address
7725 SW 46TH CT
Utilities
Other
Water Source
Public
Waterfront YN
false
Zoning
PUD
Neighborhood Map
Popup

Property Photos
Listing Photo
Listing Photo
Listing Photo
Listing Photo
Listing Photo
Listing Photo
Listing Photo
Listing Photo
Listing Photo
Listing Photo
Listing Photo
Listing Photo
Listing Photo
Listing Photo
Listing Photo
Listing Photo
Listing Photo
Listing Photo
Listing Photo
Listing Photo
Listing Photo
Listing Photo
Listing Photo
Listing Photo
Listing Photo
Listing Photo
Listing Photo
Listing Photo
Listing Photo
Listing Photo
Listing Photo
Listing Photo
Listing Photo
Listing Photo
Listing Photo
Listing Photo
Listing Photo
Listing Photo
Listing Photo
Listing Photo

MLS #MFROM720680 Listing courtesy of Dr Horton Realty Of West Central Florida provided by Stellar MLS.

Similar Listings

$237,500
16789 Sw 62nd Street
Ocala
4BR/2BA
| Pending
$239,000
2400 Ne 37th Street
Ocala
4BR/2BA
| Pending
$239,900
16710 Sw 29th Terrace Road
Ocala
4BR/2BA
| Pending
$244,900
11625 Nw 20th Street
Ocala
4BR/2BA
| Active



All listing information is deemed reliable but not guaranteed and should be independently verified through personal inspection by appropriate professionals. Listings displayed on this website may be subject to prior sale or removal from sale; availability of any listing should always be independent verified. Listing information is provided for consumer personal, non-commercial use, solely to identify potential properties for potential purchase; all other use is strictly prohibited and may violate relevant federal and state law. The source of the listing data is as follows: Stellar MLS (updated 5/12/26 12:13 PM) |

Listing Search



Translate Tool

Featured Listings
Dunedin Real Estate
$889,000
3 BED
2 BATH
Location, Lifestyle and the Dunedin Vibe…Perfectly positioned in the highly sought-after coastal town of Dunedin and loc... Read More
Orlando Real Estate
$900,000
4 BED
3 BATH
Experience refined Florida living in this impeccably updated single-story residence, ideally situated within one of Orla... Read More
Tampa Real Estate
$1,039,990
4 BED
2 BATH
Exceptional Ballast Point living awaits in this beautiful two-story traditional Craftsman just moments from iconic Baysh... Read More
Windermere Real Estate
$1,120,000
6 BED
4 BATH
One or more photo(s) has been virtually staged. Set within the highly sought-after Windermere Isle community, this excep... Read More
Oldsmar Real Estate
$1,200,000
3 BED
2 BATH
Welcome to Oldsmar, the highly desirable Tampa Bay suburb offering a perfect blend of small-town charm, top-rated school... Read More
Safety Harbor Real Estate
$1,000,000
4 BED
2 BATH
Welcome to a beautifully reimagined home in the highly sought-after La Forest at Green Springs, tucked away on a quiet c... Read More
Sarasota Real Estate
$830,000
4 BED
2 BATH
Tucked away at the end of a quiet dead-end street on 1.3 lushly landscaped acres, this private Sarasota retreat feels wo... Read More
Dunedin Real Estate
$1,095,000
2 BED
3 BATH
Key West Style...Custom with Character…Immaculate Renovated Pool Home that truly has it all, with resort-style outdoor l... Read More
Ormond Beach Real Estate
$999,999
5 BED
6 BATH
One or more photo(s) has been virtually staged. Splendor in the woods! Traverse the terrain, follow the signs and you wi... Read More
St Petersburg Real Estate
$1,010,100
3 BED
3 BATH
Discover modern luxury in the heart of St. Petersburg with Onyx+East’s newest townhome community, located in the charmin... Read More
Contact Sandra Pardo

407-990-2746

Wendy Morris LLC

Licensed in the State of Florida
BK 3146762
16797 Broadwater Avenue
Winter Garden, Florida 34787

Your privacy is our utmost concern. We will never sell your personal information. Privacy Policy
©2026 sandrapardohomes.com - all rights reserved. | Site Map