407-990-2746
Menu

756 Bowman Terrace, Port Charlotte, FL

NEXT
PREV
$357,000

($215/sqft)

List Status: Active
756 Bowman Terrace
Port Charlotte, FL 33953


3 beds
2 baths
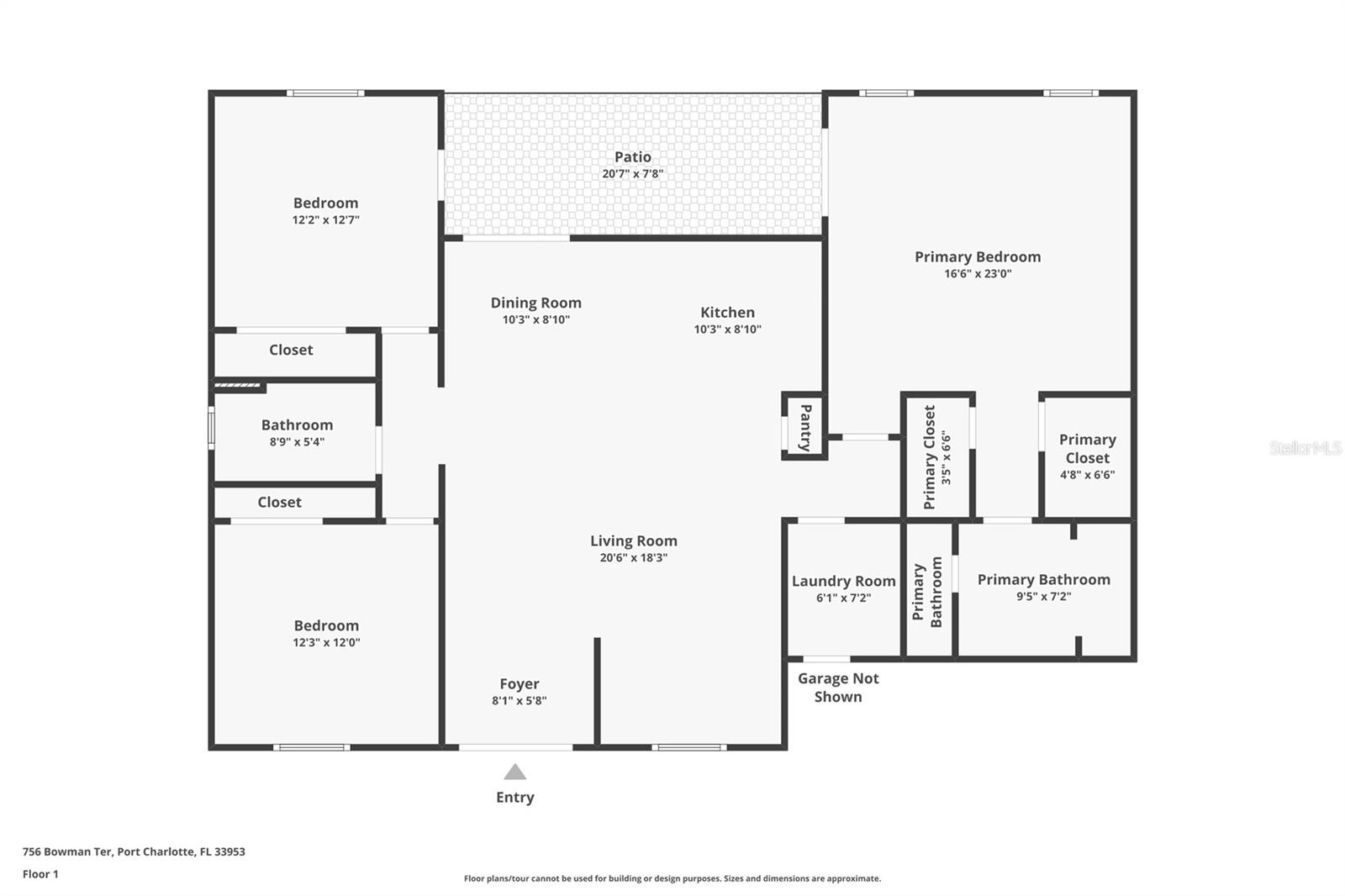
1660 living sqft
Top Features
  • Frontage: Canal Front
  • Subdivision: Port Charlotte Sec 029
  • Built in  2025
  • Single Family Residence
Description
One or more photo(s) has been virtually staged. SELLER FINANCING AVAILABLE!!!Welcome to YOUR FOREVER HOME OR PERFECT AIRBNB WITHOUT RENTAL RESTRICTIONS to this Brand New Luxury 2024 All Completed Waterfront mansion that boasts 2,292 sf UNDER ROOF and features stunning views of the water from EVERY ROOM! NOT IN FLOOD ZONE! NO HOA! NO CDD! NO RENTAL RESTRICTION! MOVE IN READY! NO HURRICANE DAMAGE! NO FLOOD DAMAGE! Complete hurricane protection with HURRICANE RESISTANT all doors and all windows and hurricane resistant garage door 30,000$ upgrade!! Upon entering YOUR PRIVATE OASIA you'll be met with spacious and open layout filled with natural light. The tiered ceiling detail with gold accent adds a touch of grandeur, while the stunning porcelain all throughout flooring including all the rooms and all the bathrooms leading you to your beautiful outdoor living with spacious lanai and beautiful fresh water canal that you can enjoy fishing, paddle boarding, kayaking in your own backyard! The modern kitchen is equipped with high-end appliances, custom cabinetry, and a stylish backsplash. The generously sized bedrooms and well-appointed bathrooms are designed for glamour, comfort and convenience, making this residence an ideal sanctuary for both relaxation and entertainment. Completely UPGRADED including Complete hurricane protection with HURRICANE RESISTANT all doors and all windows and hurricane resistant garage door 30,000$ upgrade, Complete Central Vacuum system 10,000$ upgrade, 10 feet tall ceilings throughout with tray ceilings in living room and master suite, mirrored tall closet doors, upgraded designed double front door, his and her closets in the master bathroom, all upgraded tiled bathrooms with high end granite counter tops throughout this beauty, spacious laundry room with separate sink, garage has beautiful epoxy floors , garage door opener and side door for your convenience, beautifully landscaped front and backyards just to name few! Must see to believe! Enjo
Property Details
Additional Information
Additional Parcels YN
false
Appliances
Convection Oven, Dishwasher, Microwave, Refrigerator
Association YN
false
Attached Garage YN
true
Available For Lease YN
1
Bathrooms Total Integer
2
Building Area Source
Builder
Building Area Total
2292
Building Area Total Srch SqM
212.93
Building Area Units
Square Feet
Calculated List Price By Calculated SqFt
215.06
Carport YN
false
Construction Materials
Block
Cooling
Central Air
Country
US
Cumulative Days On Market
716
Current Price
357000.00
Direction Faces
Southwest
Exterior Features
Lighting, Other
Fireplace YN
false
Flood Zone Code
X500
Flooring
Tile
Foundation Details
Block
Furnished
Unfurnished
Garage Spaces
2
Garage YN
true
Heating
Central
Homestead YN
1
Interior Features
Ceiling Fans(s), Central Vaccum, High Ceilings, Open Floorplan
Internet Address Display YN
true
Internet Automated Valuation Display YN
true
Internet Consumer Comment YN
true
Internet Entire Listing Display YN
true
Laundry Features
Laundry Room
Levels
One
List AOR
Pinellas Suncoast
Living Area Meters
154.22
Living Area Source
Builder
Living Area Units
Square Feet
Lot Size Acres
0.23
Lot Size Dimensions
80x125
Lot Size Square Feet
10000
Lot Size Square Meters
929
Minimum Lease
No Minimum
Modification Timestamp
2025-10-28T00:13:08.812Z
New Construction YN
true
Occupant Type
Vacant
Ownership
Fee Simple
Parcel Number
402111106009
Pets Allowed
Yes
Pool Private YN
false
Postal Code Plus 4
2133
Previous List Price
358000
Price Change Timestamp
2025-10-03T16:50:48.000Z
Property Condition
Completed
Public Survey Range
21E
Public Survey Section
11
RATIO Current Price By Calculated SqFt
215.06
Realtor Info
As-Is
Road Surface Type
Asphalt
Roof
Shingle
Room Count
7
SW Subdiv Community Name
Port Charlotte
Senior Community YN
false
Sewer
Septic Tank
Showing Requirements
Lock Box Coded, ShowingTime
Status Change Timestamp
2024-04-10T14:24:18.000Z
Tax Annual Amount
597.24
Tax Block
2434
Tax Book Number
5-22
Tax Legal Description
PCH 029 2434 0025 PORT CHARLOTTE SEC29 BLK2434 LT25 359/443 881/2066 971/1422 1416/2102 4748/2051 4941/99 4977/1151
Tax Lot
25
Tax Year
2023
Total Acreage
0 to less than 1/4
Total Annual Fees
0.00
Total Monthly Fees
0.00
Township
40S
Universal Property Id
US-12015-N-402111106009-R-N
Unparsed Address
756 BOWMAN TER
Utilities
Private, Public
Water Access
Canal - Brackish
Water Access YN
1
Water Frontage Feet Canal Brackish
80
Water Source
Well
Water View
Canal
Water View YN
1
Waterfront Feet Total
80
Waterfront YN
true
Zoning
RSF3.5
Neighborhood Map
Popup

Property Photos
Listing Photo
Listing Photo
Listing Photo
Listing Photo
Listing Photo
Listing Photo
Listing Photo
Listing Photo
Listing Photo
Listing Photo
Listing Photo
Listing Photo
Listing Photo
Listing Photo
Listing Photo
Listing Photo
Listing Photo
Listing Photo
Listing Photo
Listing Photo
Listing Photo
Listing Photo
Listing Photo
Listing Photo
Listing Photo
Listing Photo
Listing Photo
Listing Photo
Listing Photo
Listing Photo
Listing Photo
Listing Photo
Listing Photo
Listing Photo
Listing Photo
Listing Photo
Listing Photo
Listing Photo
Listing Photo
Listing Photo
Listing Photo
Listing Photo
Listing Photo
Listing Photo
Listing Photo
Listing Photo
Listing Photo
Listing Photo
Listing Photo
Listing Photo
Listing Photo
Listing Photo
Listing Photo
Listing Photo
Listing Photo
Listing Photo
Listing Photo
Listing Photo
Listing Photo
Listing Photo
Listing Photo
Listing Photo
Listing Photo
Listing Photo
Listing Photo
Listing Photo
Listing Photo
Listing Photo
Listing Photo
Listing Photo
Listing Photo
Listing Photo
Listing Photo
Listing Photo
Listing Photo
Listing Photo
Listing Photo
Listing Photo
Listing Photo
Listing Photo
Listing Photo
Listing Photo
Listing Photo
Listing Photo
Listing Photo
Listing Photo
Listing Photo
Listing Photo
Listing Photo
Listing Photo
Listing Photo
Listing Photo
Listing Photo
Listing Photo
Listing Photo
Listing Photo
Listing Photo
Listing Photo
Listing Photo
Listing Photo
Listing Photo
Listing Photo
Listing Photo
Listing Photo
Listing Photo
Listing Photo
Listing Photo
Listing Photo
Listing Photo
Listing Photo
Listing Photo
Listing Photo
Listing Photo
Listing Photo
Listing Photo
Listing Photo
Listing Photo
Listing Photo
Listing Photo
Listing Photo
Listing Photo
Listing Photo
Listing Photo
Listing Photo
Listing Photo
Listing Photo
Listing Photo
Listing Photo
Listing Photo
Listing Photo
Listing Photo
Listing Photo
Listing Photo
Listing Photo
Listing Photo
Listing Photo
Listing Photo
Listing Photo
Listing Photo
Listing Photo
Listing Photo
Listing Photo
Listing Photo
Listing Photo
Listing Photo
Listing Photo
Listing Photo
Listing Photo
Listing Photo
Listing Photo
Listing Photo
Listing Photo
Listing Photo
Listing Photo
Listing Photo
Listing Photo
Listing Photo
Listing Photo
Listing Photo
Listing Photo
Listing Photo
Listing Photo
Listing Photo
Listing Photo
Listing Photo
Listing Photo
Listing Photo
Listing Photo
Listing Photo
Listing Photo
Listing Photo
Listing Photo
Listing Photo
Listing Photo
Listing Photo
Listing Photo
Listing Photo
Listing Photo
Listing Photo
Listing Photo
Listing Photo
Listing Photo
Listing Photo
Listing Photo
Listing Photo
Listing Photo
Listing Photo
Listing Photo
Listing Photo
Listing Photo
Listing Photo
Listing Photo
Listing Photo
Listing Photo
Listing Photo
Listing Photo
Listing Photo
Listing Photo
Listing Photo
Listing Photo

MLS #MFRU8238223 Listing courtesy of Keller Williams St Pete Realty provided by Stellar MLS.

Similar Listings

$324,900
20241 Lorette Avenue
Port Charlotte
3BR/2BA
| Active
$324,999
23232 Peachland Boulevard
Port Charlotte
3BR/2BA
| Pending
$325,000
22285 Walton Avenue
Port Charlotte
3BR/2BA
| Active
$325,000
18379 Edgewater Drive
Port Charlotte
3BR/2BA
| Pending



All listing information is deemed reliable but not guaranteed and should be independently verified through personal inspection by appropriate professionals. Listings displayed on this website may be subject to prior sale or removal from sale; availability of any listing should always be independent verified. Listing information is provided for consumer personal, non-commercial use, solely to identify potential properties for potential purchase; all other use is strictly prohibited and may violate relevant federal and state law. The source of the listing data is as follows: Stellar MLS (updated 3/19/26 3:28 AM) |

Listing Search



Translate Tool

Featured Listings
St Petersburg Real Estate
$1,350,000
4 BED
3 BATH
In the beloved St Pete neighborhood of Historic Kenwood, this is custom-reimagined POOL home has been refined with moder... Read More
Clearwater Real Estate
$1,179,500
2 BED
2 BATH
LUXURY, LIGHT & LOCATION: YOUR DREAM CLEARWATER CONDO Welcome to an extraordinary, fully updated beachside residence in ... Read More
Bartow Real Estate
$849,900
3 BED
2 BATH
Country with Class or County Chic—either way, this custom 2017 home delivers both style and serenity on 5.43 acres just ... Read More
Spring Hill Real Estate
$920,000
4 BED
3 BATH
Private Gated Estate on 2.59 Acres with Resort-Style Outdoor Living Welcome to your own private retreat—situated on 2.59... Read More
Orlando Real Estate
$1,099,000
5 BED
5 BATH
LIKE NEW WITH LUXURY UPGRADES IN EAGLE CREEK! Welcome to 10151 Henbury Street, ideally positioned within Lake Nona’s pre... Read More
Land O Lakes Real Estate
$815,000
4 BED
5 BATH
Located in the gated community of Pristine Lake Preserve, this beautifully maintained Biscayne II model from Homes by We... Read More
Sarasota Real Estate
$849,654
5 BED
3 BATH
Under Construction. What's Special: Corner Lot | Cul-de-Sac Lot | Game Room | New Floor Plan. New Construction - July Co... Read More
Sarasota Real Estate
$886,990
5 BED
4 BATH
Under Construction. New and exciting, this expansive 5-bedroom, 4.5-bath residence offers 3,483 square feet of thoughtfu... Read More
Dunedin Real Estate
$889,000
3 BED
2 BATH
Welcome to San Ruffino Phase II, an elegant three-story luxury townhome offering 3 bedrooms, 2.5 bathrooms, an in-home e... Read More
Sarasota Real Estate
$1,095,000
3 BED
3 BATH
Stunning and rare opportunity in Lido Towers on Lido Key. This completely renovated 3-bedroom, 3-bath residence offers a... Read More
Contact Sandra Pardo

407-990-2746

Wendy Morris LLC

Licensed in the State of Florida
BK 3146762
16797 Broadwater Avenue
Winter Garden, Florida 34787

Your privacy is our utmost concern. We will never sell your personal information. Privacy Policy
©2026 sandrapardohomes.com - all rights reserved. | Site Map