407-990-2746
Menu

732 Ensenada Drive, Orlando, FL

NEXT
PREV
$629,900

($177/sqft)

List Status: Pending
732 Ensenada Drive
Orlando, FL 32825


4 beds
2 baths
3552 living sqft
Top Features
  • View: Golf Course, Park/Greenbelt, Trees/Woods
  • Subdivision: Rio Pinar Estates
  • Built in  1969
  • Single Family Residence
Description
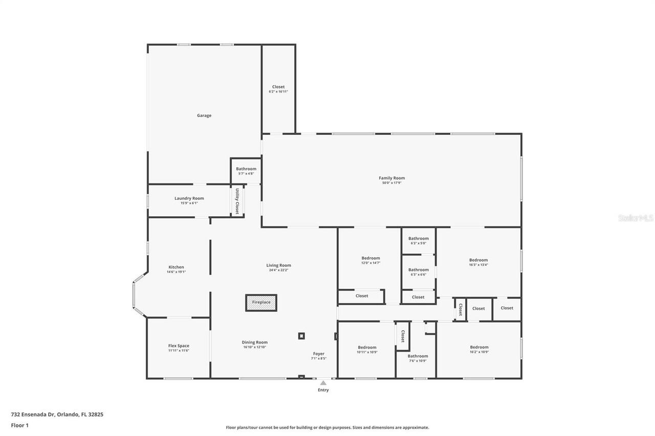
Under contract-accepting backup offers. Experience an extraordinary confluence of generous space, refined privacy, and effortless convenience in this elegant single-family sanctuary, serenely poised on a picturesque half-acre along the storied 7th fairway of the scenic Rio Pinar Golf Course. A gentle veil of mature, whispering forestry preserves enchanting vistas while ensuring discreet seclusion—mere minutes from vibrant Downtown Orlando and Orlando International Airport. Inside, a gracious, light-bathed plan showcases 4 serene bedrooms and 2.5 refined baths. A dignified front office/den sets a sophisticated tone, preceding an expansive living and dining salon anchored by an iconic central brick fireplace. The flexible, free-flowing layout invites effortless entertaining and everyday ease. At the rear, a grand bonus room—with polished full bar, classic pool table, and substantial storage—readily becomes a glamorous media suite, convivial game lounge, or elegant second living area. Outdoors, a sweeping, sunlit brick-paver terrace frames a lush, fully fenced backyard—perfect for alfresco soirées and carefree play—set against tranquil fairway panoramas. A long, welcoming front porch and thoughtfully curated, seasonally blooming landscaping elevate the home’s gracious curb appeal. Practical sophistication includes an oversized two-car garage with a robust 50 AMP outlet for RV use or EV charging (with adapter), plus an extended driveway for boat/RV parking. Modern efficiencies abound: solar (2022), dual HVAC systems, dual water heaters, and a 2018 roof. With no HOA—and optional Rio Pinar Civic Association membership ($100/year)—you’ll enjoy coveted flexibility. Country Club Privileges: Optional membership at the distinguished Rio Pinar Country Club unlocks a rich lifestyle portfolio, including a well-appointed fitness center, professional golf instruction, championship golf course play, refined fine dining, invigorating racquetball, and a calendar of curated social even
Property Details
Additional Information
Accessibility Features
Accessible Approach with Ramp, Accessible Bedroom, Accessible Common Area, Accessible Entrance, Accessible Kitchen, Accessible Central Living Area
Additional Lease Restrictions
13% TAX MUST BE COLLECTED ON ALL LEASES LESS THAN 7 MONTHS PER ORANGE COUNTY. PLEASE CHECK WITH ORANGE COUNTY REGARDING AIR BNB RULES AND REGULATIONS
Additional Parcels YN
false
Additional Rooms
Bonus Room, Breakfast Room Separate, Den/Library/Office, Family Room, Formal Dining Room Separate, Formal Living Room Separate, Inside Utility, Media Room, Storage Rooms
Alternate Key Folio Num
302236744006100
Amenities Additional Fees
RIO PINAR GOLF (407) 286-6920 info@riopinar.com 8600 El Prado Avenue, Orlando, FL 32825 Home Play Range Practice Racquet Academy Dine Events Memberships
Appliances
Dishwasher, Disposal, Electric Water Heater, Exhaust Fan, Ice Maker, Microwave, Other, Range, Range Hood, Refrigerator, Solar Hot Water
Architectural Style
Florida, Other, Ranch, Traditional
Association Amenities
Clubhouse, Fitness Center, Golf Course, Recreation Facilities, Tennis Court(s)
Association Fee
100
Association Fee Frequency
Annually
Association Fee Includes
Maintenance Grounds, Management, Recreational Facilities
Association Fee Requirement
Optional
Association YN
true
Attached Garage YN
true
Available For Lease YN
1
Bathrooms Total Integer
3
Builder License Number
RG0026951
Builder Name
Dix Construction/Development
Building Area Source
Public Records
Building Area Total
4363
Building Area Total Srch SqM
405.34
Building Area Units
Square Feet
Calculated List Price By Calculated SqFt
177.34
Carport YN
false
Community Features
Association Recreation - Owned, Clubhouse, Golf Carts OK, Golf, Restaurant, Tennis Court(s), Street Lights
Complex Community Name NCCB
RIO PINAR CTRY CLUB
Construction Materials
Block, Brick, Concrete
Contract Status
Appraisal, Financing, Inspections
Cooling
Central Air, Other, Zoned
Country
US
Cumulative Days On Market
322
Current Price
629900.00
Direction Faces
South
Disaster Mitigation
Above Flood Plain, Fire Resistant Exterior
Elementary School
Deerwood Elem (Orange Cty)
Expected Closing Date
2026-04-28T00:00:00.000
Exterior Features
Garden, Lighting, Other, Outdoor Grill, Permeable Paving, Sidewalk, Sliding Doors, Sprinkler Metered
Fencing
Fenced, Other
Fireplace Features
Family Room, Insert, Living Room, Wood Burning
Fireplace YN
true
Flood Zone Code
X
Flood Zone Date
2009-09-25
Flood Zone Panel
12095C0270F
Floor Number
1
Flooring
Ceramic Tile, Hardwood, Luxury Vinyl, Other, Wood
Foundation Details
Slab
Furnished
Negotiable
Future Land Use
001
Garage Dimensions
21x28
Garage Spaces
2
Garage YN
true
Green Energy Efficient
Water Heater, Windows
Green Energy Generation
Solar
Green Landscaping
Fl. Friendly/Native Landscape
Heating
Central, Electric, Exhaust Fan, Other
High School
Colonial High
Home Warranty YN
false
Interior Features
Accessibility Features, Attic Ventilator, Built-in Features, Ceiling Fans(s), Dry Bar, Eat-in Kitchen, Living Room/Dining Room Combo, Open Floorplan, Other, Primary Bedroom Main Floor, Solid Surface Counters, Solid Wood Cabinets, Split Bedroom, Stone Counters, Thermostat, Walk-In Closet(s), Window Treatments
Internet Address Display YN
true
Internet Automated Valuation Display YN
true
Internet Consumer Comment YN
true
Internet Entire Listing Display YN
true
Laundry Features
Electric Dryer Hookup, Inside, Laundry Room, Other, Washer Hookup
Levels
One
List AOR
Orlando Regional
Living Area Meters
329.99
Living Area Source
Public Records
Living Area Units
Square Feet
Lot Features
Cleared, Conservation Area, Corner Lot, In County, Landscaped, Level, On Golf Course, Oversized Lot, Sidewalk, Paved, Unincorporated
Lot Size Acres
0.51
Lot Size Dimensions
150x125x150x169
Lot Size Square Feet
22034
Lot Size Square Meters
2047
Max Pet Weight
200
Middle Or Junior School
Liberty Middle
Minimum Lease
7 Months
Modification Timestamp
2026-03-16T17:51:10.645Z
Month To Month Or Weekly YN
1
Monthly HOA Amount
8.33
New Construction YN
false
Number Of Lots
1
Number Of Pets
6
Occupant Type
Vacant
Other Equipment
Irrigation Equipment, Permeable Paving
Other Structures
Other
Ownership
Fee Simple
Parcel Number
36-22-30-7440-06-100
Patio And Porch Features
Front Porch, Other, Patio, Porch, Side Porch
Pet Restrictions
Number of pets are restricted per Orange County zoning regulations - please check with them
Pet Size
Extra Large (101+ Lbs.)
Pets Allowed
Cats OK, Dogs OK, Number Limit, Yes
Pool Private YN
false
Postal Code Plus 4
7912
Previous List Price
639900
Price Change Timestamp
2026-02-24T16:26:29.000Z
Property Attached YN
false
Property Condition
Completed
Property Description
Corner Unit
Public Survey Range
30
Public Survey Section
36
Purchase Contract Date
2026-03-13
RATIO Current Price By Calculated SqFt
177.34
Realtor Info
As-Is, Floor Plan Available, Other, Owner Motivated, See Attachments, Short Term Rental Allowed, Sign
Road Responsibility
Public Maintained Road
Road Surface Type
Asphalt, Paved
Roof
Built-Up, Membrane, Other, Shingle
Room Count
13
Security Features
Fire Alarm, Secured Garage/Parking, Security Lights, Security System, Security System Owned, Smoke Detector(s)
Senior Community YN
false
Sewer
Public Sewer
Showing Requirements
Sentri Lock Box, Appointment Only, See Remarks, ShowingTime
Spa YN
false
Status Change Timestamp
2026-03-16T17:50:59.000Z
Stories Total
1
Tax Annual Amount
6906.83
Tax Block
F
Tax Book Number
V-89
Tax Legal Description
RIO PINAR ESTATES V/89 LOT 10 BLK F of Rio Pinar Estates a subdivision according to the Map or Plat thereof as recorded in Plat Book V Page 89 and 90 of Public Records of Orange County, Florida, to-wit
Tax Lot
10
Tax Year
2024
Total Acreage
1/2 to less than 1
Total Annual Fees
100.00
Total Monthly Fees
8.33
Township
22
Unit Number YN
1
Universal Property Id
US-12095-N-362230744006100-R-N
Unparsed Address
732 ENSENADA DR
Utilities
Cable Available, Cable Connected, Electricity Available, Electricity Connected, Fiber Optics, Fire Hydrant, Natural Gas Available, Other, Phone Available, Public, Sewer Available, Sewer Connected, Water Available, Water Connected
Vegetation
Fruit Trees, Mature Landscaping, Oak Trees, Trees/Landscaped, Wooded
Water Source
Public, See Remarks
Waterfront YN
false
Window Features
Blinds, Display Window(s), Insulated Windows, Low-Emissivity Windows, Rods, Shades, Tinted Windows, Window Treatments
Zoning
R-1AA
Zoning Compatible YN
1
Neighborhood Map
Popup

Property Photos
Listing Photo
Listing Photo
Listing Photo
Listing Photo
Listing Photo
Listing Photo
Listing Photo
Listing Photo
Listing Photo
Listing Photo
Listing Photo
Listing Photo
Listing Photo
Listing Photo
Listing Photo
Listing Photo
Listing Photo
Listing Photo
Listing Photo
Listing Photo
Listing Photo
Listing Photo
Listing Photo
Listing Photo
Listing Photo
Listing Photo
Listing Photo
Listing Photo
Listing Photo
Listing Photo
Listing Photo
Listing Photo
Listing Photo
Listing Photo
Listing Photo
Listing Photo
Listing Photo
Listing Photo
Listing Photo
Listing Photo
Listing Photo
Listing Photo
Listing Photo
Listing Photo
Listing Photo
Listing Photo
Listing Photo
Listing Photo
Listing Photo
Listing Photo
Listing Photo
Listing Photo
Listing Photo
Listing Photo
Listing Photo
Listing Photo
Listing Photo
Listing Photo
Listing Photo
Listing Photo
Listing Photo
Listing Photo
Listing Photo
Listing Photo
Listing Photo
Listing Photo
Listing Photo
Listing Photo
Listing Photo
Listing Photo
Listing Photo
Listing Photo
Listing Photo
Listing Photo
Listing Photo
Listing Photo
Listing Photo
Listing Photo
Listing Photo
Listing Photo
Listing Photo
Listing Photo
Listing Photo
Listing Photo
Listing Photo
Listing Photo
Listing Photo
Listing Photo
Listing Photo
Listing Photo

MLS #MFRO6371844 Listing courtesy of Bear Team Real Estate provided by Stellar MLS.

Similar Listings

$569,000
7291 Hawksnest Boulevard
Orlando
4BR/2BA
| Active
$569,900
2500 Lauderdale Court
Orlando
4BR/2BA
| Active
$569,900
2014 Newman Street
Orlando
4BR/2BA
| Active
$570,000
4520 Lake Gem Circle
Orlando
4BR/2BA
| Active



All listing information is deemed reliable but not guaranteed and should be independently verified through personal inspection by appropriate professionals. Listings displayed on this website may be subject to prior sale or removal from sale; availability of any listing should always be independent verified. Listing information is provided for consumer personal, non-commercial use, solely to identify potential properties for potential purchase; all other use is strictly prohibited and may violate relevant federal and state law. The source of the listing data is as follows: Stellar MLS (updated 3/28/26 8:03 PM) |

Listing Search



Translate Tool

Featured Listings
St Petersburg Real Estate
$815,000
3 BED
2 BATH
Now is your chance! Buyer's financing fell through right before closing. Appraisal and inspection were both great! Set w... Read More
Orlando Real Estate
$889,000
4 BED
3 BATH
REMODELED, LOWEST PRICED HOME IN 24 HOUR GATED & GUARDED PHILLIPS LANDING COMMUNITY. SOLAR HEATED COVERED SCREENED IN PO... Read More
Sarasota Real Estate
$888,000
3 BED
3 BATH
Step into this one level Luxury Open Concept, Modern meets Mid Century Home on a Corner Lot. A stunning Single Family Ho... Read More
Maitland Real Estate
$995,000
3 BED
2 BATH
Rare opportunity to own a private 0.66-acre estate lot in Maitland with deeded direct Lake Sybelia access. 790 S Lake Sy... Read More
Windermere Real Estate
$945,000
4 BED
2 BATH
Pro Pics Coming Soon * Open House March 29, 2026 12pm to 4pm * Extremely rare opportunity to get a move in ready 4 Bedro... Read More
Englewood Real Estate
$1,350,000
3 BED
3 BATH
A truly RARE opportunity to own a fully reimagined home in one of the most sought-after locations on Manasota Key—comple... Read More
Sarasota Real Estate
$1,399,999
3 BED
4 BATH
Under contract-accepting backup offers. Welcome to 8968 Artisan Way, a stunning three-bedroom, five bath residence nestl... Read More
Palm Coast Real Estate
$1,225,000
4 BED
3 BATH
Simply elevated in design and highlighted by soaring 12-16 ft ceilings, this luxury NEW CONSTRUCTION HOME on an expansiv... Read More
Windermere Real Estate
$900,000
3 BED
2 BATH
FULLY RENOVATED DREAM HOME. This home is located right in the heart of the Town of Windermere. Welcome to 4 Chase Rd, Wi... Read More
St Pete Beach Real Estate
$850,000
2 BED
2 BATH
WAKE UP TO THE GULF EVERY SINGLE DAY !! PREMIER BEACHFRONT LUXURY LIVING AT BEAU MONDE OFFERING A 2ND FLOOR CONDO FEATUR... Read More
Contact Sandra Pardo

407-990-2746

Wendy Morris LLC

Licensed in the State of Florida
BK 3146762
16797 Broadwater Avenue
Winter Garden, Florida 34787

Your privacy is our utmost concern. We will never sell your personal information. Privacy Policy
©2026 sandrapardohomes.com - all rights reserved. | Site Map