407-990-2746
Menu

729 Marion Oaks Manor, Ocala, FL

NEXT
PREV
$346,000

($197/sqft)

List Status: Active
729 Marion Oaks Manor
Ocala, FL 34473


3 beds
3 baths
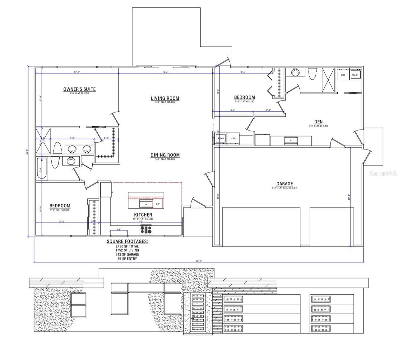
1752 living sqft
Top Features
  • Subdivision: Marion Oaks
  • Built in  2026
  • Single Family Residence
Description
Property Details
Additional Information
Additional Parcels YN
false
Additional Rooms
Interior In-Law Suite w/No Private Entry
Alternate Key Folio Num
2017325000
Appliances
Disposal
Association YN
false
Attached Garage YN
true
Available For Lease YN
1
Bathrooms Total Integer
3
Builder Model
Davao
Builder Name
Benaiah HoDme Builders
Building Area Source
Builder
Building Area Total
2430
Building Area Total Srch SqM
225.75
Building Area Units
Square Feet
Calculated List Price By Calculated SqFt
197.49
Carport YN
false
Construction Materials
Other
Cooling
Central Air
Country
US
Cumulative Days On Market
2
Current Price
346000.00
Direction Faces
North
Exterior Features
Private Yard
Fireplace YN
false
Flood Zone Code
X
Flood Zone Date
2008-08-28
Flood Zone Panel
12083C0715D
Flooring
Vinyl
Foundation Details
Other
Furnished
Unfurnished
Garage Spaces
3
Garage YN
true
Homestead YN
1
Interior Features
High Ceilings, Primary Bedroom Main Floor, Split Bedroom
Internet Address Display YN
true
Internet Automated Valuation Display YN
false
Internet Consumer Comment YN
false
Internet Entire Listing Display YN
true
Laundry Features
Other
Levels
One
List AOR
Orlando Regional
Living Area Meters
162.77
Living Area Source
Builder
Living Area Units
Square Feet
Lot Size Acres
0.34
Lot Size Square Feet
14810
Lot Size Square Meters
1376
Minimum Lease
8-12 Months
Modification Timestamp
2026-01-25T14:05:09.462Z
New Construction YN
true
Occupant Type
Vacant
Other Equipment
Private Yard
Ownership
Co-op
Parcel Number
8009-1247-19
Pool Private YN
false
Postal Code Plus 4
5409
Projected Completion Date
2026-05-07T00:00:00.000
Property Condition
Pre-Construction
Public Remarks
One or more photo(s) has been virtually staged. Pre-Construction. To be built. Brand New Home to be built. Build by Benaiah Home Builders! Be the first to call this beautiful newly built home your own! Thoughtfully designed with modern living in mind, this home will feature an open-concept layout, quality craftsmanship, and stylish finishes throughout. The home is built with commercial grade cold formed steel. This is a multigenerational home with a mother in law suite. New high school being built, new elementary being built perfect home. Brand-new construction, abundant natural light, Modern kitchen with quality cabinetry and finishes, Spacious bedrooms, Located in a desirable, growing neighborhood. Now is the perfect time to secure a home that’s fresh, modern, and built to last. Don’t miss the opportunity to own a brand-new home and watch it come to life from the ground up! Call me today! for details, timelines, and customization options.
Public Survey Range
21
Public Survey Section
20
RATIO Current Price By Calculated SqFt
197.49
Road Surface Type
Paved
Roof
Other
Room Count
15
Senior Community YN
false
Sewer
Septic Tank
Showing Requirements
Call Before Showing, Call Listing Agent, Other
Status Change Timestamp
2026-01-23T23:58:32.000Z
Tax Annual Amount
452
Tax Block
1247
Tax Book Number
O-164MARION
Tax Legal Description
SEC 20 TWP 17 RGE 21 PLAT BOOK O PAGE 164 MARION OAKS UNIT 9 BLK 1247 LOT 19
Tax Lot
19
Tax Year
2025
Total Acreage
1/4 to less than 1/2
Total Annual Fees
0.00
Total Monthly Fees
0.00
Township
17
Universal Property Id
US-12083-N-8009124719-R-N
Unparsed Address
729 MARION OAKS MNR
Utilities
Electricity Available
Water Source
Well
Waterfront YN
false
Zoning
R1
Neighborhood Map
Popup

Property Photos
Listing Photo
Listing Photo
Listing Photo
Listing Photo
Listing Photo
Listing Photo
Listing Photo
Listing Photo
Listing Photo
Listing Photo
Listing Photo
Listing Photo
Listing Photo
Listing Photo

MLS #MFRO6376296 Listing courtesy of Keller Williams Classic provided by Stellar MLS.

Similar Listings

$319,000
Ocala
3BR/3BA
| Active
$347,000
9480 Sw 94th Loop
Ocala
3BR/3BA
| Active
$347,900
5916 Nw 27th Place
Ocala
3BR/3BA
| Active
$349,900
490 Water Road
Ocala
3BR/3BA
| Active



All listing information is deemed reliable but not guaranteed and should be independently verified through personal inspection by appropriate professionals. Listings displayed on this website may be subject to prior sale or removal from sale; availability of any listing should always be independent verified. Listing information is provided for consumer personal, non-commercial use, solely to identify potential properties for potential purchase; all other use is strictly prohibited and may violate relevant federal and state law. The source of the listing data is as follows: Stellar MLS (updated 1/28/26 2:20 PM) |

Listing Search



Translate Tool

Featured Listings
Punta Gorda Real Estate
$1,350,000
4 BED
3 BATH
Bartow Real Estate
$885,000
3 BED
2 BATH
Punta Gorda Real Estate
$829,000
3 BED
2 BATH
Port Charlotte Real Estate
$1,350,000
4 BED
4 BATH
Indian Shores Real Estate
$1,220,000
3 BED
3 BATH
Dunnellon Real Estate
$879,000
4 BED
3 BATH
Spring Hill Real Estate
$849,900
3 BED
2 BATH
Bradenton Real Estate
$1,000,000
4 BED
4 BATH
Osprey Real Estate
$1,125,000
3 BED
3 BATH
Winter Garden Real Estate
$949,900
5 BED
3 BATH
Contact Sandra Pardo

407-990-2746

Wendy Morris LLC

Licensed in the State of Florida
BK 3146762
16797 Broadwater Avenue
Winter Garden, Florida 34787

Your privacy is our utmost concern. We will never sell your personal information. Privacy Policy
©2026 sandrapardohomes.com - all rights reserved. | Site Map