407-990-2746
Menu

7124 Wrenwood Circle, Tampa, FL

NEXT
PREV
$480,000

($258/sqft)

List Status: Active
7124 Wrenwood Circle
Tampa, FL 33617


4 beds
2 baths
1857 living sqft
Top Features
  • Subdivision: Woodfield Heights Unit 2
  • Built in  1968
  • Single Family Residence
Description
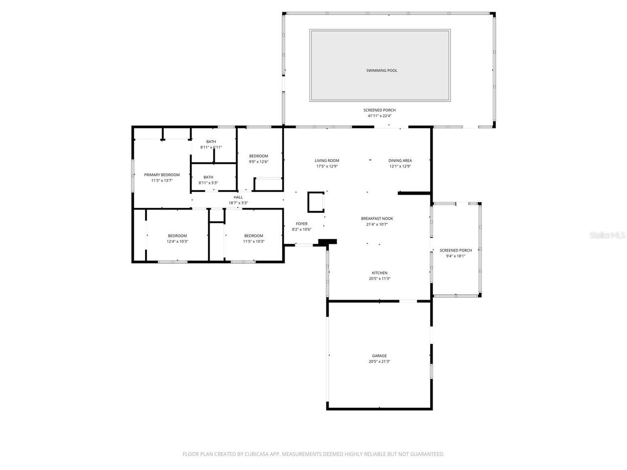
This charming family home sits proudly on a desirable corner lot in a peaceful, established neighborhood. It's the perfect place to put down roots and create lasting memories. Step inside to discover a spacious, thoughtfully designed layout ideal for everyday living and entertaining. The heart of the home is the stunning, large kitchen—fully equipped with a double oven, generous cooking range, pot filler, custom cabinets, sleek granite countertops, and abundant storage drawers and cabinets. The expansive living room and dining area provide plenty of room -offering comfortable lounging spaces for friends and family gatherings. No carpet anywhere—beautiful new luxury vinyl flooring flows throughout the entire home, complemented by elegant new tile in the kitchen and bathrooms. The primary suite and additional bathrooms have been completely remodeled with modern fixtures, tiled showers and tubs, quartz countertops, updated vanities (including a luxurious vanity area in the primary bath), and fresh new toilets. Major updates make this home truly move-in ready: hurricane-proof windows (2015), new roof (2018), pool and deck resurfaced (2021), entire property enclosed by a brand-new vinyl fence (2023), and a full home renovation completed in 2023. Highlights include: - Brand-new LG stainless steel appliances; - New LG washer and dryer; - All cast iron plumbing replaced; - Recessed lighting and new ceiling fans in every room; - Updated AC system with an extra return for improved airflow; - Fresh exterior paint (2024); - Professionally installed 10x12 TUFFshed (2025); - Large oak trees removed for better yard usability (2025); - New garage door system (2026). Outside, enjoy Florida-style living at its best: an extra-long driveway, two patios for relaxing or dining al fresco, a large pool, and a fully fenced backyard with ample space for play and privacy. The 12x10 shed provides excellent storage for toys, equipment, and outdoor gear. Pride of ownership shows in every detail—
Property Details
Additional Information
Additional Lease Restrictions
County Rules
Additional Parcels YN
false
Alternate Key Folio Num
0389980000
Appliances
Built-In Oven, Cooktop, Dishwasher, Electric Water Heater, Microwave, Refrigerator
Association YN
false
Attached Garage YN
true
Available For Lease YN
1
Bathrooms Total Integer
2
Building Area Source
Public Records
Building Area Total
2341
Building Area Total Srch SqM
217.49
Building Area Units
Square Feet
Calculated List Price By Calculated SqFt
258.48
Carport YN
false
Construction Materials
Block
Cooling
Central Air
Country
US
Cumulative Days On Market
22
Current Price
480000.00
Direction Faces
South
Exterior Features
Rain Gutters, Sidewalk, Storage
Fencing
Vinyl
Fireplace YN
false
Flood Zone Code
X
Flood Zone Date
2008-08-28
Flood Zone Panel
12057C0219H
Flooring
Luxury Vinyl
Foundation Details
Slab
Furnished
Unfurnished
Garage Spaces
2
Garage YN
true
Heating
Central
Homestead YN
1
Interior Features
Ceiling Fans(s), Open Floorplan, Split Bedroom, Stone Counters, Thermostat
Internet Address Display YN
true
Internet Automated Valuation Display YN
true
Internet Consumer Comment YN
true
Internet Entire Listing Display YN
true
Laundry Features
In Garage
Levels
One
List AOR
Orlando Regional
Living Area Meters
172.52
Living Area Source
Public Records
Living Area Units
Square Feet
Lot Features
Corner Lot
Lot Size Acres
0.23
Lot Size Dimensions
90x110
Lot Size Square Feet
9900
Lot Size Square Meters
920
Minimum Lease
No Minimum
Modification Timestamp
2026-02-21T19:06:27.184Z
New Construction YN
false
Occupant Type
Owner
Ownership
Fee Simple
Parcel Number
U-27-28-19-1KS-000003-00001.0
Patio And Porch Features
Enclosed, Rear Porch, Screened, Side Porch
Pet Restrictions
County Rules
Pool Private YN
true
Postal Code Plus 4
8462
Public Survey Range
19
Public Survey Section
27
RATIO Current Price By Calculated SqFt
258.48
Realtor Info
As-Is, Docs Available, Sign
Road Surface Type
Asphalt
Roof
Shingle
Room Count
8
Senior Community YN
false
Sewer
Septic Tank
Showing Requirements
Supra Lock Box, Appointment Only, Call Before Showing, Call Listing Agent
Spa YN
false
Status Change Timestamp
2026-01-30T14:19:43.000Z
Stories Total
1
Tax Annual Amount
4332.66
Tax Block
3
Tax Book Number
41-98
Tax Legal Description
WOODFIELD HEIGHTS UNIT NO 2 LOT 1 BLOCK 3
Tax Lot
1
Tax Year
2024
Total Acreage
0 to less than 1/4
Total Annual Fees
0.00
Total Monthly Fees
0.00
Township
28
Universal Property Id
US-12057-N-2728191000003000010-R-N
Unparsed Address
7124 WRENWOOD CIR
Utilities
BB/HS Internet Available, Cable Available, Electricity Connected, Water Connected
Water Source
Public
Waterfront YN
false
Zoning
RSC-6
Neighborhood Map
Popup

Property Photos
Listing Photo
Listing Photo
Listing Photo
Listing Photo
Listing Photo
Listing Photo
Listing Photo
Listing Photo
Listing Photo
Listing Photo
Listing Photo
Listing Photo
Listing Photo
Listing Photo
Listing Photo
Listing Photo
Listing Photo
Listing Photo
Listing Photo
Listing Photo
Listing Photo
Listing Photo
Listing Photo
Listing Photo
Listing Photo
Listing Photo
Listing Photo
Listing Photo
Listing Photo
Listing Photo
Listing Photo
Listing Photo
Listing Photo
Listing Photo
Listing Photo
Listing Photo
Listing Photo
Listing Photo
Listing Photo
Listing Photo
Listing Photo
Listing Photo
Listing Photo
Listing Photo
Listing Photo
Listing Photo
Listing Photo
Listing Photo
Listing Photo
Listing Photo
Listing Photo
Listing Photo
Listing Photo
Listing Photo
Listing Photo
Listing Photo
Listing Photo
Listing Photo
Listing Photo
Listing Photo
Listing Photo
Listing Photo
Listing Photo
Listing Photo
Listing Photo
Listing Photo
Listing Photo
Listing Photo
Listing Photo
Listing Photo
Listing Photo
Listing Photo
Listing Photo
Listing Photo
Listing Photo
Listing Photo
Listing Photo
Listing Photo
Listing Photo
Listing Photo
Listing Photo
Listing Photo
Listing Photo
Listing Photo
Listing Photo
Listing Photo
Listing Photo
Listing Photo
Listing Photo
Listing Photo
Listing Photo
Listing Photo
Listing Photo
Listing Photo
Listing Photo
Listing Photo
Listing Photo
Listing Photo
Listing Photo
Listing Photo
Listing Photo
Listing Photo

MLS #MFRW7882549 Listing courtesy of Lpt Realty, Llc provided by Stellar MLS.

Similar Listings

$434,000
20613 Whitewood Way
Tampa
4BR/2BA
| Active
$435,000
9613 Cypress Brook Road
Tampa
4BR/2BA
| Active
$435,000
4009 W Wallace Avenue
Tampa
4BR/2BA
| Active
$435,000
3307 N Morgan Street
Tampa
4BR/2BA
| Active



All listing information is deemed reliable but not guaranteed and should be independently verified through personal inspection by appropriate professionals. Listings displayed on this website may be subject to prior sale or removal from sale; availability of any listing should always be independent verified. Listing information is provided for consumer personal, non-commercial use, solely to identify potential properties for potential purchase; all other use is strictly prohibited and may violate relevant federal and state law. The source of the listing data is as follows: Stellar MLS (updated 3/18/26 1:26 AM) |

Listing Search



Translate Tool

Featured Listings
Williston Real Estate
$1,489,000
3 BED
2 BATH
NEW PRICE — PRIVATE GATED 28.21-Acre Luxury Estate Near World Equestrian Center | 2024 Custom Home-Pool. *Tucked behind ... Read More
Chuluota Real Estate
$915,000
5 BED
3 BATH
Welcome to your private retreat in one of Oviedo’s most desirable gated communities. Situated on a rare .60-acre homesit... Read More
University Park Real Estate
$997,500
4 BED
3 BATH
Step into a stunning, light-filled residence where elegance meets effortless Florida living. This beautifully designed h... Read More
Clearwater Real Estate
$895,500
4 BED
3 BATH
Under contract-accepting backup offers. Under Contract and Accepting Backup Offers. Beneath a canopy of mature oaks in t... Read More
Lutz Real Estate
$849,900
5 BED
3 BATH
Welcome to the beautiful corner-lot pool home offering elevated design, expansive living, and seamless entertaining in T... Read More
Venice Real Estate
$1,300,000
 
1 BATH
Set on a rare 10-acre expanse made up of two neighboring 5-acre lots, this outstanding equestrian property delivers both... Read More
Ocala Real Estate
$850,000
4 BED
3 BATH
Spacious 4 bedroom, 3.5 bath with study, nestled within the Country Club of Ocala and located on the 3rd hole of the gol... Read More
Cape Coral Real Estate
$1,375,000
4 BED
3 BATH
Welcome to 1600 Edith Esplanade, where breathtaking panoramic views of the Caloosahatchee River take center stage. This ... Read More
Cape Coral Real Estate
$869,000
3 BED
2 BATH
Boater’s Paradise Meets Resort Living — Best Priced in the Neighborhood! Step into your dream lifestyle with this TURNKE... Read More
Oldsmar Real Estate
$1,280,000
4 BED
3 BATH
One or more photo(s) has been virtually staged. Under Construction. This stunning new three-story residence by Danva Con... Read More
Contact Sandra Pardo

407-990-2746

Wendy Morris LLC

Licensed in the State of Florida
BK 3146762
16797 Broadwater Avenue
Winter Garden, Florida 34787

Your privacy is our utmost concern. We will never sell your personal information. Privacy Policy
©2026 sandrapardohomes.com - all rights reserved. | Site Map