407-990-2746
Menu

7018 Sw 44th Circle, Ocala, FL

NEXT
PREV
$515,220

($182/sqft)

List Status: Active
7018 Sw 44th Circle
Ocala, FL 34474


4 beds
3 baths
2836 living sqft
Top Features
  • Subdivision: Tartan Farms At Winding Oaks
  • Built in  2026
  • Single Family Residence
Description
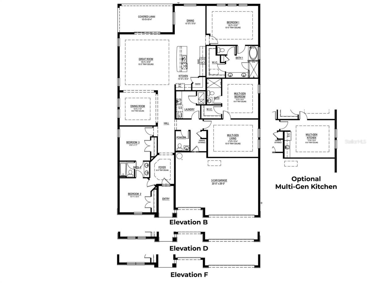
Under Construction. This one-story, all concrete block constructed home has a truly open concept plan, featuring a large great room, separate dining room, and well-appointed kitchen with dining area, all overlooking a covered lanai. This single story plan features two bedrooms at the front of the home which share a jack-and-jill full bathroom, as well as a multi-gen living space past the powder bath and laundry room. The Bedroom 1 which includes Bathroom 1 is located on the back of the home for privacy, offering beautiful views of the backyard. Pictures, photographs, colors, features, and sizes are for illustration purposes only and will vary from the homes as built. Home and community information including pricing, included features, terms, availability and amenities are subject to change and prior sale at any time without notice or obligation. CRC057592.
Property Details
Additional Information
Additional Lease Restrictions
Per HOA Guidelines
Additional Parcels YN
false
Appliances
Dishwasher, Microwave, Range
Approval Process
Per HOA Guidelines
Association Approval Required YN
1
Association Email
epoirier@accessdifference.com
Association Fee
180
Association Fee Frequency
Annually
Association Fee Requirement
Required
Association YN
true
Attached Garage YN
true
Available For Lease YN
1
Bathrooms Total Integer
4
Builder License Number
CRC057592
Builder Model
Camden
Builder Name
DR Horton INC
Building Area Source
Builder
Building Area Total
2836
Building Area Total Srch SqM
263.47
Building Area Units
Square Feet
CDDYN
1
Calculated List Price By Calculated SqFt
181.67
Carport YN
false
Construction Materials
Block
Cooling
Central Air
Country
US
Cumulative Days On Market
1
Current Price
515220.00
Direction Faces
Southeast
Fireplace YN
false
Flood Zone Code
x
Flooring
Carpet, Hardwood
Foundation Details
Slab
Furnished
Unfurnished
Garage Spaces
3
Garage YN
true
Heating
Electric, Heat Pump
High School
West Port High School
Home Warranty YN
true
Interior Features
Open Floorplan
Internet Address Display YN
true
Internet Automated Valuation Display YN
true
Internet Consumer Comment YN
false
Internet Entire Listing Display YN
true
Laundry Features
Laundry Room
Lease Restrictions YN
1
Levels
One
List AOR
Ocala - Marion
Living Area Meters
263.47
Living Area Source
Builder
Living Area Units
Square Feet
Lot Size Acres
0.26
Lot Size Square Feet
11385
Lot Size Square Meters
1058
Middle Or Junior School
Liberty Middle School
Minimum Lease
7 Months
Modification Timestamp
2026-03-28T10:52:41.990Z
Monthly HOA Amount
15.00
New Construction YN
true
Occupant Type
Vacant
Other Equipment
Irrigation Equipment
Ownership
Fee Simple
Parcel Number
35521-04-046
Permit Number
BLD25-2361
Pet Restrictions
Per HOA Guidelines
Pets Allowed
Yes
Pool Private YN
false
Projected Completion Date
2026-07-23T00:00:00.000
Property Condition
Under Construction
Public Survey Range
21
Public Survey Section
10
RATIO Current Price By Calculated SqFt
181.67
Road Surface Type
Asphalt
Roof
Shingle
Room Count
4
Senior Community YN
false
Sewer
Public Sewer
Showing Requirements
Contact Call Center
Status Change Timestamp
2026-03-27T13:50:46.000Z
Tax Block
-
Tax Book Number
017/001
Tax Legal Description
SEC 10 TWP 16 RGE 21 PLAT BOOK 017 PAGE 001 WINDING OAKS RESIDENTIAL PHASE 4A LOT 46
Tax Lot
46
Tax Other Annual Assessment Amount
3619
Tax Year
2025
Total Acreage
1/4 to less than 1/2
Total Annual Fees
180.00
Total Monthly Fees
15.00
Township
16
Universal Property Id
US-12083-N-3552104046-R-N
Unparsed Address
7018 SW 44TH CIR
Utilities
Other
Water Source
Public
Waterfront YN
false
Zoning
PUD
Neighborhood Map
Popup

Property Photos
Listing Photo
Listing Photo
Listing Photo
Listing Photo
Listing Photo
Listing Photo
Listing Photo
Listing Photo
Listing Photo
Listing Photo
Listing Photo
Listing Photo
Listing Photo
Listing Photo
Listing Photo
Listing Photo
Listing Photo
Listing Photo
Listing Photo
Listing Photo
Listing Photo
Listing Photo
Listing Photo
Listing Photo
Listing Photo
Listing Photo
Listing Photo
Listing Photo
Listing Photo
Listing Photo
Listing Photo
Listing Photo
Listing Photo
Listing Photo
Listing Photo
Listing Photo
Listing Photo
Listing Photo

MLS #MFROM721618 Listing courtesy of Dr Horton Realty Of West Central Florida provided by Stellar MLS.

Similar Listings

$463,990
7030 Sw 44th Circle
Ocala
4BR/3BA
| Active
$464,900
5626 Sw 50th Court
Ocala
4BR/3BA
| Active
$469,900
5198 Ne 19th Place
Ocala
4BR/3BA
| Active
$470,000
6115 Sw 74th Court
Ocala
4BR/3BA
| Pending



All listing information is deemed reliable but not guaranteed and should be independently verified through personal inspection by appropriate professionals. Listings displayed on this website may be subject to prior sale or removal from sale; availability of any listing should always be independent verified. Listing information is provided for consumer personal, non-commercial use, solely to identify potential properties for potential purchase; all other use is strictly prohibited and may violate relevant federal and state law. The source of the listing data is as follows: Stellar MLS (updated 4/20/26 5:45 PM) |

Listing Search



Translate Tool

Featured Listings
Orlando Real Estate
$1,100,000
5 BED
3 BATH
PRICE IMPROVEMENT! Welcome to Lake Sue Drive—a rare opportunity in Beeman Park, in the heart of the Audubon Park Garden ... Read More
The Villages Real Estate
$825,000
3 BED
3 BATH
Hello there. I’m the home that makes visitors stop the golf cart and say, “Wait… is that on the golf course?” I sit righ... Read More
Sarasota Real Estate
$1,375,000
2 BED
1 BATH
Wonderful opportunity to build your dream home in the heart of Sarasota. Found in the desired West of Trail area, this q... Read More
Tarpon Springs Real Estate
$1,395,000
3 BED
2 BATH
A Rare Gulf-Front Estate Defined by Elegance, Privacy, and Coastal Artistry Set along the pristine shoreline with direct... Read More
Cape Coral Real Estate
$1,395,000
5 BED
5 BATH
Welcome home to 2003 NE 10th Place in Cape Coral, a custom freshwater lakefront estate on Lake Meade that showcases true... Read More
Orlando Real Estate
$1,130,000
4 BED
2 BATH
Luxury home in Southwest Orlando’s premier gated golf community. This home has been completely reconstructed, the master... Read More
St Petersburg Real Estate
$1,499,000
3 BED
2 BATH
Welcome to waterfront living at its finest! You will notice the fine details as soon as you enter this property. Located... Read More
New Port Richey Real Estate
$1,399,999
4 BED
3 BATH
One or more photo(s) has been virtually staged. WOW...Price improvement! Welcome to your dream waterfront retreat! This ... Read More
Tarpon Springs Real Estate
$949,900
4 BED
4 BATH
Welcome to an exceptional luxury residence at 3343 Crescent Oaks Blvd, located within the prestigious double-gated Cresc... Read More
Sarasota Real Estate
$1,450,000
4 BED
3 BATH
One or more photo(s) has been virtually staged. Located behind the 24-hour manned gates of highly sought-after Laurel Oa... Read More
Contact Sandra Pardo

407-990-2746

Wendy Morris LLC

Licensed in the State of Florida
BK 3146762
16797 Broadwater Avenue
Winter Garden, Florida 34787

Your privacy is our utmost concern. We will never sell your personal information. Privacy Policy
©2026 sandrapardohomes.com - all rights reserved. | Site Map