407-990-2746
Menu

6900 9th N Avenue, St Petersburg, FL

NEXT
PREV
$435,000

($254/sqft)

List Status: Pending
6900 9th N Avenue
St Petersburg, FL 33710


3 beds
2 baths
1711 living sqft
Top Features
  • Subdivision: Eagle Crest
  • Built in  1946
  • Single Family Residence
Description
Property Details
Additional Information
Additional Lease Restrictions
Verify with the City of St Pete.
Additional Parcels YN
false
Additional Rooms
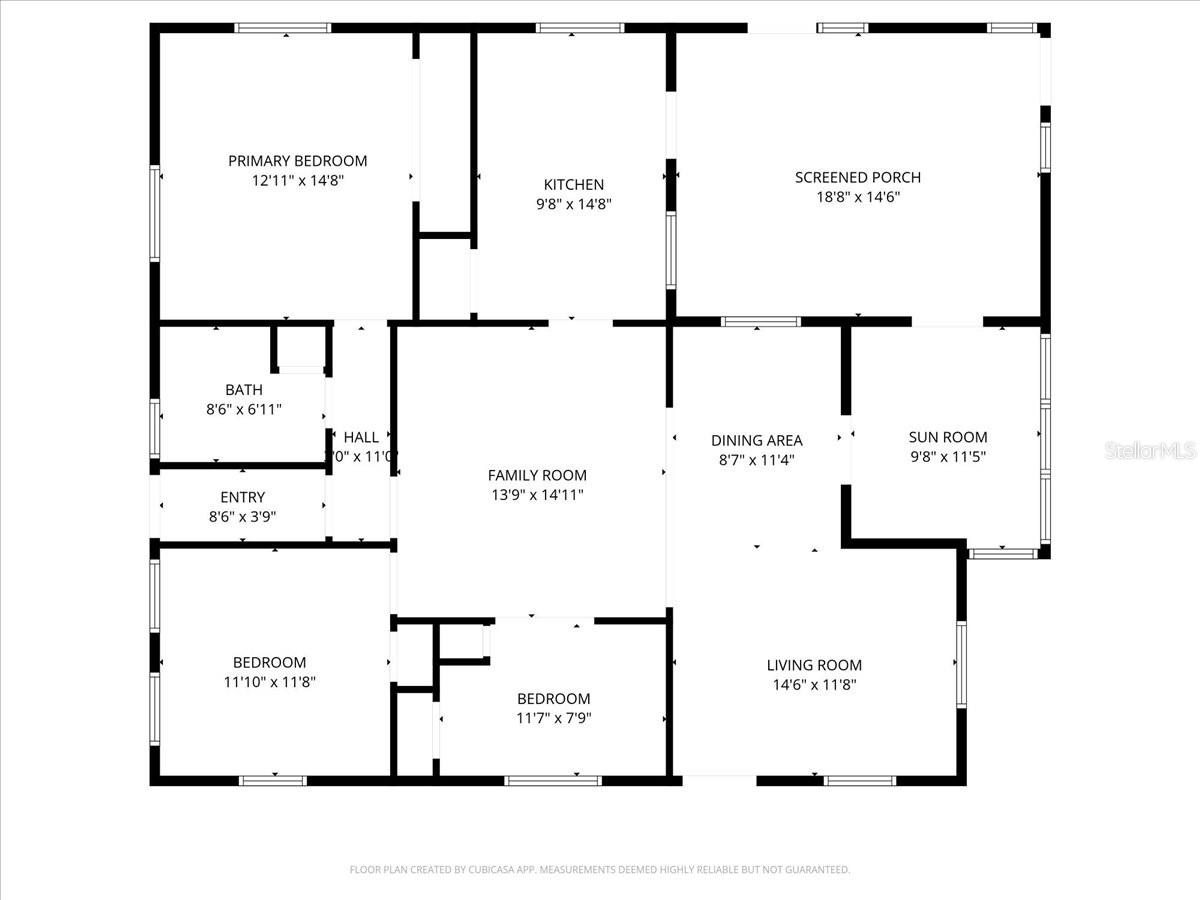
Bonus Room, Florida Room, Great Room, Inside Utility, Interior In-Law Suite w/Private Entry, Storage Rooms
Alternate Key Folio Num
173116236340280090
Appliances
Dishwasher, Dryer, Gas Water Heater, Range Hood, Refrigerator, Washer
Architectural Style
Ranch
Association YN
false
Attached Garage YN
false
Available For Lease YN
1
Bathrooms Total Integer
2
Building Area Source
Public Records
Building Area Total
2572
Building Area Total Srch SqM
238.95
Building Area Units
Square Feet
Calculated List Price By Calculated SqFt
254.24
Carport YN
false
Construction Materials
Block
Contract Status
Appraisal, Financing, Inspections
Cooling
Central Air
Country
US
Cumulative Days On Market
61
Current Price
435000.00
Direction Faces
North
Disaster Mitigation
Above Flood Plain
Elementary School
Azalea Elementary-PN
Expected Closing Date
2026-02-24T00:00:00.000
Exterior Features
Private Mailbox, Sidewalk
Fireplace YN
false
Flood Zone Code
X
Flood Zone Date
2021-08-24
Flood Zone Panel
12103C0213H
Flooring
Other, Tile, Wood
Foundation Details
Crawlspace, Slab
Furnished
Unfurnished
Garage Dimensions
23x22
Garage Spaces
2
Garage YN
true
Heating
Central
High School
Boca Ciega High-PN
Interior Features
Ceiling Fans(s), Living Room/Dining Room Combo, Open Floorplan, Split Bedroom, Thermostat
Internet Address Display YN
true
Internet Automated Valuation Display YN
true
Internet Consumer Comment YN
true
Internet Entire Listing Display YN
true
Laundry Features
Electric Dryer Hookup, Inside, Laundry Room, Washer Hookup
Levels
One
List AOR
Orlando Regional
Living Area Meters
158.96
Living Area Source
Public Records
Living Area Units
Square Feet
Lot Features
Corner Lot, City Limits, Level, Near Public Transit, Sidewalk, Paved
Lot Size Acres
0.25
Lot Size Dimensions
80x138
Lot Size Square Feet
11077
Lot Size Square Meters
1029
Middle Or Junior School
Azalea Middle-PN
Minimum Lease
No Minimum
Modification Timestamp
2026-01-25T15:00:09.013Z
New Construction YN
false
Occupant Type
Vacant
Ownership
Fee Simple
Parcel Number
17-31-16-23634-028-0090
Patio And Porch Features
Front Porch, Side Porch
Pets Allowed
Yes
Pool Private YN
false
Postal Code Plus 4
6144
Previous List Price
440000
Price Change Timestamp
2026-01-02T18:50:37.000Z
Property Condition
Completed
Public Remarks
Under contract-accepting backup offers. SELLER MOTIVATED & PRICE REDUCTION! Tons of space/lot to make it your own! Spacious Eagle Crest Charmer on an Oversized Lot — Minutes to Beaches, Downtown & Tyrone Amenities! Welcome to this wonderfully versatile 3-bedroom, 2-bath, ranch-style home in the highly desirable Eagle Crest neighborhood, offering an incredible combination of space, flexibility, and location. Built with solid 1946 block construction and situated on a corner lot with over 1/4 acre, this property delivers exceptional value with multiple bonus spaces, a detached oversized 2-car garage, and an expansive, fenced backyard with ample room for a future pool—perfect for family gatherings, entertaining, gardening, or simply relaxing. Step inside and you’ll immediately appreciate the home’s warmth and character, highlighted by freshly refinished oak and parquet wood flooring, charming archways, and unique vintage light fixtures and ceiling fans throughout. The open-concept living and dining room welcomes you in and flows seamlessly into an adequately sized kitchen offering plentiful cabinetry, generous prep space, and stainless steel appliances. The home’s thoughtful split-bedroom layout places the large primary bedroom (12' x 15') on one side for enhanced privacy, while the guest bedrooms are tucked comfortably on the opposite side of the home. In addition to the three bedrooms, the home includes two generous bonus rooms that offer endless versatility. One is bright and airy, making it perfect for a home office, reading room, or creative space. The second is a massive 19' x 14' enclosed area, approximately 285 sq ft, ideal for a movie room, game room with a pool table, art studio, gym, man cave, or glamorous lady's lair. Off to the east side of the home, you’ll find a spacious indoor laundry, utility, and flex room complete with a full bathroom, creating an excellent opportunity for a separate small studio-style efficiency or private guest retreat. The washer and dryer convey with the sale for added convenience. The property also benefits from newer windows installed in 2012, an HVAC system upgraded in 2020 per permit records, and gas on site that powers the water heater and central heating. The home is located in a no-flood-insurance-required area and sits near the evacuation route, offering additional peace of mind. The location is truly unbeatable—just minutes from the Tyrone Mall corridor, where you’ll find abundant dining, shopping, and grocery options. You are also only seven minutes to Treasure Island Beach, fourteen minutes to downtown St. Petersburg, and close to parks, medical facilities, and many of the Gulf Coast’s top-rated beaches. With approximately 1, 996 living sq ft and 2, 572 sq ft under roof, this home offers a blank canvas full of potential and possibilities. Whether you’re searching for a spacious primary residence or a flexible rental investment in one of St. Pete’s most convenient and sought-after neighborhoods, this Eagle Crest property checks all the boxes.
Public Survey Range
16
Public Survey Section
17
Purchase Contract Date
2026-01-24
RATIO Current Price By Calculated SqFt
254.24
Realtor Info
As-Is, Floor Plan Available, Owner Motivated, See Attachments, Sign
Road Responsibility
Public Maintained Road
Road Surface Type
Asphalt, Brick
Roof
Membrane, Shingle
Room Count
11
Senior Community YN
false
Sewer
Public Sewer
Showing Requirements
Appointment Only, Lock Box Electronic-CBS Code Required, ShowingTime
Status Change Timestamp
2026-01-25T14:59:14.000Z
Stories Total
1
Tax Annual Amount
5857
Tax Block
28
Tax Book Number
13-6
Tax Legal Description
EAGLE CREST BLK 28, LOT 9 & E 10FT OF LOT 8 (SEE S 18-31-16 MAP)
Tax Lot
90
Tax Year
2025
Total Acreage
1/4 to less than 1/2
Total Annual Fees
0.00
Total Monthly Fees
0.00
Township
31
Universal Property Id
US-12103-N-173116236340280090-R-N
Unparsed Address
6900 9TH AVE N
Utilities
BB/HS Internet Available, Cable Available, Electricity Connected, Sewer Connected, Water Connected
Vegetation
Mature Landscaping, Oak Trees, Trees/Landscaped
Water Source
Public
Waterfront YN
false
Neighborhood Map
Popup

Property Photos
Listing Photo
Listing Photo
Listing Photo
Listing Photo
Listing Photo
Listing Photo
Listing Photo
Listing Photo
Listing Photo
Listing Photo
Listing Photo
Listing Photo
Listing Photo
Listing Photo
Listing Photo
Listing Photo
Listing Photo
Listing Photo
Listing Photo
Listing Photo
Listing Photo
Listing Photo
Listing Photo
Listing Photo
Listing Photo
Listing Photo
Listing Photo
Listing Photo
Listing Photo
Listing Photo
Listing Photo
Listing Photo
Listing Photo
Listing Photo
Listing Photo
Listing Photo
Listing Photo
Listing Photo
Listing Photo
Listing Photo
Listing Photo
Listing Photo
Listing Photo
Listing Photo
Listing Photo
Listing Photo
Listing Photo
Listing Photo
Listing Photo
Listing Photo
Listing Photo
Listing Photo
Listing Photo
Listing Photo
Listing Photo
Listing Photo
Listing Photo
Listing Photo
Listing Photo
Listing Photo
Listing Photo
Listing Photo
Listing Photo
Listing Photo
Listing Photo
Listing Photo
Listing Photo
Listing Photo
Listing Photo
Listing Photo
Listing Photo
Listing Photo
Listing Photo
Listing Photo
Listing Photo
Listing Photo
Listing Photo
Listing Photo
Listing Photo
Listing Photo
Listing Photo
Listing Photo

MLS #MFRTB8448176 Listing courtesy of Lpt Realty, Llc provided by Stellar MLS.

Similar Listings

$394,000
5318 9th N Avenue
St Petersburg
3BR/2BA
| Active
$394,900
7726 33rd N Avenue
St Petersburg
3BR/2BA
| Active
$394,999
3531 73rd N Street
St Petersburg
3BR/2BA
| Pending
$395,000
1766 Scranton S Street
St Petersburg
3BR/2BA
| Active



All listing information is deemed reliable but not guaranteed and should be independently verified through personal inspection by appropriate professionals. Listings displayed on this website may be subject to prior sale or removal from sale; availability of any listing should always be independent verified. Listing information is provided for consumer personal, non-commercial use, solely to identify potential properties for potential purchase; all other use is strictly prohibited and may violate relevant federal and state law. The source of the listing data is as follows: Stellar MLS (updated 1/27/26 10:18 PM) |

Listing Search



Translate Tool

Featured Listings
Sarasota Real Estate
$849,000
3 BED
2 BATH
Tampa Real Estate
$819,900
4 BED
3 BATH
Winter Garden Real Estate
$1,099,000
5 BED
4 BATH
Bradenton Real Estate
$1,195,000
3 BED
2 BATH
Longboat Key Real Estate
$985,000
2 BED
2 BATH
St Petersburg Real Estate
$850,000
3 BED
2 BATH
Sarasota Real Estate
$1,008,000
5 BED
3 BATH
Ocala Real Estate
$864,900
3 BED
3 BATH
Sarasota Real Estate
$1,150,000
3 BED
3 BATH
Sarasota Real Estate
$995,000
2 BED
2 BATH
Contact Sandra Pardo

407-990-2746

Wendy Morris LLC

Licensed in the State of Florida
BK 3146762
16797 Broadwater Avenue
Winter Garden, Florida 34787

Your privacy is our utmost concern. We will never sell your personal information. Privacy Policy
©2026 sandrapardohomes.com - all rights reserved. | Site Map