407-990-2746
Menu

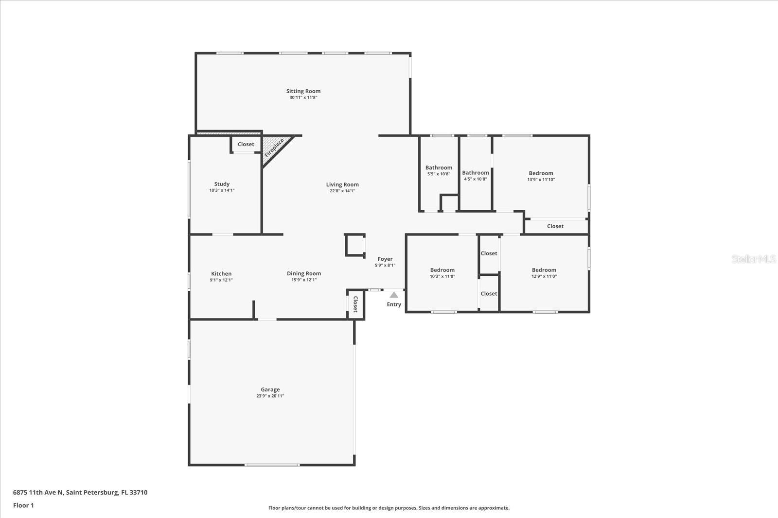
6875 11th N Avenue, St Petersburg, FL

NEXT
PREV
$579,900

($309/sqft)

List Status: Active
6875 11th N Avenue
St Petersburg, FL 33710


4 beds
2 baths
1874 living sqft
Top Features
  • Subdivision: Eagle Manor
  • Built in  1959
  • Single Family Residence
Description
ALL FURNISHINGS CONVEY, Flood-Safe Zone X, and FULLY Renovated- INSIDE and OUT, this thoughtfully updated 4-bed, 2-bath TURNKEY residence was given a facelift in 2023 and further enhanced with over $50,000 in 2024 improvements, blending mid-century charm with modern design. This home boasts a 2024 Roof, Windows, Exterior Doors, 2023 Kitchen and Bathrooms, 2023 HVAC, Water Heater, and Electrical Panel (200 amp). Step inside to a bright open plan featuring luxury vinyl plank flooring (2023), a warm natural-light kitchen with light-wood cabinetry, quartz countertops, and stainless appliances, and a spacious bonus room ideal for an office, play area, or lounge. The primary suite, also remodeled in 2023, offers a walk-in shower, designer finishes, and a custom-built closet system (2024). Outside, enjoy a fully fenced yard, new gutters, soffits, and fascia (2024), circular driveway, and attached two-car garage. Set on a quiet street five minutes from Treasure Island Beach and steps to the Pinellas Trail, this thoughtfully renovated 1959 home delivers Florida living at its best — character, comfort, and NO flood risk. Priced WAY BELOW 2024 appraisal.
Property Details
Additional Information
Additional Lease Restrictions
Buyer to confirm with the city
Additional Parcels YN
false
Appliances
Dishwasher, Dryer, Range Hood, Refrigerator, Washer, Water Softener
Association YN
false
Attached Garage YN
true
Available For Lease YN
1
Bathrooms Total Integer
2
Building Area Source
Public Records
Building Area Total
1874
Building Area Total Srch SqM
174.10
Building Area Units
Square Feet
Calculated List Price By Calculated SqFt
309.45
Carport YN
false
Construction Materials
Block
Cooling
Central Air
Country
US
Cumulative Days On Market
172
Current Price
579900.00
Direction Faces
South
Elementary School
Azalea Elementary-PN
Exterior Features
Rain Gutters
Fencing
Fenced
Fireplace Features
Electric, Non Wood Burning
Fireplace YN
true
Flood Zone Code
x
Flooring
Luxury Vinyl
Foundation Details
Slab
Garage Spaces
2
Garage YN
true
Heating
Central
High School
Boca Ciega High-PN
Homestead YN
1
Interior Features
Living Room/Dining Room Combo, Open Floorplan, Window Treatments
Internet Address Display YN
true
Internet Automated Valuation Display YN
false
Internet Consumer Comment YN
false
Internet Entire Listing Display YN
true
Laundry Features
In Garage
Levels
One
List AOR
Suncoast Tampa
Living Area Meters
174.10
Living Area Source
Public Records
Living Area Units
Square Feet
Lot Size Acres
0.17
Lot Size Dimensions
75x100
Lot Size Square Feet
7501
Lot Size Square Meters
697
Middle Or Junior School
Azalea Middle-PN
Minimum Lease
No Minimum
Modification Timestamp
2026-02-20T20:01:09.087Z
New Construction YN
false
Occupant Type
Vacant
Ownership
Fee Simple
Parcel Number
18-31-16-23652-003-0230
Pool Private YN
false
Postal Code Plus 4
6109
Previous List Price
584900
Price Change Timestamp
2026-02-13T19:42:29.000Z
Public Survey Range
16
Public Survey Section
18
RATIO Current Price By Calculated SqFt
309.45
Realtor Info
As-Is, Floor Plan Available, See Attachments
Road Surface Type
Asphalt
Roof
Shingle
Room Count
4
Senior Community YN
false
Sewer
Public Sewer
Showing Requirements
Supra Lock Box, ShowingTime
Status Change Timestamp
2026-02-01T14:47:04.000Z
Stories Total
1
Tax Annual Amount
9019.12
Tax Block
3
Tax Book Number
46-13
Tax Legal Description
EAGLE MANOR BLK 3, LOT 23
Tax Lot
23
Tax Year
2024
Total Acreage
0 to less than 1/4
Total Annual Fees
0.00
Total Monthly Fees
0.00
Township
31
Universal Property Id
US-12103-N-183116236520030230-R-N
Unparsed Address
6875 11TH AVE N
Utilities
Electricity Available
Water Source
Public
Waterfront YN
false
Neighborhood Map
Popup

Property Photos
Listing Photo
Listing Photo
Listing Photo
Listing Photo
Listing Photo
Listing Photo
Listing Photo
Listing Photo
Listing Photo
Listing Photo
Listing Photo
Listing Photo
Listing Photo
Listing Photo
Listing Photo
Listing Photo
Listing Photo
Listing Photo
Listing Photo
Listing Photo
Listing Photo
Listing Photo
Listing Photo
Listing Photo
Listing Photo
Listing Photo
Listing Photo
Listing Photo
Listing Photo
Listing Photo
Listing Photo
Listing Photo
Listing Photo
Listing Photo
Listing Photo
Listing Photo
Listing Photo
Listing Photo
Listing Photo
Listing Photo
Listing Photo
Listing Photo
Listing Photo
Listing Photo
Listing Photo
Listing Photo
Listing Photo
Listing Photo
Listing Photo
Listing Photo
Listing Photo
Listing Photo
Listing Photo
Listing Photo
Listing Photo
Listing Photo
Listing Photo
Listing Photo
Listing Photo
Listing Photo
Listing Photo
Listing Photo
Listing Photo
Listing Photo
Listing Photo
Listing Photo
Listing Photo
Listing Photo
Listing Photo
Listing Photo
Listing Photo
Listing Photo
Listing Photo
Listing Photo

MLS #MFRTB8387804 Listing courtesy of Compass Florida Llc provided by Stellar MLS.

Similar Listings

$525,000
6041 5th N Avenue
St Petersburg
4BR/2BA
| Active
$534,000
5564 63rd Way N
St Petersburg
4BR/2BA
| Active
$534,000
5564 N 63rd N Way
St Petersburg
4BR/2BA
| Active
$539,000
2644 42nd N Avenue
St Petersburg
4BR/2BA
| Active



All listing information is deemed reliable but not guaranteed and should be independently verified through personal inspection by appropriate professionals. Listings displayed on this website may be subject to prior sale or removal from sale; availability of any listing should always be independent verified. Listing information is provided for consumer personal, non-commercial use, solely to identify potential properties for potential purchase; all other use is strictly prohibited and may violate relevant federal and state law. The source of the listing data is as follows: Stellar MLS (updated 3/4/26 2:15 AM) |

Listing Search



Translate Tool

Featured Listings
Nokomis Real Estate
$949,000
3 BED
2 BATH
Step into elevated coastal living in this impeccably designed 3-bedroom, 2.5-bath plus an outside patio bathroom + den (... Read More
Minneola Real Estate
$824,480
3 BED
2 BATH
Del Webb at Minneola is a luxurious guard-gated 55+ active adult community offering new construction single-family homes... Read More
St Pete Beach Real Estate
$949,000
4 BED
2 BATH
This exceptional building lot places you just three homes from the powder-soft white sands and shimmering Gulf waters — ... Read More
Sarasota Real Estate
$829,000
5 BED
4 BATH
Discover the perfect blend of style and functionality in this exceptional waterfront residence. The ground floor feature... Read More
St Petersburg Real Estate
$959,000
4 BED
2 BATH
This masterful art piece of St Pete history includes deeded water access to the Boca Ciega Bay and is located on a priva... Read More
Clermont Real Estate
$937,540
4 BED
3 BATH
Welcome to Parkside Trails! Explore the charm of this premier Clermont location, offering exclusive amenities and quick ... Read More
North Venice Real Estate
$925,000
3 BED
3 BATH
WHERE SPACE, PRIVACY & ELEVATED LIVING COME TOGETHER. Welcome to the VENETO 2 BY NEAL SIGNATURE HOMES in Aria — a though... Read More
Dunnellon Real Estate
$1,100,000
4 BED
2 BATH
If you’ve been waiting for something SPECIAL, this is it! Welcome to your private hilltop retreat, where luxury meets wi... Read More
Debary Real Estate
$1,400,000
5 BED
4 BATH
An exceptional custom estate set on nearly 2 secluded acres, offering privacy, sophistication, and resort-style living. ... Read More
St Petersburg Real Estate
$1,175,000
3 BED
2 BATH
Waterfront perfection in the undisputed, world’s best neighborhood, Riviera Bay. Take a breath… because this one is spec... Read More
Contact Sandra Pardo

407-990-2746

Wendy Morris LLC

Licensed in the State of Florida
BK 3146762
16797 Broadwater Avenue
Winter Garden, Florida 34787

Your privacy is our utmost concern. We will never sell your personal information. Privacy Policy
©2026 sandrapardohomes.com - all rights reserved. | Site Map