407-990-2746
Menu

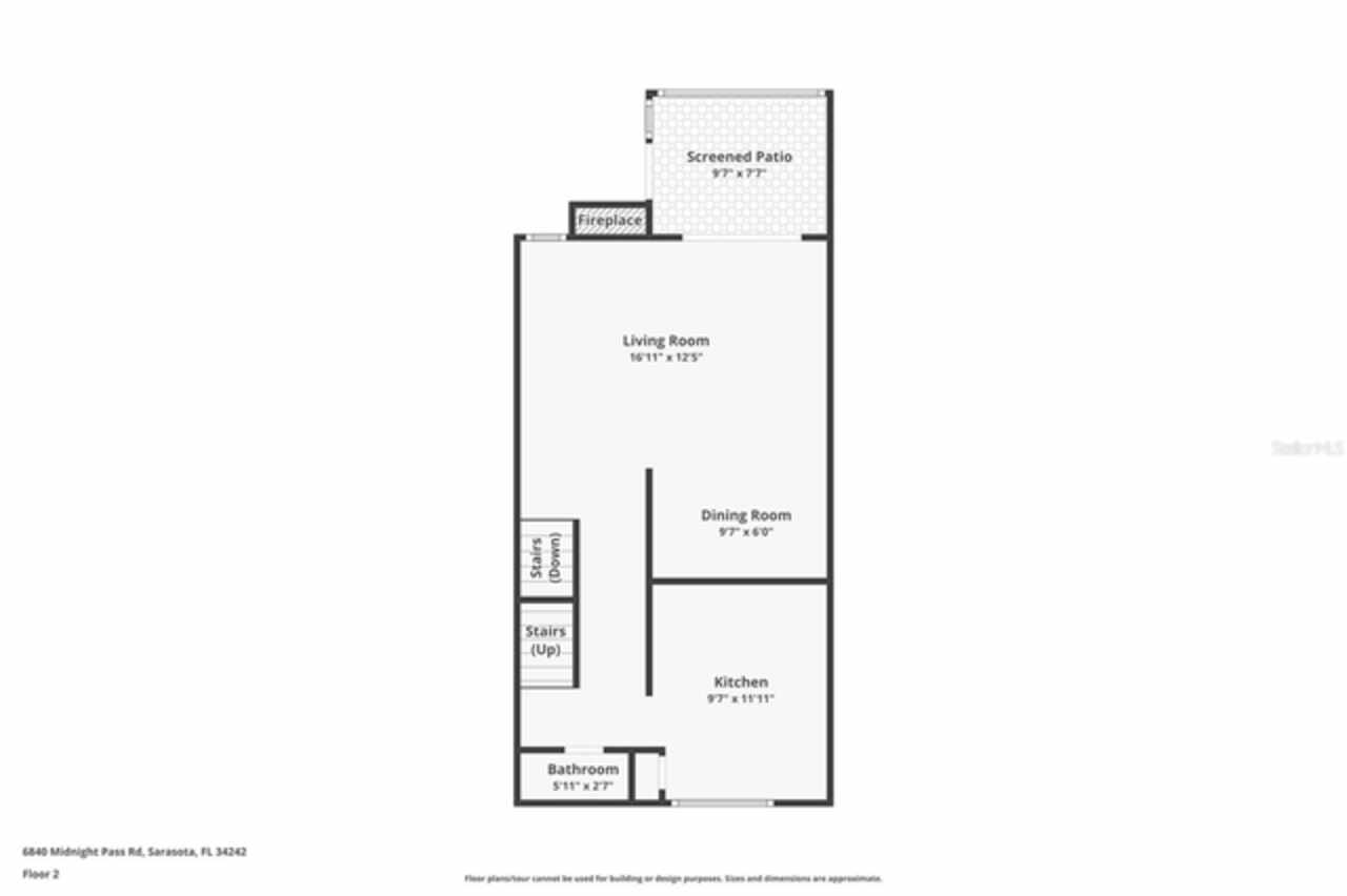
6840 Midnight Pass Road Unit: Unit: 6840, Sarasota, FL

NEXT
PREV
$769,000

($532/sqft)

List Status: Active
6840 Midnight Pass Road
Sarasota, FL 34242


3 beds
2 baths
1446 living sqft
Top Features
  • View: Pool
  • Subdivision: Midnight Sea
  • Built in  1981
  • Condominium
Description
Siesta Key Townhouse | $80K in Upgrades | Deeded Beach Access | Prime Location. Just 200 yards from the #1-rated Siesta Key Beach and no street to cross! This beautifully updated 3BR/2BA/2HBA townhouse offers deeded beach access, a highly sought-after location near Point of Rocks, and over $80,000 in recent renovations, making it a perfect full-time home, seasonal getaway, or high-yield investment. Premium Features & Upgrades: New roof (2024) New tankless water heater (2024), washer & dryer (2025), Hardwood floors on main living and dining level, Engineered wood stairs (2025) and upstairs bedroom flooring, Both bedrooms feature walk-in closets and Jack-n-Jill bathrooms, Two private balconies – one off the living room and one off the primary suite. Fully renovated air-conditioned 3rd BR/bonus room on the lower level with new tile floors, walls, doors, and a brand-new full bathroom – ideal for a gym, home office, or game room Oversized 1-car garage with additional storage space Heated community pool. Low HOA: just $833/month – significantly lower than most communities on Siesta Key. Investor-friendly rental policy: 12 times per year allowed. Unbeatable Location: Deeded beach access – walk directly to the sand with no roads to cross. Located near Point of Rocks and just seconds from the South Bridge/Stickney Point for quick on/off island access. 2-minute drive to Publix, shopping, restaurants, and daily conveniences. The free Siesta Key Breeze Trolley stops right in front – ride to Turtle Beach or downtown Sarasota with ease. This rare opportunity combines luxury, location, and lifestyle in one of Florida’s most desirable beach communities. Whether you’re looking for a primary residence, vacation retreat, or income-producing rental, this one checks every box!
Property Details
Additional Information
Additional Lease Restrictions
You can rent this place for 1 day or 30 days every month
Additional Parcels YN
false
Additional Rooms
Bonus Room
Additional Water Information
Deeded Beach Access
Alternate Key Folio Num
0108164010
Appliances
Convection Oven, Dishwasher, Disposal, Dryer, Electric Water Heater, Microwave, Refrigerator, Tankless Water Heater, Washer
Architectural Style
Traditional
Association Fee Frequency
Quarterly
Association Fee Includes
Pool, Insurance, Maintenance Structure, Maintenance Grounds, Maintenance, Management, Pest Control, Trash
Association Fee Requirement
Required
Association YN
true
Attached Garage YN
true
Available For Lease YN
1
Bathrooms Total Integer
4
Building Area Source
Public Records
Building Area Total
1897
Building Area Total Srch SqM
176.24
Building Area Units
Square Feet
Calculated List Price By Calculated SqFt
531.81
Carport YN
true
Community Features
Community Mailbox, Pool
Condo Fees
2500
Condo Fees Term
Quarterly
Condo Land Included YN
1
Construction Materials
Block, Stucco
Cooling
Central Air
Country
US
Cumulative Days On Market
195
Current Price
769000.00
Direction Faces
East
Exterior Features
Balcony, Courtyard, Lighting, Private Mailbox, Rain Gutters, Sidewalk, Sliding Doors
Fireplace Features
Wood Burning
Fireplace YN
true
Flood Zone Code
AE
Floor Number
1
Flooring
Ceramic Tile, Hardwood, Tile, Wood
Foundation Details
Block, Concrete Perimeter, Slab
Furnished
Furnished
Garage Spaces
1
Garage YN
true
Heating
Electric, Heat Pump
Interior Features
Ceiling Fans(s), Eat-in Kitchen, Living Room/Dining Room Combo, Open Floorplan, PrimaryBedroom Upstairs, Smart Home, Stone Counters, Thermostat, Walk-In Closet(s), Window Treatments
Internet Address Display YN
true
Internet Automated Valuation Display YN
true
Internet Consumer Comment YN
true
Internet Entire Listing Display YN
true
Laundry Features
Laundry Room
Lease Restrictions YN
1
Levels
Two
List AOR
Sarasota - Manatee
Living Area Meters
134.34
Living Area Source
Public Records
Living Area Units
Square Feet
Lot Features
Flood Insurance Required
Lot Size Acres
0.95
Lot Size Square Feet
41447
Lot Size Square Meters
3851
Minimum Lease
1-7 Days
Modification Timestamp
2025-12-23T23:12:09.074Z
Monthly Condo Fee Amount
833
New Construction YN
false
Num Times per Year
12
Occupant Type
Vacant
Other Equipment
Irrigation Equipment
Ownership
Condominium
Parcel Number
0108164010
Patio And Porch Features
Enclosed
Pets Allowed
No
Pool Private YN
false
Postal Code Plus 4
2600
Previous List Price
799000
Price Change Timestamp
2025-12-21T01:03:42.000Z
Public Survey Range
18E
Public Survey Section
19
RATIO Current Price By Calculated SqFt
531.81
Realtor Info
Floor Plan Available, List Agent is Owner, No Sign, Owner Will Consider Exchange, Short Term Rental Allowed
Road Surface Type
Asphalt
Roof
Metal
Room Count
11
SW Subdiv Community Name
Midnight Sea
Senior Community YN
false
Sewer
Public Sewer
Showing Requirements
Appointment Only, Call Before Showing, Call Listing Agent, No Lockbox
Status Change Timestamp
2025-06-12T02:00:42.000Z
Stories Total
2
Tax Annual Amount
5390.81
Tax Book Number
1421-1919
Tax Legal Description
UNIT 6840 MIDNIGHT SEA
Tax Lot
6840
Tax Year
2024
Total Acreage
1/2 to less than 1
Total Annual Fees
10000.00
Total Monthly Fees
833.33
Township
37S
Universal Property Id
US-12115-N-0108164010-S-6840
Unparsed Address
6840 MIDNIGHT PASS RD #6840
Utilities
Cable Connected, Electricity Connected, Public, Sewer Connected, Water Connected
Water Access
Beach - Access Deeded
Water Access YN
1
Water Source
Public
Waterfront YN
false
Window Features
Storm Window(s), Window Treatments
Zoning
RMF3
Neighborhood Map
Popup

Property Photos
Listing Photo
Listing Photo
Listing Photo
Listing Photo
Listing Photo
Listing Photo
Listing Photo
Listing Photo
Listing Photo
Listing Photo
Listing Photo
Listing Photo
Listing Photo
Listing Photo
Listing Photo
Listing Photo
Listing Photo
Listing Photo
Listing Photo
Listing Photo
Listing Photo
Listing Photo
Listing Photo
Listing Photo
Listing Photo
Listing Photo
Listing Photo
Listing Photo
Listing Photo
Listing Photo
Listing Photo
Listing Photo
Listing Photo
Listing Photo
Listing Photo
Listing Photo
Listing Photo
Listing Photo
Listing Photo
Listing Photo
Listing Photo
Listing Photo
Listing Photo
Listing Photo
Listing Photo
Listing Photo
Listing Photo
Listing Photo
Listing Photo
Listing Photo
Listing Photo
Listing Photo
Listing Photo
Listing Photo
Listing Photo
Listing Photo
Listing Photo
Listing Photo
Listing Photo
Listing Photo
Listing Photo
Listing Photo
Listing Photo
Listing Photo
Listing Photo
Listing Photo
Listing Photo
Listing Photo
Listing Photo
Listing Photo
Listing Photo
Listing Photo
Listing Photo
Listing Photo
Listing Photo
Listing Photo
Listing Photo
Listing Photo
Listing Photo
Listing Photo
Listing Photo
Listing Photo
Listing Photo
Listing Photo
Listing Photo
Listing Photo
Listing Photo
Listing Photo
Listing Photo
Listing Photo
Listing Photo
Listing Photo
Listing Photo
Listing Photo
Listing Photo
Listing Photo
Listing Photo
Listing Photo
Listing Photo
Listing Photo
Listing Photo
Listing Photo
Listing Photo
Listing Photo
Listing Photo
Listing Photo
Listing Photo
Listing Photo
Listing Photo
Listing Photo
Listing Photo
Listing Photo
Listing Photo
Listing Photo
Listing Photo
Listing Photo
Listing Photo
Listing Photo
Listing Photo
Listing Photo
Listing Photo
Listing Photo
Listing Photo
Listing Photo
Listing Photo
Listing Photo
Listing Photo
Listing Photo
Listing Photo
Listing Photo
Listing Photo
Listing Photo

MLS #MFRA4655689 Listing courtesy of John Harding Realty provided by Stellar MLS.

Similar Listings

$695,000
113 Whispering Sands Drive
Sarasota
3BR/2BA
| Active
$695,000
1445 Landings Circle
Sarasota
3BR/2BA
| Active
$695,000
2876 Hardee Drive
Sarasota
3BR/2BA
| Pending
$695,000
5707 N Honore Avenue
Sarasota
3BR/2BA
| Active



All listing information is deemed reliable but not guaranteed and should be independently verified through personal inspection by appropriate professionals. Listings displayed on this website may be subject to prior sale or removal from sale; availability of any listing should always be independent verified. Listing information is provided for consumer personal, non-commercial use, solely to identify potential properties for potential purchase; all other use is strictly prohibited and may violate relevant federal and state law. The source of the listing data is as follows: Stellar MLS (updated 3/22/26 2:34 AM) |

Listing Search



Translate Tool

Featured Listings
Palm Harbor Real Estate
$810,000
5 BED
3 BATH
Privately tucked along a quiet road in one of Palm Harbor’s most convenient locations, this beautifully updated 5-bedroo... Read More
Sarasota Real Estate
$1,398,000
3 BED
3 BATH
Under contract-accepting backup offers. Discover gorgeous lakefront living in one of Lakewood Ranch’s most desirable nei... Read More
St Petersburg Real Estate
$1,200,000
5 BED
3 BATH
5 Bed / 3 Bath | 2,380 SF | New Construction 2024 | Detached 2BR ADU | 3-Car Garage Not many properties in St. Pete chec... Read More
Sarasota Real Estate
$929,000
3 BED
2 BATH
INCREDIBLE VIEWS!....INCREDIBLE FINISHES!....INCREDIBLE COMMUNITY!....You will be WOWED! by this Desirable Skiff Floor P... Read More
Lakewood Ranch Real Estate
$1,195,000
3 BED
3 BATH
EXQUISITE LUXURY LIVING IN COUNTRY CLUB EAST AT LAKEWOOD RANCH. Introducing an exceptional, fully furnished, designer-cu... Read More
Madeira Beach Real Estate
$990,000
3 BED
2 BATH
Enjoy coastal living from this beautifully positioned 9th-floor corner unit in Madeira Towers. This 3-bedroom, 2-bath re... Read More
Ormond Beach Real Estate
$1,274,000
4 BED
3 BATH
Experience the ultimate coastal luxury in this stunning Ormond-By-The-Sea gem, perfectly situated on a sprawling double ... Read More
Orlando Real Estate
$970,000
4 BED
3 BATH
Beautiful agricultural property located at 3811 Bancroft Blvd, Orlando, FL 32833, situated on an expansive 4.77-acre lot... Read More
Miami Beach Real Estate
$995,000
3 BED
2 BATH
Welcome to 2131 Biarritz Drive, a charming opportunity in the heart of Miami Beach. Nestled in a desirable and well-esta... Read More
Bradenton Real Estate
$1,250,000
4 BED
3 BATH
Welcome to an exceptional opportunity in the highly sought-after River Club community of Lakewood Ranch. Perfectly posit... Read More
Contact Sandra Pardo

407-990-2746

Wendy Morris LLC

Licensed in the State of Florida
BK 3146762
16797 Broadwater Avenue
Winter Garden, Florida 34787

Your privacy is our utmost concern. We will never sell your personal information. Privacy Policy
©2026 sandrapardohomes.com - all rights reserved. | Site Map