407-990-2746
Menu

6707 Stone River Road Unit: Unit: 101, Bradenton, FL

NEXT
PREV
$254,900

($190/sqft)

List Status: Pending
6707 Stone River Road
Bradenton, FL 34203


2 beds
2 baths
1345 living sqft
Top Features
  • View: Golf Course
  • Subdivision: Tara Verandas
  • Built in  1990
  • Condominium
Description
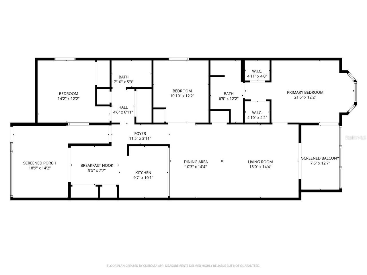
GOLFER’S PARADISE: Turnkey Luxury at Tara Golf & Country Club Experience the pinnacle of Florida living in this meticulously maintained first-floor end unit, situated within the prestigious Tara Golf and Country Club. Offered fully furnished and in pristine "turnkey" condition, this home reflects a true pride of ownership. The versatile floor plan features two spacious bedrooms and two full bathrooms, complemented by a private den that serves perfectly as a third bedroom or home office. At the heart of the home, the eat-in kitchen boasts solid wood cabinetry and granite countertops, opening directly to the front screened porch for breezy morning coffee breaks. The kitchen overlooks an expansive living and dining combination, creating a seamless flow for entertaining that extends out to the rear glass-enclosed lanai with breathtaking views of the manicured golf course grounds. The primary suite is a true retreat, offering "his and hers" walk-in closets that lead to a private en suite bathroom with a walk-in shower. The second bedroom is equally generous in size, positioned just steps from the second full bath and convenient laundry closet. This property is built for peace of mind, featuring a newer roof (2021), fresh exterior paint (2019), and a newly repaved drive (2024). Ideally located in Flood Zone "X," the unit also includes water, sewer, trash, cable TV, and high-speed internet within the association fees. Ownership includes a deeded Class "A" equity golf membership, providing an unparalleled social and active lifestyle. Residents enjoy full access to the championship golf course, practice facilities, and golf cart rentals, as well as the clubhouse restaurant, snack bar, fitness center, and card rooms. The amenities continue with a swimming pool, Jacuzzi, steam room, tennis, and brand-new pickleball courts arriving in 2025. Financial considerations include an annual membership fee of $6,571.44 ($547.62 monthly), a $720 annual food minimum, and a one-time resale
Property Details
Additional Information
Additional Lease Restrictions
See rules and regulations
Additional Parcels YN
false
Additional Rooms
Den/Library/Office
Alternate Key Folio Num
1731506307
Amenities Additional Fees
See attachments
Appliances
Dishwasher, Disposal, Dryer, Electric Water Heater, Microwave, Range, Refrigerator, Washer
Approval Process
See rules and regulations
Architectural Style
Ranch
Association Approval Required YN
1
Association Email
lwrassistant@caseymanagement.com
Association Fee
1750.44
Association Fee Frequency
Quarterly
Association Fee Includes
Cable TV, Pool, Escrow Reserves Fund, Fidelity Bond, Insurance, Internet, Maintenance Structure, Maintenance Grounds, Management, Recreational Facilities, Sewer, Trash, Water
Association Fee Requirement
Required
Association YN
true
Attached Garage YN
false
Available For Lease YN
1
Bathrooms Total Integer
2
Building Area Source
Public Records
Building Area Total
1489
Building Area Total Srch SqM
138.33
Building Area Units
Square Feet
Calculated List Price By Calculated SqFt
189.52
Carport YN
false
Community Features
Association Recreation - Owned, Clubhouse, Community Mailbox, Deed Restrictions, Fitness Center, Golf Carts OK, Golf, No Truck/RV/Motorcycle Parking, Pool, Restaurant, Sidewalks, Tennis Court(s)
Condo Fees
548
Condo Fees Term
Monthly
Construction Materials
Block, Stucco
Cooling
Central Air
Country
US
Cumulative Days On Market
74
Current Price
254900.00
Direction Faces
South
Elementary School
Tara Elementary
Expected Closing Date
2026-05-29T00:00:00.000
Exterior Features
Private Entrance, Sidewalk, Tennis Court(s)
Fireplace YN
false
Flood Zone Code
X
Flood Zone Date
2021-08-10
Flood Zone Panel
12081C0328F
Floor Number
1
Flooring
Carpet, Tile
Foundation Details
Slab
Furnished
Furnished
Garage Spaces
1
Garage YN
true
Heating
Central, Electric
High School
Braden River High
Home Warranty YN
false
Interior Features
Ceiling Fans(s), Eat-in Kitchen, Living Room/Dining Room Combo, Open Floorplan, Primary Bedroom Main Floor, Solid Surface Counters, Solid Wood Cabinets, Split Bedroom, Walk-In Closet(s), Window Treatments
Internet Address Display YN
true
Internet Automated Valuation Display YN
true
Internet Consumer Comment YN
true
Internet Entire Listing Display YN
true
Laundry Features
Electric Dryer Hookup, Inside, Laundry Closet, Washer Hookup
Lease Restrictions YN
1
Levels
One
List AOR
Suncoast Tampa
Living Area Meters
124.95
Living Area Source
Public Records
Living Area Units
Square Feet
Lot Features
City Limits, Landscaped, On Golf Course, Sidewalk, Paved, Private
Lot Size Acres
5.92
Lot Size Square Feet
257674
Lot Size Square Meters
23939
Max Pet Weight
35
Middle Or Junior School
Braden River Middle
Minimum Lease
1 Month
Modification Timestamp
2026-04-18T11:47:08.915Z
Monthly Condo Fee Amount
548
Monthly HOA Amount
583.48
Monthly Maint Amount Addition To HOA
60
New Construction YN
false
Num Times per Year
12
Number Of Pets
1
Occupant Type
Vacant
Other Equipment
Irrigation Equipment, Private Entrance
Ownership
Condominium
Parcel Number
1731506307
Patio And Porch Features
Covered, Enclosed, Front Porch, Rear Porch, Screened
Pet Restrictions
See rules and regulations
Pet Size
Small (16-35 Lbs.)
Pets Allowed
Cats OK, Dogs OK, Number Limit
Pool Private YN
false
Postal Code Plus 4
7836
Previous List Price
260000
Price Change Timestamp
2026-03-13T03:00:47.000Z
Property Condition
Completed
Property Description
End Unit, Walk-Up
Public Survey Range
18E
Public Survey Section
14
Purchase Contract Date
2026-04-17
RATIO Current Price By Calculated SqFt
189.52
Road Surface Type
Asphalt
Roof
Shingle
Room Count
6
SW Subdiv Community Name
Tara Verandas Condominium
Senior Community YN
false
Sewer
Public Sewer
Showing Requirements
Supra Lock Box
Status Change Timestamp
2026-04-18T11:46:35.000Z
Stories Total
1
Tax Annual Amount
3278.19
Tax Block
1005
Tax Book Number
1290-360
Tax Legal Description
UNIT 101 BLDG 3 TARA VERANDAS TWO CONDO; TOGETHER WITH A CLASS "A" MEMBERSHIP IN THE TARA GOLF & COUNTRY CLUB INC PI#17315.0630/7
Tax Lot
00
Tax Year
2024
Total Annual Fees
15468.57
Total Monthly Fees
1289.05
Township
35S
Universal Property Id
US-12081-N-1731506307-S-101
Unparsed Address
6707 STONE RIVER RD #101
Utilities
Cable Available, Electricity Connected, Public, Sewer Connected, Underground Utilities, Water Connected
Water Source
Public
Waterfront YN
false
Window Features
Blinds
Zoning
PDR/WPE/
Neighborhood Map
Popup

Property Photos
Listing Photo
Listing Photo
Listing Photo
Listing Photo
Listing Photo
Listing Photo
Listing Photo
Listing Photo
Listing Photo
Listing Photo
Listing Photo
Listing Photo
Listing Photo
Listing Photo
Listing Photo
Listing Photo
Listing Photo
Listing Photo
Listing Photo
Listing Photo
Listing Photo
Listing Photo
Listing Photo
Listing Photo
Listing Photo
Listing Photo
Listing Photo
Listing Photo
Listing Photo
Listing Photo
Listing Photo
Listing Photo
Listing Photo
Listing Photo
Listing Photo
Listing Photo
Listing Photo
Listing Photo
Listing Photo
Listing Photo
Listing Photo
Listing Photo
Listing Photo
Listing Photo
Listing Photo
Listing Photo
Listing Photo
Listing Photo
Listing Photo
Listing Photo
Listing Photo
Listing Photo
Listing Photo
Listing Photo
Listing Photo
Listing Photo
Listing Photo
Listing Photo
Listing Photo
Listing Photo
Listing Photo
Listing Photo
Listing Photo
Listing Photo
Listing Photo
Listing Photo
Listing Photo
Listing Photo
Listing Photo
Listing Photo
Listing Photo
Listing Photo
Listing Photo
Listing Photo
Listing Photo
Listing Photo
Listing Photo
Listing Photo
Listing Photo
Listing Photo
Listing Photo
Listing Photo
Listing Photo
Listing Photo
Listing Photo
Listing Photo
Listing Photo
Listing Photo
Listing Photo
Listing Photo
Listing Photo
Listing Photo
Listing Photo
Listing Photo
Listing Photo
Listing Photo
Listing Photo
Listing Photo
Listing Photo
Listing Photo
Listing Photo
Listing Photo
Listing Photo
Listing Photo
Listing Photo
Listing Photo
Listing Photo
Listing Photo
Listing Photo
Listing Photo
Listing Photo
Listing Photo
Listing Photo
Listing Photo
Listing Photo
Listing Photo
Listing Photo
Listing Photo
Listing Photo
Listing Photo
Listing Photo
Listing Photo
Listing Photo
Listing Photo
Listing Photo
Listing Photo
Listing Photo
Listing Photo
Listing Photo
Listing Photo
Listing Photo
Listing Photo
Listing Photo
Listing Photo
Listing Photo
Listing Photo
Listing Photo
Listing Photo
Listing Photo
Listing Photo
Listing Photo
Listing Photo
Listing Photo
Listing Photo
Listing Photo
Listing Photo
Listing Photo
Listing Photo
Listing Photo
Listing Photo
Listing Photo
Listing Photo
Listing Photo
Listing Photo
Listing Photo
Listing Photo
Listing Photo
Listing Photo
Listing Photo
Listing Photo
Listing Photo
Listing Photo
Listing Photo
Listing Photo
Listing Photo
Listing Photo
Listing Photo
Listing Photo
Listing Photo
Listing Photo

MLS #MFRTB8469756 Listing courtesy of Homesmart provided by Stellar MLS.

Similar Listings

$229,500
3505 45th W Terrace
Bradenton
2BR/2BA
| Active
$229,500
6462 Wild Oak Bay Boulevard
Bradenton
2BR/2BA
| Active
$229,900
118 Pinehurst Drive
Bradenton
2BR/2BA
| Pending
$229,900
1317 57th W Street
Bradenton
2BR/2BA
| Pending



All listing information is deemed reliable but not guaranteed and should be independently verified through personal inspection by appropriate professionals. Listings displayed on this website may be subject to prior sale or removal from sale; availability of any listing should always be independent verified. Listing information is provided for consumer personal, non-commercial use, solely to identify potential properties for potential purchase; all other use is strictly prohibited and may violate relevant federal and state law. The source of the listing data is as follows: Stellar MLS (updated 4/29/26 8:04 PM) |

Listing Search



Translate Tool

Featured Listings
Sarasota Real Estate
$850,000
4 BED
3 BATH
Experience effortless Florida living in this beautifully La Vista villa style 2-story home, ideally located in one of Pr... Read More
Weeki Wachee Real Estate
$1,200,000
3 BED
2 BATH
ONE-OF-A-KIND WATERFRONT PARADISE ON THE MAIN WEEKI WACHEE RIVER! Live where others dream of vacationing! This extraordi... Read More
Nokomis Real Estate
$910,000
3 BED
2 BATH
TURNKEY FURNISHED. DOCK AND 16,000 LB BOAT LIFT! GULF ACCESS! PRIVATE SALTWATER POOL! IMPACT GLASS! HIGH ELEVATION! BOAT... Read More
Sumterville Real Estate
$875,000
4 BED
3 BATH
Country Charm meets you in this 4/3 home with 37x60 pole barn with gorgeous fully fenced, landscaped 10 Acres. This is a... Read More
St Petersburg Real Estate
$1,200,000
3 BED
2 BATH
Welcome to a home that has been filled with love, laughter, and countless unforgettable memories. This beautifully maint... Read More
Bradenton Real Estate
$1,195,000
4 BED
3 BATH
Designed for true boating enthusiasts, this exceptional waterfront residence offers direct Gulf access with no lifts or ... Read More
Nokomis Real Estate
$1,399,000
3 BED
3 BATH
One or more photo(s) has been virtually staged. RARE OPPORTUNITY to own an OVERSIZED, premium lakefront lot just minutes... Read More
Placida Real Estate
$1,250,000
3 BED
2 BATH
HIGH and DRY!! This home stands tall on top of pilings over 15 feet!! The most recent storm showed zero water damage. No... Read More
St Petersburg Real Estate
$1,399,000
5 BED
4 BATH
One or more photo(s) has been virtually staged. Discover exceptional BRAND NEW construction living in the heart of St. P... Read More
Orlando Real Estate
$800,000
4 BED
3 BATH
A true showpiece in the gated Tudor Grove at Timber Springs community, this FULLY REMODELED 4-bedroom, 3.5-bath, two-sto... Read More
Contact Sandra Pardo

407-990-2746

Wendy Morris LLC

Licensed in the State of Florida
BK 3146762
16797 Broadwater Avenue
Winter Garden, Florida 34787

Your privacy is our utmost concern. We will never sell your personal information. Privacy Policy
©2026 sandrapardohomes.com - all rights reserved. | Site Map