407-990-2746
Menu

6505 Stone River Road Unit: Unit: 103, Bradenton, FL

NEXT
PREV
$179,000

($160/sqft)

List Status: Active
6505 Stone River Road
Bradenton, FL 34203


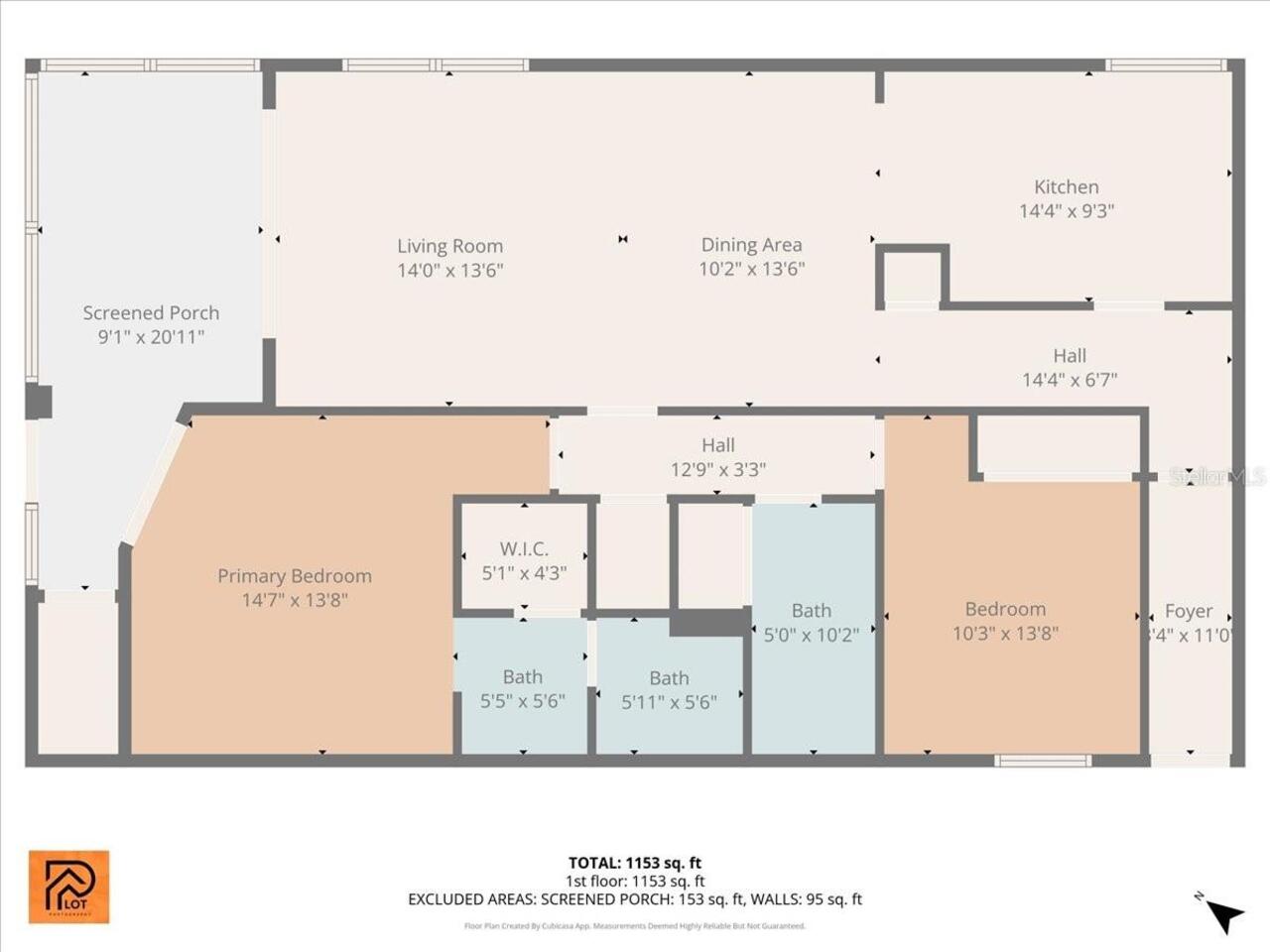
2 beds
2 baths
1118 living sqft
Top Features
  • View: Golf Course
  • Subdivision: Terraces 3 Of Tara
  • Built in  1991
  • Condominium
Description
PRICE ADJUSTMENT! SELLER IS LOOKING FOR SOMEONE TO ENJOY THIS BEAUTIFUL CONDO LIKE THEY HAVE!! Live the Florida Lifestyle in Tara Golf & Country Club Move right in and start enjoying paradise! This beautifully maintained first-floor condo is being offered fully furnished, including all household goods — just bring your suitcase and your golf clubs. Step inside to find tile and wood flooring throughout — no carpet anywhere — creating a clean, updated look that’s both stylish and easy to maintain. Fresh interior painting and thoughtful upgrades make this home truly move-in ready. After all, who has time for renovations when it’s your tee time? Enjoy morning coffee or evening relaxation on your all-weather screened lanai, overlooking a picturesque golf course view. The location within the community is ideal, offering peaceful surroundings with convenient access. A Class A Membership to Tara Golf & Country Club conveys with the property, providing: Unlimited golf privileges Private clubhouse restaurant Pickleball courts Tennis courts Bocce ball courts Fitness center exclusive to Tara residents Owners in The Terraces enjoy their private community pool, along with access to the main clubhouse pool where you can order food and drinks poolside at Nancy’s Shack — the ultimate Florida experience. Conveniently located near Interstate 75, you’re just one exit south to University Town Center Mall and Sarasota-Bradenton International Airport. In under an hour, enjoy the St. Pete/Tampa area — professional sports, theaters, and even a cruise port for your next adventure. The seller has truly loved living in Tara but is relocating north to be closer to family for health reasons. Now it’s your opportunity to enjoy the lifestyle he has cherished. . The HOA fees cover everythign but electric, and internal insurance. The master HOA fee covers the community groounds, premium internet and WIFI from Xfinity. Your $547 a month provides you your golf/country club membership The one time capi
Property Details
Additional Information
Additional Lease Restrictions
refer to bylaws, or call Casey Management
Additional Parcels YN
false
Alternate Key Folio Num
1731518500
Appliances
Dishwasher, Disposal, Dryer, Exhaust Fan, Microwave, Range, Refrigerator, Washer
Approval Process
application is required
Association Amenities
Cable TV, Elevators, Pickleball Court(s), Pool, Spa/Hot Tub, Tennis Court(s)
Association Approval Required YN
1
Association Email
lwrassistant@caseymanagement.com
Association Fee Frequency
Quarterly
Association Fee Includes
Cable TV, Common Area Taxes, Pool, Escrow Reserves Fund, Fidelity Bond, Internet, Maintenance Structure, Maintenance Grounds, Pest Control, Private Road, Sewer, Trash, Water
Association Fee Requirement
Required
Association YN
true
Available For Lease YN
1
Bathrooms Total Integer
2
Building Area Source
Public Records
Building Area Total
1300
Building Area Total Srch SqM
120.77
Building Area Units
Square Feet
Building Elevator YN
1
Calculated List Price By Calculated SqFt
160.11
Carport Spaces
1
Carport YN
true
Community Features
Clubhouse, Deed Restrictions, Fitness Center, Golf Carts OK, Golf, Irrigation-Reclaimed Water, Pool, Restaurant, Sidewalks, Tennis Court(s)
Complex Community Name NCCB
THE TERRACES
Condo Fees
1600
Condo Fees Term
Quarterly
Construction Materials
Stucco
Cooling
Central Air
Country
US
Cumulative Days On Market
69
Current Price
179000.00
Direction Faces
West
Elementary School
Tara Elementary
Exterior Features
Lighting, Outdoor Grill, Sidewalk, Storage, Tennis Court(s)
Fireplace YN
false
Flood Zone Code
X
Flood Zone Date
2021-08-10
Flood Zone Panel
12081C0328F
Floor Number
1
Flooring
Carpet, Laminate, Tile
Foundation Details
Block
Furnished
Furnished
Garage YN
false
Heating
Electric
High School
Braden River High
Homestead YN
1
Interior Features
Built-in Features, Ceiling Fans(s), Living Room/Dining Room Combo, Primary Bedroom Main Floor, Walk-In Closet(s), Window Treatments
Internet Address Display YN
true
Internet Automated Valuation Display YN
true
Internet Consumer Comment YN
true
Internet Entire Listing Display YN
true
Laundry Features
Laundry Closet
Lease Restrictions YN
1
Levels
Three Or More
List AOR
Venice
Living Area Meters
103.87
Living Area Source
Public Records
Living Area Units
Square Feet
Lot Features
On Golf Course
Lot Size Acres
1.38
Lot Size Square Feet
59912
Lot Size Square Meters
5566
Middle Or Junior School
Braden River Middle
Minimum Lease
1 Month
Modification Timestamp
2026-04-21T17:11:15.526Z
Monthly Condo Fee Amount
533
Monthly Maint Amount Addition To HOA
547
New Construction YN
false
Number Of Pets
1
Occupant Type
Owner
Other Equipment
Irrigation Equipment
Other Fees Term
Monthly
Ownership
Condominium
Parcel Number
1731518500
Patio And Porch Features
Enclosed
Pet Restrictions
check with by-laws for clarification
Pet Size
Small (16-35 Lbs.)
Pets Allowed
Breed Restrictions, Cats OK, Dogs OK
Pool Private YN
false
Postal Code Plus 4
7849
Previous List Price
184000
Price Change Timestamp
2026-04-15T19:30:11.000Z
Property Condition
Completed
Property Description
End Unit
Public Survey Range
18
Public Survey Section
14
RATIO Current Price By Calculated SqFt
160.11
Realtor Info
As-Is, Assoc approval required, Docs Available, Floor Plan Available, No Sign, Owner Motivated
Road Responsibility
Private Maintained Road
Road Surface Type
Asphalt
Roof
Tile
Room Count
5
SW Subdiv Community Name
Terraces Of Tara Condo
Senior Community YN
false
Sewer
Public Sewer
Showing Requirements
Supra Lock Box
Spa YN
false
Status Change Timestamp
2026-02-11T18:09:29.000Z
Stories Total
3
Tax Annual Amount
610
Tax Book Number
4-105
Tax Legal Description
UNIT 103 TERRACES 3 OF TARA; TOGETHER WITH A CLASS "A" MEMBERSHIP IN THE TARA GOLF & COUNTRY CLUB INC PI#17315.1850/0
Tax Lot
103
Tax Year
2024
Total Annual Fees
14135.00
Total Monthly Fees
1177.92
Township
35
Universal Property Id
US-12081-N-1731518500-S-103
Unparsed Address
6505 STONE RIVER RD #103
Utilities
Cable Connected, Electricity Connected, Public, Sewer Connected, Water Connected
Vegetation
Mature Landscaping
Water Source
Public
Waterfront YN
false
Zoning
PD-R/WP-
Neighborhood Map
Popup

Property Photos
Listing Photo
Listing Photo
Listing Photo
Listing Photo
Listing Photo
Listing Photo
Listing Photo
Listing Photo
Listing Photo
Listing Photo
Listing Photo
Listing Photo
Listing Photo
Listing Photo
Listing Photo
Listing Photo
Listing Photo
Listing Photo
Listing Photo
Listing Photo
Listing Photo
Listing Photo
Listing Photo
Listing Photo
Listing Photo
Listing Photo
Listing Photo
Listing Photo
Listing Photo
Listing Photo
Listing Photo
Listing Photo
Listing Photo
Listing Photo
Listing Photo
Listing Photo
Listing Photo
Listing Photo
Listing Photo
Listing Photo
Listing Photo
Listing Photo
Listing Photo
Listing Photo
Listing Photo
Listing Photo
Listing Photo
Listing Photo
Listing Photo
Listing Photo
Listing Photo
Listing Photo
Listing Photo
Listing Photo
Listing Photo
Listing Photo
Listing Photo
Listing Photo
Listing Photo
Listing Photo
Listing Photo
Listing Photo
Listing Photo
Listing Photo
Listing Photo
Listing Photo
Listing Photo
Listing Photo
Listing Photo
Listing Photo
Listing Photo
Listing Photo
Listing Photo
Listing Photo
Listing Photo
Listing Photo
Listing Photo
Listing Photo
Listing Photo
Listing Photo
Listing Photo
Listing Photo
Listing Photo
Listing Photo
Listing Photo
Listing Photo
Listing Photo
Listing Photo
Listing Photo
Listing Photo
Listing Photo
Listing Photo
Listing Photo
Listing Photo
Listing Photo
Listing Photo
Listing Photo
Listing Photo
Listing Photo
Listing Photo
Listing Photo
Listing Photo
Listing Photo
Listing Photo
Listing Photo
Listing Photo
Listing Photo
Listing Photo
Listing Photo
Listing Photo

MLS #MFRA4682179 Listing courtesy of Exit King Realty provided by Stellar MLS.

Similar Listings

$162,900
808 53rd E Avenue
Bradenton
2BR/2BA
| Active
$163,000
3404 38th W Street
Bradenton
2BR/2BA
| Active
$163,400
7811 43rd Avenue W Drive
Bradenton
2BR/2BA
| Active
$164,000
5511 Denmark Drive
Bradenton
2BR/2BA
| Active



All listing information is deemed reliable but not guaranteed and should be independently verified through personal inspection by appropriate professionals. Listings displayed on this website may be subject to prior sale or removal from sale; availability of any listing should always be independent verified. Listing information is provided for consumer personal, non-commercial use, solely to identify potential properties for potential purchase; all other use is strictly prohibited and may violate relevant federal and state law. The source of the listing data is as follows: Stellar MLS (updated 4/29/26 11:20 PM) |

Listing Search



Translate Tool

Featured Listings
Maitland Real Estate
$1,021,000
4 BED
3 BATH
Under contract-accepting backup offers. PRICE REDUCTION, Incredible price for this property! LOCATION, LOCATION, LOCATIO... Read More
Sarasota Real Estate
$1,245,000
5 BED
3 BATH
Experience elevated lakefront living in the gated community of Rivo Lakes. Built by MI Homes, this Reflection model offe... Read More
Odessa Real Estate
$1,050,000
5 BED
4 BATH
Located in Starkey Ranch, one of the areas most desirable master planned communities and zoned for all A rated schools, ... Read More
Redington Beach Real Estate
$1,200,000
4 BED
2 BATH
This .30-acre (13,068 sqft) corner property, situated at the intersection of Gulf Boulevard and 160th Avenue in Redingto... Read More
Bradenton Real Estate
$872,000
3 BED
3 BATH
** Ask about the incentives that our Preferred Lender Christopher McIntosh from NFM Lending is offering on the loan amou... Read More
Clearwater Real Estate
$1,100,000
4 BED
2 BATH
Historic Clearwater This home has a 1.1 Million dollar appraisal Great AIr BB potential 100 year old renovated Spanish R... Read More
Winter Garden Real Estate
$880,000
2 BED
2 BATH
This exceptional Mystique model by Pulte showcases one of the most impressive outdoor living spaces within Del Webb Oasi... Read More
Ocala Real Estate
$964,900
5 BED
4 BATH
Multigenerational property with Two Beautiful Homes on 5 Acres! The Main home is a 3/2.5/2 with 2,000 Living Square Feet... Read More
Winter Garden Real Estate
$800,000
5 BED
4 BATH
Fenced Corner Lot | Oversized 3+ Car Garage | Yard Maintenance Included | This home offers a functional layout with mult... Read More
Wesley Chapel Real Estate
$855,000
5 BED
4 BATH
One or more photo(s) has been virtually staged. Wonderfully upgraded and impeccably maintained 5/4.5 Taylor Morrison San... Read More
Contact Sandra Pardo

407-990-2746

Wendy Morris LLC

Licensed in the State of Florida
BK 3146762
16797 Broadwater Avenue
Winter Garden, Florida 34787

Your privacy is our utmost concern. We will never sell your personal information. Privacy Policy
©2026 sandrapardohomes.com - all rights reserved. | Site Map