407-990-2746
Menu

6330 Laguna Drive, Longboat Key, FL

NEXT
PREV
$1,999,989

($700/sqft)

List Status: Active
6330 Laguna Drive
Longboat Key, FL 34228


3 beds
3 baths
2856 living sqft
Top Features
  • View: Water, Trees/Woods
  • Subdivision: Laguna Yacht Village
  • Built in  2002
  • Single Family Residence
Description
Property Details
Additional Information
Additional Lease Restrictions
Buyer must confirm most recent lease restriction.
Additional Parcels YN
false
Additional Rooms
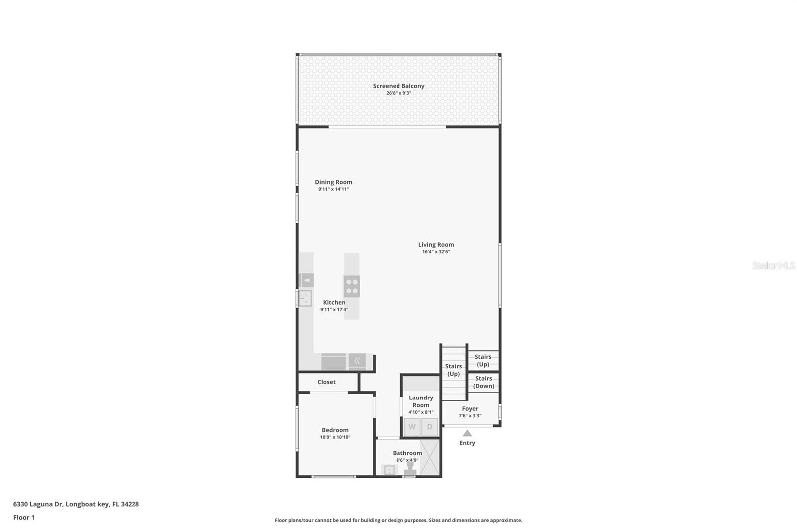
Den/Library/Office, Great Room, Loft
Appliances
Built-In Oven, Convection Oven, Cooktop, Dishwasher, Disposal, Dryer, Electric Water Heater, Exhaust Fan, Microwave, Refrigerator, Washer, Water Filtration System, Wine Refrigerator
Architectural Style
Coastal, Colonial
Association Amenities
Gated, Maintenance, Other, Pool
Association Fee
3250
Association Fee Frequency
Semi-Annually
Association Fee Includes
Common Area Taxes, Pool, Maintenance Grounds, Maintenance, Management, Private Road
Association Fee Requirement
Required
Association YN
true
Attached Garage YN
true
Available For Lease YN
1
Bathrooms Total Integer
3
Building Area Source
Public Records
Building Area Total
4736
Building Area Total Srch SqM
439.99
Building Area Units
Square Feet
Calculated List Price By Calculated SqFt
700.28
Carport YN
false
Community Features
Gated Community - Guard, Pool
Construction Materials
Cement Siding, Concrete
Cooling
Central Air
Country
US
Cumulative Days On Market
74
Current Price
1999989.00
Direction Faces
West
Exterior Features
Sliding Doors, Sprinkler Metered
Fencing
Vinyl
Fireplace Features
Electric
Fireplace YN
true
Flood Zone Code
AE
Floor Number
1
Flooring
Ceramic Tile, Marble, Wood
Foundation Details
Slab
Furnished
Negotiable
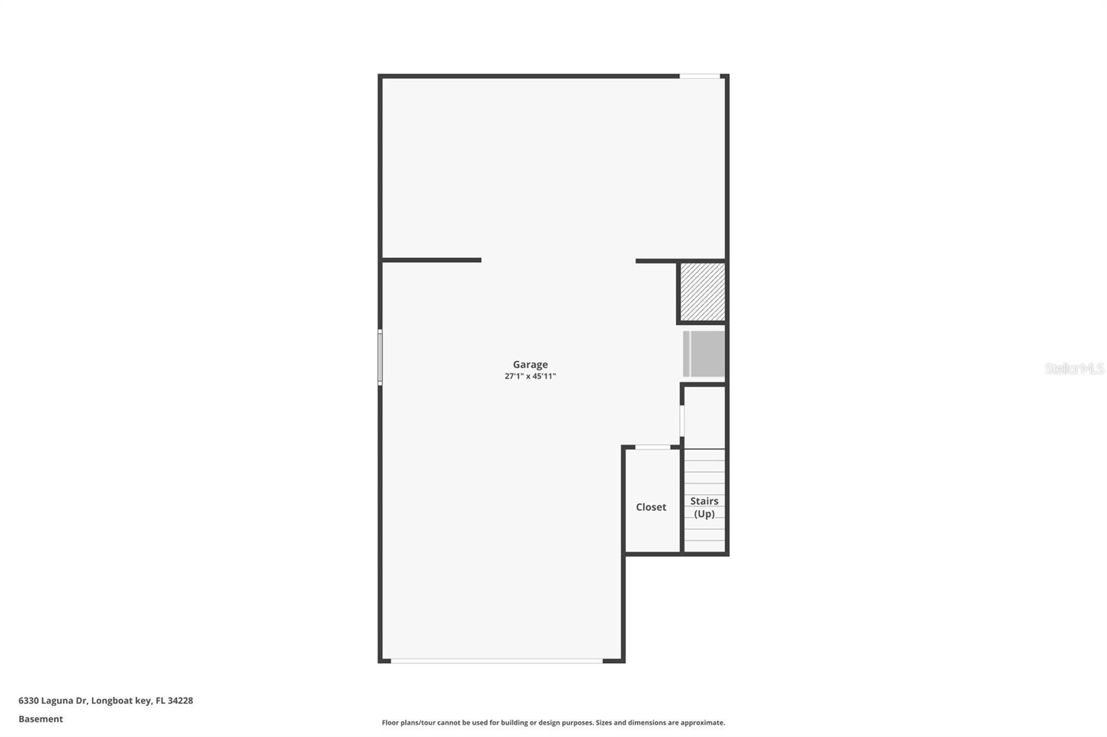
Garage Dimensions
46x22
Garage Spaces
3
Garage YN
true
Heating
Electric, Zoned
Homestead YN
1
Interior Features
Ceiling Fans(s), Central Vaccum, Coffered Ceiling(s), Crown Molding, High Ceilings, Kitchen/Family Room Combo, Living Room/Dining Room Combo, Open Floorplan, Solid Surface Counters, Solid Wood Cabinets, Thermostat, Vaulted Ceiling(s), Walk-In Closet(s), Window Treatments
Internet Address Display YN
true
Internet Automated Valuation Display YN
false
Internet Consumer Comment YN
true
Internet Entire Listing Display YN
true
Laundry Features
Laundry Room
Lease Restrictions YN
1
Levels
Three Or More
List AOR
Sarasota - Manatee
Living Area Meters
265.33
Living Area Source
Public Records
Living Area Units
Square Feet
Lot Features
Corner Lot, Landscaped, Level, Oversized Lot, Private
Lot Size Acres
0.04
Lot Size Square Feet
1769
Lot Size Square Meters
164
Minimum Lease
1 Month
Modification Timestamp
2026-01-31T14:02:09.060Z
Monthly HOA Amount
541.67
New Construction YN
false
Occupant Type
Owner
Ownership
Fee Simple
Parcel Number
7840200759
Patio And Porch Features
Covered, Deck, Enclosed
Pets Allowed
No
Pool Private YN
false
Postal Code Plus 4
1500
Previous List Price
1999999
Price Change Timestamp
2026-01-21T18:03:44.000Z
Property Attached YN
false
Property Condition
Completed
Property Description
Corner Unit, Elevated
Public Remarks
Modern Beach Home priced aggressively to sell as the owners are relocating. Ocean Views! Private Dock With Boat Lift On The Bay! Exclusive Beach Community, The Ultimate Beach lifestyle! This raised (16ft.), three bedroom (possible 4th), three bath, three plus car garage home is situated perfectly between the gulf and bay. The exclusive, gated community of Laguna Yacht Village is Longboat Key's best kept secret, consisting of only 8 homes on 9 lots. This quiet, private beach and boating development is unmatched! Relax on your deck, on your boat, at the beach or by the private heated and chilled pool in the knowledge that all the grounds, pool and dock infrastructure are maintained by the HOA. The home has been thoroughly modernized and expanded in 2019/2020 by the current owners. New 25 year aluminum roof, pre-painted hardiplank exterior, enclosed upper deck expanded Master Suite, complete bathroom and kitchen renovations, new water heater (2025), 5 ton HVAC, washer, dryer and kitchen appliances (Sub Zero and Bosch) as well as refinished hardwood floors on the main level and newly laid matching hardwood floors throughout the entire upstairs make this effectively a totally new home. Whilst not required by the current owners, the upstairs loft area could easily be converted into a 4th bedroom. The majority of the work was accomplished by Greyhawk of Bradenton. Other lavish touches include new solid panel doors, new 16 feet wide opening glass slider doors, integrated 180 bottle wine fridge, an oversized 3 plus car garage including new door and the installation of a 10, 000 lb boat lift at the deeded private dock. Call today to schedule your private Viewing.
Public Survey Range
16E
Public Survey Section
23
RATIO Current Price By Calculated SqFt
700.28
Road Surface Type
Other
Roof
Metal
Room Count
12
SW Subdiv Community Name
Laguna Yacht Village
Security Features
Fire Alarm, Fire Sprinkler System, Gated Community, Secured Garage/Parking, Security Gate, Smoke Detector(s)
Senior Community YN
false
Sewer
Public Sewer
Showing Requirements
Supra Lock Box, Appointment Only, Gate Code Required, Listing Agent Must Accompany, Lock Box Electronic
Status Change Timestamp
2025-11-18T23:47:24.000Z
Stories Total
3
Tax Annual Amount
18655.63
Tax Legal Description
UNIT 5 LAGUNA YACHT VILLAGE A CONDO PI#78402.0075/9
Tax Lot
5
Tax Year
2023
Total Acreage
0 to less than 1/4
Total Annual Fees
6500.00
Total Monthly Fees
541.67
Township
35S
Unit Number YN
1
Universal Property Id
US-12081-N-7840200759-R-N
Unparsed Address
6330 LAGUNA DR
Utilities
Cable Connected, Electricity Connected, Sewer Connected, Sprinkler Well, Underground Utilities, Water Connected
Water Access
Beach - Access Deeded, Canal - Saltwater, Intracoastal Waterway
Water Access YN
1
Water Extras
Assigned Boat Slip, Bridges - No Fixed Bridges, Lift
Water Extras YN
1
Water Source
Public
Water View
Canal
Water View YN
1
Waterfront YN
false
Window Features
Blinds, Insulated Windows, Shades, Shutters
Zoning
R3SF
Neighborhood Map
Popup

Property Photos
Listing Photo
Listing Photo
Listing Photo
Listing Photo
Listing Photo
Listing Photo
Listing Photo
Listing Photo
Listing Photo
Listing Photo
Listing Photo
Listing Photo
Listing Photo
Listing Photo
Listing Photo
Listing Photo
Listing Photo
Listing Photo
Listing Photo
Listing Photo
Listing Photo
Listing Photo
Listing Photo
Listing Photo
Listing Photo
Listing Photo
Listing Photo
Listing Photo
Listing Photo
Listing Photo
Listing Photo
Listing Photo
Listing Photo
Listing Photo
Listing Photo
Listing Photo
Listing Photo
Listing Photo
Listing Photo
Listing Photo
Listing Photo
Listing Photo
Listing Photo
Listing Photo
Listing Photo
Listing Photo
Listing Photo
Listing Photo
Listing Photo
Listing Photo
Listing Photo
Listing Photo
Listing Photo
Listing Photo
Listing Photo
Listing Photo
Listing Photo
Listing Photo
Listing Photo
Listing Photo
Listing Photo
Listing Photo
Listing Photo
Listing Photo
Listing Photo
Listing Photo
Listing Photo
Listing Photo
Listing Photo
Listing Photo
Listing Photo
Listing Photo
Listing Photo
Listing Photo
Listing Photo
Listing Photo
Listing Photo
Listing Photo
Listing Photo
Listing Photo
Listing Photo
Listing Photo
Listing Photo
Listing Photo
Listing Photo
Listing Photo
Listing Photo
Listing Photo
Listing Photo
Listing Photo
Listing Photo
Listing Photo
Listing Photo
Listing Photo
Listing Photo
Listing Photo
Listing Photo
Listing Photo
Listing Photo
Listing Photo
Listing Photo
Listing Photo
Listing Photo
Listing Photo
Listing Photo
Listing Photo
Listing Photo
Listing Photo
Listing Photo
Listing Photo
Listing Photo
Listing Photo
Listing Photo
Listing Photo
Listing Photo
Listing Photo
Listing Photo
Listing Photo
Listing Photo
Listing Photo
Listing Photo
Listing Photo

MLS #MFRA4672554 Listing courtesy of Re/max Palm provided by Stellar MLS.

Similar Listings

$1,800,000
360 Gulf Of Mexico Drive
Longboat Key
3BR/3BA
| Pending
$1,845,000
3010 Grand Bay Boulevard
Longboat Key
3BR/3BA
| Pending
$1,895,000
3040 Grand Bay Boulevard
Longboat Key
3BR/3BA
| Active
$1,899,000
565 Sanctuary Drive
Longboat Key
3BR/3BA
| Active



All listing information is deemed reliable but not guaranteed and should be independently verified through personal inspection by appropriate professionals. Listings displayed on this website may be subject to prior sale or removal from sale; availability of any listing should always be independent verified. Listing information is provided for consumer personal, non-commercial use, solely to identify potential properties for potential purchase; all other use is strictly prohibited and may violate relevant federal and state law. The source of the listing data is as follows: Stellar MLS (updated 1/31/26 10:57 PM) |

Listing Search



Translate Tool

Featured Listings
New Port Richey Real Estate
$1,082,000
3 BED
2 BATH
Bradenton Real Estate
$1,195,000
3 BED
2 BATH
St Petersburg Real Estate
$1,199,000
3 BED
3 BATH
Port Orange Real Estate
$800,000
4 BED
2 BATH
Palmetto Real Estate
$954,900
3 BED
2 BATH
St Pete Beach Real Estate
$999,000
4 BED
3 BATH
St Petersburg Real Estate
$974,000
3 BED
2 BATH
Orlando Real Estate
$1,300,000
5 BED
4 BATH
Apollo Beach Real Estate
$850,000
4 BED
2 BATH
Bradenton Real Estate
$1,399,000
4 BED
3 BATH
Contact Sandra Pardo

407-990-2746

Wendy Morris LLC

Licensed in the State of Florida
BK 3146762
16797 Broadwater Avenue
Winter Garden, Florida 34787

Your privacy is our utmost concern. We will never sell your personal information. Privacy Policy
©2026 sandrapardohomes.com - all rights reserved. | Site Map