407-990-2746
Menu

625 Mulberry Avenue, Celebration, FL

NEXT
PREV
$725,000

($347/sqft)

List Status: Active
625 Mulberry Avenue
Celebration, FL 34747


4 beds
3 baths
2092 living sqft
Top Features
  • Subdivision: Meeting House Green Rep 06
  • Built in  1997
  • Townhouse
Description
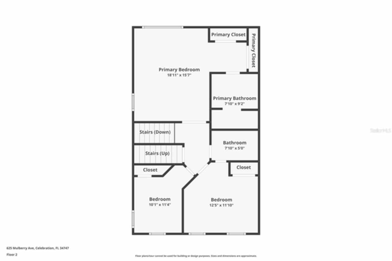
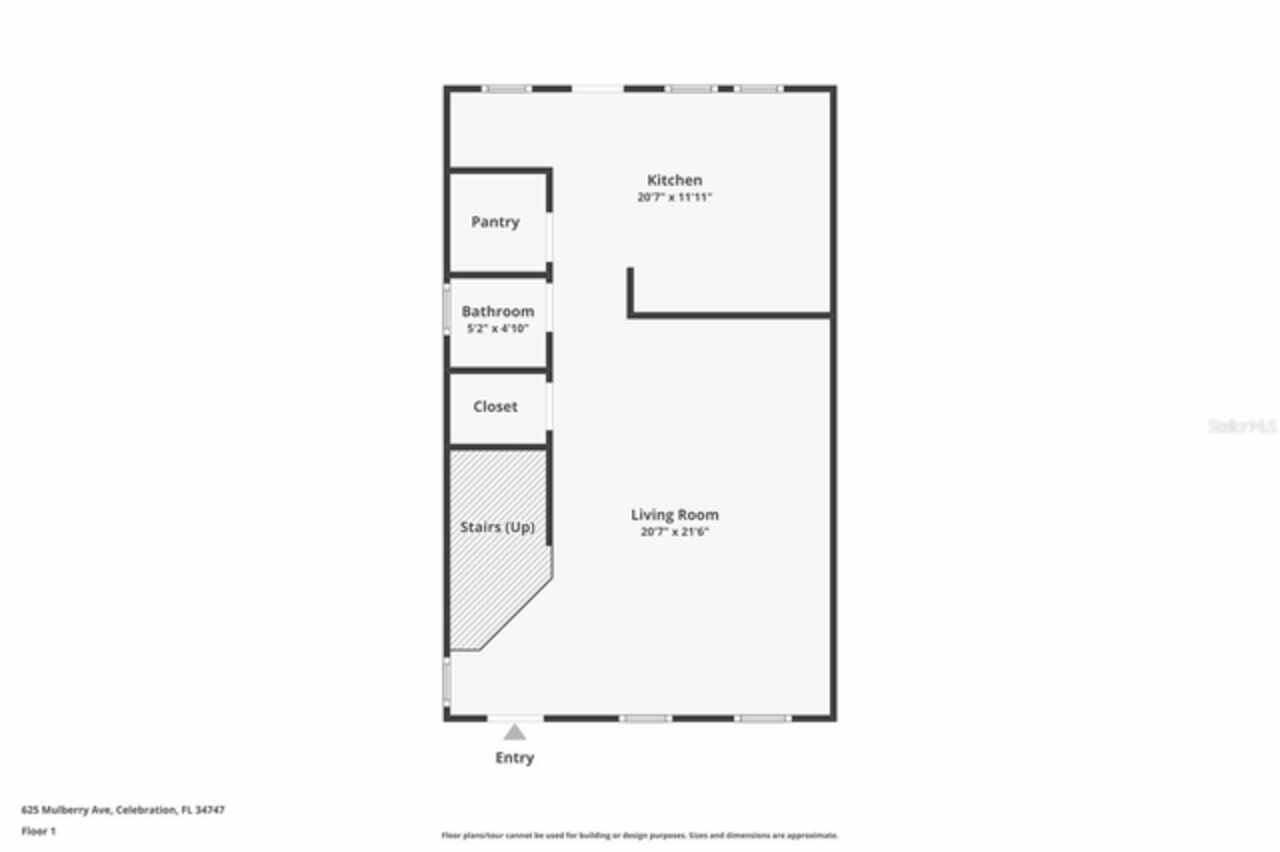
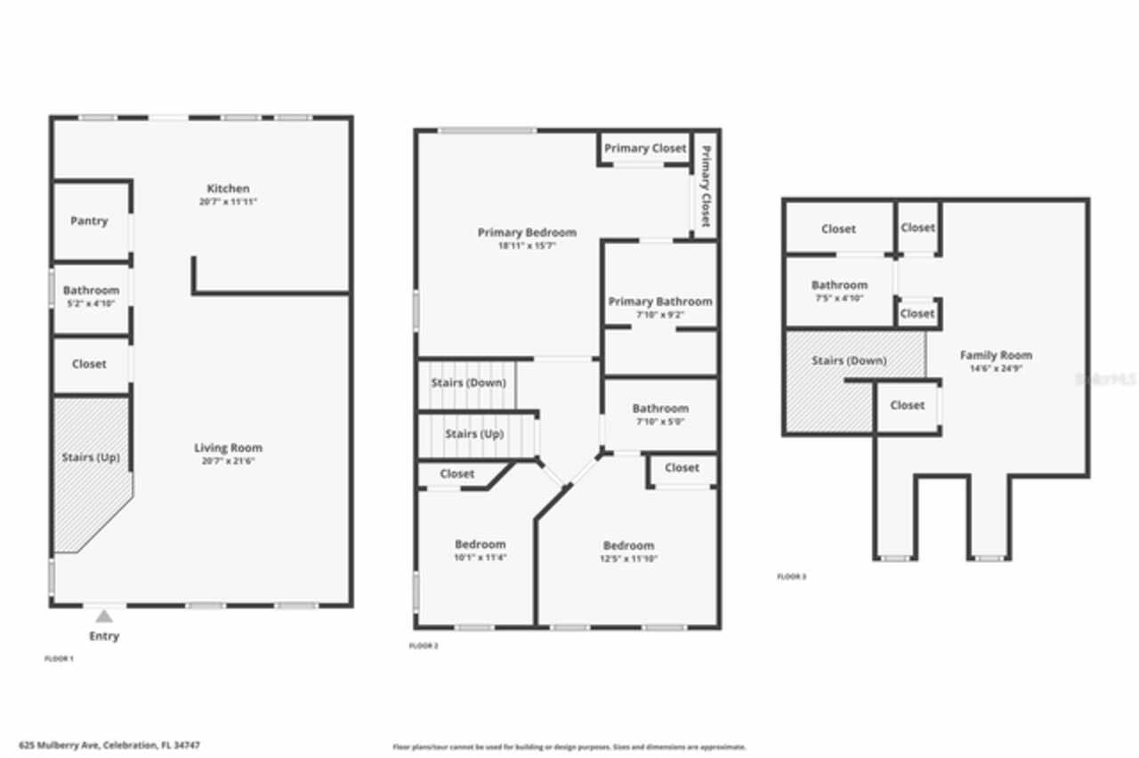
Welcome to a residence that embodies elegance, craftsmanship, and the timeless charm of Celebration, Florida. Tucked away in the heart of Celebration’s sought-after downtown Main Village, this exquisite four-bedroom, three-story townhome is a rare gem that combines sophisticated design with an unparalleled location. From the moment you step inside, you’re welcomed by a grand open foyer adorned with rich California hickory hardwood flooring and detailed 5¼" baseboards that gracefully flow throughout the main living spaces. The expansive dining and family room invite refined entertaining and everyday comfort alike. The thoughtfully designed kitchen is a true culinary showcase, featuring custom 42" white espresso cabinetry with crown molding and glass inserts, sleek granite countertops, and a striking glass mosaic tile backsplash. High-end stainless steel appliances include a VIKING microwave, GE Monogram dishwasher, a side-by-side refrigerator, and a glass-top range. A charming breakfast nook offers the perfect perch to enjoy morning coffee while overlooking the beautifully manicured yard. Upstairs, the luxurious primary suite serves as a serene escape, boasting a spa-inspired en suite bathroom complete with a soaking tub, glass-enclosed shower, dual vanity, mosaic tile accents, and oversized tile flooring. Two additional guest bedrooms and a full bath complete the second floor. Ascend to the third level to discover an expansive fourth bedroom with a large walk-in closet—ideal as a guest suite, home office, media room, or private retreat. Living in Celebration means more than just owning a home—it means embracing a lifestyle. Residents enjoy access to community pools, picturesque parks, playgrounds, and over 26 miles of scenic trails for walking and biking. With world-class dining, charming boutiques, and vibrant year-round events just steps away, this home offers the perfect blend of sophistication and convenience. Don’t miss the opportunity to own a true piece of Ce
Property Details
Additional Information
Additional Lease Restrictions
Verify any lease restrictions in the community covenants
Additional Parcels YN
false
Appliances
Dishwasher, Disposal, Dryer, Electric Water Heater, Microwave, Range, Refrigerator, Washer
Association Email
townhall@ciramail.com
Association Fee
413.77
Association Fee Frequency
Quarterly
Association Fee Includes
Pool, Maintenance Structure, Recreational Facilities
Association Fee Requirement
Required
Association URL
celebration.fl.us
Association YN
true
Attached Garage YN
false
Available For Lease YN
1
Bathrooms Total Integer
4
Builder Model
Brookline
Builder Name
Town & Country
Building Area Source
Public Records
Building Area Total
2412
Building Area Total Srch SqM
224.08
Building Area Units
Square Feet
CDDYN
1
Calculated List Price By Calculated SqFt
346.56
Carport YN
false
Community Features
Deed Restrictions, Dog Park, Golf Carts OK, Golf, Irrigation-Reclaimed Water, Park, Playground, Pool, Sidewalks, Street Lights
Construction Materials
Block
Cooling
Central Air
Country
US
Cumulative Days On Market
68
Current Price
725000.00
Direction Faces
Southwest
Elementary School
Celebration K-8
Exterior Features
Sidewalk, Sprinkler Metered
Fireplace YN
false
Flood Zone Code
X
Flood Zone Date
2013-06-18
Flood Zone Panel
12097C0035G
Flooring
Ceramic Tile, Wood
Foundation Details
Slab
Garage Dimensions
20x09
Garage Spaces
1
Garage YN
true
Heating
Central, Electric
High School
Celebration High
Homestead YN
1
Interior Features
Ceiling Fans(s), Living Room/Dining Room Combo, Stone Counters, Walk-In Closet(s)
Internet Address Display YN
true
Internet Automated Valuation Display YN
false
Internet Consumer Comment YN
false
Internet Entire Listing Display YN
true
Laundry Features
Inside
Lease Restrictions YN
1
Levels
Three Or More
List AOR
Orlando Regional
Living Area Meters
194.35
Living Area Source
Public Records
Living Area Units
Square Feet
Lot Features
Landscaped, Level, Sidewalk, Paved
Lot Size Acres
0.08
Lot Size Square Feet
3441
Lot Size Square Meters
320
Middle Or Junior School
Celebration K-8
Minimum Lease
1-2 Years
Modification Timestamp
2025-10-12T18:05:20.937Z
Monthly HOA Amount
137.92
Monthly Maint Amount Addition To HOA
376
New Construction YN
false
Number Of Pets
2
Occupant Type
Owner
Ownership
Fee Simple
Parcel Number
07-25-28-4118-0001-3340
Pet Restrictions
Verify any pet restrictions in the community covenants
Pet Size
Small (16-35 Lbs.)
Pets Allowed
Yes
Pool Private YN
false
Postal Code Plus 4
4660
Property Condition
Completed
Property Description
End Unit
Public Survey Range
28
Public Survey Section
7
RATIO Current Price By Calculated SqFt
346.56
Realtor Info
As-Is, See Attachments
Road Surface Type
Paved
Roof
Shingle
Room Count
7
Senior Community YN
false
Sewer
Public Sewer
Showing Requirements
Appointment Only, Call Listing Agent
Status Change Timestamp
2025-08-05T22:14:00.000Z
Tax Annual Amount
6456.3
Tax Block
1
Tax Book Number
9-76
Tax Legal Description
MEETING HOUSE GREEN REP #6 CELEBRATION VILL 2 PB 9 PG 76-77 LOT 334
Tax Lot
334
Tax Other Annual Assessment Amount
519
Tax Year
2024
Total Acreage
0 to less than 1/4
Total Annual Fees
6167.08
Total Monthly Fees
513.92
Township
25
Universal Property Id
US-12097-N-072528411800013340-R-N
Unparsed Address
625 MULBERRY AVE
Utilities
Electricity Connected, Public, Underground Utilities
Water Source
Public
Waterfront YN
false
Zoning
OPUD
Neighborhood Map
Popup

Property Photos
Listing Photo
Listing Photo
Listing Photo
Listing Photo
Listing Photo
Listing Photo
Listing Photo
Listing Photo
Listing Photo
Listing Photo
Listing Photo
Listing Photo
Listing Photo
Listing Photo
Listing Photo
Listing Photo
Listing Photo
Listing Photo
Listing Photo
Listing Photo
Listing Photo
Listing Photo
Listing Photo
Listing Photo
Listing Photo
Listing Photo
Listing Photo
Listing Photo
Listing Photo
Listing Photo
Listing Photo
Listing Photo
Listing Photo
Listing Photo
Listing Photo
Listing Photo
Listing Photo
Listing Photo
Listing Photo
Listing Photo
Listing Photo
Listing Photo
Listing Photo
Listing Photo
Listing Photo
Listing Photo
Listing Photo
Listing Photo
Listing Photo
Listing Photo
Listing Photo
Listing Photo
Listing Photo
Listing Photo
Listing Photo
Listing Photo
Listing Photo
Listing Photo
Listing Photo
Listing Photo
Listing Photo
Listing Photo
Listing Photo
Listing Photo
Listing Photo
Listing Photo
Listing Photo
Listing Photo
Listing Photo
Listing Photo
Listing Photo
Listing Photo
Listing Photo
Listing Photo
Listing Photo
Listing Photo
Listing Photo
Listing Photo
Listing Photo
Listing Photo
Listing Photo
Listing Photo
Listing Photo
Listing Photo
Listing Photo
Listing Photo
Listing Photo
Listing Photo
Listing Photo
Listing Photo
Listing Photo
Listing Photo
Listing Photo
Listing Photo
Listing Photo
Listing Photo
Listing Photo
Listing Photo
Listing Photo
Listing Photo
Listing Photo
Listing Photo
Listing Photo
Listing Photo
Listing Photo
Listing Photo
Listing Photo
Listing Photo
Listing Photo
Listing Photo
Listing Photo
Listing Photo
Listing Photo
Listing Photo
Listing Photo
Listing Photo
Listing Photo
Listing Photo
Listing Photo
Listing Photo
Listing Photo
Listing Photo
Listing Photo
Listing Photo
Listing Photo
Listing Photo
Listing Photo
Listing Photo
Listing Photo
Listing Photo
Listing Photo
Listing Photo
Listing Photo
Listing Photo
Listing Photo
Listing Photo
Listing Photo
Listing Photo

MLS #MFRO6332348 Listing courtesy of Stanica Realty Group provided by Stellar MLS.

Similar Listings

$699,000
625 Mulberry Avenue
Celebration
4BR/3BA
| Pending
$728,000
205 Norfolk Place
Celebration
4BR/3BA
| Active
$749,000
205 Norfolk Place
Celebration
4BR/3BA
| Active



All listing information is deemed reliable but not guaranteed and should be independently verified through personal inspection by appropriate professionals. Listings displayed on this website may be subject to prior sale or removal from sale; availability of any listing should always be independent verified. Listing information is provided for consumer personal, non-commercial use, solely to identify potential properties for potential purchase; all other use is strictly prohibited and may violate relevant federal and state law. The source of the listing data is as follows: Stellar MLS (updated 3/10/26 4:14 PM) |

Listing Search



Translate Tool

Featured Listings
Crystal Beach Real Estate
$1,094,999
4 BED
2 BATH
Under Construction. CRYSTAL BEACH LUXURY CRAFTSMAN! NEAR COMPLETION! MAKE THIS BEAUTIFUL HOME YOURS! This new 4BR/2BA/2C... Read More
Sarasota Real Estate
$1,200,000
3 BED
3 BATH
One or more photo(s) has been virtually staged. PRICED TO SELL -SARASOTA COUNTY - LOCATED NORTH OF THE STICKNEY POINT BR... Read More
Weeki Wachee Real Estate
$949,000
3 BED
2 BATH
One or more photo(s) has been virtually staged. Welcome to your dream coastal retreat on Pine Island in Weeki Wachee, wh... Read More
Sarasota Real Estate
$1,199,000
4 BED
4 BATH
Your private oasis close to everything awaits! Welcome home to this beautiful extensively upgraded 4 bed, 4 bath, 4452 s... Read More
Bradenton Real Estate
$895,000
4 BED
3 BATH
$43,000 PRICE IMPROVEMENT!! This tropical adventure home is the one you've been waiting for, where everyday living is a ... Read More
Clearwater Beach Real Estate
$899,000
2 BED
2 BATH
CORNER PENTHOUSE WITH AMAZING BAY & GULF VIEWS!!! This new custom design two bedroom, two bathroom condo has amazing vie... Read More
Gainesville Real Estate
$900,000
3 BED
2 BATH
Privacy, water views, and room to enjoy the outdoors define this beautifully updated single-story estate located at the ... Read More
St Petersburg Real Estate
$1,175,000
3 BED
3 BATH
This exceptional waterfront residence is positioned on a premier corner lot at the end of a quiet cul-de-sac in the high... Read More
New Port Richey Real Estate
$1,399,950
3 BED
2 BATH
One or more photo(s) has been virtually staged. Welcome to your dream waterfront oasis! This stunning 3-bedroom, 2.5-bat... Read More
St Petersburg Real Estate
$1,200,000
4 BED
2 BATH
One or more photo(s) has been virtually staged. This vintage home spans four lots including a spring-fed pond and mature... Read More
Contact Sandra Pardo

407-990-2746

Wendy Morris LLC

Licensed in the State of Florida
BK 3146762
16797 Broadwater Avenue
Winter Garden, Florida 34787

Your privacy is our utmost concern. We will never sell your personal information. Privacy Policy
©2026 sandrapardohomes.com - all rights reserved. | Site Map