407-990-2746
Menu

6220 Hedgesparrows Lane, Sanford, FL

NEXT
PREV
$680,000

($229/sqft)

List Status: Active
6220 Hedgesparrows Lane
Sanford, FL 32771


4 beds
3 baths
2975 living sqft
Top Features
  • Subdivision: Buckingham Estates Ph 3 & 4
  • Built in  2005
  • Single Family Residence
Description
Property Details
Additional Information
Additional Lease Restrictions
Please verify with city and county restrictions.
Additional Parcels YN
false
Additional Rooms
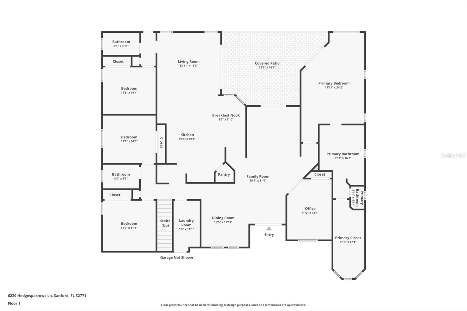
Bonus Room, Den/Library/Office, Family Room, Formal Living Room Separate, Great Room, Interior In-Law Suite w/Private Entry
Alternate Key Folio Num
3519295RN00002180
Appliances
Dishwasher, Disposal, Dryer, Microwave, Range, Refrigerator, Washer
Association Amenities
Clubhouse, Gated, Playground, Pool, Spa/Hot Tub, Trail(s)
Association Email
KKING@SENTRYMGT.COM
Association Fee
584
Association Fee Frequency
Quarterly
Association Fee Includes
Guard - 24 Hour, Common Area Taxes, Pool, Private Road, Recreational Facilities, Security
Association Fee Requirement
Required
Association URL
https://www.mybuckinghamestates.com/home/
Association YN
true
Attached Garage YN
true
Available For Lease YN
1
Bathrooms Total Integer
3
Building Area Source
Public Records
Building Area Total
3688
Building Area Total Srch SqM
342.63
Building Area Units
Square Feet
Calculated List Price By Calculated SqFt
228.57
Carport YN
false
Community Features
Clubhouse, Gated Community - Guard, Playground, Pool
Construction Materials
Block, Stucco
Cooling
Central Air
Country
US
Cumulative Days On Market
64
Current Price
680000.00
Direction Faces
South
Exterior Features
Lighting, Private Mailbox, Sidewalk
Fencing
Vinyl
Fireplace YN
false
Flood Zone Code
X
Flood Zone Date
2007-09-28
Flood Zone Panel
12117C0045F
Flooring
Laminate
Foundation Details
Slab
Furnished
Unfurnished
Garage Spaces
2
Garage YN
true
Heating
Central
Interior Features
Ceiling Fans(s), Eat-in Kitchen, Open Floorplan, Primary Bedroom Main Floor, Solid Surface Counters, Walk-In Closet(s)
Internet Address Display YN
true
Internet Automated Valuation Display YN
false
Internet Consumer Comment YN
false
Internet Entire Listing Display YN
true
Laundry Features
Laundry Room
Levels
Two
List AOR
Orlando Regional
Living Area Meters
276.39
Living Area Source
Public Records
Living Area Units
Square Feet
Lot Features
In County, Landscaped, Sidewalk, Paved
Lot Size Acres
0.24
Lot Size Square Feet
10327
Lot Size Square Meters
959
Minimum Lease
8-12 Months
Modification Timestamp
2026-01-27T14:52:09.416Z
Monthly HOA Amount
194.67
New Construction YN
false
Occupant Type
Vacant
Ownership
Fee Simple
Parcel Number
35-19-29-5RN-0000-2180
Patio And Porch Features
Covered, Patio, Rear Porch
Pet Restrictions
Please verify with city and county restrictions.
Pets Allowed
Yes
Pool Private YN
false
Postal Code Plus 4
6497
Public Remarks
Welcome home to this beautifully maintained 4-bedroom, 3-bathroom single-family residence, perfectly positioned on a desirable corner lot in one of Sanford’s most charming residential areas. With new flooring, flexible living spaces, and modern upgrades throughout, this home offers the perfect balance of comfort, style, and convenience. NEW ROOF PAID FOR AND COMING! NEW Flooring 2025, NEW Toilets 2025, (2)AC units: 2019 & 2020, Water Heater 2019, Refrigerator 2023. The spacious living and dining areas flow seamlessly into the well-appointed kitchen, which features stainless steel appliances, granite countertops, and ample cabinet space, ideal for everyday living or hosting family and friends. The thoughtful floor plan includes generously sized bedrooms and well-maintained bathrooms, creating a warm and welcoming environment. One of the standout features of this home is the bonus room above the garage. This versatile space can be used as a private guest suite, media room, home office, playroom, or hobby room, offering endless possibilities to fit your lifestyle. The corner lot adds extra privacy, curb appeal, and outdoor space, making it perfect for gardening, relaxing, or entertaining. Cross Seminole Trail runs right through this neighborhood, giving you access to miles of beautifully maintained space for biking, walking, or jogging. Buckingham Estates is minutes from amazing restaurant and shopping in Sanford AND in Lake Mary, each with a variety of community events to entertain and delight you. Conveniently, you'll also find easy access to the expressways, making it a quick drive to several beaches, or downtown Orlando and all of the amusement parks. This home combines modern comfort, flexible living, and the rich lifestyle the Heathrow area is known for. Move-in ready and full of character, this is an opportunity you will not want to miss.
Public Survey Range
29
Public Survey Section
35
RATIO Current Price By Calculated SqFt
228.57
Realtor Info
No Sign
Road Surface Type
Paved
Roof
Shingle
Room Count
13
Senior Community YN
false
Sewer
Public Sewer
Showing Requirements
Sentri Lock Box, See Remarks, ShowingTime
Status Change Timestamp
2025-11-24T06:40:38.000Z
Stories Total
2
Tax Annual Amount
7255.51
Tax Block
0000
Tax Book Number
65-65
Tax Legal Description
LOT 218 BUCKINGHAM ESTATES PHASES 3 AND 4 PB 65 PGS 65 - 68
Tax Lot
218
Tax Year
2024
Total Acreage
0 to less than 1/4
Total Annual Fees
2336.00
Total Monthly Fees
194.67
Township
19
Universal Property Id
US-12117-N-351929500002180-R-N
Unparsed Address
6220 HEDGESPARROWS LN
Utilities
BB/HS Internet Available, Cable Available, Phone Available, Sewer Available, Water Available
Vegetation
Mature Landscaping
Water Source
Public
Waterfront YN
false
Window Features
Blinds
Zoning
PUD
Neighborhood Map
Popup

Property Photos
Listing Photo
Listing Photo
Listing Photo
Listing Photo
Listing Photo
Listing Photo
Listing Photo
Listing Photo
Listing Photo
Listing Photo
Listing Photo
Listing Photo
Listing Photo
Listing Photo
Listing Photo
Listing Photo
Listing Photo
Listing Photo
Listing Photo
Listing Photo
Listing Photo
Listing Photo
Listing Photo
Listing Photo
Listing Photo
Listing Photo
Listing Photo
Listing Photo
Listing Photo
Listing Photo
Listing Photo
Listing Photo
Listing Photo
Listing Photo
Listing Photo
Listing Photo
Listing Photo
Listing Photo
Listing Photo
Listing Photo
Listing Photo
Listing Photo
Listing Photo
Listing Photo
Listing Photo
Listing Photo
Listing Photo
Listing Photo
Listing Photo
Listing Photo
Listing Photo
Listing Photo
Listing Photo
Listing Photo
Listing Photo
Listing Photo
Listing Photo
Listing Photo
Listing Photo
Listing Photo
Listing Photo
Listing Photo
Listing Photo
Listing Photo
Listing Photo
Listing Photo
Listing Photo
Listing Photo
Listing Photo
Listing Photo
Listing Photo
Listing Photo
Listing Photo
Listing Photo
Listing Photo
Listing Photo
Listing Photo
Listing Photo
Listing Photo
Listing Photo
Listing Photo
Listing Photo
Listing Photo
Listing Photo
Listing Photo
Listing Photo
Listing Photo
Listing Photo

MLS #MFRTB8450460 Listing courtesy of Lpt Realty, Llc provided by Stellar MLS.

Similar Listings

$619,000
1012 Gloryland Court
Sanford
4BR/3BA
| Active
$625,000
1457 Paget Cove
Sanford
4BR/3BA
| Pending
$644,999
1425 Paget Cove
Sanford
4BR/3BA
| Active
$654,000
2325 River Tree Circle
Sanford
4BR/3BA
| Active



All listing information is deemed reliable but not guaranteed and should be independently verified through personal inspection by appropriate professionals. Listings displayed on this website may be subject to prior sale or removal from sale; availability of any listing should always be independent verified. Listing information is provided for consumer personal, non-commercial use, solely to identify potential properties for potential purchase; all other use is strictly prohibited and may violate relevant federal and state law. The source of the listing data is as follows: Stellar MLS (updated 1/27/26 11:49 PM) |

Listing Search



Translate Tool

Featured Listings
Clearwater Real Estate
$1,449,000
5 BED
4 BATH
Bradenton Real Estate
$1,195,000
3 BED
2 BATH
Hilliard Real Estate
$899,900
4 BED
3 BATH
University Park Real Estate
$1,125,000
3 BED
3 BATH
Bradenton Real Estate
$899,900
4 BED
3 BATH
Tarpon Springs Real Estate
$850,000
4 BED
2 BATH
Punta Gorda Real Estate
$1,196,000
4 BED
3 BATH
Reunion Real Estate
$975,000
5 BED
4 BATH
St Petersburg Real Estate
$849,999
4 BED
2 BATH
Orlando Real Estate
$859,000
4 BED
3 BATH
Contact Sandra Pardo

407-990-2746

Wendy Morris LLC

Licensed in the State of Florida
BK 3146762
16797 Broadwater Avenue
Winter Garden, Florida 34787

Your privacy is our utmost concern. We will never sell your personal information. Privacy Policy
©2026 sandrapardohomes.com - all rights reserved. | Site Map