407-990-2746
Menu

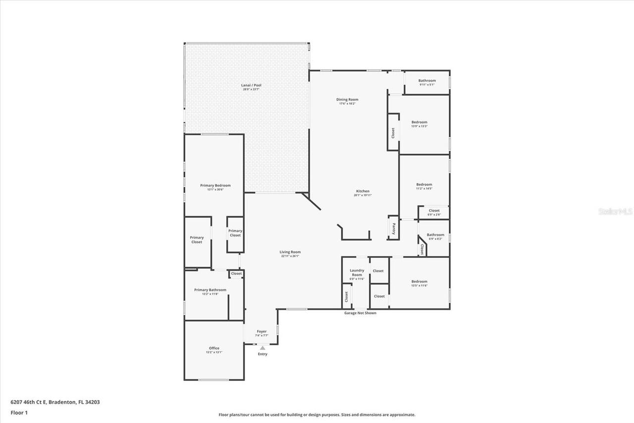
6207 46th E Court, Bradenton, FL

NEXT
PREV
$649,500

($224/sqft)

List Status: Active
6207 46th E Court
Bradenton, FL 34203


4 beds
3 baths
2900 living sqft
Top Features
  • View: Water, Trees/Woods
  • Subdivision: Mandalay Ph Ii
  • Built in  2011
  • Single Family Residence
Description
Welcome to your private retreat in the highly sought after Mandalay community of Bradenton. Tucked away on a quiet cul-de-sac and backing up to a peaceful pond and nature preserve, this beautifully maintained four-bedroom, three-bath home offers the perfect blend of luxury, comfort, and Florida lifestyle living. Built in 2011, this impressive residence features 2,900 square feet of living space and 3,821 total square feet, along with a spacious three-car garage and insulated exterior block walls for energy efficiency and added peace of mind. Step inside to discover brand new carpet in all bedrooms and the bonus room, creating a fresh and inviting atmosphere. The thoughtfully designed floor plan includes a versatile bonus room that can serve as a home office, media room, or play space. The heart of the home is the expansive kitchen, showcasing cherry cabinetry with crown molding, light rail, and under-cabinet lighting, along with gleaming granite countertops and a double oven. The open-concept layout flows seamlessly into the main living areas, making it ideal for both everyday living and entertaining. Outdoors, your private oasis awaits. Relax year-round in the screened-in heated pool while enjoying serene pond views and the natural beauty of the preserve. You will certainly appreciate the quiet and tranquil setting. Located in Bradenton, this home offers exceptional convenience. Enjoy premier shopping and dining at The Mall at University Town Center, explore the vibrant charm of Downtown Sarasota and Downtown Bradenton, or spend your days relaxing on the beautiful Gulf Coast beaches just minutes away. This is more than a home. It is a lifestyle opportunity in one of Bradenton’s most desirable gated communities. Schedule your private showing today.
Property Details
Additional Information
Additional Lease Restrictions
Buyer and Buyer's Agent are to verify all lease restrictions with management company and HOA Board. See website for additional details @ Mymandalayfl.com
Additional Parcels YN
false
Additional Rooms
Attic, Bonus Room
Alternate Key Folio Num
1878909259
Appliances
Dishwasher, Disposal, Dryer, Electric Water Heater, Microwave, Range, Refrigerator, Washer
Association Email
Gina@sunstatemanagement.com
Association Fee
475
Association Fee Frequency
Quarterly
Association Fee Requirement
Required
Association URL
mymandalayfl.com
Association YN
true
Attached Garage YN
true
Available For Lease YN
1
Bathrooms Total Integer
3
Building Area Source
Public Records
Building Area Total
3821
Building Area Total Srch SqM
354.98
Building Area Units
Square Feet
Calculated List Price By Calculated SqFt
223.97
Carport YN
false
Community Features
Deed Restrictions, Gated Community - No Guard, Irrigation-Reclaimed Water, Playground, Sidewalks, Street Lights
Construction Materials
Block, Stucco
Cooling
Central Air
Country
US
Cumulative Days On Market
7
Current Price
649500.00
Direction Faces
Southwest
Exterior Features
Hurricane Shutters, Lighting, Private Mailbox, Rain Gutters, Sidewalk, Sliding Doors
Fireplace YN
false
Flood Zone Code
X
Flood Zone Date
2014-03-17
Flood Zone Panel
12081C0317E
Flooring
Carpet, Ceramic Tile, Hardwood
Foundation Details
Slab
Furnished
Unfurnished
Garage Spaces
3
Garage YN
true
Heating
Heat Pump
Home Warranty YN
false
Interior Features
Ceiling Fans(s), High Ceilings, In Wall Pest System, Open Floorplan, Split Bedroom, Stone Counters, Thermostat, Tray Ceiling(s), Walk-In Closet(s)
Internet Address Display YN
true
Internet Automated Valuation Display YN
true
Internet Consumer Comment YN
false
Internet Entire Listing Display YN
true
Laundry Features
Laundry Room
Lease Restrictions YN
1
Levels
One
List AOR
Sarasota - Manatee
Living Area Meters
269.42
Living Area Source
Public Records
Living Area Units
Square Feet
Lot Features
Conservation Area, Cul-De-Sac
Lot Size Acres
0.34
Lot Size Square Feet
14998
Lot Size Square Meters
1393
Minimum Lease
6 Months
Modification Timestamp
2026-02-21T19:06:35.563Z
Monthly HOA Amount
158.33
New Construction YN
false
Occupant Type
Vacant
Other Equipment
Irrigation Equipment
Ownership
Fee Simple
Parcel Number
1878909259
Pet Restrictions
Per Manatee County Leash Law and HOA Covenants, See rules and regulations for more details. For additional information see website: Mymandalayfl.com
Pets Allowed
Yes
Pool Private YN
true
Postal Code Plus 4
0007
Public Survey Range
18
Public Survey Section
21
RATIO Current Price By Calculated SqFt
223.97
Realtor Info
As-Is, Lease Restrictions
Road Surface Type
Asphalt
Roof
Tile
Room Count
9
SW Subdiv Community Name
Mandalay
Security Features
Gated Community, Security System Owned, Smoke Detector(s)
Senior Community YN
false
Sewer
Public Sewer
Showing Requirements
Supra Lock Box, Appointment Only, Gate Code Required, See Remarks, ShowingTime
Status Change Timestamp
2026-02-14T13:46:44.000Z
Tax Annual Amount
9796
Tax Block
5
Tax Book Number
52-154
Tax Legal Description
LOT 3 BLK 5 MANDALAY PHASE II INSERT" LESS 1/2 INTEREST IN MIN RTS DESC IN DB 342/70" PI#18789.0925/9
Tax Lot
3
Tax Year
2024
Total Acreage
1/4 to less than 1/2
Total Annual Fees
1900.00
Total Monthly Fees
158.33
Township
35
Universal Property Id
US-12081-N-1878909259-R-N
Unparsed Address
6207 46TH CT E
Utilities
BB/HS Internet Available, Electricity Connected, Sewer Connected, Sprinkler Recycled, Underground Utilities, Water Connected
Water Source
Public
Water View
Pond
Water View YN
1
Waterfront YN
false
Zoning
PDMU
Neighborhood Map
Popup

Property Photos
Listing Photo
Listing Photo
Listing Photo
Listing Photo
Listing Photo
Listing Photo
Listing Photo
Listing Photo
Listing Photo
Listing Photo
Listing Photo
Listing Photo
Listing Photo
Listing Photo
Listing Photo
Listing Photo
Listing Photo
Listing Photo
Listing Photo
Listing Photo
Listing Photo
Listing Photo
Listing Photo
Listing Photo
Listing Photo
Listing Photo
Listing Photo
Listing Photo
Listing Photo
Listing Photo
Listing Photo
Listing Photo
Listing Photo
Listing Photo
Listing Photo
Listing Photo
Listing Photo
Listing Photo
Listing Photo
Listing Photo
Listing Photo
Listing Photo
Listing Photo
Listing Photo
Listing Photo
Listing Photo
Listing Photo
Listing Photo
Listing Photo
Listing Photo
Listing Photo
Listing Photo
Listing Photo
Listing Photo
Listing Photo
Listing Photo
Listing Photo
Listing Photo
Listing Photo
Listing Photo
Listing Photo
Listing Photo
Listing Photo
Listing Photo
Listing Photo
Listing Photo
Listing Photo
Listing Photo
Listing Photo
Listing Photo
Listing Photo
Listing Photo
Listing Photo
Listing Photo
Listing Photo
Listing Photo
Listing Photo
Listing Photo
Listing Photo
Listing Photo
Listing Photo
Listing Photo
Listing Photo
Listing Photo

MLS #MFRA4681203 Listing courtesy of Fine Properties provided by Stellar MLS.

Similar Listings

$584,900
6882 Tailfeather Way
Bradenton
4BR/3BA
| Active
$584,900
6308 Cormorant Court
Bradenton
4BR/3BA
| Active
$589,000
4423 Useppa Drive
Bradenton
4BR/3BA
| Active
$589,000
7156 Marsh View Terrace
Bradenton
4BR/3BA
| Active



All listing information is deemed reliable but not guaranteed and should be independently verified through personal inspection by appropriate professionals. Listings displayed on this website may be subject to prior sale or removal from sale; availability of any listing should always be independent verified. Listing information is provided for consumer personal, non-commercial use, solely to identify potential properties for potential purchase; all other use is strictly prohibited and may violate relevant federal and state law. The source of the listing data is as follows: Stellar MLS (updated 2/25/26 2:42 AM) |

Listing Search



Translate Tool

Featured Listings
Palmetto Real Estate
$1,098,000
3 BED
3 BATH
PENTHOUSE - SINGLE STORY - 3670 SF. Riviera Dunes Marina Basin is known as a hurricane-protected harbor for boats. The R... Read More
Ocala Real Estate
$1,297,500
4 BED
4 BATH
Enjoy a beautiful custom home without the wait! Unparalleled craftsmanship and exceptional amenities, meticulously craft... Read More
Tampa Real Estate
$1,399,000
3 BED
2 BATH
Classic ranch home with great floor floorplan on waterfront canal in Stoney Point in South Tampa! This is the perfect re... Read More
Winter Garden Real Estate
$825,000
4 BED
3 BATH
Welcome to 13845 Jomatt Loop! This beautifully appointed single-story home offers 4 spacious bedrooms, 3 full bathrooms,... Read More
St Petersburg Real Estate
$819,000
3 BED
2 BATH
Welcome to an exceptional opportunity in the heart of Historic Old Northeast, one of St. Petersburg’s most prestigious a... Read More
St Augustine Real Estate
$1,165,000
3 BED
3 BATH
Under Construction. Under construction with an anticipated completion date of Mar 31, this Anastasia Island home feature... Read More
St Petersburg Real Estate
$1,399,900
4 BED
2 BATH
Welcome to Venetian Isles – Premier Waterfront Living in Northeast St. Petersburg. Located in the highly desirable, deed... Read More
Tampa Real Estate
$939,000
5 BED
3 BATH
Absolutely stunning and completely renovated home in the highly sought-after Highland Park! This beautifully updated 5-b... Read More
Tampa Real Estate
$1,395,000
3 BED
2 BATH
One or more photo(s) has been virtually staged. Welcome to 1012 Rome Avenue — a rare 1913 historic bungalow just a block... Read More
Lakewood Ranch Real Estate
$1,249,990
4 BED
4 BATH
Cresswind Lakewood Ranch by Kolter Homes is an exclusive gated community in Lakewood Ranch, Florida, designed for active... Read More
Contact Sandra Pardo

407-990-2746

Wendy Morris LLC

Licensed in the State of Florida
BK 3146762
16797 Broadwater Avenue
Winter Garden, Florida 34787

Your privacy is our utmost concern. We will never sell your personal information. Privacy Policy
©2026 sandrapardohomes.com - all rights reserved. | Site Map