407-990-2746
Menu

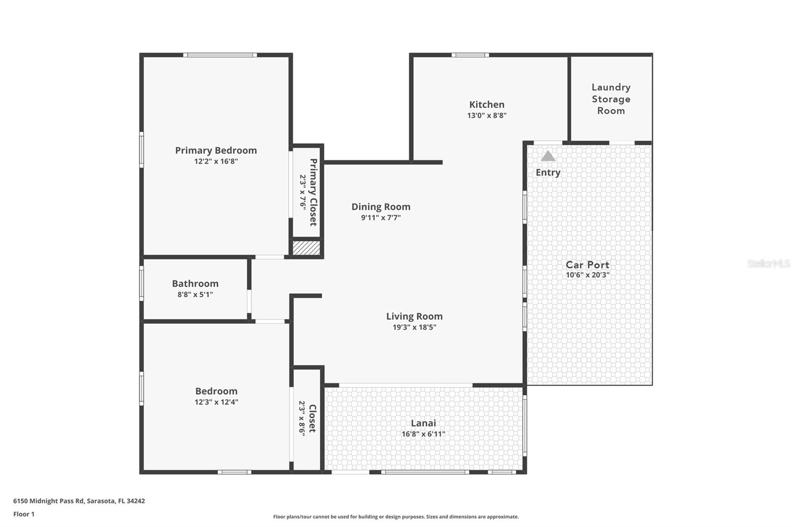
6150 Midnight Pass Road Unit: Unit: 26, Sarasota, FL

NEXT
PREV
$699,000

($635/sqft)

List Status: Pending
6150 Midnight Pass Road
Sarasota, FL 34242


2 beds
2 baths
1101 living sqft
Top Features
  • Frontage: Gulf/Ocean
  • Subdivision: Island House
  • Built in  1967
  • Condominium
Description
Property Details
Additional Information
Additional Lease Restrictions
Refer to Condo docs.
Additional Parcels YN
false
Alternate Key Folio Num
0106032025
Appliances
Dishwasher, Dryer, Microwave, Range, Refrigerator, Washer
Approval Process
Refer to Condo docs.
Architectural Style
Traditional
Association Approval Required YN
1
Association Email
manager@islandhousebeachresorts.com
Association Fee Includes
Cable TV, Common Area Taxes, Pool, Escrow Reserves Fund, Fidelity Bond, Maintenance Structure, Maintenance Grounds, Management, Pest Control, Sewer, Trash, Water
Association URL
www.islandhousebeachresorts.com
Association YN
true
Available For Lease YN
1
Bathrooms Total Integer
2
Building Area Source
Public Records
Building Area Total
1507
Building Area Total Srch SqM
140.00
Building Area Units
Square Feet
Calculated List Price By Calculated SqFt
634.88
Carport Spaces
1
Carport YN
true
Community Features
Buyer Approval Required, Deed Restrictions, Gated Community - No Guard, Pool
Condo Fees
4600
Condo Fees Term
Quarterly
Construction Materials
Block
Contract Status
Inspections
Cooling
Central Air
Country
US
Cumulative Days On Market
54
Current Price
699000.00
Direction Faces
North
Elementary School
Phillippi Shores Elementary
Expected Closing Date
2026-02-20T00:00:00.000
Exterior Features
Lighting, Sliding Doors, Storage
Fireplace YN
false
Flood Zone Code
AE/VE
Flood Zone Date
2024-03-27
Flood Zone Panel
12115C0143G
Floor Number
1
Flooring
Tile
Foundation Details
Slab
Furnished
Turnkey
Garage YN
false
Heating
Electric
Interior Features
Ceiling Fans(s), Living Room/Dining Room Combo, Open Floorplan, Solid Surface Counters, Window Treatments
Internet Address Display YN
true
Internet Automated Valuation Display YN
false
Internet Consumer Comment YN
false
Internet Entire Listing Display YN
true
Laundry Features
Outside
Lease Restrictions YN
1
Levels
One
List AOR
Sarasota - Manatee
Living Area Meters
102.29
Living Area Source
Public Records
Living Area Units
Square Feet
Lot Size Acres
7.23
Lot Size Square Feet
314909
Lot Size Square Meters
29256
Minimum Lease
1 Week
Modification Timestamp
2026-01-19T17:23:10.269Z
Monthly Condo Fee Amount
1533
New Construction YN
false
Num Times per Year
26
Occupant Type
Owner
Ownership
Condominium
Parcel Number
0106032025
Patio And Porch Features
Enclosed, Front Porch
Pets Allowed
No
Pool Private YN
false
Postal Code Plus 4
2282
Price Change Timestamp
2025-11-25T21:31:44.000Z
Property Attached YN
false
Public Remarks
Your dream Beachside villa is here. Smartly appointed with updated bathrooms and kitchen. Turn key furnished! Carport. Weekly rental can provide income for the owner. On-site manager. Island house is a superbly maintained complex featuring two beach cabanas, a beach, rinsing station, beach, chairs, a large heated, swimming pool, shuffleboard with a view, a game room, two gas grills available to all and a beachfront courtyard where you will experience the most amazing sunsets. Ride the free trolley to Siesta Key village for Dining shopping and entertainment.
Public Survey Range
18E
Public Survey Section
18
Purchase Contract Date
2026-01-18
RATIO Current Price By Calculated SqFt
634.88
Realtor Info
As-Is, Assoc approval required, Currently Leased, Docs Available, Floor Plan Available, Foreign Seller, Lease Restrictions, No Sign, Short Term Rental Allowed
Road Responsibility
Private Maintained Road
Road Surface Type
Paved
Roof
Other
Room Count
5
SW Subdiv Community Name
Island House
Security Features
Security Gate
Senior Community YN
false
Sewer
Public Sewer
Showing Requirements
Call Listing Agent, ShowingTime
Spa YN
false
Status Change Timestamp
2026-01-19T17:22:21.000Z
Stories Total
1
Tax Annual Amount
6897.62
Tax Book Number
1-49
Tax Legal Description
UNIT 26 ISLAND HOUSE
Tax Lot
26
Tax Year
2024
Total Annual Fees
18400.00
Total Monthly Fees
1533.33
Township
37S
Universal Property Id
US-12115-N-0106032025-S-26
Unparsed Address
6150 MIDNIGHT PASS RD #26
Utilities
BB/HS Internet Available, Cable Connected, Electricity Connected, Phone Available, Public, Water Connected
Water Access
Gulf/Ocean
Water Access YN
1
Water Body Name
GULF OF MEXICO
Water Frontage Feet Gulf Ocean
150
Water Source
Public
Waterfront Feet Total
150
Waterfront YN
true
Zoning
RMF3
Neighborhood Map
Popup

Property Photos
Listing Photo
Listing Photo
Listing Photo
Listing Photo
Listing Photo
Listing Photo
Listing Photo
Listing Photo
Listing Photo
Listing Photo
Listing Photo
Listing Photo
Listing Photo
Listing Photo
Listing Photo
Listing Photo
Listing Photo
Listing Photo
Listing Photo
Listing Photo
Listing Photo
Listing Photo
Listing Photo
Listing Photo
Listing Photo
Listing Photo
Listing Photo
Listing Photo
Listing Photo
Listing Photo
Listing Photo
Listing Photo
Listing Photo
Listing Photo
Listing Photo
Listing Photo
Listing Photo
Listing Photo
Listing Photo
Listing Photo
Listing Photo
Listing Photo
Listing Photo
Listing Photo
Listing Photo
Listing Photo
Listing Photo
Listing Photo
Listing Photo
Listing Photo
Listing Photo
Listing Photo
Listing Photo
Listing Photo
Listing Photo
Listing Photo

MLS #MFRA4672145 Listing courtesy of Michael Saunders & Company provided by Stellar MLS.

Similar Listings

$629,900
1001 Benjamin Franklin Drive
Sarasota
2BR/2BA
| Active
$631,195
2170 Robinhood Street
Sarasota
2BR/2BA
| Pending
$634,900
5790 Long Shore Loop
Sarasota
2BR/2BA
| Pending
$639,000
777 John Ringling Boulevard
Sarasota
2BR/2BA
| Active



All listing information is deemed reliable but not guaranteed and should be independently verified through personal inspection by appropriate professionals. Listings displayed on this website may be subject to prior sale or removal from sale; availability of any listing should always be independent verified. Listing information is provided for consumer personal, non-commercial use, solely to identify potential properties for potential purchase; all other use is strictly prohibited and may violate relevant federal and state law. The source of the listing data is as follows: Stellar MLS (updated 2/2/26 2:29 AM) |

Listing Search



Translate Tool

Featured Listings
Sarasota Real Estate
$1,200,000
3 BED
3 BATH
Sarasota Real Estate
$949,000
2 BED
2 BATH
Sarasota Real Estate
$930,000
4 BED
3 BATH
Ocala Real Estate
$1,265,000
4 BED
3 BATH
Gainesville Real Estate
$998,000
4 BED
4 BATH
Madeira Beach Real Estate
$1,275,000
2 BED
2 BATH
Englewood Real Estate
$1,390,000
4 BED
3 BATH
Gainesville Real Estate
$950,000
4 BED
3 BATH
Holmes Beach Real Estate
$849,500
2 BED
2 BATH
Orlando Real Estate
$970,000
3 BED
3 BATH
Contact Sandra Pardo

407-990-2746

Wendy Morris LLC

Licensed in the State of Florida
BK 3146762
16797 Broadwater Avenue
Winter Garden, Florida 34787

Your privacy is our utmost concern. We will never sell your personal information. Privacy Policy
©2026 sandrapardohomes.com - all rights reserved. | Site Map