407-990-2746
Menu

5844 Sw 132nd Place, Ocala, FL

NEXT
PREV
$267,990

($202/sqft)

List Status: Pending
5844 Sw 132nd Place
Ocala, FL 34473


3 beds
2 baths
1328 living sqft
Top Features
  • Subdivision: Mcginley Landing
  • Built in  2025
  • Single Family Residence
Description
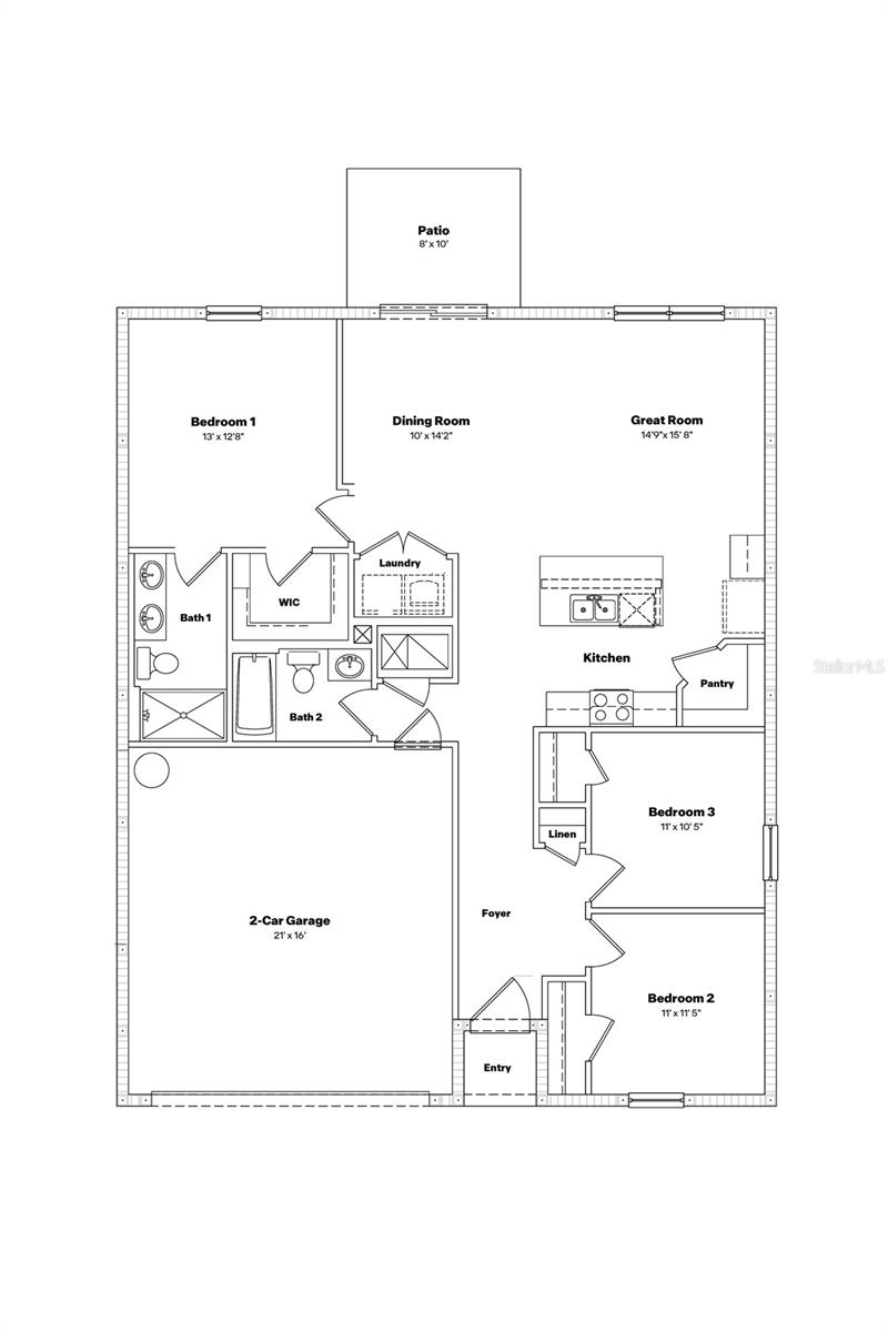
Under Construction. This single-story, all concrete block constructed 3 bedroom, 2 bathroom home features an open concept floorplan that optimizes living space. The spacious kitchen overlooks the great room, dining area, and outdoor patio. The kitchen comes full equipped with stainless-steel appliances including a built-in dishwasher, range, and microwave. The primary suite is located towards the back of the home, featuring a spacious walk-in closet and ensuite bathroom with double vanity sinks. Two additional bedrooms are located towards the front of the home and share a bathroom across the hall. Pictures, photographs, colors, features, and sizes are for illustration purposes only and will vary from the homes as built. Home and community information including pricing, included features, terms, availability and amenities are subjext to change and prior sale at any time without notice or obligation. CRC057592.
Property Details
Additional Information
Additional Lease Restrictions
Per HOA Guidelines
Additional Parcels YN
false
Appliances
Dishwasher, Microwave, Range
Approval Process
Per HOA Guidelines
Association Approval Required YN
1
Association Email
ayla@theboydgroup.com
Association Fee
70
Association Fee Frequency
Monthly
Association Fee Requirement
Required
Association YN
true
Attached Garage YN
true
Available For Lease YN
1
Bathrooms Total Integer
2
Builder License Number
CRC057592
Builder Model
Archer II
Builder Name
DR Horton INC
Building Area Source
Builder
Building Area Total
1328
Building Area Total Srch SqM
123.38
Building Area Units
Square Feet
Calculated List Price By Calculated SqFt
201.80
Carport YN
false
Construction Materials
Block
Cooling
Central Air
Country
US
Cumulative Days On Market
63
Current Price
267990.00
Direction Faces
Northwest
Elementary School
Marion Oaks Elementary School
Expected Closing Date
2027-02-01T00:00:00.000
Fireplace YN
false
Flood Zone Code
x
Flooring
Carpet, Luxury Vinyl
Foundation Details
Slab
Furnished
Unfurnished
Garage Spaces
2
Garage YN
true
Heating
Electric, Heat Pump
High School
West Port High School
Home Warranty YN
true
Interior Features
Open Floorplan
Internet Address Display YN
true
Internet Automated Valuation Display YN
true
Internet Consumer Comment YN
false
Internet Entire Listing Display YN
true
Laundry Features
Laundry Room
Lease Restrictions YN
1
Levels
One
List AOR
Ocala - Marion
Living Area Meters
123.38
Living Area Source
Builder
Living Area Units
Square Feet
Lot Size Acres
0.13
Lot Size Square Feet
5750
Lot Size Square Meters
534
Middle Or Junior School
Horizon Academy/Mar Oaks
Minimum Lease
7 Months
Modification Timestamp
2026-03-02T13:41:09.549Z
Monthly HOA Amount
70.00
New Construction YN
true
Occupant Type
Vacant
Other Equipment
Irrigation Equipment
Ownership
Fee Simple
Parcel Number
41200-56-018
Permit Number
2025071441
Pet Restrictions
Per HOA Guidelines
Pets Allowed
Yes
Pool Private YN
false
Previous List Price
269965
Price Change Timestamp
2026-02-17T19:06:08.000Z
Projected Completion Date
2026-03-08T00:00:00.000
Property Condition
Under Construction
Public Survey Range
21
Public Survey Section
09
Purchase Contract Date
2026-02-28
RATIO Current Price By Calculated SqFt
201.80
Road Surface Type
Paved
Roof
Shingle
Room Count
3
Senior Community YN
false
Sewer
Public Sewer
Showing Requirements
Contact Call Center
Status Change Timestamp
2026-03-02T13:40:21.000Z
Tax Block
-
Tax Book Number
16/146
Tax Legal Description
SEC 09 TWP 17 RGE 21 PLAT BOOK 16 PAGE 146 MCGINLEY LANDING PHASE 1 LOT 18
Tax Lot
18
Tax Year
2025
Total Acreage
0 to less than 1/4
Total Annual Fees
840.00
Total Monthly Fees
70.00
Township
17
Universal Property Id
US-12083-N-4120056018-R-N
Unparsed Address
5844 SW 132ND PL
Utilities
Other
Water Source
Public
Waterfront YN
false
Zoning
PUD
Neighborhood Map
Popup

Property Photos
Listing Photo
Listing Photo
Listing Photo
Listing Photo
Listing Photo
Listing Photo
Listing Photo
Listing Photo
Listing Photo
Listing Photo
Listing Photo
Listing Photo
Listing Photo
Listing Photo
Listing Photo
Listing Photo
Listing Photo
Listing Photo
Listing Photo
Listing Photo
Listing Photo
Listing Photo
Listing Photo
Listing Photo
Listing Photo
Listing Photo
Listing Photo
Listing Photo
Listing Photo
Listing Photo
Listing Photo
Listing Photo
Listing Photo
Listing Photo
Listing Photo
Listing Photo
Listing Photo
Listing Photo
Listing Photo
Listing Photo
Listing Photo
Listing Photo
Listing Photo
Listing Photo
Listing Photo
Listing Photo
Listing Photo
Listing Photo
Listing Photo
Listing Photo

MLS #MFROM714437 Listing courtesy of Dr Horton Realty Of West Central Florida provided by Stellar MLS.

Similar Listings

$241,888
14890 Sw 38th Circle
Ocala
3BR/2BA
| Active
$241,990
2523 Nw 23rd Avenue
Ocala
3BR/2BA
| Active
$241,990
3167 Ne 36th Place
Ocala
3BR/2BA
| Active
$242,000
14876 Sw 23 Place
Ocala
3BR/2BA
| Pending



All listing information is deemed reliable but not guaranteed and should be independently verified through personal inspection by appropriate professionals. Listings displayed on this website may be subject to prior sale or removal from sale; availability of any listing should always be independent verified. Listing information is provided for consumer personal, non-commercial use, solely to identify potential properties for potential purchase; all other use is strictly prohibited and may violate relevant federal and state law. The source of the listing data is as follows: Stellar MLS (updated 3/24/26 1:53 AM) |

Listing Search



Translate Tool

Featured Listings
Tampa Real Estate
$1,219,000
4 BED
3 BATH
One or more photo(s) has been virtually staged. MOTIVATED SELLER! Exquisitely stunning custom luxury new construction po... Read More
St Cloud Real Estate
$990,000
3 BED
2 BATH
Bring the Farm Animals!! This stunning pool home sits on just over 2 acres in desirable Bay Lake Ranch with NO HOA, offe... Read More
Apollo Beach Real Estate
$925,000
5 BED
4 BATH
Don't miss your opportunity to own this stunning waterfront home in the coveted Waterset community! Celebrated as one of... Read More
Venice Real Estate
$850,000
2 BED
2 BATH
Incredible Gulf views await from this spectacular 8th-floor condo ideally located directly on Venice Beach. Historic Dow... Read More
Brooksville Real Estate
$899,000
4 BED
3 BATH
One or more photo(s) has been virtually staged. Pre-Construction. To be built. Beautiful New Construction Home...Estimat... Read More
St Petersburg Real Estate
$998,000
4 BED
2 BATH
Welcome to 1310 47th Ave N—a beautifully designed home that blends space, functionality, and everyday comfort in a highl... Read More
Riverview Real Estate
$849,000
4 BED
3 BATH
Located within the exclusive Waterleaf model row, this exceptional Westbay former model residence offers a unique blend ... Read More
Ocala Real Estate
$996,500
4 BED
3 BATH
Welcome home to this beautifully maintained 4-bedroom, 3-bath residence set on almost 5 acres in sought-after SW Ocala—w... Read More
Winter Garden Real Estate
$882,932
5 BED
4 BATH
Under Construction. What's Special: Dedicated Study | Game Room | East Facing Lot. New Construction - October Completion... Read More
Placida Real Estate
$895,000
2 BED
2 BATH
BOCILLA LAGOON COASTAL COTTAGE | PALM ISLAND Welcome to your island escape on sought-after “Palm” Island, where relaxed ... Read More
Contact Sandra Pardo

407-990-2746

Wendy Morris LLC

Licensed in the State of Florida
BK 3146762
16797 Broadwater Avenue
Winter Garden, Florida 34787

Your privacy is our utmost concern. We will never sell your personal information. Privacy Policy
©2026 sandrapardohomes.com - all rights reserved. | Site Map