407-990-2746
Menu

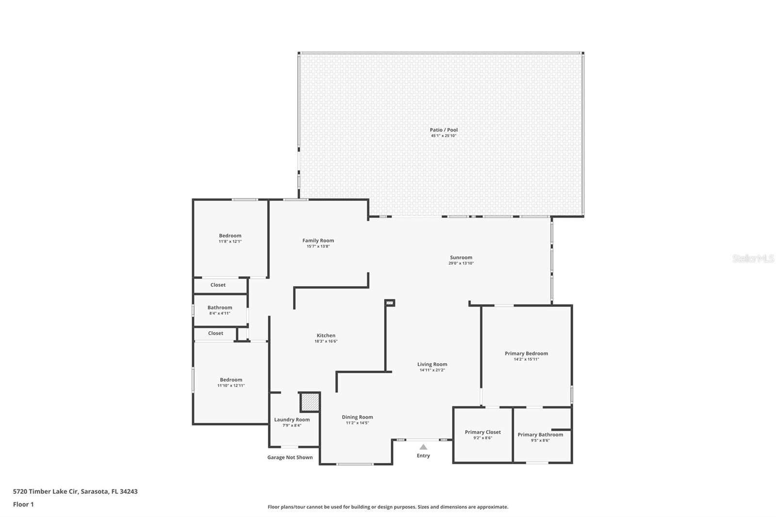
5720 Timber Lake Circle, Sarasota, FL

NEXT
PREV
$580,000

($242/sqft)

List Status: Active
5720 Timber Lake Circle
Sarasota, FL 34243


3 beds
2 baths
2397 living sqft
Top Features
  • Subdivision: Palm-aire At Sarasota
  • Built in  1979
  • Single Family Residence
Description
Property Details
Additional Information
Additional Lease Restrictions
Buyer must be approved by the association. All community information must be verified by the buyer.
Additional Parcels YN
false
Alternate Key Folio Num
2051700306
Appliances
Dishwasher, Dryer, Microwave, Range, Refrigerator, Washer
Approval Process
All community information must be verified by the buyer
Association Approval Required YN
1
Association Email
timberlakevillageassoc@gmail.com
Association Fee
420
Association Fee Frequency
Annually
Association Fee Requirement
Required
Association YN
true
Attached Garage YN
true
Bathrooms Total Integer
2
Building Area Source
Public Records
Building Area Total
2889
Building Area Total Srch SqM
268.40
Building Area Units
Square Feet
Calculated List Price By Calculated SqFt
241.97
Carport YN
false
Construction Materials
Block, Stucco, Wood Siding
Cooling
Central Air
Country
US
Cumulative Days On Market
17
Current Price
580000.00
Direction Faces
West
Elementary School
Kinnan Elementary
Exterior Features
Other, Sliding Doors
Fencing
Masonry
Fireplace YN
false
Flood Zone Code
X
Flood Zone Date
2021-08-10
Flood Zone Panel
12081C0338F
Flooring
Tile
Foundation Details
Slab
Garage Spaces
2
Garage YN
true
Heating
Central
High School
Braden River High
Homestead YN
1
Interior Features
Other
Internet Address Display YN
true
Internet Automated Valuation Display YN
false
Internet Consumer Comment YN
false
Internet Entire Listing Display YN
true
Laundry Features
Other
Lease Restrictions YN
1
Levels
One
List AOR
Sarasota - Manatee
Living Area Meters
222.69
Living Area Source
Owner
Living Area Units
Square Feet
Lot Size Acres
0.29
Lot Size Square Feet
12502
Lot Size Square Meters
1161
Middle Or Junior School
Braden River Middle
Minimum Lease
6 Months
Modification Timestamp
2025-12-04T16:06:09.629Z
Monthly HOA Amount
35.00
New Construction YN
false
Num Of Own Years Prior To Lease
2
Occupant Type
Owner
Ownership
Fee Simple
Parcel Number
2051700306
Patio And Porch Features
Patio, Screened
Pets Allowed
Yes
Pool Private YN
true
Postal Code Plus 4
3021
Price Change Timestamp
2025-11-17T16:00:45.000Z
Public Remarks
Welcome to golf-course living at its best in the highly desirable Palm Aire community! Nestled along manicured fairways views, this beautifully updated 3-bedroom, 2-bath pool home blends modern luxury with a true resort-style lifestyle—just a golf-cart ride to the greens. Step inside to discover a bright, open layout with new baseboards throughout, stylish finishes, and thoughtfully curated upgrades. Both bathrooms have been fully elevated with Grohe shower systems, Emtek fixtures, and custom soft-close cabinetry, creating a spa-like experience after a long day on the course. The heart of the home shines with a chef-ready kitchen featuring a new 2024 stove, new tile backsplash, and brand-new 2025 countertops—perfect for entertaining after a round of golf. Your private outdoor oasis is equally impressive. The expansive screened lanai has been meticulously maintained with stainless steel screws, updated guide wires, and a full rescreening completed in 2021. The pool was remodeled in 2023, showcasing an elegant overflow feature, new sealed pavers, and a variable-speed pump (2020) for efficiency. Enjoy peace of mind with a peel-and-stick roof laminate (2017) carrying a 25-year warranty and a Shark Coatings surface installed in 2025 with a 15-year warranty. Additional premium touches include: • Emtek chrome front door hardware—built to last a lifetime • Beautifully refreshed interiors • A home meticulously maintained for long-term durability and comfort. Whether you're an avid golfer or simply love serene, picturesque surroundings, this home delivers the perfect blend of style, comfort, and golf-course charm. Move-in ready and packed with high-quality upgrades—this is Sarasota living at its finest. Schedule your private showing today!
Public Survey Range
18
Public Survey Section
34
RATIO Current Price By Calculated SqFt
241.97
Road Surface Type
Asphalt
Roof
Shingle
Room Count
10
SW Subdiv Community Name
Palm Aire
Senior Community YN
false
Sewer
Public Sewer
Showing Requirements
Appointment Only, ShowingTime
Status Change Timestamp
2025-11-17T16:00:45.000Z
Tax Annual Amount
2503.38
Tax Book Number
19-199
Tax Legal Description
LOT 5 PALM-AIRE AT SARASOTA SUB UNIT 6 PI#20517.0030/6
Tax Lot
5
Tax Year
2025
Total Acreage
1/4 to less than 1/2
Total Annual Fees
420.00
Total Monthly Fees
35.00
Township
35
Universal Property Id
US-12081-N-2051700306-R-N
Unparsed Address
5720 TIMBER LAKE CIR
Utilities
Electricity Connected, Water Connected
Water Source
Public
Waterfront YN
false
Years Of Owner Prior To Leasing Req YN
1
Zoning
PDR/WPE/
Neighborhood Map
Popup

Property Photos
Listing Photo
Listing Photo
Listing Photo
Listing Photo
Listing Photo
Listing Photo
Listing Photo
Listing Photo
Listing Photo
Listing Photo
Listing Photo
Listing Photo
Listing Photo
Listing Photo
Listing Photo
Listing Photo
Listing Photo
Listing Photo
Listing Photo
Listing Photo
Listing Photo
Listing Photo
Listing Photo
Listing Photo
Listing Photo
Listing Photo
Listing Photo
Listing Photo
Listing Photo
Listing Photo
Listing Photo
Listing Photo
Listing Photo
Listing Photo
Listing Photo
Listing Photo
Listing Photo
Listing Photo
Listing Photo
Listing Photo
Listing Photo
Listing Photo
Listing Photo
Listing Photo
Listing Photo
Listing Photo
Listing Photo
Listing Photo
Listing Photo
Listing Photo
Listing Photo
Listing Photo
Listing Photo
Listing Photo
Listing Photo
Listing Photo
Listing Photo
Listing Photo
Listing Photo
Listing Photo
Listing Photo
Listing Photo
Listing Photo
Listing Photo
Listing Photo
Listing Photo
Listing Photo
Listing Photo
Listing Photo
Listing Photo
Listing Photo
Listing Photo
Listing Photo
Listing Photo
Listing Photo
Listing Photo
Listing Photo
Listing Photo
Listing Photo
Listing Photo
Listing Photo
Listing Photo
Listing Photo
Listing Photo
Listing Photo
Listing Photo
Listing Photo
Listing Photo
Listing Photo
Listing Photo
Listing Photo
Listing Photo
Listing Photo
Listing Photo
Listing Photo
Listing Photo
Listing Photo
Listing Photo
Listing Photo
Listing Photo
Listing Photo
Listing Photo
Listing Photo
Listing Photo
Listing Photo
Listing Photo
Listing Photo
Listing Photo
Listing Photo
Listing Photo
Listing Photo
Listing Photo
Listing Photo
Listing Photo

MLS #MFRA4671628 Listing courtesy of Keller Williams On The Water S provided by Stellar MLS.

Similar Listings

$524,900
2238 Rose Street
Sarasota
3BR/2BA
| Active
$524,990
2836 Marrakesh Lane
Sarasota
3BR/2BA
| Active
$525,000
5287 Heron Way
Sarasota
3BR/2BA
| Active
$525,000
6911 Stetson Street Circle
Sarasota
3BR/2BA
| Pending



All listing information is deemed reliable but not guaranteed and should be independently verified through personal inspection by appropriate professionals. Listings displayed on this website may be subject to prior sale or removal from sale; availability of any listing should always be independent verified. Listing information is provided for consumer personal, non-commercial use, solely to identify potential properties for potential purchase; all other use is strictly prohibited and may violate relevant federal and state law. The source of the listing data is as follows: Stellar MLS (updated 12/5/25 2:17 PM) |

Listing Search



Translate Tool

Featured Listings
Winter Garden Real Estate
$814,900
5 BED
3 BATH
Palm Coast Real Estate
$815,000
3 BED
3 BATH
Sarasota Real Estate
$1,250,000
2 BED
2 BATH
University Park Real Estate
$1,085,000
3 BED
3 BATH
Fort Myers Real Estate
$879,999
4 BED
3 BATH
Gainesville Real Estate
$999,900
5 BED
3 BATH
Lakewood Ranch Real Estate
$949,999
3 BED
2 BATH
Bradenton Real Estate
$1,195,000
2 BED
2 BATH
Orlando Real Estate
$920,000
5 BED
3 BATH
The Villages Real Estate
$895,000
3 BED
2 BATH
Contact Sandra Pardo

407-990-2746

Wendy Morris LLC

Licensed in the State of Florida
BK 3146762
16797 Broadwater Avenue
Winter Garden, Florida 34787

Your privacy is our utmost concern. We will never sell your personal information. Privacy Policy
©2025 sandrapardohomes.com - all rights reserved. | Site Map