407-990-2746
Menu

567 Venice Lane, Sarasota, FL

NEXT
PREV
$1,147,500

($599/sqft)

List Status: Pending
567 Venice Lane
Sarasota, FL 34242


4 beds
2 baths
1915 living sqft
Top Features
  • Subdivision: Siestas Bayside Waterside East
  • Built in  1971
  • Single Family Residence
Description
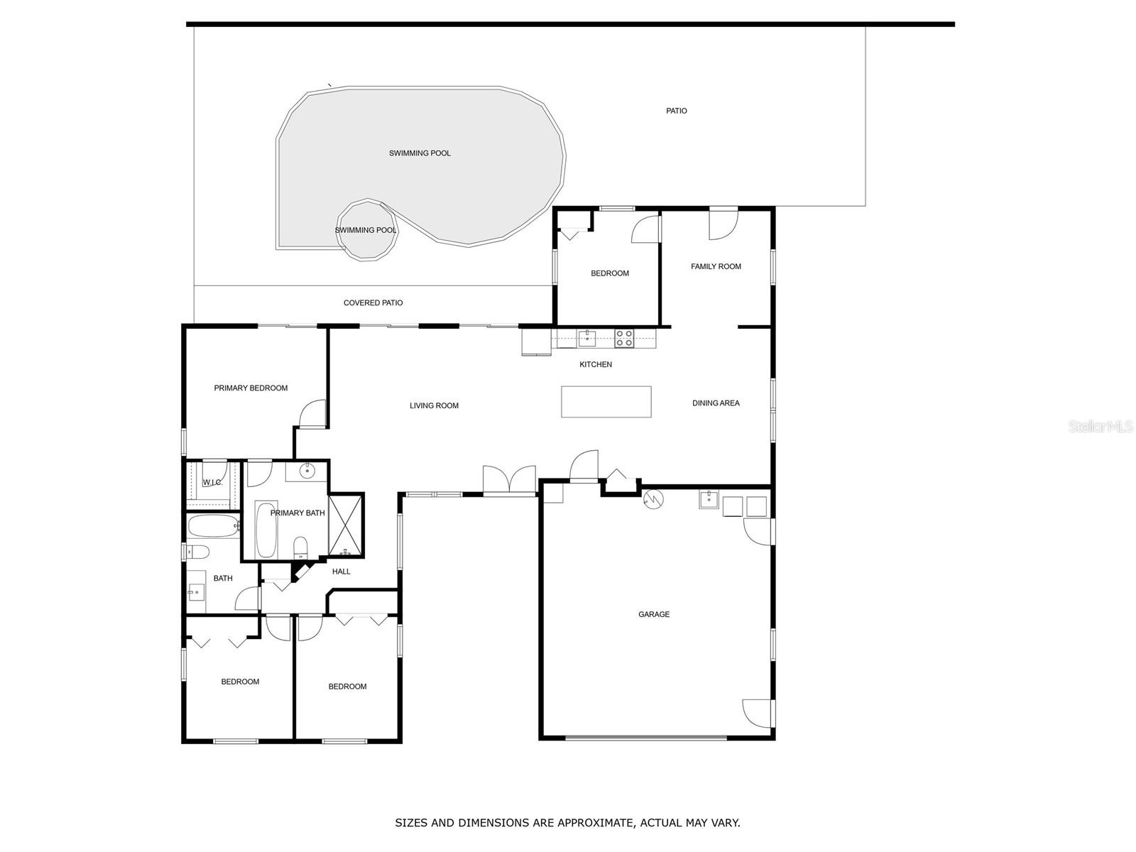
Under contract-accepting backup offers. Under the canopy of grand oaks and banyan trees, this move-in-ready FURNISHED Siesta Key POOL home offers the perfect blend of luxury and coastal charm. Located minutes from the world-famous beach and village, this retreat has been redesigned for island living with almost every inch of the home renovated to perfection! A freshly painted exterior, paver driveway, and xeriscape landscaping create a warm welcome. Inside, an open floor plan creates effortless indoor-outdoor living with tile flooring, bright living area, and pocket sliding glass doors seamlessly connecting to your private backyard oasis. The expansive paradise features a sparkling pool and hot tub with new pump/heater, surrounded by new privacy fencing, and an extended paver patio. The heart of the home is the renovated chef's kitchen, boasting duo-toned soft-close cabinetry, quartz countertops, and tile backsplash. The oversized kitchen island and adjacent dining area set the stage for lively gatherings, while the cozy den opens up to the patio for effortless pool-side alfresco dining. The primary suite features direct pool access and a newly updated bathroom with soaking tub, walk-in shower, and modern finishes. Thoughtfully designed for privacy, the split floor plan includes a poolside guest room along with two additional bedrooms tucked in a private wing with an updated bathroom. Additional updates include a NEW AC system/ductwork and NEW Hot Water Heater ensuring year-round comfort. The oversized two car garage offers plenty of parking and extra space for a golf cart and beach gear. Enjoy the tranquility of the tree lined streets while still having easy access on and off the island. This home is being enjoyed by seasonal renters, but now it’s your turn to enjoy island life! Whether you're looking for a lucrative FURNISHED short-term rental, a seasonal retreat, or a forever home, this renovated Siesta Key gem offers the best of island living!
Property Details
Additional Information
Additional Lease Restrictions
Lease restrictions are per Sarasota County. Visit their site for more information.
Additional Parcels YN
false
Alternate Key Folio Num
0079150022
Appliances
Dishwasher, Disposal, Dryer, Electric Water Heater, Exhaust Fan, Freezer, Ice Maker, Microwave, Range, Refrigerator, Washer
Association YN
false
Attached Garage YN
true
Available For Lease YN
1
Bathrooms Total Integer
2
Building Area Source
Public Records
Building Area Total
2899
Building Area Total Srch SqM
269.33
Building Area Units
Square Feet
Calculated List Price By Calculated SqFt
599.22
Carport YN
false
Construction Materials
Block, Stucco
Contract Status
Appraisal, Financing, Inspections
Cooling
Central Air
Country
US
Cumulative Days On Market
100
Current Price
1147500.00
Direction Faces
Southwest
Expected Closing Date
2026-04-13T00:00:00.000
Exterior Features
Courtyard, Dog Run, Lighting, Sliding Doors
Fencing
Vinyl
Fireplace YN
false
Flood Zone Code
AE
Flood Zone Date
2024-03-27
Flood Zone Panel
12115C0141G
Flooring
Ceramic Tile, Tile
Foundation Details
Slab
Furnished
Turnkey
Garage Spaces
2
Garage YN
true
Heating
Central, Electric
Interior Features
Ceiling Fans(s), Eat-in Kitchen, Kitchen/Family Room Combo, Living Room/Dining Room Combo, Open Floorplan, Primary Bedroom Main Floor, Split Bedroom, Stone Counters, Thermostat, Walk-In Closet(s), Window Treatments
Internet Address Display YN
true
Internet Automated Valuation Display YN
true
Internet Consumer Comment YN
true
Internet Entire Listing Display YN
true
Laundry Features
In Garage
Lease Restrictions YN
1
Levels
One
List AOR
Sarasota - Manatee
Living Area Meters
177.91
Living Area Source
Owner
Living Area Units
Square Feet
Lot Size Acres
0.26
Lot Size Square Feet
11473
Lot Size Square Meters
1066
Minimum Lease
1 Month
Modification Timestamp
2026-02-13T17:48:11.309Z
New Construction YN
false
Occupant Type
Vacant
Ownership
Fee Simple
Parcel Number
0079150022
Pets Allowed
Yes
Pool Private YN
true
Postal Code Plus 4
1255
Previous List Price
1150000
Price Change Timestamp
2026-01-31T16:47:37.000Z
Public Survey Range
17E
Public Survey Section
01
Purchase Contract Date
2026-02-13
RATIO Current Price By Calculated SqFt
599.22
Road Surface Type
Asphalt
Roof
Tile
Room Count
6
SW Subdiv Community Name
Siestas Bayside Waterside
Senior Community YN
false
Sewer
Public Sewer
Showing Requirements
Appointment Only, ShowingTime
Spa Features
Heated, In Ground
Spa YN
true
Status Change Timestamp
2026-02-13T17:47:22.000Z
Stories Total
1
Tax Annual Amount
10988.82
Tax Book Number
19-31
Tax Legal Description
LOT 4 SIESTAS BAYSIDE WATERSIDE EAST
Tax Lot
4
Tax Year
2024
Total Acreage
1/4 to less than 1/2
Total Annual Fees
0.00
Total Monthly Fees
0.00
Township
37S
Universal Property Id
US-12115-N-0079150022-R-N
Unparsed Address
567 VENICE LN
Utilities
BB/HS Internet Available, Cable Connected, Sewer Connected, Water Connected
Water Source
Public
Waterfront YN
false
Window Features
Skylight(s)
Zoning
RSF2
Neighborhood Map
Popup

Property Photos
Listing Photo
Listing Photo
Listing Photo
Listing Photo
Listing Photo
Listing Photo
Listing Photo
Listing Photo
Listing Photo
Listing Photo
Listing Photo
Listing Photo
Listing Photo
Listing Photo
Listing Photo
Listing Photo
Listing Photo
Listing Photo
Listing Photo
Listing Photo
Listing Photo
Listing Photo
Listing Photo
Listing Photo
Listing Photo
Listing Photo
Listing Photo
Listing Photo
Listing Photo
Listing Photo
Listing Photo
Listing Photo
Listing Photo
Listing Photo
Listing Photo
Listing Photo
Listing Photo
Listing Photo
Listing Photo
Listing Photo
Listing Photo
Listing Photo
Listing Photo
Listing Photo
Listing Photo
Listing Photo
Listing Photo
Listing Photo
Listing Photo
Listing Photo
Listing Photo
Listing Photo
Listing Photo
Listing Photo
Listing Photo
Listing Photo
Listing Photo
Listing Photo
Listing Photo
Listing Photo
Listing Photo
Listing Photo
Listing Photo
Listing Photo
Listing Photo
Listing Photo
Listing Photo
Listing Photo
Listing Photo
Listing Photo
Listing Photo
Listing Photo
Listing Photo
Listing Photo
Listing Photo
Listing Photo
Listing Photo
Listing Photo
Listing Photo
Listing Photo
Listing Photo
Listing Photo
Listing Photo
Listing Photo
Listing Photo
Listing Photo

MLS #MFRA4670981 Listing courtesy of Preferred Shore Llc provided by Stellar MLS.

Similar Listings

$1,050,000
4728 White Tail Lane
Sarasota
4BR/2BA
| Pending
$1,095,000
6570 Old Ranch Road
Sarasota
4BR/2BA
| Pending
$1,100,000
5116 Admiral Place
Sarasota
4BR/2BA
| Active
$1,188,999
2820 Alliance Avenue
Sarasota
4BR/2BA
| Pending



All listing information is deemed reliable but not guaranteed and should be independently verified through personal inspection by appropriate professionals. Listings displayed on this website may be subject to prior sale or removal from sale; availability of any listing should always be independent verified. Listing information is provided for consumer personal, non-commercial use, solely to identify potential properties for potential purchase; all other use is strictly prohibited and may violate relevant federal and state law. The source of the listing data is as follows: Stellar MLS (updated 2/13/26 2:35 PM) |

Listing Search



Translate Tool

Featured Listings
Chuluota Real Estate
$1,190,000
4 BED
2 BATH
Welcome to this exceptional custom-built 5-acre estate, where luxury living meets peaceful country surroundings. Built i... Read More
St Petersburg Real Estate
$1,220,000
2 BED
2 BATH
Beautiful two-bedroom, two-and-a-half-bath condo located in the heart of downtown St. Petersburg. Enjoy unbeatable walka... Read More
Sarasota Real Estate
$1,348,000
3 BED
3 BATH
THIS RESORT STYLE POOL HOME with 3 bedroom and 3 bathrooms is situated on a MORE THAN ONE-THIRD ACRE parcel. Surrounded ... Read More
Tarpon Springs Real Estate
$1,125,000
3 BED
3 BATH
Price Reduced! Live the Florida lifestyle in this stunning elevated custom built coastal home, completed in December 202... Read More
Plant City Real Estate
$1,500,000
13 BED
10 BATH
*** Owner wants $900,000, will accept the remainder in owner financing.*** A Rare Multi-Residence Estate with Unlimited ... Read More
Citra Real Estate
$1,095,000
3 BED
2 BATH
Nestled within the picturesque countryside of Citra, this exceptional 21+ acre horse farm offers the perfect blend of ru... Read More
Palm Harbor Real Estate
$999,900
4 BED
3 BATH
One or more photo(s) has been virtually staged. Imagine stepping out your front door to stunning views of Lake Tarpon—or... Read More
Land O Lakes Real Estate
$899,999
5 BED
4 BATH
This home is MOVE IN READY!! Set within the tranquil heart of Land O’ Lakes, this Homes by WestBay Madeira III pool esta... Read More
Safety Harbor Real Estate
$850,000
3 BED
2 BATH
One or more photo(s) has been virtually staged. Absolute perfection awaits at 1812 Pine Hill Drive in Safety Harbor. Met... Read More
Longboat Key Real Estate
$999,000
3 BED
2 BATH
Spacious 3-Bedroom End-Unit Residence in Sought-After Beachplace Welcome to this beautifully maintained three-bedroom, t... Read More
Contact Sandra Pardo

407-990-2746

Wendy Morris LLC

Licensed in the State of Florida
BK 3146762
16797 Broadwater Avenue
Winter Garden, Florida 34787

Your privacy is our utmost concern. We will never sell your personal information. Privacy Policy
©2026 sandrapardohomes.com - all rights reserved. | Site Map