407-990-2746
Menu

5520 Ne 2nd Lane, Ocala, FL

NEXT
PREV
$745,500

($182/sqft)

List Status: Active
5520 Ne 2nd Lane
Ocala, FL 34470


5 beds
4 baths
4100 living sqft
Top Features
  • Subdivision: Oronoque
  • Built in  1978
  • Single Family Residence
Description
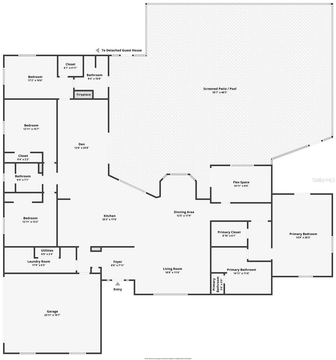
Welcome to your private slice of paradise in the quiet ORONOQUE neighborhood—a spacious 4/3/2 pool home on 1 beautifully landscaped acre, complete with a fully furnished detached 1/1 apartment with its own address, perfect for guests or family. Step inside to an inviting layout centered around a stunning kitchen with a huge island overlooking the family and dining rooms. Enjoy cozy evenings by the wood-burning fireplace or open the sliding doors to connect seamlessly to the screened pool and spa. The expansive master suite features two walk-in closets, French doors to the pool, and a spa-like bath with a double marble vanity, garden tub, and tiled double shower with bench. The property is fully fenced with two gates and a circular driveway, offering excellent parking options including space for an RV. Recent upgrades provide worry-free living: updated HVAC system with new insulation and ductwork, 2024 gutters, 2024 electrical panel and exterior lighting, 2024 pool lighting and heater, and freshly renovated and painted main home. The apartment was renovated in 2022. Ideally located near shopping, dining, parks, medical facilities, and everything Ocala has to offer—this home delivers the perfect balance of tranquility and convenience.
Property Details
Additional Information
Additional Parcels YN
false
Additional Rooms
Family Room, Formal Dining Room Separate
Appliances
Built-In Oven, Dishwasher, Disposal, Electric Water Heater, Ice Maker, Range, Range Hood, Refrigerator
Architectural Style
Contemporary
Association Fee
200
Association Fee Frequency
Annually
Association Fee Requirement
Required
Association YN
true
Attached Garage YN
true
Bathrooms Total Integer
4
Building Area Source
Public Records
Building Area Total
5331
Building Area Total Srch SqM
495.27
Building Area Units
Square Feet
Calculated List Price By Calculated SqFt
181.83
Carport YN
false
Community Features
Street Lights
Construction Materials
Block, Stucco, Frame
Cooling
Central Air
Country
US
Cumulative Days On Market
111
Current Price
745500.00
Direction Faces
North
Exterior Features
French Doors, Storage
Fencing
Fenced, Other
Fireplace Features
Wood Burning
Fireplace YN
true
Flood Zone Code
X
Floor Number
1
Flooring
Tile
Foundation Details
Slab
Furnished
Unfurnished
Garage Dimensions
26X21
Garage Spaces
2
Garage YN
true
Heating
Central, Natural Gas
Homestead YN
1
Interior Features
Built-in Features, Ceiling Fans(s), Eat-in Kitchen, High Ceilings, Kitchen/Family Room Combo, L Dining, Open Floorplan, Split Bedroom, Stone Counters, Thermostat, Vaulted Ceiling(s), Walk-In Closet(s), Window Treatments
Internet Address Display YN
true
Internet Automated Valuation Display YN
true
Internet Consumer Comment YN
true
Internet Entire Listing Display YN
true
Laundry Features
Inside, Laundry Room
Levels
One
List AOR
Ocala - Marion
Living Area Meters
380.90
Living Area Source
Public Records
Living Area Units
Square Feet
Lot Features
Cul-De-Sac
Lot Size Acres
0.99
Lot Size Dimensions
196x220
Lot Size Square Feet
43124
Lot Size Square Meters
4006
Modification Timestamp
2026-03-18T11:21:09.143Z
Monthly HOA Amount
16.67
New Construction YN
false
Number Of Septics
2
Number Of Wells
1
Occupant Type
Owner
Other Structures
Guest House, Other
Ownership
Fee Simple
Parcel Number
2741-001-018
Patio And Porch Features
Enclosed, Screened
Pets Allowed
Yes
Pool Dimensions
14X28
Pool Private YN
true
Postal Code Plus 4
3401
Previous List Price
749250
Price Change Timestamp
2026-01-14T18:56:04.000Z
Public Survey Range
22E
Public Survey Section
13
RATIO Current Price By Calculated SqFt
181.83
Realtor Info
As-Is
Road Surface Type
Paved
Roof
Shingle
Room Count
4
Security Features
Smoke Detector(s)
Senior Community YN
false
Sewer
Septic Tank
Showing Requirements
Supra Lock Box, Appointment Only, ShowingTime
Spa YN
false
Status Change Timestamp
2025-11-27T16:33:37.000Z
Stories Total
1
Tax Annual Amount
9725
Tax Block
A
Tax Book Number
S-045
Tax Legal Description
SEC 13 TWP 15 RGE 22 PLAT BOOK S PAGE 045 ORONOQUE BLK A LOT 18
Tax Lot
18
Tax Year
2025
Total Acreage
1/2 to less than 1
Total Annual Fees
200.00
Total Monthly Fees
16.67
Township
15S
Universal Property Id
US-12083-N-2741001018-R-N
Unparsed Address
5520 NE 2ND LN
Utilities
Cable Connected, Electricity Connected
Vegetation
Trees/Landscaped
Water Source
Well
Waterfront YN
false
Zoning
R1
Neighborhood Map
Popup

Property Photos
Listing Photo
Listing Photo
Listing Photo
Listing Photo
Listing Photo
Listing Photo
Listing Photo
Listing Photo
Listing Photo
Listing Photo
Listing Photo
Listing Photo
Listing Photo
Listing Photo
Listing Photo
Listing Photo
Listing Photo
Listing Photo
Listing Photo
Listing Photo
Listing Photo
Listing Photo
Listing Photo
Listing Photo
Listing Photo
Listing Photo
Listing Photo
Listing Photo
Listing Photo
Listing Photo
Listing Photo
Listing Photo
Listing Photo
Listing Photo
Listing Photo
Listing Photo
Listing Photo
Listing Photo
Listing Photo
Listing Photo
Listing Photo
Listing Photo
Listing Photo
Listing Photo
Listing Photo
Listing Photo
Listing Photo
Listing Photo
Listing Photo
Listing Photo
Listing Photo
Listing Photo
Listing Photo
Listing Photo
Listing Photo
Listing Photo
Listing Photo
Listing Photo
Listing Photo
Listing Photo
Listing Photo
Listing Photo
Listing Photo
Listing Photo
Listing Photo
Listing Photo
Listing Photo
Listing Photo
Listing Photo
Listing Photo
Listing Photo
Listing Photo
Listing Photo
Listing Photo
Listing Photo
Listing Photo
Listing Photo
Listing Photo
Listing Photo
Listing Photo
Listing Photo
Listing Photo
Listing Photo
Listing Photo
Listing Photo
Listing Photo
Listing Photo
Listing Photo
Listing Photo
Listing Photo
Listing Photo
Listing Photo
Listing Photo
Listing Photo
Listing Photo
Listing Photo
Listing Photo
Listing Photo
Listing Photo
Listing Photo
Listing Photo
Listing Photo
Listing Photo
Listing Photo
Listing Photo
Listing Photo
Listing Photo
Listing Photo
Listing Photo
Listing Photo
Listing Photo
Listing Photo
Listing Photo
Listing Photo
Listing Photo
Listing Photo
Listing Photo
Listing Photo
Listing Photo
Listing Photo
Listing Photo
Listing Photo
Listing Photo
Listing Photo
Listing Photo
Listing Photo
Listing Photo
Listing Photo
Listing Photo
Listing Photo
Listing Photo
Listing Photo
Listing Photo
Listing Photo
Listing Photo
Listing Photo
Listing Photo
Listing Photo
Listing Photo
Listing Photo
Listing Photo
Listing Photo
Listing Photo
Listing Photo
Listing Photo
Listing Photo
Listing Photo
Listing Photo
Listing Photo
Listing Photo
Listing Photo
Listing Photo
Listing Photo
Listing Photo

MLS #MFROM714088 Listing courtesy of Asset Capital Realty, Llc provided by Stellar MLS.

Similar Listings

$759,000
310 Sw 35th Street
Ocala
5BR/4BA
| Active
$760,000
928 Se 42nd Street
Ocala
5BR/4BA
| Active
$800,000
9415 Sw 106th Place
Ocala
5BR/4BA
| Active
$819,000
9032 Nw 30th Avenue
Ocala
5BR/4BA
| Pending



All listing information is deemed reliable but not guaranteed and should be independently verified through personal inspection by appropriate professionals. Listings displayed on this website may be subject to prior sale or removal from sale; availability of any listing should always be independent verified. Listing information is provided for consumer personal, non-commercial use, solely to identify potential properties for potential purchase; all other use is strictly prohibited and may violate relevant federal and state law. The source of the listing data is as follows: Stellar MLS (updated 3/23/26 10:23 PM) |

Listing Search



Translate Tool

Featured Listings
Lutz Real Estate
$940,000
4 BED
3 BATH
Lakes of Wellington welcomes you with its exclusive, quiet Southern charm. Enter through its brick walls and iron gates,... Read More
Leesburg Real Estate
$1,275,000
4 BED
4 BATH
Under contract-accepting backup offers. Welcome to 10220 Bumblebee Lane in Leesburg, a truly one-of-a-kind lakefront est... Read More
Ocala Real Estate
$1,100,000
4 BED
3 BATH
Welcome to the Vinings, where timeless design meets modern luxury. This beautifully crafted 2024 custom-built home featu... Read More
St Petersburg Real Estate
$815,000
5 BED
4 BATH
SPACE, PRIVACY & FLORIDA LIVING AT ITS FINEST IN ST PETERSBURG | FL — Welcome to one of Broadwater's most generously pro... Read More
Venice Real Estate
$850,000
2 BED
2 BATH
Incredible Gulf views await from this spectacular 8th-floor condo ideally located directly on Venice Beach. Historic Dow... Read More
Myakka City Real Estate
$850,000
4 BED
3 BATH
Substantial price enhancement — bring your offers! Welcome to your private Myakka City retreat, where space, freedom, an... Read More
Safety Harbor Real Estate
$1,500,000
3 BED
4 BATH
Under contract-accepting backup offers. A rare waterfront estate overlooking tranquil Old Tampa Bay. This extraordinary ... Read More
Bradenton Real Estate
$1,124,000
3 BED
3 BATH
ATTENTION BOATERS! A rare opportunity awaits to live your dream in one of the most desirable BOATING COMMUNITIES in Brad... Read More
Belleair Real Estate
$820,000
2 BED
2 BATH
Under contract-accepting backup offers. **PRICE REDUCED** Experience fine Florida living ideally positioned in the heart... Read More
Dade City Real Estate
$1,500,000
2 BED
2 BATH
Welcome to 38730 Mickler Road in beautiful Dade City, Florida - a meticulously maintained 35-acre ranch property offerin... Read More
Contact Sandra Pardo

407-990-2746

Wendy Morris LLC

Licensed in the State of Florida
BK 3146762
16797 Broadwater Avenue
Winter Garden, Florida 34787

Your privacy is our utmost concern. We will never sell your personal information. Privacy Policy
©2026 sandrapardohomes.com - all rights reserved. | Site Map