407-990-2746
Menu

5482 Beneva Woods Circle, Sarasota, FL

NEXT
PREV
$775,000

($309/sqft)

List Status: Active
5482 Beneva Woods Circle
Sarasota, FL 34233


4 beds
3 baths
2509 living sqft
Top Features
  • View: Water, Garden, Trees/Woods
  • Subdivision: Beneva Woods
  • Built in  1979
  • Single Family Residence
Description
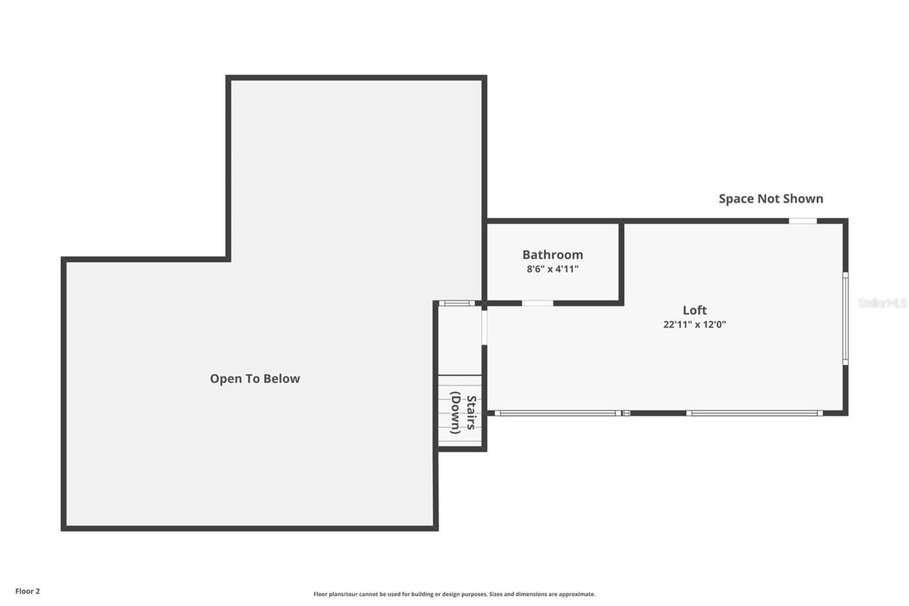
Set in the quiet and charming Beneva Woods community, this lovingly remodeled 4-bedroom, 3-bath home offers privacy, architectural character, and a peaceful connection to nature, just 15 minutes from downtown Sarasota. The home is surrounded by mature trees and opens to a serene backyard with a screened pool and tranquil lake views beyond. Enjoy a quiet morning coffee or a relaxed evening swim; the outdoor space feels like a private retreat. Inside, the home blends clean modern lines with warm natural textures and an eclectic, artistic sensibility. Vaulted ceilings, exposed beams, and thoughtful architectural details create a light-filled, airy feel throughout the main living spaces. The kitchen is generous and well designed, with ample cabinetry and modern finishes, overlooking the living area, perfect for everyday living and relaxed entertaining. The primary suite is calm and inviting, with a beautifully updated spa-style bathroom featuring dual vanities and sculptural vessel sinks. Plantation shutters open to overlook the pool and greenery beyond, allowing the suite to feel quietly connected to the serene outdoor setting. On the main level, a flexible floor plan includes additional bedrooms and a full bath that also serves conveniently as a pool bath. A striking open staircase leads to a spacious loft on the second level with its own en-suite bath, offering an ideal space for guests, a home office, or a private retreat. Additional features include two A/C units, two hot water heaters, a wood-burning fireplace, a large laundry room with direct access to a private dog run, and a two-car garage that includes a small air-conditioned space ideal for a workshop, hobby area, or additional storage. This is a home that feels intentional, peaceful, and deeply cared for - a rare opportunity to enjoy privacy, architectural interest, and serenity while remaining close to Sarasota’s beaches, dining, and vibrant cultural life.
Property Details
Property Features
Property Sub Type
Single Family Residence
View
Water, Garden, Trees/Woods
Pool
In Ground, Salt Water
County
Sarasota
Subdivision
BENEVA WOODS
Additional Information
Additional Lease Restrictions
Please review the attached Beneva Woods HOA docs for more details on the rules and potential exceptions that can be made to the rules on an individual basis.
Additional Parcels YN
false
Alternate Key Folio Num
0090040018
Appliances
Dishwasher, Disposal, Microwave, Range, Refrigerator
Approval Process
Please review the attached Beneva Woods HOA docs for all details.
Association Approval Required YN
1
Association Fee
250
Association Fee Frequency
Annually
Association Fee Requirement
Required
Association YN
true
Attached Garage YN
true
Available For Lease YN
1
Bathrooms Total Integer
3
Building Area Source
Public Records
Building Area Total
3193
Building Area Total Srch SqM
296.64
Building Area Units
Square Feet
Calculated List Price By Calculated SqFt
308.89
Carport YN
false
Construction Materials
HardiPlank Type, Frame, Wood Siding
Cooling
Central Air
Country
US
Cumulative Days On Market
119
Current Price
775000.00
Direction Faces
Northwest
Elementary School
Gulf Gate Elementary
Exterior Features
Awning(s), Dog Run, Private Mailbox, Private Yard, Sliding Doors
Fireplace Features
Wood Burning
Fireplace YN
true
Flood Zone Code
AE
Flood Zone Date
2024-03-27
Flood Zone Panel
12115C0163G
Flooring
Tile
Foundation Details
Slab
Furnished
Negotiable
Garage Spaces
2
Garage YN
true
Heating
Central
High School
Riverview High
Homestead YN
1
Interior Features
Cathedral Ceiling(s), High Ceilings, Primary Bedroom Main Floor, Walk-In Closet(s), Window Treatments
Internet Address Display YN
true
Internet Automated Valuation Display YN
false
Internet Consumer Comment YN
false
Internet Entire Listing Display YN
true
Laundry Features
Laundry Room
Lease Restrictions YN
1
Levels
Two
List AOR
Sarasota - Manatee
Living Area Meters
233.09
Living Area Source
Public Records
Living Area Units
Square Feet
Lot Size Acres
0.24
Lot Size Dimensions
85x125
Lot Size Square Feet
10625
Lot Size Square Meters
987
Middle Or Junior School
Sarasota Middle
Minimum Lease
1-2 Years
Modification Timestamp
2026-05-09T15:15:09.283Z
Monthly HOA Amount
20.83
New Construction YN
false
Num Of Own Years Prior To Lease
2
Occupant Type
Owner
Other Equipment
Private Yard
Ownership
Fee Simple
Parcel Number
0090040018
Pets Allowed
Yes
Pool Private YN
true
Postal Code Plus 4
4119
Previous List Price
790000
Price Change Timestamp
2026-05-09T15:14:34.000Z
Public Survey Range
18E
Public Survey Section
10
RATIO Current Price By Calculated SqFt
308.89
Road Surface Type
Asphalt
Roof
Shingle
Room Count
9
SW Subdiv Community Name
Beneva Woods
Senior Community YN
false
Sewer
Public Sewer
Showing Requirements
Supra Lock Box
Spa YN
false
Status Change Timestamp
2026-01-10T18:30:12.000Z
Stories Total
2
Tax Annual Amount
6694.79
Tax Book Number
24-2
Tax Legal Description
LOT 21 BENEVA WOODS
Tax Lot
21
Tax Year
2025
Total Acreage
0 to less than 1/4
Total Annual Fees
250.00
Total Monthly Fees
20.83
Township
37S
Universal Property Id
US-12115-N-0090040018-R-N
Unparsed Address
5482 BENEVA WOODS CIR
Utilities
Cable Connected, Electricity Connected, Sewer Connected, Water Connected
Water Source
Public
Waterfront YN
false
Years Of Owner Prior To Leasing Req YN
1
Zoning
RSF2
Neighborhood Map
Popup

Property Photos
Listing Photo
Listing Photo
Listing Photo
Listing Photo
Listing Photo
Listing Photo
Listing Photo
Listing Photo
Listing Photo
Listing Photo
Listing Photo
Listing Photo
Listing Photo
Listing Photo
Listing Photo
Listing Photo
Listing Photo
Listing Photo
Listing Photo
Listing Photo
Listing Photo
Listing Photo
Listing Photo
Listing Photo
Listing Photo
Listing Photo
Listing Photo
Listing Photo
Listing Photo
Listing Photo
Listing Photo
Listing Photo
Listing Photo
Listing Photo
Listing Photo
Listing Photo
Listing Photo
Listing Photo
Listing Photo
Listing Photo
Listing Photo
Listing Photo
Listing Photo
Listing Photo
Listing Photo
Listing Photo
Listing Photo
Listing Photo
Listing Photo
Listing Photo
Listing Photo
Listing Photo
Listing Photo
Listing Photo
Listing Photo
Listing Photo
Listing Photo
Listing Photo
Listing Photo
Listing Photo
Listing Photo
Listing Photo
Listing Photo
Listing Photo
Listing Photo
Listing Photo
Listing Photo
Listing Photo
Listing Photo
Listing Photo
Listing Photo
Listing Photo
Listing Photo
Listing Photo
Listing Photo
Listing Photo
Listing Photo
Listing Photo
Listing Photo
Listing Photo
Listing Photo
Listing Photo
Listing Photo
Listing Photo
Listing Photo
Listing Photo
Listing Photo
Listing Photo
Listing Photo
Listing Photo
Listing Photo
Listing Photo
Listing Photo
Listing Photo
Listing Photo
Listing Photo
Listing Photo
Listing Photo
Listing Photo
Listing Photo
Listing Photo
Listing Photo
Listing Photo
Listing Photo
Listing Photo
Listing Photo
Listing Photo
Listing Photo
Listing Photo
Listing Photo
Listing Photo
Listing Photo
Listing Photo
Listing Photo
Listing Photo
Listing Photo
Listing Photo
Listing Photo
Listing Photo
Listing Photo
Listing Photo
Listing Photo
Listing Photo
Listing Photo
Listing Photo
Listing Photo
Listing Photo
Listing Photo
Listing Photo
Listing Photo
Listing Photo
Listing Photo
Listing Photo
Listing Photo
Listing Photo
Listing Photo
Listing Photo
Listing Photo
Listing Photo
Listing Photo
Listing Photo
Listing Photo
Listing Photo
Listing Photo
Listing Photo
Listing Photo
Listing Photo
Listing Photo
Listing Photo
Listing Photo
Listing Photo
Listing Photo
Listing Photo
Listing Photo
Listing Photo
Listing Photo
Listing Photo
Listing Photo
Listing Photo
Listing Photo

MLS #MFRA4677558 Listing courtesy of Preferred Shore Llc provided by Stellar MLS.

Similar Listings

$698,000
8516 Golden Dawn Court
Sarasota
4BR/3BA
| Pending
$699,000
4565 Deer Creek Boulevard
Sarasota
4BR/3BA
| Pending
$699,000
3635 Quiet Drive
Sarasota
4BR/3BA
| Pending
$699,000
6263 Aventura Drive
Sarasota
4BR/3BA
| Active



All listing information is deemed reliable but not guaranteed and should be independently verified through personal inspection by appropriate professionals. Listings displayed on this website may be subject to prior sale or removal from sale; availability of any listing should always be independent verified. Listing information is provided for consumer personal, non-commercial use, solely to identify potential properties for potential purchase; all other use is strictly prohibited and may violate relevant federal and state law. The source of the listing data is as follows: Stellar MLS (updated 5/28/26 6:13 AM) |

Listing Search



Translate Tool

Featured Listings
Eustis Real Estate
$849,000
3 BED
2 BATH
Escape to peaceful country living in this beautiful 3-bedroom pool home on 2+ acres. Enjoy NO HOA living in prime locati... Read More
Dunedin Real Estate
$949,000
4 BED
3 BATH
Exceptional Value! Discover where Coastal Luxury Meets Downtown Charm, 4 Beds 3.5 Baths 2-Car Garage 2,301 Sq Ft, Discov... Read More
Sarasota Real Estate
$944,000
4 BED
3 BATH
If you're looking for room to breathe, privacy, and water views, look no further than 2098 Palm View Road. Set on nearly... Read More
Umatilla Real Estate
$1,380,000
3 BED
3 BATH
Experience total privacy and peaceful country living on 11 breathtaking acres in Umatilla! This beautifully designed hom... Read More
Orlando Real Estate
$949,800
5 BED
3 BATH
Enjoy Florida living at its finest along the coveted Butler Chain of Lakes in this immaculate 3000+sf mostly single-stor... Read More
Treasure Island Real Estate
$999,800
3 BED
2 BATH
Make daily beach sunsets part of your every day. Just steps from award-winning white sand beaches, a deeded boat slip wi... Read More
Clearwater Beach Real Estate
$1,150,000
4 BED
3 BATH
One or more photo(s) has been virtually staged. Tropical breeze and palm trees -- welcome home to coastal luxury and com... Read More
St Petersburg Real Estate
$1,250,000
4 BED
3 BATH
Welcome to one of the most distinctive historic homes in the Crescent Lake neighborhood of St. Petersburg, Florida, wher... Read More
Oviedo Real Estate
$879,000
4 BED
3 BATH
Beautiful contemporary lakefront home with 4 bed / 3 bath, office, bonus room over 3 car garage in the gated community o... Read More
Redington Shores Real Estate
$875,000
3 BED
3 BATH
Under contract-accepting backup offers. One or more photo(s) has been virtually staged. ***ACCEPTING BACK-UP OFFERS*** W... Read More
Contact Sandra Pardo

407-990-2746

Wendy Morris LLC

Licensed in the State of Florida
BK 3146762
16797 Broadwater Avenue
Winter Garden, Florida 34787

Your privacy is our utmost concern. We will never sell your personal information. Privacy Policy
©2026 sandrapardohomes.com - all rights reserved. | Site Map