407-990-2746
Menu

531 16th S Street, St Petersburg, FL

NEXT
PREV
$849,900

($257/sqft)

List Status: Active
531 16th S Street
St Petersburg, FL 33705


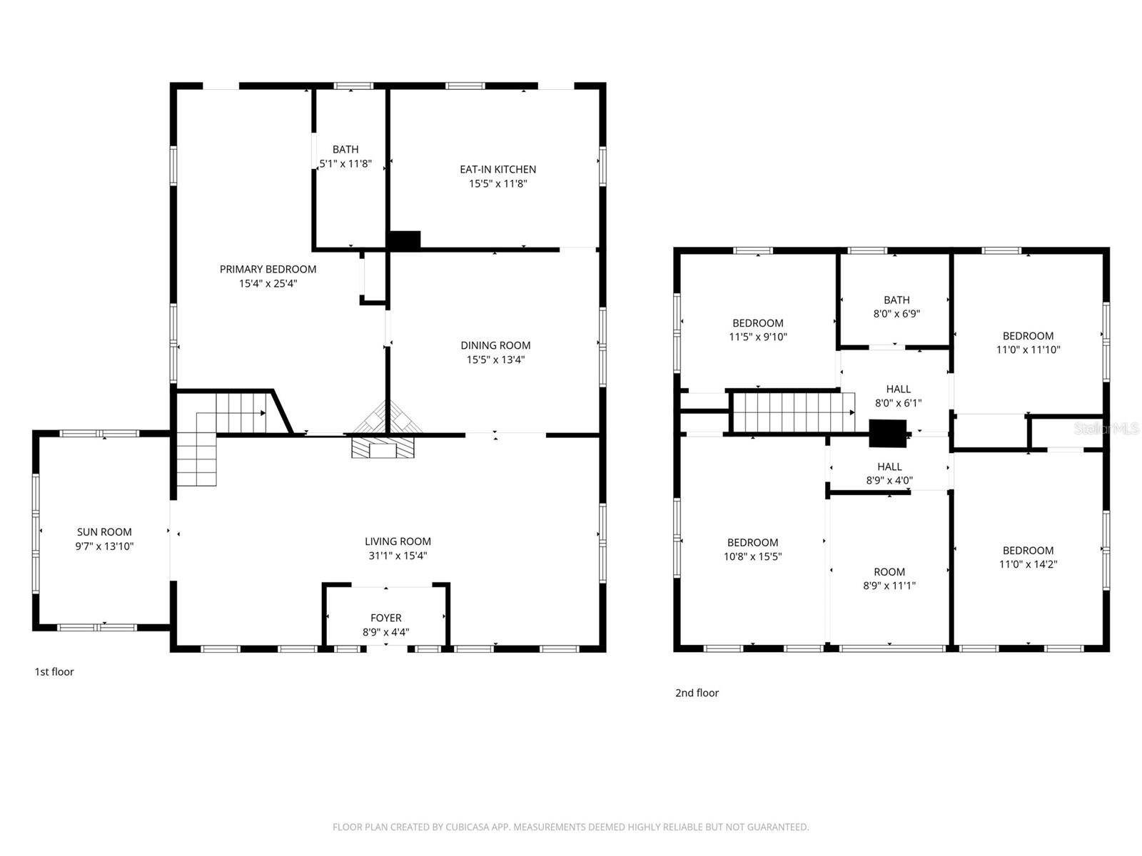
6 beds
3 baths
3306 living sqft
Top Features
  • Subdivision: Perkins G W Rep
  • Built in  1945
  • Single Family Residence
Description
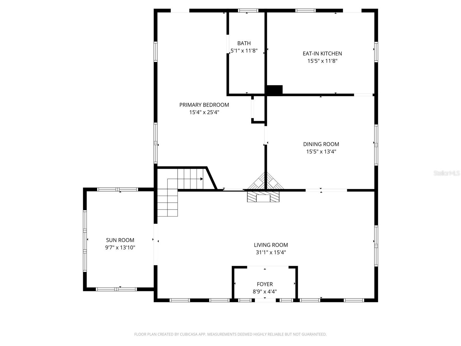
Welcome to 531 16th St S—an exceptionally rare .38-acre parcel in the heart of St. Petersburg offering outstanding flexibility, scale, and future upside. Set on one of the largest lots in the area, this property features a 3,300 SqFt residence with 6 bedrooms, 3.5 bathrooms, an attached in-law suite, and a massive backyard with room to expand, add amenities, or redevelop. Zoned CRT-1, this site allows for increased density, making it ideal for townhomes, mixed-use development, commercial use, or a continued residential setup with rental and multi-generational options. The existing in-law suite provides immediate income potential or extended family accommodations. The location is unmatched—mere steps from Tropicana Field, placing you at the center of one of the most significant and transformational redevelopment plans in the city’s history. With billions of dollars projected to flow into the surrounding district, this property sits in a prime position to benefit from explosive appreciation and long-term value growth. Whether you’re a developer looking for a strategically positioned CRT-1 site, an investor seeking a large-scale lot with versatile use cases, or a homeowner wanting unparalleled space near downtown, this property delivers exceptional opportunity. A massive lot, a large and flexible home, unmatched location, and major future upside—all in one package. Don’t miss this one.
Property Details
Additional Information
Additional Parcels YN
false
Alternate Key Folio Num
243116684360000010
Appliances
Cooktop, Range, Range Hood, Refrigerator
Association YN
false
Available For Lease YN
1
Bathrooms Total Integer
4
Building Area Source
Public Records
Building Area Total
3682
Building Area Total Srch SqM
342.07
Building Area Units
Square Feet
Calculated List Price By Calculated SqFt
257.08
Carport Spaces
1
Carport YN
true
Construction Materials
Brick, Frame
Cooling
Wall/Window Unit(s)
Country
US
Cumulative Days On Market
14
Current Price
849900.00
Direction Faces
East
Exterior Features
Sidewalk
Fireplace Features
Decorative
Fireplace YN
true
Flood Zone Code
X
Flood Zone Date
2021-08-24
Flood Zone Panel
12103C0219H
Flooring
Tile, Wood
Foundation Details
Crawlspace
Furnished
Unfurnished
Garage YN
false
Heating
Ductless
Homestead YN
1
Interior Features
Ceiling Fans(s)
Internet Address Display YN
true
Internet Automated Valuation Display YN
true
Internet Consumer Comment YN
true
Internet Entire Listing Display YN
true
Laundry Features
Inside
Levels
Two
List AOR
Suncoast Tampa
Living Area Meters
307.14
Living Area Source
Public Records
Living Area Units
Square Feet
Lot Size Acres
0.38
Lot Size Dimensions
121x135
Lot Size Square Feet
16352
Lot Size Square Meters
1519
Minimum Lease
No Minimum
Modification Timestamp
2025-12-11T01:54:08.924Z
New Construction YN
false
Occupant Type
Owner
Ownership
Fee Simple
Parcel Number
24-31-16-68436-000-0010
Pool Private YN
false
Postal Code Plus 4
1826
Public Survey Range
16
Public Survey Section
24
RATIO Current Price By Calculated SqFt
257.08
Road Surface Type
Asphalt
Roof
Shingle
Room Count
3
Senior Community YN
false
Sewer
Public Sewer
Showing Requirements
24 Hour Notice, ShowingTime
Status Change Timestamp
2025-11-27T02:42:50.000Z
Stories Total
2
Tax Annual Amount
3665.46
Tax Book Number
29-67
Tax Legal Description
PERKINS', G.W. REPLAT LOT 1 LESS N 80FT & LESS S 21.4 FT OF W 50FT
Tax Lot
1
Tax Year
2024
Total Acreage
1/4 to less than 1/2
Total Annual Fees
0.00
Total Monthly Fees
0.00
Township
31
Universal Property Id
US-12103-N-243116684360000010-R-N
Unparsed Address
531 16TH ST S
Utilities
Electricity Connected, Sewer Connected, Water Connected
Water Source
Public
Waterfront YN
false
Neighborhood Map
Popup

Property Photos
Listing Photo
Listing Photo
Listing Photo
Listing Photo
Listing Photo
Listing Photo
Listing Photo
Listing Photo
Listing Photo
Listing Photo
Listing Photo
Listing Photo
Listing Photo
Listing Photo
Listing Photo
Listing Photo
Listing Photo
Listing Photo
Listing Photo
Listing Photo
Listing Photo
Listing Photo
Listing Photo
Listing Photo
Listing Photo
Listing Photo
Listing Photo
Listing Photo
Listing Photo
Listing Photo
Listing Photo
Listing Photo
Listing Photo
Listing Photo
Listing Photo
Listing Photo
Listing Photo
Listing Photo
Listing Photo
Listing Photo
Listing Photo
Listing Photo
Listing Photo
Listing Photo
Listing Photo
Listing Photo
Listing Photo
Listing Photo
Listing Photo
Listing Photo
Listing Photo
Listing Photo
Listing Photo
Listing Photo
Listing Photo
Listing Photo
Listing Photo
Listing Photo
Listing Photo
Listing Photo
Listing Photo
Listing Photo
Listing Photo
Listing Photo
Listing Photo
Listing Photo
Listing Photo
Listing Photo
Listing Photo
Listing Photo
Listing Photo
Listing Photo
Listing Photo
Listing Photo
Listing Photo
Listing Photo
Listing Photo
Listing Photo

MLS #MFRTB8451901 Listing courtesy of Compass Florida Llc provided by Stellar MLS.



All listing information is deemed reliable but not guaranteed and should be independently verified through personal inspection by appropriate professionals. Listings displayed on this website may be subject to prior sale or removal from sale; availability of any listing should always be independent verified. Listing information is provided for consumer personal, non-commercial use, solely to identify potential properties for potential purchase; all other use is strictly prohibited and may violate relevant federal and state law. The source of the listing data is as follows: Stellar MLS (updated 4/1/26 3:47 PM) |

Listing Search



Translate Tool

Featured Listings
St Petersburg Real Estate
$1,250,000
3 BED
3 BATH
One or more photo(s) has been virtually staged. Discover the rare opportunity to own a waterfront property framed by mul... Read More
New Smyrna Beach Real Estate
$1,440,000
3 BED
3 BATH
Rare Oceanfront Opportunity in Bethune Beach! This is your chance to own property stretching from Turtlemound Road to th... Read More
Seminole Real Estate
$1,395,000
3 BED
3 BATH
Under contract-accepting backup offers. This home is ready for a New Owner after it was professionally remediated and re... Read More
St Petersburg Real Estate
$1,074,990
4 BED
3 BATH
Pre-Construction. To be built. Unbeatable Value in a Prime Location –- Oversized 75' Lot in Allendale Park - Flood Zone ... Read More
Tampa Real Estate
$895,000
3 BED
3 BATH
In the heart of South Tampa's Coveted Beach Park neighborhood, this prominent coroner lot home offers 3 bedrooms and 3 f... Read More
Indian Rocks Beach Real Estate
$859,900
3 BED
2 BATH
Discover the ultimate Indian Rocks Beach lifestyle in this beautifully updated, turnkey end-unit condo located in the hi... Read More
Seminole Real Estate
$1,255,000
5 BED
4 BATH
Back on Market! Buyer lost financing. Imagine your new coastal lifestyle in a newly built 5 bed 4.5 bath pool and spa ho... Read More
St Petersburg Real Estate
$1,225,000
2 BED
2 BATH
Experience the height of downtown luxury at ONE St. Petersburg. This exquisite 2-bedroom, 2.5-bath residence offers refi... Read More
Longboat Key Real Estate
$1,200,000
3 BED
2 BATH
Laid-back Living on Longboat Key -- A Boater's Paradise! Welcome to 744 Jungle Queen Way, a fully renovated, FURNISHED 3... Read More
Winter Park Real Estate
$1,425,000
4 BED
3 BATH
Under contract-accepting backup offers. Location, location, location. Sought after location on the North end of Park Ave... Read More
Contact Sandra Pardo

407-990-2746

Wendy Morris LLC

Licensed in the State of Florida
BK 3146762
16797 Broadwater Avenue
Winter Garden, Florida 34787

Your privacy is our utmost concern. We will never sell your personal information. Privacy Policy
©2026 sandrapardohomes.com - all rights reserved. | Site Map