407-990-2746
Menu

527 W Blue Water Edge Drive, Eustis, FL

NEXT
PREV
$825,000

($210/sqft)

List Status: Pending
527 W Blue Water Edge Drive
Eustis, FL 32736


4 beds
3 baths
3936 living sqft
Top Features
  • Frontage: Lake Front
  • View: Water
  • Subdivision: Blue Lake Estates
  • Built in  2006
  • Single Family Residence
Description
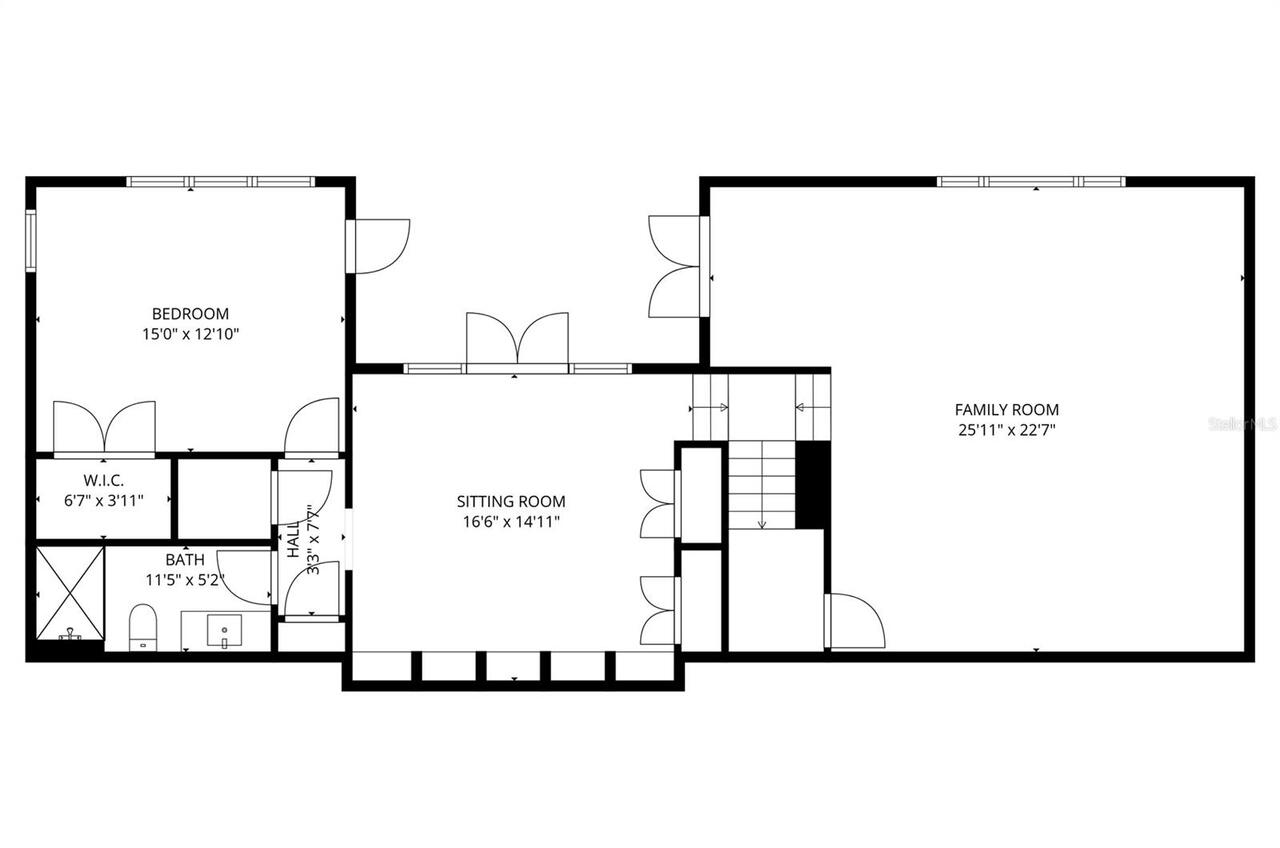
Under contract-accepting backup offers. Welcome to 527 W Blue Water Edge Drive, a beautifully updated 4,000 sq ft custom waterfront home located in the gated Blue Lake Estates community near Mount Dora. Positioned at the end of a cul-de-sac, this property offers panoramic lake views from nearly every room. The home features concrete block construction on both levels. Recent major upgrades include a new concrete tile roof (2025), two new HVAC systems, new downstairs windows, 80-gallon hybrid water heater, whole-house water softener, and a new sump pump. The main level of the home features an open-concept kitchen, living, and dining area with French doors leading to a screened balcony overlooking the water views. The updated kitchen includes Café double wall ovens and microwave, updated cabinetry, a new backsplash, and custom pantry shelving. 2 bedrooms and an office are located on the main level, both of the bedrooms are full suites with a large dedicated en-suite, and large walk-in closets. The office also functions as an additional bedroom, and would be ideal for guests or a nursery. The fully renovated lower level offers a large family room, a flexible bonus space for office, gym, or playroom, and a private guest suite with full bath. The layout is ideal for multigenerational living or guests. Both downstairs entertaining spaces provide direct access to the backyard. The backyard features a new paver patio, fenced yard, and views over the spring fed lake. The nearby parks and recreational areas provide opportunities for outdoor activities. Situated only minutes to downtown Mount Dora and downtown Eustis, and 15 minutes to SR 429 route to Orlando. This offers easy access for commuting or enjoying amenities in the City of Orlando, at Disney and the airport. Call today to schedule a private tour.
Property Details
Additional Information
Additional Lease Restrictions
Buyer to verify directly with the HOA
Additional Parcels YN
false
Additional Rooms
Bonus Room, Den/Library/Office, Formal Dining Room Separate
Additional Water Information
17 acre spring fed lake with private dock.
Alternate Key Folio Num
3829404
Amenities Additional Fees
Buyer to verify directly with the HOA
Appliances
Built-In Oven, Cooktop, Dishwasher, Dryer, Microwave, Range Hood, Refrigerator, Washer
Approval Process
Buyer to verify directly with the HOA
Association Email
tsharp@artemislifestyles.com
Association Fee
110
Association Fee Frequency
Monthly
Association Fee Requirement
Required
Association YN
true
Attached Garage YN
true
Available For Lease YN
1
Bathrooms Total Integer
4
Building Area Source
Public Records
Building Area Total
4987
Building Area Total Srch SqM
463.31
Building Area Units
Square Feet
Calculated List Price By Calculated SqFt
209.60
Carport YN
false
Community Features
Deed Restrictions, Gated Community - No Guard
Construction Materials
Block, Stucco
Cooling
Central Air
Country
US
Cumulative Days On Market
19
Current Price
825000.00
Direction Faces
Southeast
Elementary School
Eustis Heights Elem
Expected Closing Date
2026-05-01T00:00:00.000
Exterior Features
Balcony, French Doors, Lighting, Rain Gutters, Sidewalk
Fencing
Fenced
Fireplace Features
Living Room, Wood Burning
Fireplace YN
true
Flood Zone Code
X
Flood Zone Date
2012-12-18
Flood Zone Panel
12069CO357E
Flooring
Carpet, Luxury Vinyl, Tile
Foundation Details
Slab
Furnished
Unfurnished
Garage Dimensions
21x30
Garage Spaces
3
Garage YN
true
Heating
Central, Electric
High School
Eustis High School
Home Warranty YN
false
Homestead YN
1
Interior Features
Built-in Features, Ceiling Fans(s), Crown Molding, Eat-in Kitchen, High Ceilings, Split Bedroom, Stone Counters, Tray Ceiling(s), Walk-In Closet(s)
Internet Address Display YN
true
Internet Automated Valuation Display YN
false
Internet Consumer Comment YN
false
Internet Entire Listing Display YN
true
Laundry Features
Laundry Room
Lease Restrictions YN
1
Levels
Two
List AOR
Orlando Regional
Living Area Meters
365.67
Living Area Source
Public Records
Living Area Units
Square Feet
Lot Features
Cul-De-Sac
Lot Size Acres
0.81
Lot Size Square Feet
35461
Lot Size Square Meters
3294
Middle Or Junior School
Eustis Middle
Minimum Lease
7 Months
Modification Timestamp
2026-03-19T15:14:10.091Z
Monthly HOA Amount
110.00
New Construction YN
false
Occupant Type
Owner
Ownership
Fee Simple
Parcel Number
07-19-27-0250-000-00100
Patio And Porch Features
Covered, Patio, Rear Porch
Pet Restrictions
Buyer to verify directly with the HOA
Pets Allowed
Yes
Pool Private YN
false
Postal Code Plus 4
2255
Price Change Timestamp
2026-02-26T18:41:00.000Z
Public Survey Range
27E
Public Survey Section
07
Purchase Contract Date
2026-03-17
RATIO Current Price By Calculated SqFt
209.60
Realtor Info
As-Is, See Attachments
Road Surface Type
Paved
Roof
Tile
Room Count
8
Senior Community YN
false
Sewer
Public Sewer
Showing Requirements
Appointment Only, ShowingTime
Spa YN
false
Status Change Timestamp
2026-03-19T15:13:41.000Z
Stories Total
2
Tax Annual Amount
8501.63
Tax Block
000
Tax Book Number
52-97-98
Tax Legal Description
EUSTIS, BLUE LAKE ESTATES SUB LOT 1 BEING IN 8-19-27 PB 52 PG 97-98 ORB 4417 PG 1473
Tax Lot
1
Tax Year
2025
Total Acreage
1/2 to less than 1
Total Annual Fees
1320.00
Total Monthly Fees
110.00
Township
19S
Universal Property Id
US-12069-N-071927025000000100-R-N
Unparsed Address
527 W BLUE WATER EDGE DR
Utilities
Public
Water Access
Lake
Water Access YN
1
Water Body Name
BLUE LAKE
Water Frontage Feet Lake
80
Water Source
Public
Water View
Lake
Water View YN
1
Waterfront Feet Total
80
Waterfront YN
true
Zoning
SR
Zoning Compatible YN
1
Neighborhood Map
Popup

Property Photos
Listing Photo
Listing Photo
Listing Photo
Listing Photo
Listing Photo
Listing Photo
Listing Photo
Listing Photo
Listing Photo
Listing Photo
Listing Photo
Listing Photo
Listing Photo
Listing Photo
Listing Photo
Listing Photo
Listing Photo
Listing Photo
Listing Photo
Listing Photo
Listing Photo
Listing Photo
Listing Photo
Listing Photo
Listing Photo
Listing Photo
Listing Photo
Listing Photo
Listing Photo
Listing Photo
Listing Photo
Listing Photo
Listing Photo
Listing Photo
Listing Photo
Listing Photo
Listing Photo
Listing Photo
Listing Photo
Listing Photo
Listing Photo
Listing Photo
Listing Photo
Listing Photo
Listing Photo
Listing Photo
Listing Photo
Listing Photo
Listing Photo
Listing Photo
Listing Photo
Listing Photo
Listing Photo
Listing Photo
Listing Photo
Listing Photo
Listing Photo
Listing Photo
Listing Photo
Listing Photo
Listing Photo
Listing Photo
Listing Photo
Listing Photo
Listing Photo
Listing Photo
Listing Photo
Listing Photo
Listing Photo
Listing Photo
Listing Photo
Listing Photo
Listing Photo
Listing Photo
Listing Photo
Listing Photo
Listing Photo
Listing Photo
Listing Photo
Listing Photo
Listing Photo
Listing Photo
Listing Photo
Listing Photo
Listing Photo
Listing Photo
Listing Photo
Listing Photo
Listing Photo
Listing Photo
Listing Photo
Listing Photo
Listing Photo
Listing Photo
Listing Photo
Listing Photo
Listing Photo
Listing Photo
Listing Photo
Listing Photo
Listing Photo
Listing Photo
Listing Photo
Listing Photo
Listing Photo
Listing Photo
Listing Photo
Listing Photo
Listing Photo
Listing Photo
Listing Photo
Listing Photo
Listing Photo
Listing Photo
Listing Photo
Listing Photo
Listing Photo
Listing Photo
Listing Photo
Listing Photo
Listing Photo
Listing Photo
Listing Photo
Listing Photo
Listing Photo
Listing Photo

MLS #MFRO6378210 Listing courtesy of Real Broker, Llc provided by Stellar MLS.

Similar Listings

$744,000
111 Cardinal Lane
Eustis
4BR/3BA
| Active
$750,000
22711 State Road 44
Eustis
4BR/3BA
| Active
$765,000
1689 Lakeshore Drive
Eustis
4BR/3BA
| Active
$850,000
3105 S Lakeshore Court
Eustis
4BR/3BA
| Active



All listing information is deemed reliable but not guaranteed and should be independently verified through personal inspection by appropriate professionals. Listings displayed on this website may be subject to prior sale or removal from sale; availability of any listing should always be independent verified. Listing information is provided for consumer personal, non-commercial use, solely to identify potential properties for potential purchase; all other use is strictly prohibited and may violate relevant federal and state law. The source of the listing data is as follows: Stellar MLS (updated 4/3/26 11:32 AM) |

Listing Search



Translate Tool

Featured Listings
St Petersburg Real Estate
$1,200,000
3 BED
2 BATH
**Stunning fully renovated 3-bedroom, 2-bathroom pool home with 2-car garage, nestled on prime sailboat-water deep canal... Read More
Sarasota Real Estate
$1,175,000
2 BED
2 BATH
****There is nothing left to do. Nothing to imagine. Completed in 2022, everything has been upgraded and transformed int... Read More
Tampa Real Estate
$1,400,000
3 BED
2 BATH
Exceptionally rare single-story home in sought-after Culbreath Bayou that has never received any flood damage. Meticulou... Read More
Wesley Chapel Real Estate
$949,900
5 BED
5 BATH
**PRICE REDUCED** Welcome to your dream home in the highly desirable gated community of Winding Ridge! *NO CDD fees* Thi... Read More
Winter Park Real Estate
$1,250,000
4 BED
3 BATH
Pre-Construction. To be built. Discover a rare opportunity to build a fully custom residence in the highly sought-after ... Read More
Gainesville Real Estate
$850,000
4 BED
2 BATH
Held by the same owner since construction, this residence showcases a superior standard of upkeep and "pride of ownershi... Read More
Bradenton Real Estate
$834,900
3 BED
2 BATH
INCREDIBLE VALUE IN THIS TURNKEY FURNISHED MOVE IN READY HOME IN WISTERIA PARK!!! Welcome to this exceptional Neal-built... Read More
Holmes Beach Real Estate
$917,000
2 BED
2 BATH
Welcome to Villa Mar! A luxury vacation rental directly on Watsons Bayou with open water views. This completely renovate... Read More
Montverde Real Estate
$895,000
3 BED
2 BATH
On a beautifully manicured half-acre lot with mature landscaping and stunning, large oak trees, this exceptional home of... Read More
Nokomis Real Estate
$860,000
3 BED
3 BATH
Luxury Neal Signature home in Aria, a gated boutique enclave of fewer than 200 homesites in North Venice, delivering exc... Read More
Contact Sandra Pardo

407-990-2746

Wendy Morris LLC

Licensed in the State of Florida
BK 3146762
16797 Broadwater Avenue
Winter Garden, Florida 34787

Your privacy is our utmost concern. We will never sell your personal information. Privacy Policy
©2026 sandrapardohomes.com - all rights reserved. | Site Map