407-990-2746
Menu

5255 Nw 64 Street, Ocala, FL

NEXT
PREV
$222,000

($199/sqft)

List Status: Active
5255 Nw 64 Street
Ocala, FL 34482


3 beds
2 baths
1118 living sqft
Top Features
  • Subdivision: Ocala Park Est
  • Built in  2000
  • Single Family Residence
Description
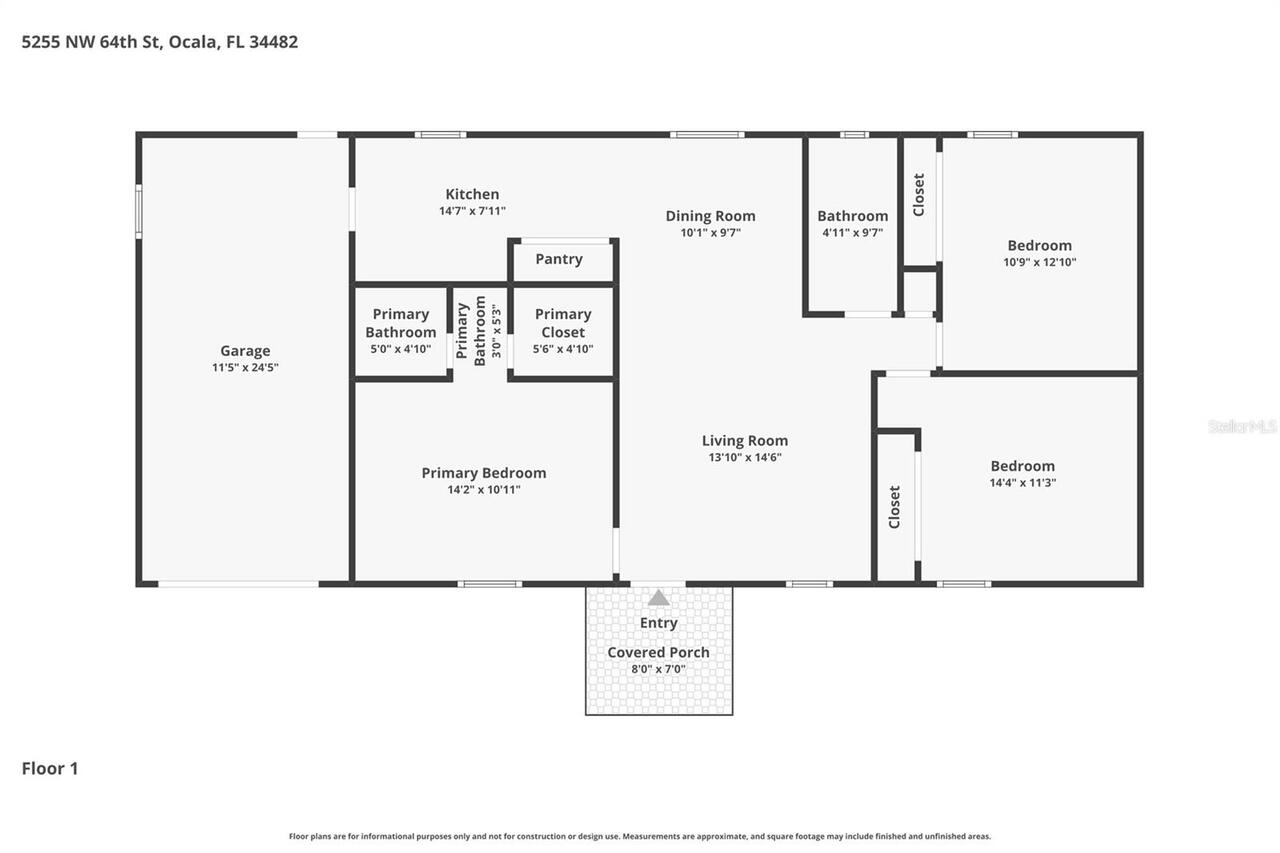
This three-bedroom, two-bath single-family residence offers spacious living space on a 0.24-acre lot in northwest Marion County. Built in 2000 with block and stucco construction, the home features a functional split floor plan and durable finishes designed for everyday living. A covered front porch provides a welcoming entry and a comfortable outdoor space for morning coffee or relaxing at end of the day. Inside, the living room flows into the dining area and kitchen, creating an efficient layout for casual entertaining. Tile flooring is installed throughout the residence, offering durability and ease of maintenance. The primary suite is positioned off the living area and includes a private bath and walk-in closet. Two additional bedrooms feature built-in closet space and share a full bath, offering flexibility for guests, home office use or additional household needs. The backyard includes a concrete patio suitable for outdoor grilling or gatherings and opens to a spacious yard with partial fencing, including chain-link and wood sections. The 0.24-acre lot provides room for outdoor activities, pets or future landscaping improvements. Additional features include a one-car garage, newer central heating and air conditioning, and roof was replaced in 2021. The home is serviced by well and septic systems. Ocala Park Estates is in the northwest portion of Marion County and offers convenient access to major transportation routes, including Interstate 75. The community is also near the World Equestrian Center, a major destination for equestrian sport, dining and events, as well as nearby shopping and services.
Property Details
Additional Information
Additional Lease Restrictions
Buyer's responsibility to confirm all information is accurate.
Additional Parcels YN
false
Appliances
Dishwasher, Disposal, Range, Refrigerator
Approval Process
Buyer's responsibility to confirm all information is accurate.
Architectural Style
Traditional
Association YN
false
Attached Garage YN
true
Available For Lease YN
1
Bathrooms Total Integer
2
Building Area Source
Public Records
Building Area Total
1118
Building Area Total Srch SqM
103.87
Building Area Units
Square Feet
Calculated List Price By Calculated SqFt
198.57
Carport YN
false
Construction Materials
Block, Stucco
Cooling
Central Air
Country
US
Cumulative Days On Market
14
Current Price
222000.00
Direction Faces
East
Elementary School
Fessenden Elementary School
Exterior Features
Sliding Doors
Fireplace YN
false
Flood Zone Code
AE
Flooring
Ceramic Tile
Foundation Details
Slab
Furnished
Unfurnished
Garage Dimensions
12x25
Garage Spaces
1
Garage YN
true
Heating
Electric
High School
North Marion High School
Homestead YN
1
Interior Features
Ceiling Fans(s), Stone Counters, Walk-In Closet(s)
Internet Address Display YN
true
Internet Automated Valuation Display YN
false
Internet Consumer Comment YN
false
Internet Entire Listing Display YN
true
Laundry Features
Inside
Levels
One
List AOR
Ocala - Marion
Living Area Meters
103.87
Living Area Source
Public Records
Living Area Units
Square Feet
Lot Features
In County, Near Public Transit, Paved
Lot Size Acres
0.24
Lot Size Square Feet
10454
Lot Size Square Meters
971
Middle Or Junior School
North Marion Middle School
Minimum Lease
No Minimum
Modification Timestamp
2026-03-23T20:27:10.259Z
New Construction YN
false
Occupant Type
Owner
Ownership
Fee Simple
Parcel Number
1303-019-026
Pet Restrictions
Buyer's responsibility to confirm all information is accurate.
Pets Allowed
Yes
Pool Private YN
false
Public Survey Range
21E
Public Survey Section
21
RATIO Current Price By Calculated SqFt
198.57
Realtor Info
As-Is, Sign
Road Surface Type
Asphalt
Roof
Shingle
Room Count
7
Senior Community YN
false
Sewer
Septic Tank
Showing Requirements
Combination Lock Box, Lockbox, ShowingTime
Status Change Timestamp
2026-03-09T18:58:02.000Z
Stories Total
1
Tax Annual Amount
2865
Tax Block
19
Tax Book Number
H-049
Tax Legal Description
SEC 21 TWP 14 RGE 21 PLAT BOOK H PAGE 049 OCALA PARK ESTATES UNIT 3 BLK 19 LOT 26
Tax Lot
26
Tax Year
2025
Total Acreage
0 to less than 1/4
Total Annual Fees
0.00
Total Monthly Fees
0.00
Township
14
Universal Property Id
US-12083-N-1303019026-R-N
Unparsed Address
5255 NW 64 ST
Utilities
Cable Available, Electricity Available, Electricity Connected
Vegetation
Oak Trees, Trees/Landscaped
Water Source
Well
Waterfront YN
false
Zoning
R-1 SINGLE FAMILY DWELLIN
Neighborhood Map
Popup

Property Photos
Listing Photo
Listing Photo
Listing Photo
Listing Photo
Listing Photo
Listing Photo
Listing Photo
Listing Photo
Listing Photo
Listing Photo
Listing Photo
Listing Photo
Listing Photo
Listing Photo
Listing Photo
Listing Photo
Listing Photo
Listing Photo
Listing Photo
Listing Photo
Listing Photo
Listing Photo
Listing Photo
Listing Photo
Listing Photo
Listing Photo
Listing Photo
Listing Photo
Listing Photo
Listing Photo
Listing Photo
Listing Photo
Listing Photo
Listing Photo
Listing Photo
Listing Photo
Listing Photo
Listing Photo
Listing Photo
Listing Photo
Listing Photo
Listing Photo
Listing Photo
Listing Photo
Listing Photo
Listing Photo
Listing Photo
Listing Photo

MLS #MFROM719877 Listing courtesy of Premier Sotheby's International Realty provided by Stellar MLS.

Similar Listings

$199,900
1110 Sw Fort King Street
Ocala
3BR/2BA
| Active
$199,900
42 Olive Drive
Ocala
3BR/2BA
| Pending
$199,900
5370 Nw 3rd Street
Ocala
3BR/2BA
| Pending
$199,900
6175 Sw 98th Loop
Ocala
3BR/2BA
| Active



All listing information is deemed reliable but not guaranteed and should be independently verified through personal inspection by appropriate professionals. Listings displayed on this website may be subject to prior sale or removal from sale; availability of any listing should always be independent verified. Listing information is provided for consumer personal, non-commercial use, solely to identify potential properties for potential purchase; all other use is strictly prohibited and may violate relevant federal and state law. The source of the listing data is as follows: Stellar MLS (updated 3/24/26 4:53 AM) |

Listing Search



Translate Tool

Featured Listings
Nokomis Real Estate
$854,000
3 BED
2 BATH
Tucked away in a private enclave of only 11 residences this gracious 3 bedroom, 2 bath home includes a private pool and ... Read More
Odessa Real Estate
$1,050,000
4 BED
3 BATH
Welcome to Keystone / Odessa! This beautifully maintained, newer-construction David Weekley home in the private, gated C... Read More
Apollo Beach Real Estate
$925,000
5 BED
4 BATH
Don't miss your opportunity to own this stunning waterfront home in the coveted Waterset community! Celebrated as one of... Read More
Tarpon Springs Real Estate
$849,900
5 BED
3 BATH
NEW PRICE IMPROVEMENT! Experience the ultimate peace of mind in this meticulously maintained "Royal" model. While other ... Read More
San Antonio Real Estate
$865,000
5 BED
4 BATH
(Seller is willing to help buy-down in interest rate and / or assist Buyer with closing costs)(Additionally, Property / ... Read More
Tampa Real Estate
$1,219,000
4 BED
3 BATH
One or more photo(s) has been virtually staged. MOTIVATED SELLER! Exquisitely stunning custom luxury new construction po... Read More
St Cloud Real Estate
$990,000
3 BED
2 BATH
Bring the Farm Animals!! This stunning pool home sits on just over 2 acres in desirable Bay Lake Ranch with NO HOA, offe... Read More
Venice Real Estate
$850,000
2 BED
2 BATH
Incredible Gulf views await from this spectacular 8th-floor condo ideally located directly on Venice Beach. Historic Dow... Read More
Brooksville Real Estate
$899,000
4 BED
3 BATH
One or more photo(s) has been virtually staged. Pre-Construction. To be built. Beautiful New Construction Home...Estimat... Read More
St Petersburg Real Estate
$998,000
4 BED
2 BATH
Welcome to 1310 47th Ave N—a beautifully designed home that blends space, functionality, and everyday comfort in a highl... Read More
Contact Sandra Pardo

407-990-2746

Wendy Morris LLC

Licensed in the State of Florida
BK 3146762
16797 Broadwater Avenue
Winter Garden, Florida 34787

Your privacy is our utmost concern. We will never sell your personal information. Privacy Policy
©2026 sandrapardohomes.com - all rights reserved. | Site Map