407-990-2746
Menu

5220 S Russell Street Unit: Unit: 36, Tampa, FL

NEXT
PREV
$565,000

($362/sqft)

List Status: Pending
5220 S Russell Street
Tampa, FL 33611


2 beds
2 baths
1560 living sqft
Top Features
  • Subdivision: Colony Oaks Twnhms
  • Built in  1985
  • Townhouse
Description
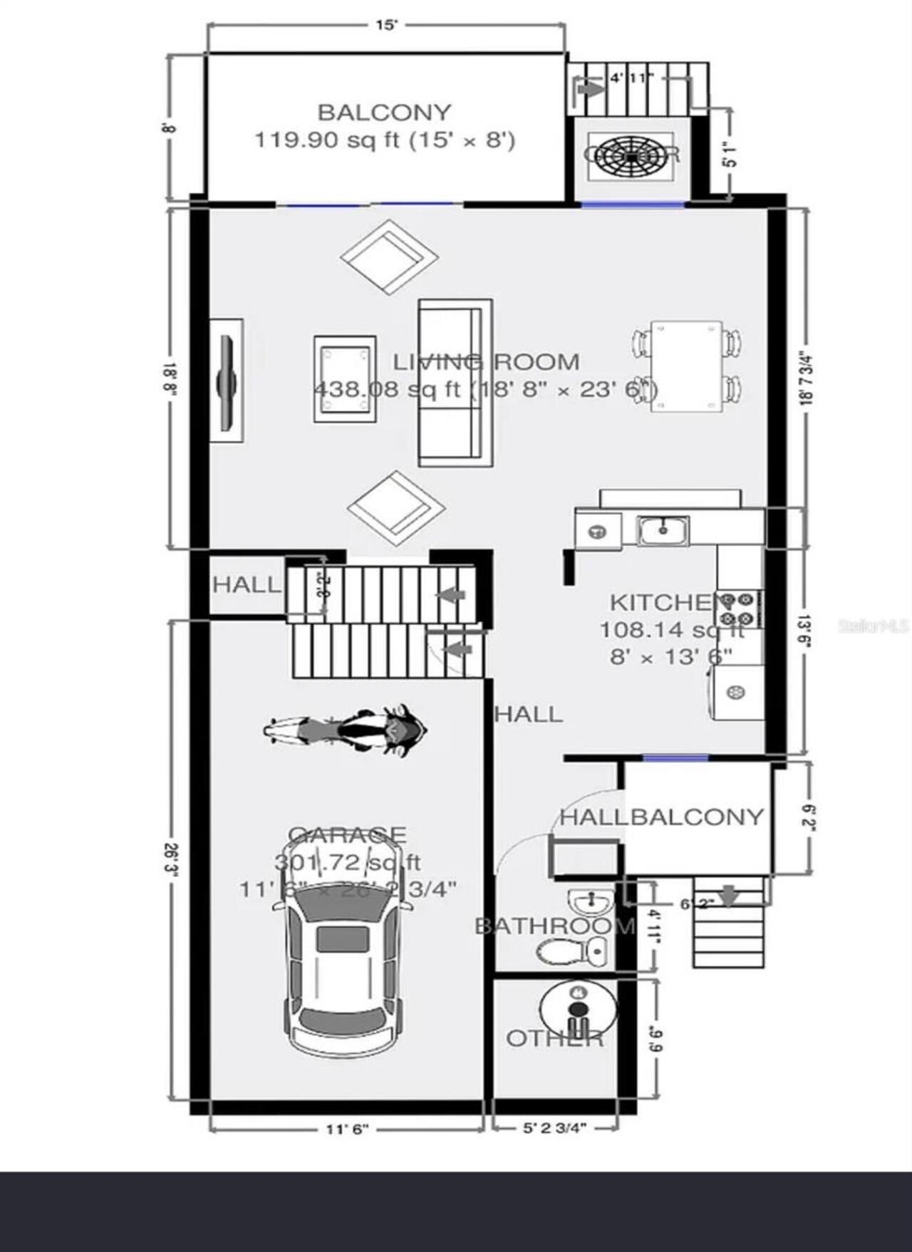
Under contract-accepting backup offers. Welcome to Colony Oaks, one of South Tampa’s most established and sought-after townhome communities, ideally located just steps from iconic Bayshore Boulevard yet quietly set within a peaceful, park-like setting. With expansive green space, brick-paved walkways, mature oak trees, tranquil ponds, and a resort-style pool, Colony Oaks offers an exceptional opportunity for buyers seeking a smart, comfortable entry into South Tampa homeownership. This move-in-ready two-bedroom, two-and-a-half-bath residence is thoughtfully designed for everyday living, entertaining, and long-term value. Soaring ceilings and abundant natural light create an open, welcoming feel from the moment you enter. The open-concept living and dining areas are anchored by a cozy wood-burning fireplace and flow seamlessly to a private, landscaped patio—perfect for relaxing after work, hosting friends, or enjoying quiet mornings outdoors. The kitchen offers both style and functionality, featuring granite countertops, stainless steel appliances, and solid wood cabinetry, with a layout that keeps you connected to the main living spaces. A convenient half bath on the main level adds ease for guests and everyday living—an often-overlooked but highly valued feature for first-time buyers. Upstairs, the spacious primary suite provides a comfortable retreat with a private balcony, generous closet space, and an en-suite bath with dual vanities and a lovely seating area that can function as office space, a compact work out area or book nook . The second bedroom includes its own en-suite bath offering flexibility for guests, a home office, or future lifestyle changes. An upstairs laundry area enhances convenience and efficiency. Zoned for Ballast Point Elementary, a highly regarded neighborhood school, and ideally located near Ballast Point Pier, Tampa Yacht & Country Club, MacDill Air Force Base, and South Tampa’s dining and shopping destinations. With quick access to down
Property Details
Additional Information
Additional Lease Restrictions
Buyer to verify approval process with HOA. Only 25% of units can be leased at one time.
Additional Parcels YN
false
Additional Rooms
Inside Utility
Alternate Key Folio Num
1357320172
Appliances
Bar Fridge, Dishwasher, Disposal, Dryer, Microwave, Range, Refrigerator, Washer
Approval Process
Buyer to verify approval process with HOA.
Association Fee
535
Association Fee Frequency
Monthly
Association Fee Includes
Pool, Maintenance Structure, Maintenance Grounds, Trash
Association Fee Requirement
Required
Association URL
www.colonyoakshoa.com
Association YN
true
Attached Garage YN
true
Available For Lease YN
1
Bathrooms Total Integer
3
Building Area Source
Public Records
Building Area Total
2195
Building Area Total Srch SqM
203.92
Building Area Units
Square Feet
Calculated List Price By Calculated SqFt
362.18
Carport YN
false
Community Features
Deed Restrictions, Pool
Construction Materials
HardiPlank Type, Frame
Contract Status
Inspections
Cooling
Central Air
Country
US
Cumulative Days On Market
2
Current Price
565000.00
Direction Faces
West
Elementary School
Ballast Point-HB
Expected Closing Date
2026-02-20T00:00:00.000
Exterior Features
Balcony, Courtyard, Private Entrance, Sliding Doors
Fireplace Features
Wood Burning
Fireplace YN
true
Flood Zone Code
AE
Flood Zone Date
2021-10-07
Flood Zone Panel
12057C0363J
Flooring
Carpet, Hardwood
Foundation Details
Slab
Furnished
Unfurnished
Garage Dimensions
11x26
Garage Spaces
1
Garage YN
true
Heating
Central
High School
Robinson-HB
Homestead YN
1
Interior Features
Ceiling Fans(s), Dry Bar, Living Room/Dining Room Combo, Solid Surface Counters, Solid Wood Cabinets, Walk-In Closet(s), Window Treatments
Internet Address Display YN
true
Internet Automated Valuation Display YN
false
Internet Consumer Comment YN
true
Internet Entire Listing Display YN
true
Laundry Features
Laundry Room
Lease Restrictions YN
1
Levels
Two
List AOR
Suncoast Tampa
Living Area Meters
144.93
Living Area Source
Public Records
Living Area Units
Square Feet
Lot Size Acres
0.05
Lot Size Square Feet
2230
Lot Size Square Meters
207
Middle Or Junior School
Madison-HB
Minimum Lease
8-12 Months
Modification Timestamp
2026-02-05T01:32:09.380Z
Monthly HOA Amount
535.00
New Construction YN
false
Occupant Type
Owner
Other Equipment
Private Entrance
Ownership
Fee Simple
Parcel Number
A-10-30-18-408-000000-00036.0
Pet Restrictions
Buyer to verify with HOA.
Pets Allowed
Breed Restrictions, Yes
Pool Private YN
false
Postal Code Plus 4
4055
Public Survey Range
18
Public Survey Section
10
Purchase Contract Date
2026-02-04
RATIO Current Price By Calculated SqFt
362.18
Realtor Info
As-Is, Docs Available
Road Surface Type
Asphalt
Roof
Shingle
Room Count
5
Senior Community YN
false
Sewer
Public Sewer
Showing Requirements
24 Hour Notice, Appointment Only, Call Listing Agent, See Remarks, ShowingTime
Status Change Timestamp
2026-02-05T01:31:40.000Z
Stories Total
2
Tax Annual Amount
3491.52
Tax Block
00
Tax Book Number
55-67
Tax Legal Description
COLONY OAKS TOWNHOMES LOT 36
Tax Lot
36
Tax Year
2024
Total Acreage
0 to less than 1/4
Total Annual Fees
6420.00
Total Monthly Fees
535.00
Township
30
Universal Property Id
US-12057-N-103018408000000000360-S-36
Unparsed Address
5220 S RUSSELL ST #36
Utilities
BB/HS Internet Available, Electricity Available, Public, Water Connected
Water Source
Public
Waterfront YN
false
Window Features
Drapes
Zoning
PD
Neighborhood Map
Popup

Property Photos
Listing Photo
Listing Photo
Listing Photo
Listing Photo
Listing Photo
Listing Photo
Listing Photo
Listing Photo
Listing Photo
Listing Photo
Listing Photo
Listing Photo
Listing Photo
Listing Photo
Listing Photo
Listing Photo
Listing Photo
Listing Photo
Listing Photo
Listing Photo
Listing Photo
Listing Photo
Listing Photo
Listing Photo
Listing Photo
Listing Photo
Listing Photo
Listing Photo
Listing Photo
Listing Photo
Listing Photo
Listing Photo
Listing Photo
Listing Photo
Listing Photo
Listing Photo
Listing Photo
Listing Photo
Listing Photo
Listing Photo
Listing Photo
Listing Photo
Listing Photo
Listing Photo
Listing Photo
Listing Photo
Listing Photo
Listing Photo
Listing Photo
Listing Photo
Listing Photo
Listing Photo
Listing Photo
Listing Photo
Listing Photo
Listing Photo
Listing Photo
Listing Photo
Listing Photo
Listing Photo
Listing Photo
Listing Photo
Listing Photo
Listing Photo
Listing Photo
Listing Photo
Listing Photo
Listing Photo
Listing Photo
Listing Photo
Listing Photo
Listing Photo
Listing Photo
Listing Photo
Listing Photo
Listing Photo
Listing Photo
Listing Photo
Listing Photo
Listing Photo
Listing Photo
Listing Photo
Listing Photo
Listing Photo
Listing Photo
Listing Photo
Listing Photo
Listing Photo
Listing Photo
Listing Photo
Listing Photo
Listing Photo
Listing Photo
Listing Photo
Listing Photo
Listing Photo
Listing Photo
Listing Photo
Listing Photo
Listing Photo
Listing Photo
Listing Photo
Listing Photo
Listing Photo
Listing Photo
Listing Photo
Listing Photo
Listing Photo
Listing Photo
Listing Photo
Listing Photo
Listing Photo
Listing Photo
Listing Photo
Listing Photo
Listing Photo
Listing Photo
Listing Photo
Listing Photo
Listing Photo
Listing Photo
Listing Photo
Listing Photo
Listing Photo
Listing Photo
Listing Photo
Listing Photo
Listing Photo
Listing Photo
Listing Photo
Listing Photo
Listing Photo
Listing Photo
Listing Photo
Listing Photo
Listing Photo
Listing Photo
Listing Photo
Listing Photo
Listing Photo
Listing Photo
Listing Photo
Listing Photo
Listing Photo
Listing Photo
Listing Photo
Listing Photo
Listing Photo
Listing Photo
Listing Photo
Listing Photo
Listing Photo
Listing Photo
Listing Photo
Listing Photo
Listing Photo
Listing Photo
Listing Photo
Listing Photo
Listing Photo
Listing Photo
Listing Photo
Listing Photo
Listing Photo
Listing Photo
Listing Photo
Listing Photo
Listing Photo
Listing Photo
Listing Photo
Listing Photo
Listing Photo

MLS #MFRTB8471540 Listing courtesy of Bay Villa Realty provided by Stellar MLS.

Similar Listings

$513,000
509 S Matanzas Avenue
Tampa
2BR/2BA
| Active
$514,000
700 S Harbour Island Boulevard
Tampa
2BR/2BA
| Active
$514,999
2401 Bayshore Boulevard
Tampa
2BR/2BA
| Active
$515,000
700 S Harbour Island Boulevard
Tampa
2BR/2BA
| Active



All listing information is deemed reliable but not guaranteed and should be independently verified through personal inspection by appropriate professionals. Listings displayed on this website may be subject to prior sale or removal from sale; availability of any listing should always be independent verified. Listing information is provided for consumer personal, non-commercial use, solely to identify potential properties for potential purchase; all other use is strictly prohibited and may violate relevant federal and state law. The source of the listing data is as follows: Stellar MLS (updated 2/19/26 2:30 PM) |

Listing Search



Translate Tool

Featured Listings
Tierra Verde Real Estate
$1,199,000
4 BED
3 BATH
Step into a stunningly transformed, elevated four-bedroom plus office Tierra Verde pool home with additional bonus space... Read More
St Petersburg Real Estate
$1,295,000
3 BED
3 BATH
One or more photo(s) has been virtually staged. PRIME LOCATION in the heart of Old Northeast! Great opportunity to build... Read More
Clearwater Real Estate
$819,800
3 BED
2 BATH
PRICE IMPROVEMENT! WATERFRONT BRAND NEW CONSTRUCTION! NO HOA, NO CDD, FLOOD ZONE X Welcome to this stunning brand-new co... Read More
Tampa Real Estate
$847,000
4 BED
3 BATH
Under contract-accepting backup offers. One or more photo(s) has been virtually staged. Under contract-accepting backup ... Read More
Maitland Real Estate
$925,000
5 BED
3 BATH
Exclusive Dommerich opportunity to own a true 5 Bedroom, 3 Bath home PLUS a dedicated office—an almost impossible combin... Read More
Reunion Real Estate
$1,140,000
6 BED
5 BATH
In one of the popular neighborhoods on Reunion Resort’s west side, this beautifully updated home offers breathtaking vie... Read More
Kissimmee Real Estate
$1,099,000
9 BED
5 BATH
Under contract-accepting backup offers. Check out these Numbers!!! 2022 April-Dec: $203026 2023 Yr: $246271 2024 Yr: $18... Read More
Reunion Real Estate
$995,000
5 BED
6 BATH
This well maintained and regularly updated three-story custom turnkey rental home in Reunion Resort's popular Fairway Ri... Read More
Bradenton Real Estate
$1,195,000
3 BED
2 BATH
Waterfront lifestyle in this extensively renovated coastal ranch, perfectly positioned on a saltwater canal with direct ... Read More
Port Charlotte Real Estate
$878,500
6 BED
3 BATH
One or more photo(s) has been virtually staged. AMAZING OPPORTUNITY . . . 2 PRIVATE HOMES on ONE HOMESITE . . . A One-of... Read More
Contact Sandra Pardo

407-990-2746

Wendy Morris LLC

Licensed in the State of Florida
BK 3146762
16797 Broadwater Avenue
Winter Garden, Florida 34787

Your privacy is our utmost concern. We will never sell your personal information. Privacy Policy
©2026 sandrapardohomes.com - all rights reserved. | Site Map