407-990-2746
Menu

515 Bosphorous Avenue, Tampa, FL

NEXT
PREV
$3,949,000

($709/sqft)

List Status: Active
515 Bosphorous Avenue
Tampa, FL 33606


5 beds
6 baths
5573 living sqft
Top Features
  • Subdivision: Davis Islands Pb10 Pg52 To 57
  • Built in  2025
  • Single Family Residence
Description
Property Details
Additional Information
Additional Parcels YN
false
Additional Rooms
Bonus Room, Den/Library/Office, Inside Utility, Loft, Media Room
Alternate Key Folio Num
A-36-29-18-509-000094-00009.0
Appliances
Built-In Oven, Cooktop, Dishwasher, Disposal, Microwave, Range, Refrigerator, Wine Refrigerator
Association YN
false
Attached Garage YN
true
Available For Lease YN
1
Bathrooms Total Integer
6
Builder License Number
BLD-24-0509592
Builder Model
515 Bosphorous
Builder Name
Mobley Custom Homes LLC
Building Area Source
Builder
Building Area Total
7113
Building Area Total Srch SqM
660.82
Building Area Units
Square Feet
Calculated List Price By Calculated SqFt
708.60
Carport YN
false
Community Features
Airport/Runway, Dog Park, Golf Carts OK, Irrigation-Reclaimed Water, Park, Playground, Restaurant, Sidewalks, Tennis Court(s), Street Lights
Construction Materials
Block, Cement Siding, Stucco, Frame
Cooling
Central Air, Zoned
Country
US
Cumulative Days On Market
352
Current Price
3949000.00
Direction Faces
South
Elementary School
Gorrie-HB
Exterior Features
Awning(s), Lighting, Outdoor Kitchen, Private Mailbox, Rain Gutters, Sidewalk
Fencing
Fenced, Vinyl
Fireplace Features
Living Room
Fireplace YN
true
Flood Zone Code
AE
Flood Zone Date
2021-10-07
Flood Zone Panel
12057C0362J
Flooring
Luxury Vinyl, Tile
Foundation Details
Block, Slab, Stem Wall
Furnished
Unfurnished
Garage Dimensions
36x22
Garage Spaces
3
Garage YN
true
Heating
Central, Electric, Heat Pump, Zoned
High School
Plant-HB
Interior Features
Built-in Features, Ceiling Fans(s), Crown Molding, Eat-in Kitchen, Elevator, High Ceilings, Kitchen/Family Room Combo, Open Floorplan, PrimaryBedroom Upstairs, Solid Surface Counters, Solid Wood Cabinets, Split Bedroom, Thermostat, Walk-In Closet(s)
Internet Address Display YN
true
Internet Automated Valuation Display YN
false
Internet Consumer Comment YN
false
Internet Entire Listing Display YN
true
Laundry Features
Inside, Laundry Room, Upper Level
Levels
Two
List AOR
Suncoast Tampa
Living Area Meters
517.75
Living Area Source
Builder
Living Area Units
Square Feet
Lot Features
Flood Insurance Required, FloodZone, City Limits, Landscaped, Paved
Lot Size Acres
0.32
Lot Size Dimensions
103x133
Lot Size Square Feet
13752
Lot Size Square Meters
1278
Max Pet Weight
100
Middle Or Junior School
Wilson-HB
Minimum Lease
No Minimum
Modification Timestamp
2026-01-29T16:37:08.988Z
New Construction YN
true
Number Of Pets
10+
Occupant Type
Vacant
Other Equipment
Irrigation Equipment
Other Structures
Outdoor Kitchen
Ownership
Fee Simple
Parcel Number
A-36-29-18-509-000094-00009.0
Patio And Porch Features
Covered, Front Porch, Rear Porch
Permit Number
CBC1254267
Pet Size
Extra Large (101+ Lbs.)
Pets Allowed
Yes
Pool Private YN
true
Postal Code Plus 4
3651
Previous List Price
3999000
Price Change Timestamp
2025-11-21T18:21:53.000Z
Projected Completion Date
2025-12-26T00:00:00.000
Property Condition
Under Construction
Property Description
Corner Unit, Walk-Up
Public Remarks
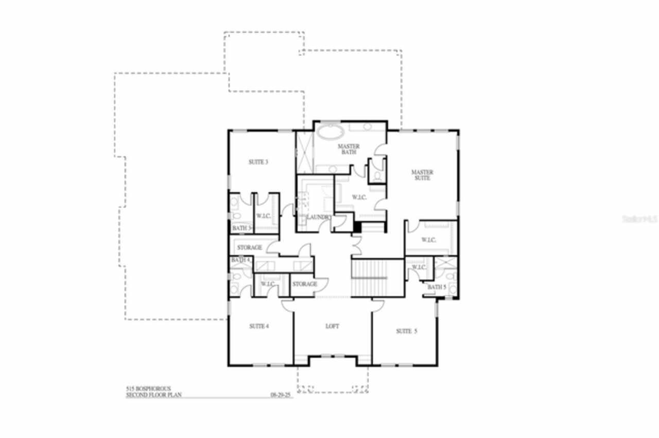
Under Construction. Under Construction. Look book with the custom selections available for the home. Welcome to a remarkable chance to own a brand-new, custom-built residence on a tranquil street in the highly sought-after Davis Islands neighborhood. This exquisite home by Mobley Homes Custom epitomizes modern luxury and exceptional craftsmanship. Bedrooms/Bathrooms: Five spacious bedrooms plus a Bonus Game/Media area and Loft, and six elegantly appointed bathrooms. First floor has a junior suite with large bath and walk-in closet, perfect for guests or in-laws, and wonderful fireplace in the family room. Gourmet Kitchen: Featuring all-wood custom inset cabinets with double stack uppers, a large walk-in pantry, a substantial island with a Kohler 36” farmhouse sink, and a top-of-the-line Wolf/Subzero appliance package, and high-end Quartz countertops. Well finished and functional Butler's pantry with wine fridge. Enjoy the convenience of under-counter lighting and backsplash. Master Suite: A private sanctuary on the second floor with two generous walk-in closets, inlayed accent wall and pendant lights, luxurious bathroom which includes marble tile, freestanding tub, a double sink vanity, high end Quartz countertops, all-wood inset cabinets, and a walk-in shower. Secondary baths with square sinks, marble tile and ceramic, Mantra Omni Cabinets, and Kohler toilets; Additional Features: Standing seam metal roof, gas drops and pre-piping for generator, Level 4 smooth drywall, 7” wood flooring throughout the first floor, stairs, bedrooms, and upstairs hallways. The home is enhanced with 10' ceilings, 5.25" crown molding, 7” baseboards, and superior trim carpentry. Garage & Driveway: A large two-car oversized garage, a paver driveway, front porch, and lanai. Entertainment: Enjoy an extra large rear lanai leading to a spacious backyard, complete with an outdoor kitchen featuring a grill and fridge, and a pool and spa with a gas heater. Modern Amenities: Impact-resistant windows and doors, gas piping with 4 drops, Delta Trinsic faucets and fixtures, Kohler toilets, and engineered hardwood floors throughout. The home also includes a designer lighting package. Located on beautiful Davis Islands this location is walkable to the urban core and its many restaurants and shop, and a short distance to the walking and bike path. Bring your golf cart and enjoy the Island lifestyle with walking / biking paths, baseball fields, public tennis courts, public historic pool, two dog parks, a beach, public marina, and an airport. Additionally, located only minutes from Downtown Tampa, Water Street, Sparkman Wharf, and the Tampa Riverwalk, makes this neighborhood the most desired in South Tampa.
Public Survey Range
18
Public Survey Section
36
RATIO Current Price By Calculated SqFt
708.60
Realtor Info
Floor Plan Available
Road Responsibility
Public Maintained Road
Road Surface Type
Asphalt
Roof
Built-Up, Metal
Room Count
10
Security Features
Fire Alarm, Secured Garage/Parking, Security System, Smoke Detector(s)
Senior Community YN
false
Sewer
Public Sewer
Showing Requirements
Call Listing Agent, ShowingTime
Spa Features
In Ground
Spa YN
true
Status Change Timestamp
2025-02-11T14:15:29.000Z
Tax Annual Amount
21822
Tax Block
94
Tax Book Number
10-52
Tax Legal Description
DAVIS ISLANDS PB10 PG52 TO 57 AND PB17 PG5 TO 9 LOTS 9 AND 10 BLOCK 94
Tax Lot
9
Tax Year
2024
Total Acreage
1/4 to less than 1/2
Total Annual Fees
0.00
Total Monthly Fees
0.00
Township
29
Universal Property Id
US-12057-N-362918509000094000090-R-N
Unparsed Address
515 BOSPHOROUS AVE
Utilities
BB/HS Internet Available, Cable Available, Electricity Connected, Natural Gas Connected, Phone Available, Sewer Connected, Water Connected
Vegetation
Trees/Landscaped
Water Source
Public
Waterfront YN
false
Window Features
Storm Window(s), Low-Emissivity Windows
Zoning
RS-75
Zoning Compatible YN
1
Neighborhood Map
Popup

Property Photos
Listing Photo
Listing Photo
Listing Photo
Listing Photo
Listing Photo
Listing Photo
Listing Photo
Listing Photo
Listing Photo
Listing Photo
Listing Photo
Listing Photo
Listing Photo
Listing Photo
Listing Photo
Listing Photo
Listing Photo
Listing Photo
Listing Photo
Listing Photo
Listing Photo
Listing Photo
Listing Photo
Listing Photo
Listing Photo
Listing Photo
Listing Photo
Listing Photo
Listing Photo
Listing Photo
Listing Photo
Listing Photo
Listing Photo
Listing Photo
Listing Photo
Listing Photo
Listing Photo
Listing Photo
Listing Photo
Listing Photo
Listing Photo
Listing Photo
Listing Photo
Listing Photo
Listing Photo
Listing Photo
Listing Photo
Listing Photo
Listing Photo
Listing Photo
Listing Photo
Listing Photo
Listing Photo
Listing Photo
Listing Photo
Listing Photo
Listing Photo
Listing Photo
Listing Photo
Listing Photo
Listing Photo
Listing Photo
Listing Photo
Listing Photo
Listing Photo
Listing Photo
Listing Photo
Listing Photo
Listing Photo
Listing Photo
Listing Photo
Listing Photo
Listing Photo
Listing Photo
Listing Photo
Listing Photo
Listing Photo
Listing Photo
Listing Photo
Listing Photo
Listing Photo
Listing Photo
Listing Photo
Listing Photo
Listing Photo
Listing Photo

MLS #MFRTB8347898 Listing courtesy of Smith & Associates Real Estate provided by Stellar MLS.

Similar Listings

$3,750,000
4815 W Sunset Boulevard
Tampa
5BR/6BA
| Active
$3,825,000
4536 W Swann Avenue
Tampa
5BR/6BA
| Active
$3,900,000
16607 Avila Boulevard
Tampa
5BR/6BA
| Pending
$3,995,000
5032 W Longfellow Avenue
Tampa
5BR/6BA
| Active



All listing information is deemed reliable but not guaranteed and should be independently verified through personal inspection by appropriate professionals. Listings displayed on this website may be subject to prior sale or removal from sale; availability of any listing should always be independent verified. Listing information is provided for consumer personal, non-commercial use, solely to identify potential properties for potential purchase; all other use is strictly prohibited and may violate relevant federal and state law. The source of the listing data is as follows: Stellar MLS (updated 2/4/26 12:20 AM) |

Listing Search



Translate Tool

Featured Listings
Apollo Beach Real Estate
$1,199,000
3 BED
2 BATH
St Petersburg Real Estate
$1,199,000
3 BED
3 BATH
Boca Grande Real Estate
$1,495,000
3 BED
3 BATH
Punta Gorda Real Estate
$950,000
4 BED
2 BATH
Riverview Real Estate
$925,000
5 BED
4 BATH
Indian Rocks Beach Real Estate
$825,000
2 BED
2 BATH
Okahumpka Real Estate
$1,500,000
4 BED
2 BATH
Tierra Verde Real Estate
$827,500
2 BED
2 BATH
Orlando Real Estate
$1,299,000
6 BED
5 BATH
Orlando Real Estate
$814,999
4 BED
2 BATH
Contact Sandra Pardo

407-990-2746

Wendy Morris LLC

Licensed in the State of Florida
BK 3146762
16797 Broadwater Avenue
Winter Garden, Florida 34787

Your privacy is our utmost concern. We will never sell your personal information. Privacy Policy
©2026 sandrapardohomes.com - all rights reserved. | Site Map