407-990-2746
Menu

5107 55th Street W Circle, Bradenton, FL

NEXT
PREV
$770,000

($328/sqft)

List Status: Pending
5107 55th Street W Circle
Bradenton, FL 34210


3 beds
3 baths
2348 living sqft
Top Features
  • Subdivision: Glenn Lakes Ph 6
  • Built in  2000
  • Single Family Residence
Description
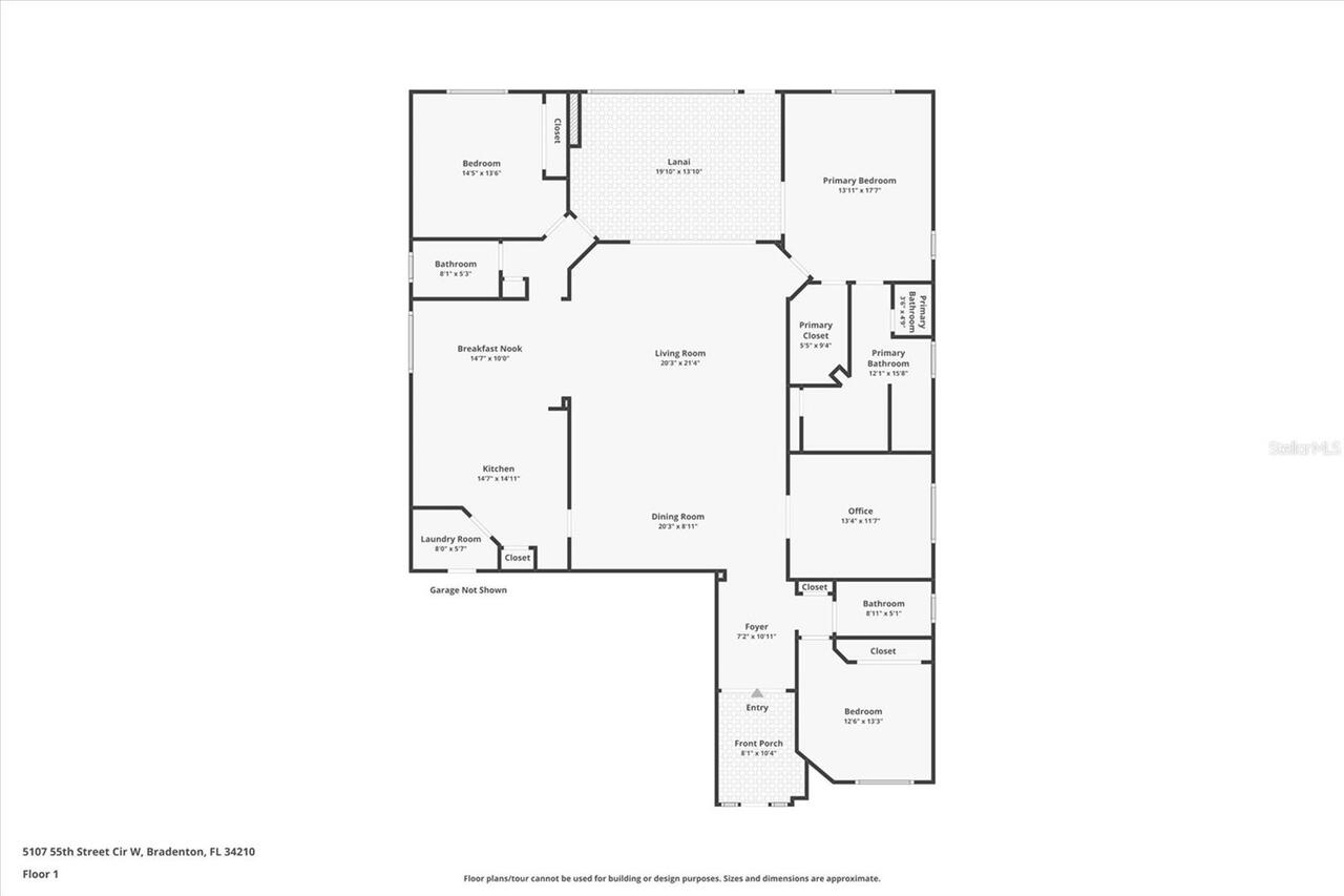
Under contract-accepting backup offers. Welcome to this 3-bedroom, 3-bath residence with a den, formal dining room, and breakfast nook located in the Estates at Glenn Lakes. Split-bedroom floor plan with bedrooms positioned at separate corners of the home and a central great room layout. Total living area approximately 2,348 sq. ft. Major improvements and updates include all-new flooring throughout (2023), remodeled kitchen with new appliances (2023), new paver patio (2023), new garage door opener (2023), and updated ceiling fans and lighting. A whole-house water filtration system and Energy Star–qualified attic pest-control insulation were added in October 2024. The exterior of the home was freshly painted in June 2025. The primary bathroom was updated in September 2025 with a large walk-in, doorless shower with built-in bench. Hurricane and power features include Miami-Dade–rated impact windows, front door and garage shutters, and a power roll-down hurricane shutter on the lanai. The home is equipped with a full-house gas-powered generator supported by a 250-gallon in-ground propane tank. Additional features include a newer roof (2015), A/C system (2020), water heater (2018), screened front entry and rear lanai, and outdoor lighting in planters. The rear of the property overlooks a pond with partial golf course views. The 3-car garage includes epoxy flooring, additional storage cabinets, and a Paver driveway installed. Appliances include a 2023 LG double-door refrigerator/freezer and a 2023 LG washer and dryer. The Estates at Glenn Lakes is a deed-restricted community. The monthly HOA fee includes lawn maintenance and irrigation. Community park located nearby. Convenient access to beaches, SRQ airport, downtown, and IMG Academy.
Property Details
Additional Information
Additional Lease Restrictions
Please see community docs for information on leasing restrictions/guidelines
Additional Parcels YN
false
Additional Rooms
Den/Library/Office
Alternate Key Folio Num
5188569959
Appliances
Disposal, Dryer, Microwave, Range, Refrigerator, Washer
Approval Process
Please see community docs for information on leasing restrictions/guidelines
Association Approval Required YN
1
Association Email
ebrown@cscmsi.com
Association Fee
209
Association Fee Frequency
Monthly
Association Fee Includes
Maintenance Grounds, Management
Association Fee Requirement
Required
Association YN
true
Attached Garage YN
true
Available For Lease YN
1
Bathrooms Total Integer
3
Building Area Source
Public Records
Building Area Total
3324
Building Area Total Srch SqM
308.81
Building Area Units
Square Feet
Calculated List Price By Calculated SqFt
327.94
Carport YN
false
Community Features
Deed Restrictions
Construction Materials
Block, Stucco
Contract Status
Financing, Inspections, Other Contract Contingencies
Cooling
Central Air
Country
US
Cumulative Days On Market
14
Current Price
770000.00
Direction Faces
Southwest
Expected Closing Date
2026-05-04T00:00:00.000
Exterior Features
Sidewalk, Sliding Doors
Fireplace YN
false
Flood Zone Code
X
Flooring
Ceramic Tile, Vinyl
Foundation Details
Slab
Furnished
Unfurnished
Garage Spaces
3
Garage YN
true
Heating
Central, Electric
Homestead YN
1
Interior Features
Primary Bedroom Main Floor, Thermostat, Walk-In Closet(s)
Internet Address Display YN
true
Internet Automated Valuation Display YN
false
Internet Consumer Comment YN
false
Internet Entire Listing Display YN
true
Laundry Features
Laundry Room
Lease Restrictions YN
1
Levels
One
List AOR
Sarasota - Manatee
Living Area Meters
218.14
Living Area Source
Public Records
Living Area Units
Square Feet
Lot Features
In County, Sidewalk
Lot Size Acres
0.2
Lot Size Square Feet
8873
Lot Size Square Meters
824
Max Pet Weight
100
Minimum Lease
6 Months
Modification Timestamp
2026-02-11T14:13:10.333Z
Monthly HOA Amount
209.00
New Construction YN
false
Num Times per Year
2
Number Of Pets
2
Occupant Type
Owner
Other Equipment
Irrigation Equipment
Ownership
Fee Simple
Parcel Number
5188569959
Pet Restrictions
Please see community docs for information on pet restrictions/guidelines
Pet Size
Large (61-100 Lbs.)
Pets Allowed
Cats OK, Dogs OK, Yes
Pool Private YN
false
Postal Code Plus 4
4924
Public Survey Range
17E
Public Survey Section
08
Purchase Contract Date
2026-02-09
RATIO Current Price By Calculated SqFt
327.94
Road Surface Type
Asphalt
Roof
Shingle
Room Count
3
SW Subdiv Community Name
Glenn Lakes
Senior Community YN
false
Sewer
Public Sewer
Showing Requirements
Appointment Only, Call Listing Agent, See Remarks, ShowingTime
Spa YN
false
Status Change Timestamp
2026-02-11T14:12:53.000Z
Stories Total
1
Tax Annual Amount
7195
Tax Block
M
Tax Book Number
35-176
Tax Legal Description
LOT 39 BLK M GLENN LAKES PHASE 6 PI#51885.6995/9
Tax Lot
39
Tax Year
2025
Total Acreage
0 to less than 1/4
Total Annual Fees
2508.00
Total Monthly Fees
209.00
Township
35S
Unit Number YN
1
Universal Property Id
US-12081-N-5188569959-R-N
Unparsed Address
5107 55TH STREET CIR W
Utilities
Cable Connected, Electricity Connected, Public, Sewer Connected, Sprinkler Recycled, Water Connected
Water Access
Pond
Water Access YN
1
Water Source
Public
Water View
Pond
Water View YN
1
Waterfront YN
false
Zoning
PDR
Neighborhood Map
Popup

Property Photos
Listing Photo
Listing Photo
Listing Photo
Listing Photo
Listing Photo
Listing Photo
Listing Photo
Listing Photo
Listing Photo
Listing Photo
Listing Photo
Listing Photo
Listing Photo
Listing Photo
Listing Photo
Listing Photo
Listing Photo
Listing Photo
Listing Photo
Listing Photo
Listing Photo
Listing Photo
Listing Photo
Listing Photo
Listing Photo
Listing Photo
Listing Photo
Listing Photo
Listing Photo
Listing Photo
Listing Photo
Listing Photo
Listing Photo
Listing Photo
Listing Photo
Listing Photo
Listing Photo
Listing Photo
Listing Photo
Listing Photo
Listing Photo
Listing Photo
Listing Photo
Listing Photo
Listing Photo
Listing Photo
Listing Photo
Listing Photo
Listing Photo
Listing Photo
Listing Photo
Listing Photo
Listing Photo
Listing Photo
Listing Photo
Listing Photo
Listing Photo
Listing Photo
Listing Photo
Listing Photo
Listing Photo
Listing Photo
Listing Photo
Listing Photo
Listing Photo
Listing Photo
Listing Photo
Listing Photo
Listing Photo
Listing Photo
Listing Photo
Listing Photo
Listing Photo
Listing Photo
Listing Photo
Listing Photo
Listing Photo
Listing Photo
Listing Photo
Listing Photo
Listing Photo
Listing Photo
Listing Photo
Listing Photo
Listing Photo
Listing Photo
Listing Photo
Listing Photo
Listing Photo
Listing Photo
Listing Photo
Listing Photo
Listing Photo
Listing Photo
Listing Photo
Listing Photo
Listing Photo
Listing Photo
Listing Photo
Listing Photo
Listing Photo
Listing Photo

MLS #MFRA4678955 Listing courtesy of Michael Saunders & Company provided by Stellar MLS.

Similar Listings

$694,900
10160 Cherry Hills Avenue Circle
Bradenton
3BR/3BA
| Active
$699,000
1600 1st W Avenue
Bradenton
3BR/3BA
| Active
$699,000
18020 Cresswind Terrace
Bradenton
3BR/3BA
| Active
$699,000
5839 Los Verdes Court
Bradenton
3BR/3BA
| Active



All listing information is deemed reliable but not guaranteed and should be independently verified through personal inspection by appropriate professionals. Listings displayed on this website may be subject to prior sale or removal from sale; availability of any listing should always be independent verified. Listing information is provided for consumer personal, non-commercial use, solely to identify potential properties for potential purchase; all other use is strictly prohibited and may violate relevant federal and state law. The source of the listing data is as follows: Stellar MLS (updated 3/21/26 11:49 PM) |

Listing Search



Translate Tool

Featured Listings
Tampa Real Estate
$1,399,000
3 BED
2 BATH
One or more photo(s) has been virtually staged. Welcome to this beautifully renovated Cape Cod home in New Suburb Beauti... Read More
Venice Real Estate
$1,200,000
3 BED
3 BATH
Luxury, Lifestyle, and Location in Sarasota National! Experience the perfect blend of elegance and resort-style living i... Read More
Gainesville Real Estate
$1,399,900
4 BED
4 BATH
Immaculately upgraded Barry Bullard home featuring exceptional, custom-built enhancements throughout. Situated on a spec... Read More
Tampa Real Estate
$1,325,000
5 BED
4 BATH
One of the most beautifully restored historic homes in Old Seminole Heights, this exceptional property blends timeless c... Read More
Crystal Beach Real Estate
$1,399,000
5 BED
2 BATH
Experience the epitome of luxury coastal living in this stunning 5-bedroom, 4-bathroom home, where exquisite craftsmansh... Read More
Newberry Real Estate
$1,198,668
4 BED
4 BATH
PRICE IMPROVEMENT! Gorgeous and truly one of a kind custom Kara Bolton home in the Town of Tioga feels less like a resid... Read More
St Petersburg Real Estate
$979,990
4 BED
2 BATH
Nestled in one of St. Petersburg's most sought-after historic neighborhoods, this home offers an unmatched blend of clas... Read More
Windermere Real Estate
$1,369,999
6 BED
4 BATH
Gorgeous East facing custom estate on a .63-acre lot in the highly sought-after 24-hour guard-gated community of Tildens... Read More
Reunion Real Estate
$1,150,000
6 BED
4 BATH
Welcome to the home of "The Family Madrigal." Drawers! Floors! Doors! Every detail in this LUXURY VILLA is magical. Step... Read More
St Petersburg Real Estate
$1,077,000
4 BED
3 BATH
Welcome to this brief preview of a distinctive residence in the desirable Broadwater neighborhood of St. Petersburg. Thi... Read More
Contact Sandra Pardo

407-990-2746

Wendy Morris LLC

Licensed in the State of Florida
BK 3146762
16797 Broadwater Avenue
Winter Garden, Florida 34787

Your privacy is our utmost concern. We will never sell your personal information. Privacy Policy
©2026 sandrapardohomes.com - all rights reserved. | Site Map