407-990-2746
Menu

4832 Nw 39th Place, Ocala, FL

NEXT
PREV
$322,990

($175/sqft)

List Status: Active
4832 Nw 39th Place
Ocala, FL 34482


3 beds
2 baths
1844 living sqft
Top Features
  • Subdivision: Ocala Preserve
  • Built in  2026
  • Single Family Residence
Description
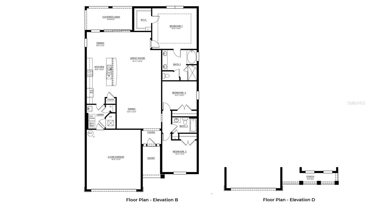
One or more photo(s) has been virtually staged. Under Construction. This one-story, all concrete block constructed home has a truly open concept plan, featuring a spacious kitchen with large kitchen island that overlooks a large dining area, great room, and breakfast nook which flow out onto a covered lanai. The Bedroom 1 which includes Bathroom 1, is located at the back of the home for optimum privacy. Two bedrooms at the front of the home share a second full bath. The laundry room off the garage acts as a perfect mud room upon entry into the kitchen. This home comes with stainless-steel dishwasher, range, and microwave. Pictures, photographs, colors, features, and sizes are for illustration purposes only and will vary from the homes as built. Home and community information including pricing, included features, terms, availability and amenities are subject to change and prior sale at any time without notice or obligation. CRC057592.
Property Details
Additional Information
Additional Lease Restrictions
Per HOA Guidelines
Additional Parcels YN
false
Amenities Additional Fees
HOA Fee also includes: Irrigation water and maintenance, Lawn Maintenance and up to 200mbps of Internet
Appliances
Dishwasher, Microwave, Range
Approval Process
Per HOA Guidelines
Association Amenities
Clubhouse, Fence Restrictions, Fitness Center, Gated, Golf Course, Park, Pickleball Court(s), Pool, Recreation Facilities, Spa/Hot Tub, Tennis Court(s), Trail(s)
Association Approval Required YN
1
Association Fee
1583
Association Fee Frequency
Quarterly
Association Fee Includes
Pool, Maintenance Grounds, Management, Private Road, Recreational Facilities
Association Fee Requirement
Required
Association YN
true
Attached Garage YN
true
Available For Lease YN
1
Bathrooms Total Integer
2
Builder License Number
CRC057592
Builder Model
Laurel
Builder Name
D.R. Horton INC
Building Area Source
Builder
Building Area Total
1844
Building Area Total Srch SqM
171.31
Building Area Units
Square Feet
CDDYN
1
Calculated List Price By Calculated SqFt
175.16
Carport YN
false
Community Features
Fitness Center, Golf Carts OK, Golf, Park, Pool, Sidewalks, Tennis Court(s)
Construction Materials
Block
Cooling
Central Air
Country
US
Cumulative Days On Market
28
Current Price
322990.00
Direction Faces
Southwest
Elementary School
Fessenden Elementary School
Exterior Features
Other
Fireplace YN
false
Flood Zone Code
x
Flooring
Carpet, Hardwood
Foundation Details
Slab
Furnished
Unfurnished
Garage Spaces
2
Garage YN
true
Heating
Electric, Heat Pump
High School
West Port High School
Home Warranty YN
true
Interior Features
Open Floorplan
Internet Address Display YN
true
Internet Automated Valuation Display YN
true
Internet Consumer Comment YN
false
Internet Entire Listing Display YN
true
Laundry Features
Laundry Room
Lease Restrictions YN
1
Levels
One
List AOR
Ocala - Marion
Living Area Meters
171.31
Living Area Source
Builder
Living Area Units
Square Feet
Lot Size Acres
0.14
Lot Size Square Feet
6000
Lot Size Square Meters
557
Middle Or Junior School
Howard Middle School
Minimum Lease
3 Months
Modification Timestamp
2026-03-10T14:54:10.474Z
Monthly HOA Amount
527.67
New Construction YN
true
Occupant Type
Vacant
Ownership
Fee Simple
Parcel Number
1367-0937-00
Permit Number
2025080440
Pet Restrictions
Per HOA Guidelines
Pets Allowed
Yes
Pool Private YN
false
Previous List Price
325665
Price Change Timestamp
2026-03-10T14:23:52.000Z
Projected Completion Date
2026-06-10T00:00:00.000
Property Condition
Under Construction
Public Survey Range
21
Public Survey Section
34
RATIO Current Price By Calculated SqFt
175.16
Road Surface Type
Paved
Roof
Shingle
Room Count
5
Senior Community YN
true
Sewer
Public Sewer
Showing Requirements
Contact Call Center
Status Change Timestamp
2026-02-10T18:47:52.000Z
Tax Block
-
Tax Book Number
0015/149
Tax Legal Description
SEC 34 TWP 14 RGE 21 PLAT BOOK 015 PAGE 149 OCALA PRESERVE PHASE 8 LOT 937
Tax Lot
937
Tax Other Annual Assessment Amount
1204
Tax Year
2025
Total Acreage
0 to less than 1/4
Total Annual Fees
6332.00
Total Monthly Fees
527.67
Township
14
Universal Property Id
US-12083-N-1367093700-R-N
Unparsed Address
4832 NW 39TH PL
Utilities
Cable Available
Water Source
Public
Waterfront YN
false
Zoning
PUD
Neighborhood Map
Popup

Property Photos
Listing Photo
Listing Photo
Listing Photo
Listing Photo
Listing Photo
Listing Photo
Listing Photo
Listing Photo
Listing Photo
Listing Photo
Listing Photo
Listing Photo
Listing Photo
Listing Photo
Listing Photo
Listing Photo
Listing Photo
Listing Photo
Listing Photo
Listing Photo
Listing Photo
Listing Photo
Listing Photo
Listing Photo
Listing Photo
Listing Photo
Listing Photo
Listing Photo
Listing Photo
Listing Photo
Listing Photo
Listing Photo
Listing Photo
Listing Photo

MLS #MFROM718532 Listing courtesy of Dr Horton Realty Of West Central Florida provided by Stellar MLS.

Similar Listings

$290,990
4713 Sw 89th Street
Ocala
3BR/2BA
| Pending
$291,000
4382 Sw 171st Place
Ocala
3BR/2BA
| Active
$291,990
5931 Sw 154th Lane Road
Ocala
3BR/2BA
| Active
$292,000
14 Bahia Trace Loop
Ocala
3BR/2BA
| Pending



All listing information is deemed reliable but not guaranteed and should be independently verified through personal inspection by appropriate professionals. Listings displayed on this website may be subject to prior sale or removal from sale; availability of any listing should always be independent verified. Listing information is provided for consumer personal, non-commercial use, solely to identify potential properties for potential purchase; all other use is strictly prohibited and may violate relevant federal and state law. The source of the listing data is as follows: Stellar MLS (updated 3/23/26 11:38 PM) |

Listing Search



Translate Tool

Featured Listings
St Petersburg Real Estate
$979,990
4 BED
2 BATH
Under contract-accepting backup offers. **PENDING, ACCEPTING BACKUPS*** Nestled in one of St. Petersburg's most sought-a... Read More
St Cloud Real Estate
$1,049,900
3 BED
3 BATH
Welcome to 2722 River Creek Lane in the resort-style community of Sunbridge by Del Webb, where this extraordinary one-st... Read More
Land O Lakes Real Estate
$875,000
5 BED
3 BATH
Under contract-accepting backup offers. Luxurious Hannah Bartoletta Custom-Built Retreat: Lake Access, Pool & Spa Paradi... Read More
Clermont Real Estate
$1,100,000
4 BED
3 BATH
One or more photo(s) has been virtually staged. One or more photos was virtually staged. Fabulous Waterfront Pool Home o... Read More
Windermere Real Estate
$1,498,000
5 BED
4 BATH
Located in the gated community of Casa Del Lago in Windermere, featuring just 88 luxury homes surrounding Lake Burden, t... Read More
Tampa Real Estate
$865,000
4 BED
3 BATH
Step into 1903 W State Street, where location and lifestyle come together just moments from the energy of Downtown Tampa... Read More
Lakewood Ranch Real Estate
$975,000
3 BED
3 BATH
READY MOVE-IN HOME WITH LAKE & GOLF COURSE VIEWS! Welcome to Calusa Country Club, a premier golf and resort-style commun... Read More
Clearwater Beach Real Estate
$1,448,000
4 BED
2 BATH
Under contract-accepting backup offers. Motivated sellers welcome you to this beautifully updated 4-bedroom, 2.5-bath wa... Read More
Tavares Real Estate
$995,000
3 BED
2 BATH
Welcome to a rare opportunity to own a private waterfront retreat on the shores of Lake Harris, one of the many lakes th... Read More
St Cloud Real Estate
$990,000
3 BED
2 BATH
Bring the Farm Animals!! This stunning pool home sits on just over 2 acres in desirable Bay Lake Ranch with NO HOA, offe... Read More
Contact Sandra Pardo

407-990-2746

Wendy Morris LLC

Licensed in the State of Florida
BK 3146762
16797 Broadwater Avenue
Winter Garden, Florida 34787

Your privacy is our utmost concern. We will never sell your personal information. Privacy Policy
©2026 sandrapardohomes.com - all rights reserved. | Site Map