407-990-2746
Menu

467 31st N Avenue, St Petersburg, FL

NEXT
PREV
$1,140,000

($520/sqft)

List Status: Active
467 31st N Avenue
St Petersburg, FL 33704


3 beds
2 baths
2192 living sqft
Top Features
  • View: Trees/Woods, Pool
  • Subdivision: Barnards Sub D E
  • Built in  1947
  • Single Family Residence
Description
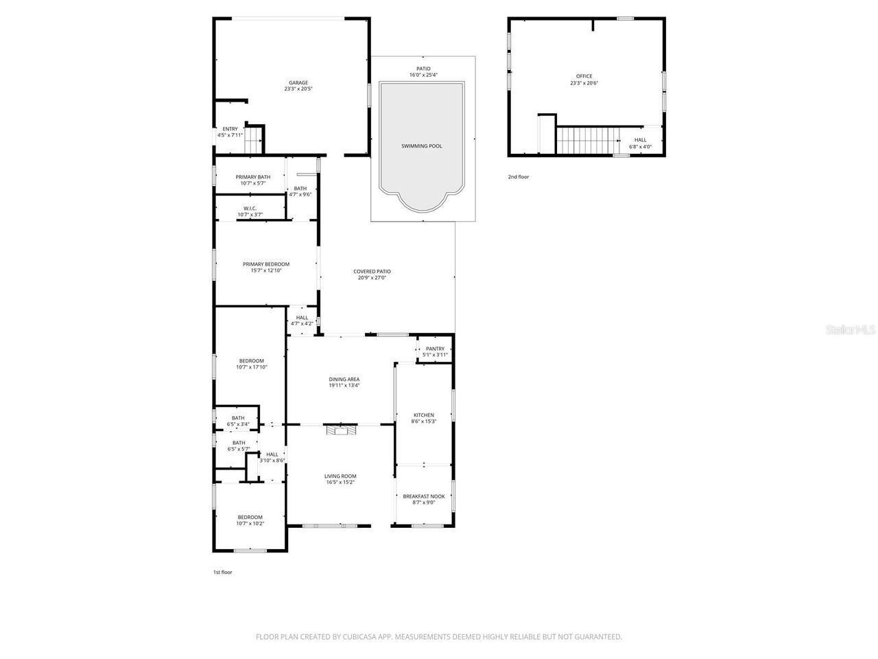
Beautifully landscaped and meticulously updated single family home in prime high & dry location of Five Points neighborhood; which consists of a mix of brand new builds and existing older homes, and within a block or so distance to major grocers (Fresh Market, Trader Joe's ), restaurants, doctors/dentists/eye care & much more along the 4th St. corridor. This home fits in perfectly for a "not too big and not too small" aesthetic. Originally built in 1947, it was purchased in 1999 by the current owners and has undergone multiple renovations to not only enhance and update the original build, but also to add on the newer additions. Engineered hardwood has been installed throughout the main home (2021). Additional updates include tankless natural gas H20 (allowing extra room for a storage pantry off the kitchen), complete exterior paint (February 2026), new roof main house (March 2020), new roof second story home office (February 2026), New insulation in attic (March 2026), ac ducts brushed, vacuumed & sanitized (Feb. 2026), new primary bathroom totally renovated (2021), new storm-rated double french doors with built-in blinds (Nov. 2025), new kitchen update with beautiful maple quiet close drawers & doors and granite counters (Nov. 2024), newer beverage cooler, disposal & microwave, new range & dishwasher; new pool salt generating system (2025) along with pool re-surfacing and new pool light (2020). Custom made wood plantation shutters and ceiling fans in every room. Indoor-Outdoor custom speakers for great sound & entertainment as well as 75" flat screen tv outside. A second story 528 sq. ft. home office studio built in 2009 above the garage comes complete with built in storage and desk space has an entrance not only from the garage, but a separate outdoor entrance coming from the expansive parking area. Currently being used as home-based business (and is separate from main house), would also make a great media room, music studio or art studio, and might possibly becom
Property Details
Additional Information
Additional Lease Restrictions
You must obtain a City of St. Petersburg Business Tax Receipt and register with the FL Dept. of Revenue and Pinellas County Tax Collector for taxes for short term rentals. Cannot rent out a residence more than three times per year.
Additional Parcels YN
false
Additional Rooms
Den/Library/Office
Alternate Key Folio Num
31-17-07-02736-004-0160
Appliances
Dishwasher, Disposal, Dryer, Microwave, Range, Refrigerator, Tankless Water Heater, Washer, Wine Refrigerator
Architectural Style
Bungalow
Association YN
false
Attached Garage YN
true
Available For Lease YN
1
Bathrooms Total Integer
2
Building Area Source
Public Records
Building Area Total
2822
Building Area Total Srch SqM
262.17
Building Area Units
Square Feet
Calculated List Price By Calculated SqFt
520.07
Carport YN
false
Construction Materials
Block, Concrete, Stucco, Frame
Cooling
Central Air
Country
US
Current Price
1140000.00
Direction Faces
South
Exterior Features
Awning(s), Courtyard, Garden, Lighting, Other, Private Yard, Storage
Fencing
Vinyl
Fireplace Features
Decorative, Living Room
Fireplace YN
true
Flood Zone Code
X
Flood Zone Date
2021-08-24
Flood Zone Panel
12103C0217H
Flooring
Carpet, Ceramic Tile, Hardwood, Tile
Foundation Details
Block, Crawlspace, Slab
Furnished
Negotiable
Garage Dimensions
23x20
Garage Spaces
2
Garage YN
true
Heating
Central, Electric
Homestead YN
1
Interior Features
Cathedral Ceiling(s), Ceiling Fans(s), Crown Molding, Other, Primary Bedroom Main Floor, Solid Wood Cabinets, Split Bedroom, Stone Counters, Thermostat, Vaulted Ceiling(s), Walk-In Closet(s), Window Treatments
Internet Address Display YN
true
Internet Automated Valuation Display YN
true
Internet Consumer Comment YN
false
Internet Entire Listing Display YN
true
Laundry Features
In Garage
Lease Restrictions YN
1
Levels
Multi/Split
List AOR
Suncoast Tampa
Living Area Meters
203.64
Living Area Source
Public Records
Living Area Units
Square Feet
Lot Features
City Limits, Landscaped, Level
Lot Size Acres
0.15
Lot Size Square Feet
6504
Lot Size Square Meters
604
Minimum Lease
1-7 Days
Modification Timestamp
2026-02-26T15:43:11.312Z
New Construction YN
false
Num Times per Year
3
Occupant Type
Owner
Other Equipment
Private Yard
Ownership
Fee Simple
Parcel Number
07-31-17-02736-004-0160
Patio And Porch Features
Covered, Front Porch, Patio
Pets Allowed
Yes
Pool Private YN
true
Postal Code Plus 4
2132
Property Condition
Completed
Public Survey Range
17
Public Survey Section
07
RATIO Current Price By Calculated SqFt
520.07
Realtor Info
As-Is, Floor Plan Available, Lease Restrictions, List Agent is Owner, Short Term Rental Allowed, Sign, Survey Available
Road Responsibility
Public Maintained Road
Road Surface Type
Paved
Roof
Built-Up, Shingle
Room Count
7
Security Features
Security Lights, Smoke Detector(s)
Senior Community YN
false
Sewer
Public Sewer
Showing Requirements
Appointment Only, Call Listing Agent, Listing Agent Must Accompany, See Remarks
Spa Features
Other
Spa YN
false
Status Change Timestamp
2026-02-26T15:25:25.000Z
Tax Annual Amount
3220
Tax Block
4
Tax Book Number
1-3
Tax Legal Description
BARNARD'S SUB, D. E. BLK 4, LOT 16
Tax Lot
16
Tax Year
2025
Total Acreage
0 to less than 1/4
Total Annual Fees
0.00
Total Monthly Fees
0.00
Township
31
Universal Property Id
US-12103-N-073117027360040160-R-N
Unparsed Address
467 31ST AVE N
Utilities
Cable Connected, Electricity Connected, Natural Gas Connected, Public, Sewer Connected, Sprinkler Well, Water Connected
Vegetation
Mature Landscaping, Trees/Landscaped
Water Source
Public
Waterfront YN
false
Neighborhood Map
Popup

Property Photos
Listing Photo
Listing Photo
Listing Photo
Listing Photo
Listing Photo
Listing Photo
Listing Photo
Listing Photo
Listing Photo
Listing Photo
Listing Photo
Listing Photo
Listing Photo
Listing Photo
Listing Photo
Listing Photo
Listing Photo
Listing Photo
Listing Photo
Listing Photo
Listing Photo
Listing Photo
Listing Photo
Listing Photo
Listing Photo
Listing Photo
Listing Photo
Listing Photo
Listing Photo
Listing Photo
Listing Photo
Listing Photo
Listing Photo
Listing Photo
Listing Photo
Listing Photo
Listing Photo
Listing Photo
Listing Photo
Listing Photo
Listing Photo
Listing Photo
Listing Photo
Listing Photo
Listing Photo
Listing Photo
Listing Photo
Listing Photo
Listing Photo
Listing Photo
Listing Photo
Listing Photo
Listing Photo
Listing Photo
Listing Photo
Listing Photo
Listing Photo
Listing Photo
Listing Photo
Listing Photo
Listing Photo
Listing Photo
Listing Photo
Listing Photo
Listing Photo
Listing Photo
Listing Photo
Listing Photo
Listing Photo
Listing Photo
Listing Photo
Listing Photo
Listing Photo
Listing Photo
Listing Photo
Listing Photo
Listing Photo
Listing Photo
Listing Photo
Listing Photo
Listing Photo
Listing Photo
Listing Photo
Listing Photo
Listing Photo
Listing Photo
Listing Photo
Listing Photo
Listing Photo
Listing Photo
Listing Photo
Listing Photo
Listing Photo
Listing Photo
Listing Photo
Listing Photo
Listing Photo
Listing Photo
Listing Photo
Listing Photo
Listing Photo
Listing Photo
Listing Photo
Listing Photo
Listing Photo
Listing Photo
Listing Photo
Listing Photo
Listing Photo
Listing Photo
Listing Photo
Listing Photo
Listing Photo
Listing Photo
Listing Photo
Listing Photo
Listing Photo
Listing Photo
Listing Photo
Listing Photo
Listing Photo
Listing Photo
Listing Photo
Listing Photo

MLS #MFRTB8479039 Listing courtesy of Miller Realty & Management provided by Stellar MLS.

Similar Listings

$1,049,000
254 7th N Avenue
St Petersburg
3BR/2BA
| Pending
$1,049,999
17140 Gulf Boulevard
St Petersburg
3BR/2BA
| Active
$1,050,000
1936 Arrowhead Ne Drive
St Petersburg
3BR/2BA
| Active
$1,059,000
6 Academy S Way
St Petersburg
3BR/2BA
| Active



All listing information is deemed reliable but not guaranteed and should be independently verified through personal inspection by appropriate professionals. Listings displayed on this website may be subject to prior sale or removal from sale; availability of any listing should always be independent verified. Listing information is provided for consumer personal, non-commercial use, solely to identify potential properties for potential purchase; all other use is strictly prohibited and may violate relevant federal and state law. The source of the listing data is as follows: Stellar MLS (updated 2/26/26 12:34 PM) |

Listing Search



Translate Tool

Featured Listings
Clearwater Beach Real Estate
$1,300,000
5 BED
4 BATH
OWNER SAYS "BRING AN OFFER" Imagine living at a beach that consistently is rated #1 or #2 in America! This Key West Styl... Read More
University Park Real Estate
$1,125,000
3 BED
3 BATH
UPDATED ROOF, HURRICANE-IMPACT WINDOWS & DOORS, NEWER A/C, WATER HEATER, AND MORE! This architecturally elegant single-s... Read More
Flagler Beach Real Estate
$1,490,000
4 BED
4 BATH
One or more photo(s) has been virtually staged. This stunning three-story coastal retreat blends strength, style, and sc... Read More
Venice Real Estate
$1,375,000
3 BED
2 BATH
Under contract-accepting backup offers. Located on a quiet, double cul-de-sac on the island of Venice and walking distan... Read More
St Petersburg Real Estate
$1,299,000
4 BED
4 BATH
One or more photo(s) has been virtually staged. A Buyer's change of heart BEFORE INSPECTION means OPPORTUNITY FOR YOU! S... Read More
Auburndale Real Estate
$820,000
3 BED
2 BATH
Are you ready to get OUT of the hustle and bustle of the city and IN to your private lakefront retreat? Welcome to 6005 ... Read More
St Petersburg Real Estate
$875,000
3 BED
2 BATH
Discover the epitome of Florida living with scale, quality, and intention in this meticulously maintained 3-bedroom, 2-b... Read More
Orlando Real Estate
$899,999
5 BED
4 BATH
One or more photo(s) has been virtually staged. Designer Luxury in Laureate Park | Private Apartment Suite | Income Pote... Read More
St Petersburg Real Estate
$949,000
5 BED
3 BATH
Welcome to this beautifully renovated home in desirable Lakewood Estates, offering exceptional flexibility, thoughtful u... Read More
Odessa Real Estate
$949,900
3 BED
2 BATH
One or more photo(s) has been virtually staged. LAND. LAKEFRONT. ODESSA. Finally — the lifestyle everyone is looking for... Read More
Contact Sandra Pardo

407-990-2746

Wendy Morris LLC

Licensed in the State of Florida
BK 3146762
16797 Broadwater Avenue
Winter Garden, Florida 34787

Your privacy is our utmost concern. We will never sell your personal information. Privacy Policy
©2026 sandrapardohomes.com - all rights reserved. | Site Map