407-990-2746
Menu

4600 Gulf Of Mexico Drive Unit: Unit: 206, Longboat Key, FL

NEXT
PREV
$780,000

($512/sqft)

List Status: Active
4600 Gulf Of Mexico Drive
Longboat Key, FL 34228


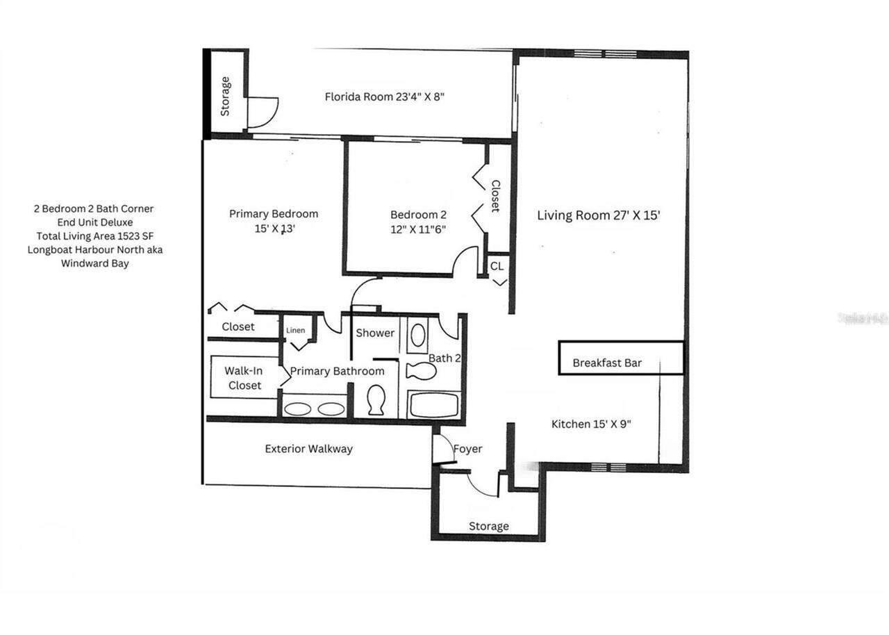
2 beds
2 baths
1523 living sqft
Top Features
  • Frontage: Bay/Harbor
  • View: Water
  • Subdivision: Windward Bay Amd
  • Built in  1975
  • Condominium
Description
Property Details
Additional Information
Additional Lease Restrictions
Renters can have pets with approval of Owner and Association.
Additional Parcels YN
false
Additional Rooms
Florida Room, Great Room, Inside Utility, Storage Rooms
Amenities Additional Fees
This condo has a $20/month Rec lease fee. Pay per load laundry is available. First come boat slips are $40/month or $45/month with an owner supplied lift. Kayak/Paddle Board storage is $25/year.
Appliances
Dishwasher, Disposal, Dryer, Electric Water Heater, Microwave, Range, Refrigerator, Washer
Approval Process
Application and background check.
Architectural Style
Florida
Association Amenities
Cable TV, Clubhouse, Elevator(s), Fence Restrictions, Fitness Center, Laundry, Lobby Key Required, Maintenance, Pickleball Court(s), Pool, Recreation Facilities, Sauna, Shuffleboard Court, Storage, Tennis Court(s), Vehicle Restrictions
Association Approval Required YN
1
Association Email
mbillaouadil@castlegroup.com>
Association Fee
1305
Association Fee Frequency
Monthly
Association Fee Includes
Cable TV, Common Area Taxes, Pool, Escrow Reserves Fund, Insurance, Internet, Maintenance Structure, Maintenance Grounds, Maintenance, Management, Pest Control, Recreational Facilities, Sewer, Trash, Water
Association Fee Requirement
Required
Association YN
true
Attached Garage YN
true
Available For Lease YN
1
Bathrooms Total Integer
2
Building Area Source
Builder
Building Area Total
1523
Building Area Total Srch SqM
141.49
Building Area Units
Square Feet
Building Elevator YN
1
Calculated List Price By Calculated SqFt
512.15
Carport Spaces
1
Carport YN
false
Community Features
Association Recreation - Lease, Buyer Approval Required, Clubhouse, Community Mailbox, Deed Restrictions, Fitness Center, Irrigation-Reclaimed Water, No Truck/RV/Motorcycle Parking, Pool, Sidewalks, Tennis Court(s)
Complex Community Name NCCB
WINDWARD BAY
Condo Fees Term
Monthly
Construction Materials
Stucco
Cooling
Central Air
Country
US
Cumulative Days On Market
24
Current Price
780000.00
Direction Faces
West
Disaster Mitigation
Hurricane Shutters/Windows
Elementary School
Anna Maria Elementary
Exterior Features
Lighting, Outdoor Grill, Outdoor Shower, Sidewalk, Storage, Tennis Court(s)
Fireplace YN
false
Flood Zone Code
AE
Floor Number
2
Flooring
Tile
Foundation Details
Stilt/On Piling
Furnished
Unfurnished
Garage Spaces
1
Garage YN
true
Green Water Conservation
Irrigation-Reclaimed Water
Heating
Central
High School
Bayshore High
Homestead YN
1
Interior Features
Ceiling Fans(s), Kitchen/Family Room Combo, Living Room/Dining Room Combo, Open Floorplan, Primary Bedroom Main Floor, Solid Wood Cabinets, Stone Counters, Thermostat, Walk-In Closet(s), Window Treatments
Internet Address Display YN
true
Internet Automated Valuation Display YN
false
Internet Consumer Comment YN
true
Internet Entire Listing Display YN
true
Laundry Features
Inside
Lease Restrictions YN
1
Levels
One
List AOR
Sarasota - Manatee
Living Area Meters
141.49
Living Area Source
Builder
Living Area Units
Square Feet
Lot Features
City Limits, In County, Landscaped, Level, Near Golf Course, Near Marina, Near Public Transit, Sidewalk, Paved
Lot Size Acres
26.67
Lot Size Square Feet
1161766
Lot Size Square Meters
107932
Max Pet Weight
75
Middle Or Junior School
Martha B. King Middle
Minimum Lease
1 Month
Modification Timestamp
2026-01-30T19:18:09.545Z
Monthly HOA Amount
1305.00
Monthly Maint Amount Addition To HOA
20
New Construction YN
false
Num Times per Year
2
Number Of Pets
2
Occupant Type
Owner
Other Equipment
Irrigation Equipment
Other Exemptions YN
1
Other Fees Term
Monthly
Other Structures
Tennis Court(s)
Ownership
Condominium
Parcel Number
8007914008
Patio And Porch Features
Enclosed
Pet Restrictions
See association for breed restrictions. Pooper Scooper and Leash rules apply. Pet hygiene stations are available on property.
Pet Size
Large (61-100 Lbs.)
Pets Allowed
Breed Restrictions, Dogs OK, Number Limit, Size Limit, Yes
Pool Private YN
false
Postal Code Plus 4
2107
Previous List Price
800000
Price Change Timestamp
2026-01-30T19:17:54.000Z
Property Description
Corner Unit, Elevated, End Unit, Mid Rise
Public Remarks
Experience elevated Longboat Key bayfront living in this BEAUTIFULLY UPDATED and impeccably maintained 2-bedroom, 2-bathroom corner END-UNIT condo in the sought-after Windward Bay community. This ELEGANT RESIDENCE offers unobstructed full Sarasota Bay VIEWS from nearly every room through dramatic floor-to-ceiling windows. Exceptionally PRIVATE and boasting the LARGEST FLOOR PLAN in the community, this condo is located on the second floor with convenient elevator access - perfectly blending comfort, sophistication and coastal serenity. The open-concept kitchen features quartz countertops, stainless steel appliances, a large breakfast island and 42"cabinetry with elegant, iridescent Mother-of-Pearl backsplash that flows seamlessly into the great room with tranquil water views. PORCELAIN tile flooring THROUGHOUT enhances the modern coastal aesthetic. The bayfront primary suite is a peaceful retreat and offers direct lanai access, a generous walk-in closet, and a luxurious ensuite bath with custom walk-in shower and dual-sink vanity. The second bedroom also enjoys bay views and lanai access, making it ideal for guests or a home office, and sits adjacent to updated guest bathroom. Additional conveniences include brand new in-unit laundry, private storage, and under-building parking. Recent upgrades include PGT hurricane-impact windows, including a panoramic window in the great room, a 2021 HVAC system, and a 2020 water heater. The monthly HOA fee of $1, 325 includes hazard, hurricane and flood insurance, recreational amenities and FULLY FUNDED RESERVES - major value for bayfront condo ownership. There is a modest assessment $293 per month at a low interest rate. Windward Bay spans 26 acres of waterfront and offers resort-style amenities including BOAT SLIPS, kayak storage, three private beach access points, two heated pools, a fitness center, saunas, tennis and pickleball courts, walking paths, BBQ grills, fire pits, and a clubhouse. The community is PET FRIENDLY, allowing two pets up to 75 lbs each, and approved renter pets, making this an excellent primary residence, vacation home, or investment property. Located mid-island, you are minutes from championship golf, full-service marinas, St. Armands Circle, downtown Sarasota, and Anna Maria Island. Whether you are seeking a luxury Longboat Key waterfront condo, a serene island retreat or a strong rental opportunity, this exceptional bayfront residence delivers the ultimate coastal lifestyle!
Public Survey Range
16
Public Survey Section
36
RATIO Current Price By Calculated SqFt
512.15
Realtor Info
Assoc approval required, Brochure Available, Docs Available, Engineering Report, Floor Plan Available, Lease Restrictions, No Sign, Right of First Refusal, See Attachments, Special Assessments
Road Surface Type
Asphalt
Roof
Built-Up, Shingle
Room Count
5
SW Subdiv Community Name
Windward Bay
Security Features
Smoke Detector(s)
Senior Community YN
false
Sewer
Public Sewer
Showing Requirements
Appointment Only, Call Listing Agent, Listing Agent Must Accompany
Spa YN
false
Status Change Timestamp
2026-01-06T16:25:46.000Z
Stories Total
4
Tax Annual Amount
8383
Tax Book Number
3-82
Tax Legal Description
UNIT 206 BLDG E WINDWARD BAY, A CONDO PI#80079.1400/8
Tax Lot
206
Tax Year
2025
Total Acreage
20 to less than 50
Total Annual Fees
15900.00
Total Monthly Fees
1325.00
Township
35
Universal Property Id
US-12081-N-8007914008-S-206
Unparsed Address
4600 GULF OF MEXICO DR #206
Utilities
Cable Connected, Electricity Connected, Public, Sewer Connected, Underground Utilities, Water Connected
Vegetation
Mature Landscaping, Trees/Landscaped
Water Access
Bay/Harbor, Beach, Canal - Saltwater, Gulf/Ocean, Intracoastal Waterway, Marina
Water Access YN
1
Water Body Name
SARASOTA BAY
Water Extras
Bridges - No Fixed Bridges, Fishing Pier, Lift, Sailboat Water, Seawall - Concrete
Water Extras YN
1
Water Frontage Feet Bay Harbor
40
Water Source
Public
Water View
Bay/Harbor - Full
Water View YN
1
Waterfront Feet Total
40
Waterfront YN
true
Window Features
Storm Window(s), Window Treatments
Zoning
R4MX
Neighborhood Map
Popup

Property Photos
Listing Photo
Listing Photo
Listing Photo
Listing Photo
Listing Photo
Listing Photo
Listing Photo
Listing Photo
Listing Photo
Listing Photo
Listing Photo
Listing Photo
Listing Photo
Listing Photo
Listing Photo
Listing Photo
Listing Photo
Listing Photo
Listing Photo
Listing Photo
Listing Photo
Listing Photo
Listing Photo
Listing Photo
Listing Photo
Listing Photo
Listing Photo
Listing Photo
Listing Photo
Listing Photo
Listing Photo
Listing Photo
Listing Photo
Listing Photo
Listing Photo
Listing Photo
Listing Photo
Listing Photo
Listing Photo
Listing Photo
Listing Photo
Listing Photo
Listing Photo
Listing Photo
Listing Photo
Listing Photo
Listing Photo
Listing Photo
Listing Photo
Listing Photo
Listing Photo
Listing Photo
Listing Photo
Listing Photo
Listing Photo
Listing Photo
Listing Photo
Listing Photo
Listing Photo
Listing Photo
Listing Photo
Listing Photo
Listing Photo
Listing Photo
Listing Photo
Listing Photo
Listing Photo
Listing Photo
Listing Photo
Listing Photo
Listing Photo
Listing Photo
Listing Photo
Listing Photo
Listing Photo
Listing Photo
Listing Photo
Listing Photo
Listing Photo
Listing Photo
Listing Photo
Listing Photo
Listing Photo
Listing Photo
Listing Photo
Listing Photo
Listing Photo
Listing Photo
Listing Photo
Listing Photo
Listing Photo
Listing Photo
Listing Photo
Listing Photo
Listing Photo
Listing Photo
Listing Photo
Listing Photo
Listing Photo
Listing Photo
Listing Photo
Listing Photo
Listing Photo
Listing Photo
Listing Photo
Listing Photo
Listing Photo
Listing Photo
Listing Photo
Listing Photo
Listing Photo
Listing Photo
Listing Photo
Listing Photo
Listing Photo
Listing Photo
Listing Photo
Listing Photo
Listing Photo
Listing Photo
Listing Photo
Listing Photo

MLS #MFRA4666016 Listing courtesy of Coldwell Banker Realty provided by Stellar MLS.

Similar Listings

$719,000
825 Bayport Way
Longboat Key
2BR/2BA
| Active
$724,900
3070 Grand Bay Boulevard
Longboat Key
2BR/2BA
| Active
$729,000
4310 Falmouth Drive
Longboat Key
2BR/2BA
| Active
$729,900
1920 Harbourside Drive
Longboat Key
2BR/2BA
| Active



All listing information is deemed reliable but not guaranteed and should be independently verified through personal inspection by appropriate professionals. Listings displayed on this website may be subject to prior sale or removal from sale; availability of any listing should always be independent verified. Listing information is provided for consumer personal, non-commercial use, solely to identify potential properties for potential purchase; all other use is strictly prohibited and may violate relevant federal and state law. The source of the listing data is as follows: Stellar MLS (updated 2/3/26 3:33 AM) |

Listing Search



Translate Tool

Featured Listings
Orlando Real Estate
$1,265,000
5 BED
4 BATH
Winter Garden Real Estate
$1,025,000
5 BED
5 BATH
Palm Coast Real Estate
$1,450,000
5 BED
4 BATH
Sarasota Real Estate
$1,300,000
2 BED
2 BATH
Bradenton Real Estate
$850,000
3 BED
2 BATH
Lakewood Ranch Real Estate
$899,000
3 BED
2 BATH
St Petersburg Real Estate
$825,000
3 BED
3 BATH
Ormond Beach Real Estate
$1,500,000
4 BED
3 BATH
Reunion Real Estate
$1,299,999
4 BED
3 BATH
Altamonte Springs Real Estate
$1,109,990
4 BED
3 BATH
Contact Sandra Pardo

407-990-2746

Wendy Morris LLC

Licensed in the State of Florida
BK 3146762
16797 Broadwater Avenue
Winter Garden, Florida 34787

Your privacy is our utmost concern. We will never sell your personal information. Privacy Policy
©2026 sandrapardohomes.com - all rights reserved. | Site Map