407-990-2746
Menu

451 Motorcoach S Drive, Polk City, FL

NEXT
PREV
$582,500

($334/sqft)

List Status: Active
451 Motorcoach S Drive
Polk City, FL 33868


2 beds
2 baths
1746 living sqft
Top Features
  • Subdivision: Mt Olive Shores North Add 02
  • Built in  2004
  • Single Family Residence
Description
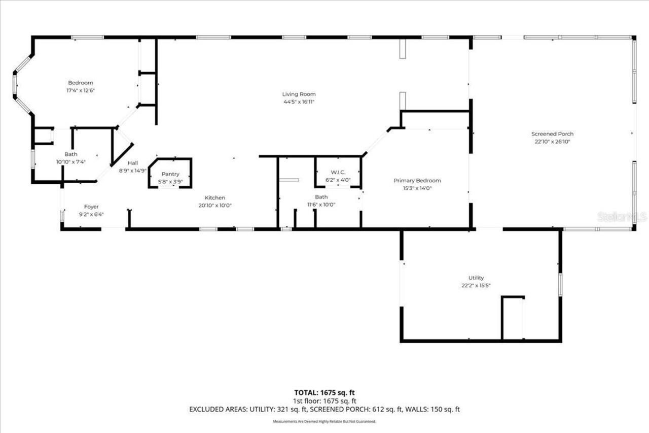
Imagine yourself living in this meticulously maintained 2-bedroom, 2-bath home in the highly desirable Mt. Olive Shores North. Living in this vibrant 55+ maintenance-free RV community is a lifestyle upgrade waiting to happen. This property is perfectly positioned on an oversized, prime lot offering stunning expansive open rear views which overlook a serene pond and a peaceful natural backdrop. This home boasts numerous features and upgrades, see details in the photos. Highlights include a new roof (2021), Generac wholehome generator (2021), and new hurricane rated Anderson windows and sliders (2025). Step inside and be captivated by the open-concept dining and living area, bathed in natural light. Your eyes will immediately be drawn to the expansive lanai, complete with a covered ceiling and extended screened area. This is the perfect space for relaxing, entertaining, and fully embracing Florida's coveted indoor/outdoor lifestyle. The home also features elegant, diagonal- set tile floors in the main living areas and wood look tile in the bedrooms, a convenient laundry/craft room, a central vacuum system, and stylish window valances with new blinds. Quality interior furnishings may be available for purchase. For the RV enthusiast, this property is a dream come true. The well-equipped RV port, measuring 48.5 x 15.5, features dual water, 50-amp service, and sewer hookups on both sides, allowing for effortless pull-in or back-in RV access. In addition, there is a one-car garage with a carport, and a climate-controlled finished room accessible from the garage with exterior access. This unique area offers extra living space perfect for an office, craft room, or additional storage. The property has been professionally landscaped and features a well with a 5-zone irrigation system, ensuring a lush and vibrant yard year-round. This is a MUST-SEE property, and we don't expect it to stay on the market for long. Call today to schedule your appointment and experience this except
Property Details
Additional Information
Additional Parcels YN
false
Alternate Key Folio Num
06-27-25-298367-002840
Appliances
Built-In Oven, Dishwasher, Disposal, Dryer, Microwave, Range Hood, Refrigerator, Washer, Water Softener
Association Email
elisabethd@mosaicsvc.com
Association Fee
1620
Association Fee Frequency
Annually
Association Fee Requirement
Required
Association YN
true
Attached Garage YN
true
Bathrooms Total Integer
2
Building Area Source
Public Records
Building Area Total
3944
Building Area Total Srch SqM
366.41
Building Area Units
Square Feet
Calculated List Price By Calculated SqFt
333.62
Carport Spaces
1
Carport YN
true
Construction Materials
Vinyl Siding, Frame
Cooling
Central Air
Country
US
Cumulative Days On Market
2
Current Price
582500.00
Direction Faces
West
Exterior Features
RV Hookup
Fireplace YN
false
Flood Zone Code
X
Flood Zone Date
2016-12-22
Flood Zone Panel
12105C0190G
Flooring
Ceramic Tile
Foundation Details
Slab
Furnished
Negotiable
Garage Spaces
1
Garage YN
true
Heating
Central
Homestead YN
1
Interior Features
Ceiling Fans(s), Central Vaccum, High Ceilings, Open Floorplan, Pest Guard System, Tray Ceiling(s), Window Treatments
Internet Address Display YN
true
Internet Automated Valuation Display YN
true
Internet Consumer Comment YN
true
Internet Entire Listing Display YN
true
Laundry Features
Laundry Room
Levels
One
List AOR
Lakeland
Living Area Meters
162.21
Living Area Source
Public Records
Living Area Units
Square Feet
Lot Size Acres
0.27
Lot Size Square Feet
11617
Lot Size Square Meters
1079
Modification Timestamp
2026-02-01T15:28:10.056Z
Monthly HOA Amount
135.00
New Construction YN
false
Occupant Type
Owner
Other Equipment
Irrigation Equipment, RV Hookup
Ownership
Fee Simple
Parcel Number
25-27-06-298367-002840
Pets Allowed
Cats OK, Dogs OK
Pool Private YN
false
Postal Code Plus 4
5136
Public Survey Range
25
Public Survey Section
06
RATIO Current Price By Calculated SqFt
333.62
Road Surface Type
Asphalt
Roof
Shingle
Room Count
7
Senior Community YN
true
Sewer
Public Sewer
Showing Requirements
Appointment Only, Call Before Showing
Status Change Timestamp
2026-01-30T16:17:32.000Z
Tax Annual Amount
3324
Tax Book Number
122-21
Tax Legal Description
MT OLIVE SHORES NORTH SECOND ADDITION PB 122 PGS 21 & 22 LOT 284
Tax Lot
284
Tax Year
2025
Total Acreage
1/4 to less than 1/2
Total Annual Fees
1620.00
Total Monthly Fees
135.00
Township
27
Universal Property Id
US-12105-N-252706298367002840-R-N
Unparsed Address
451 MOTORCOACH DR S
Utilities
Cable Available, Electricity Connected, Sewer Connected, Sprinkler Well, Water Connected
Water View
Pond
Water View YN
1
Waterfront YN
false
Neighborhood Map
Popup

Property Photos
Listing Photo
Listing Photo
Listing Photo
Listing Photo
Listing Photo
Listing Photo
Listing Photo
Listing Photo
Listing Photo
Listing Photo
Listing Photo
Listing Photo
Listing Photo
Listing Photo
Listing Photo
Listing Photo
Listing Photo
Listing Photo
Listing Photo
Listing Photo
Listing Photo
Listing Photo
Listing Photo
Listing Photo
Listing Photo
Listing Photo
Listing Photo
Listing Photo
Listing Photo
Listing Photo
Listing Photo
Listing Photo
Listing Photo
Listing Photo
Listing Photo
Listing Photo
Listing Photo
Listing Photo
Listing Photo
Listing Photo
Listing Photo
Listing Photo
Listing Photo
Listing Photo
Listing Photo
Listing Photo
Listing Photo
Listing Photo
Listing Photo
Listing Photo
Listing Photo
Listing Photo
Listing Photo
Listing Photo
Listing Photo
Listing Photo
Listing Photo
Listing Photo
Listing Photo
Listing Photo
Listing Photo
Listing Photo
Listing Photo
Listing Photo
Listing Photo
Listing Photo
Listing Photo
Listing Photo
Listing Photo
Listing Photo
Listing Photo
Listing Photo
Listing Photo
Listing Photo
Listing Photo
Listing Photo
Listing Photo
Listing Photo
Listing Photo
Listing Photo
Listing Photo
Listing Photo
Listing Photo
Listing Photo
Listing Photo
Listing Photo
Listing Photo
Listing Photo
Listing Photo
Listing Photo
Listing Photo
Listing Photo
Listing Photo
Listing Photo
Listing Photo
Listing Photo
Listing Photo
Listing Photo
Listing Photo
Listing Photo

MLS #MFRL4958889 Listing courtesy of Mosn Realty provided by Stellar MLS.

Similar Listings

$529,000
584 Meandering Way
Polk City
2BR/2BA
| Active
$535,000
3287 Red Tail Hawk Drive
Polk City
2BR/2BA
| Active
$539,000
402 Cruisers Drive
Polk City
2BR/2BA
| Active
$549,000
715 Teaberry Trail
Polk City
2BR/2BA
| Active



All listing information is deemed reliable but not guaranteed and should be independently verified through personal inspection by appropriate professionals. Listings displayed on this website may be subject to prior sale or removal from sale; availability of any listing should always be independent verified. Listing information is provided for consumer personal, non-commercial use, solely to identify potential properties for potential purchase; all other use is strictly prohibited and may violate relevant federal and state law. The source of the listing data is as follows: Stellar MLS (updated 2/13/26 4:34 AM) |

Listing Search



Translate Tool

Featured Listings
Tampa Real Estate
$1,500,000
5 BED
4 BATH
Two TRUE PRIMARY SUITES (1 downstairs, 1 upstairs) both oversized with en-suite baths, dual vanities, soaking tubs, walk... Read More
Chuluota Real Estate
$899,000
4 BED
3 BATH
Welcome to 1055 Brumley Road, Chuluota, FL 32766 — a private waterfront country estate located in one of the most desira... Read More
Englewood Real Estate
$850,000
3 BED
2 BATH
One or more photo(s) has been virtually staged. Welcome to a rare and iconic waterfront property in the heart of Englewo... Read More
Sarasota Real Estate
$899,000
2 BED
2 BATH
Amazing property and location! This Townhome is located between Osprey and Orange Avenues off of Ringling Blvd. in downt... Read More
Chuluota Real Estate
$960,000
4 BED
3 BATH
Welcome home to this FABULOUS 3 way SPLIT plan 4 bedroom, 3 1/2 bath SCREENED POOL gem!! This beautifully manicured 1 ac... Read More
Seminole Real Estate
$895,000
4 BED
2 BATH
NO FLOODING OR HURRICANE DAMAGE Ultimate peace of mind awaits in the heart of Seminole Lake Country Club Estates. This s... Read More
Sarasota Real Estate
$1,039,000
4 BED
3 BATH
Turnkey Furnished. This meticulously maintained, 4 bedroom, 3 bathroom, pool home is located in highly sought-after gate... Read More
Port Orange Real Estate
$982,000
4 BED
4 BATH
Discover a rare estate-style residence in the prestigious Bentwood community of Port Orange. Set on a secluded, fully fe... Read More
St Petersburg Real Estate
$1,275,000
5 BED
3 BATH
This is a test. Statistics say the average buyer reads less than three lines of a real estate description. Are you avera... Read More
Lutz Real Estate
$999,900
4 BED
3 BATH
Luxury living meets modern design in this one-of-a-kind estate nestled on over an acre of beautifully landscaped land in... Read More
Contact Sandra Pardo

407-990-2746

Wendy Morris LLC

Licensed in the State of Florida
BK 3146762
16797 Broadwater Avenue
Winter Garden, Florida 34787

Your privacy is our utmost concern. We will never sell your personal information. Privacy Policy
©2026 sandrapardohomes.com - all rights reserved. | Site Map