407-990-2746
Menu

44 Cloverdale N Court, Palm Coast, FL

NEXT
PREV
$1,412,800

($465/sqft)

List Status: Active
44 Cloverdale N Court
Palm Coast, FL 32137


3 beds
3 baths
3036 living sqft
Top Features
  • Frontage: Canal - Saltwater
  • View: Water
  • Subdivision: Palm Harbor
  • Built in  2026
  • Single Family Residence
Description
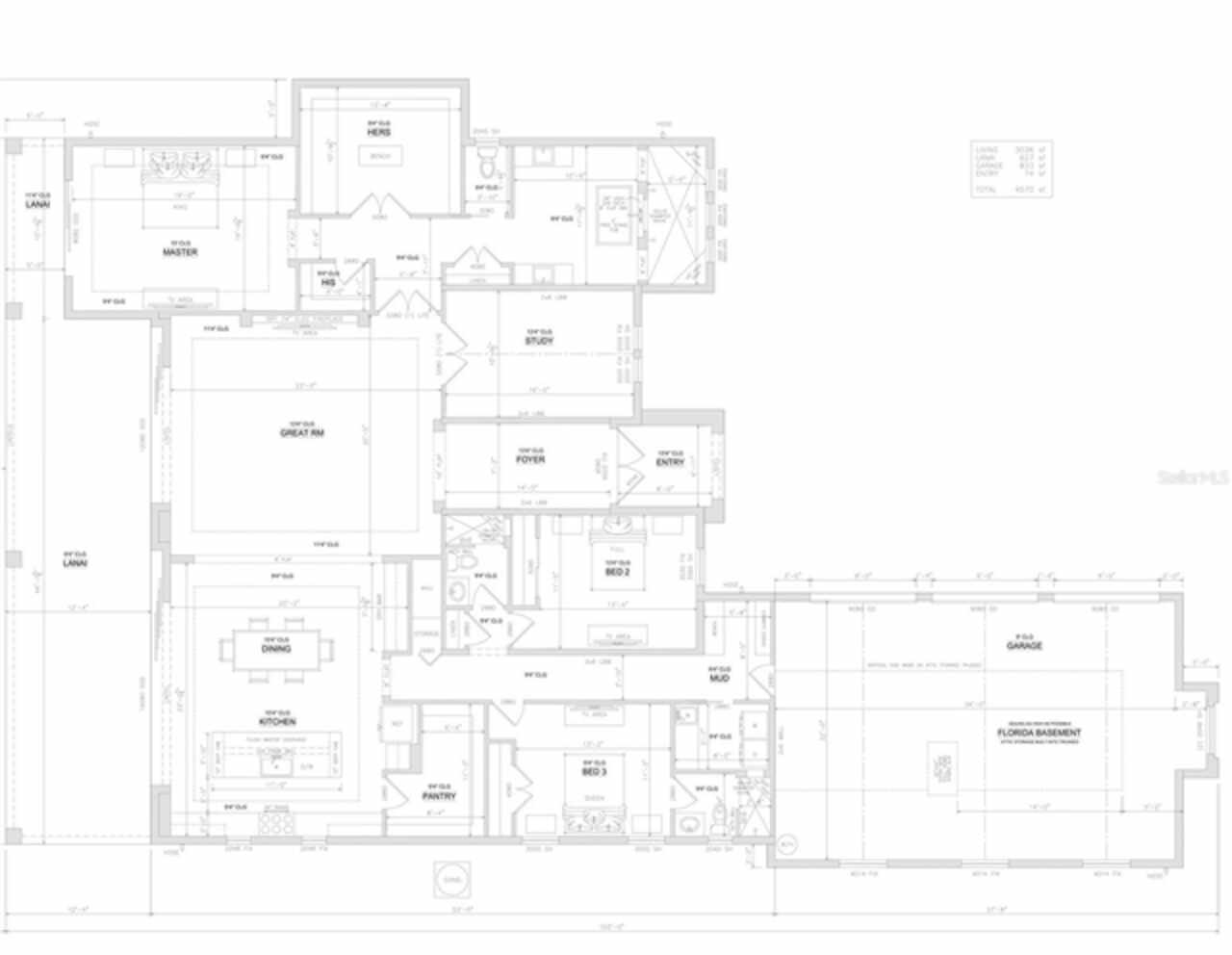
Pre-Construction. To be built. Option to purchase vacant lot separately. 0.30 acre waterfront lot featuring a fully reinforced concrete seawall with over 245 feet of saltwater canal frontage and breathtaking views. No HOA or builder restrictions, survey and floor plan available. The vacant lot and concept shown (see features sheet) are included in the list price. Saltwater Homes Inc. is a custom coastal-living home builder in Flagler County. Concept shown has 3 bedrooms, 3 full bathrooms, study/loft, 3 car garage and 3,036 SqFt of living space. Features include steel-reinforced concrete block construction, maintenance-free cementitious textured walls with enhanced detailing, tile roof, whole home seamless aluminum gutters with underground drainage, quartz kitchen countertops with choice of edges, decorative trays ceiling, arch columns and more. Tucked away at the end of a quiet cul-de-sac, situated perfectly with wide canal access leading directly to the Intracoastal Waterway and the Atlantic Ocean, your boating, fishing, and water adventures await.
Property Details
Additional Information
Additional Parcels YN
false
Additional Rooms
Den/Library/Office
Appliances
Other
Architectural Style
Custom
Association YN
false
Attached Garage YN
true
Available For Lease YN
1
Bathrooms Total Integer
3
Building Area Source
Builder
Building Area Total
4575
Building Area Total Srch SqM
425.03
Building Area Units
Square Feet
Calculated List Price By Calculated SqFt
465.35
Carport YN
false
Construction Materials
Concrete
Cooling
Central Air, Zoned
Country
US
Cumulative Days On Market
20
Current Price
1412800.00
Direction Faces
South
Elementary School
Old Kings Elementary
Exterior Features
Lighting, Other, Rain Gutters, Sidewalk
Fireplace YN
false
Flood Zone Code
AE X
Flood Zone Date
2018-06-06
Flood Zone Panel
12035C0129E
Flooring
Hardwood, Luxury Vinyl, Tile
Foundation Details
Slab
Garage Spaces
3
Garage YN
true
Heating
Central, Electric
High School
Matanzas High
Interior Features
Built-in Features, Ceiling Fans(s), Crown Molding, Other, Solid Wood Cabinets, Split Bedroom, Stone Counters, Tray Ceiling(s)
Internet Address Display YN
true
Internet Automated Valuation Display YN
false
Internet Consumer Comment YN
false
Internet Entire Listing Display YN
true
Laundry Features
Inside
Levels
One
List AOR
Orlando Regional
Living Area Meters
282.05
Living Area Source
Builder
Living Area Units
Square Feet
Lot Features
Cul-De-Sac, Private
Lot Size Acres
0.3
Lot Size Dimensions
95x150x95x150
Lot Size Square Feet
12864
Lot Size Square Meters
1195
Middle Or Junior School
Indian Trails Middle-FC
Minimum Lease
No Minimum
Modification Timestamp
2025-07-10T13:09:10.108Z
New Construction YN
true
Occupant Type
Vacant
Other Equipment
Irrigation Equipment
Ownership
Fee Simple
Parcel Number
07-11-31-7004-00070-0150
Pool Private YN
false
Previous List Price
1392800
Price Change Timestamp
2025-06-20T19:13:04.000Z
Projected Completion Date
2026-04-30T00:00:00.000
Property Condition
Pre-Construction
Public Survey Range
31
Public Survey Section
07
RATIO Current Price By Calculated SqFt
465.35
Realtor Info
Floor Plan Available, See Attachments, Survey Available
Road Responsibility
Public Maintained Road
Road Surface Type
Paved
Roof
Tile
Room Count
3
Senior Community YN
false
Sewer
Public Sewer
Showing Requirements
Call Listing Agent, See Remarks
Status Change Timestamp
2025-06-20T19:08:56.000Z
Tax Annual Amount
5874
Tax Block
7
Tax Legal Description
PALM COAST SEC 4 BL 7 LT 15 OR 114 PG 478 OR 732 PG 1416 OR 1119/636 OR 2332/1172 OR 2360/1829
Tax Lot
15
Tax Year
2024
Total Acreage
1/4 to less than 1/2
Total Annual Fees
0.00
Total Monthly Fees
0.00
Township
11
Universal Property Id
US-12035-N-0711317004000700150-R-N
Unparsed Address
44 CLOVERDALE CT N
Utilities
BB/HS Internet Available, Cable Available, Public
Water Access
Canal - Saltwater, Gulf/Ocean, River
Water Access YN
1
Water Frontage Feet Canal Saltwater
245
Water Source
Public
Water View
Canal
Water View YN
1
Waterfront Feet Total
245
Waterfront YN
true
Zoning
SFR-1
Neighborhood Map
Popup

Property Photos
Listing Photo
Listing Photo
Listing Photo
Listing Photo
Listing Photo
Listing Photo
Listing Photo
Listing Photo
Listing Photo
Listing Photo
Listing Photo
Listing Photo
Listing Photo
Listing Photo
Listing Photo
Listing Photo
Listing Photo
Listing Photo
Listing Photo
Listing Photo

MLS #MFRO6319811 Listing courtesy of Premier Sotheby's Intl. Realty provided by Stellar MLS.

Similar Listings

$1,290,000
27 S Riverwalk Drive
Palm Coast
3BR/3BA
| Active
$1,299,000
7 Avenue De La Mer
Palm Coast
3BR/3BA
| Active
$1,375,000
8 Rue Renoir
Palm Coast
3BR/3BA
| Active
$1,395,000
6525 Old A1a N
Palm Coast
3BR/3BA
| Active



All listing information is deemed reliable but not guaranteed and should be independently verified through personal inspection by appropriate professionals. Listings displayed on this website may be subject to prior sale or removal from sale; availability of any listing should always be independent verified. Listing information is provided for consumer personal, non-commercial use, solely to identify potential properties for potential purchase; all other use is strictly prohibited and may violate relevant federal and state law. The source of the listing data is as follows: Stellar MLS (updated 3/20/26 1:45 AM) |

Listing Search



Translate Tool

Featured Listings
Kissimmee Real Estate
$986,000
11 BED
10 BATH
Discover OHANA OASIS, a newly curated 11-BEDROOM, 10-BATHROOM luxury retreat where elevated tropical design meets except... Read More
Orlando Real Estate
$999,500
4 BED
3 BATH
Stunning completely updated and renovated home behind the gates of Luxurious Vizcaya! Come see this meticulously maintai... Read More
Madeira Beach Real Estate
$825,000
2 BED
2 BATH
Excquisite Coastal Retreat on beautiful Madeira Beach! The elegant condo has been COMPLETELY UPDATED with the finest app... Read More
Port Charlotte Real Estate
$1,299,000
4 BED
3 BATH
One or more photo(s) has been virtually staged. Pre-Construction. To be built. Deep Water Access & Coastal Luxury: The U... Read More
St Petersburg Real Estate
$1,390,000
2 BED
2 BATH
Welcome to Residence 2008 at 400 Central, a 2-bedroom, 2.5-bath condominium offering elevated living in the heart of Dow... Read More
Port Charlotte Real Estate
$969,500
4 BED
3 BATH
One or more photo(s) has been virtually staged. Pre-Construction. To be built. THE TORTUGA MODEL A TRUE RETREAT | GULF C... Read More
Melbourne Real Estate
$849,440
3 BED
2 BATH
Step into the Stardom Home! This stunning one-story 3-bedroom, 2.5-bathroom, an open flex room, and 3-car garage masterp... Read More
Ruskin Real Estate
$1,175,000
3 BED
2 BATH
Welcome to resort style living in paradise!!This stunning two-story waterfront home features 3 bedrooms and 3 bathrooms.... Read More
Parrish Real Estate
$829,000
4 BED
3 BATH
Nestled within a private oasis overlooking a tranquil preserve, this stunning Arthur Rutenberg home offers the perfect b... Read More
Bradenton Real Estate
$1,100,000
5 BED
3 BATH
This home has been vacant for a short period of time since the owners passing. Just over 1 acre of land. On 225 Ft of ca... Read More
Contact Sandra Pardo

407-990-2746

Wendy Morris LLC

Licensed in the State of Florida
BK 3146762
16797 Broadwater Avenue
Winter Garden, Florida 34787

Your privacy is our utmost concern. We will never sell your personal information. Privacy Policy
©2026 sandrapardohomes.com - all rights reserved. | Site Map