407-990-2746
Menu

414 Hawk Talon Drive, Lithia, FL

NEXT
PREV
$1,300,000

($353/sqft)

List Status: Active
414 Hawk Talon Drive
Lithia, FL 33547


4 beds
3 baths
3680 living sqft
Top Features
  • Subdivision: Hawk Creek Reserve
  • Built in  2027
  • Single Family Residence
Description
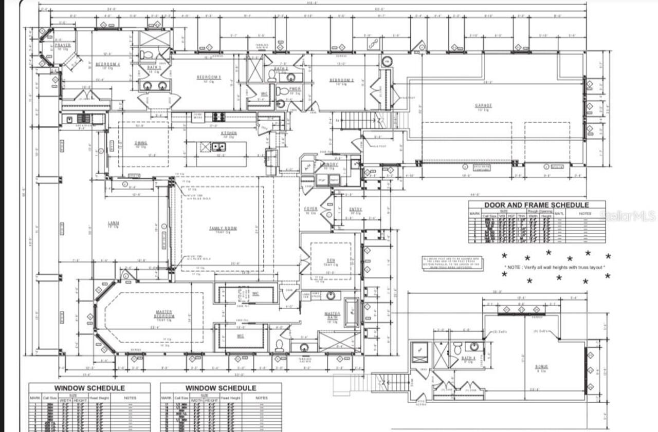
Pre-Construction. To be built. Pre-Construction Opportunity in Hawk Creek Reserve, one of Lithia’s most desirable gated communities. Situated on a generous .76-acre lot, this offering represents one of the final opportunities to build within the neighborhood. Offered at $1,300,000, pricing reflects both the lot and the proposed 3,680 sq ft custom residence featuring 4 bedrooms, 3.5 bathrooms, and a 3-car garage. The thoughtfully designed floor plan showcases expansive open living areas and refined architectural details throughout. Buyers may build the featured plan or collaborate with Jeffrey Homes to customize or design a fully custom home tailored to their vision. Final pricing subject to plan modifications and design selections.
Property Details
Additional Information
Additional Parcels YN
false
Alternate Key Folio Num
0939774330
Appliances
Built-In Oven, Convection Oven, Cooktop, Dishwasher, Disposal, Dryer, Electric Water Heater, Exhaust Fan, Freezer, Ice Maker, Kitchen Reverse Osmosis System, Microwave, Range, Range Hood, Refrigerator, Tankless Water Heater, Washer, Water Softener
Association Fee
113
Association Fee Frequency
Monthly
Association Fee Requirement
Required
Association YN
true
Attached Garage YN
true
Bathrooms Total Integer
5
Building Area Source
Builder
Building Area Total
5421
Building Area Total Srch SqM
503.63
Building Area Units
Square Feet
Calculated List Price By Calculated SqFt
353.26
Carport YN
false
Community Features
Street Lights
Construction Materials
Block
Cooling
Central Air
Country
US
Current Price
1300000.00
Direction Faces
South
Exterior Features
Outdoor Kitchen, Private Mailbox, Shade Shutter(s), Sidewalk, Sliding Doors
Fireplace YN
false
Flood Zone Code
X
Flooring
Carpet, Hardwood, Marble, Tile, Vinyl
Foundation Details
Block, Slab, Stem Wall
Furnished
Turnkey
Garage Spaces
3
Garage YN
true
Heating
Central
Interior Features
Ceiling Fans(s), Crown Molding, Open Floorplan, Primary Bedroom Main Floor, Smart Home, Solid Wood Cabinets, Stone Counters, Thermostat, Walk-In Closet(s), Window Treatments
Internet Address Display YN
true
Internet Automated Valuation Display YN
true
Internet Consumer Comment YN
true
Internet Entire Listing Display YN
true
Laundry Features
Electric Dryer Hookup, Inside, Laundry Room, Washer Hookup
Levels
Two
List AOR
Suncoast Tampa
Living Area Meters
341.88
Living Area Source
Builder
Living Area Units
Square Feet
Lot Size Acres
0.76
Lot Size Dimensions
153.8x216
Lot Size Square Feet
33221
Lot Size Square Meters
3086
Minimum Lease
No Minimum
Modification Timestamp
2026-02-25T20:47:10.362Z
Monthly HOA Amount
113.00
New Construction YN
true
Occupant Type
Vacant
Other Equipment
Irrigation Equipment
Ownership
Fee Simple
Parcel Number
U-30-30-22-9AS-000000-00015.0
Pets Allowed
Yes
Pool Private YN
false
Postal Code Plus 4
3022
Projected Completion Date
2026-11-30T00:00:00.000
Property Condition
Pre-Construction
Public Survey Range
22
Public Survey Section
30
RATIO Current Price By Calculated SqFt
353.26
Road Surface Type
Asphalt
Roof
Tile
Room Count
6
Senior Community YN
false
Sewer
Septic Tank
Showing Requirements
Call Listing Agent
Status Change Timestamp
2026-02-25T20:44:39.000Z
Tax Annual Amount
1861.77
Tax Block
15
Tax Book Number
112-276
Tax Legal Description
HAWK CREEK RESERVE LOT 15
Tax Lot
15
Tax Year
2024
Total Acreage
1/2 to less than 1
Total Annual Fees
1356.00
Total Monthly Fees
113.00
Township
30
Universal Property Id
US-12057-N-3030229000000000150-R-N
Unparsed Address
414 HAWK TALON DR
Utilities
Cable Available, Electricity Available, Natural Gas Available, Sewer Available, Underground Utilities, Water Available
Water Source
Well
Waterfront YN
false
Zoning
ASC-1
Neighborhood Map
Popup

Property Photos
Listing Photo
Listing Photo
Listing Photo
Listing Photo

MLS #MFRTB8480500 Listing courtesy of Spartan Group Realty Inc provided by Stellar MLS.

Similar Listings

$1,250,000
304 Hawk Talon Drive
Lithia
4BR/3BA
| Pending
$1,275,000
304 Hawk Talon Drive
Lithia
4BR/3BA
| Active



All listing information is deemed reliable but not guaranteed and should be independently verified through personal inspection by appropriate professionals. Listings displayed on this website may be subject to prior sale or removal from sale; availability of any listing should always be independent verified. Listing information is provided for consumer personal, non-commercial use, solely to identify potential properties for potential purchase; all other use is strictly prohibited and may violate relevant federal and state law. The source of the listing data is as follows: Stellar MLS (updated 2/25/26 5:47 PM) |

Listing Search



Translate Tool

Featured Listings
Matlacha Real Estate
$1,099,000
4 BED
3 BATH
Direct Gulf Access waterfront home with expansive bay views and protected canal-front docking offering luxury coastal li... Read More
Bradenton Real Estate
$800,000
4 BED
3 BATH
Set on 1.37 acres of complete privacy, this home gives you that rare feeling of breathing room the moment you turn up th... Read More
Bradenton Real Estate
$1,499,521
3 BED
3 BATH
New Construction - Ready Now! Built by Taylor Morrison, America's Most Trusted Homebuilder. Welcome to the Pallazio at 1... Read More
Clearwater Real Estate
$900,000
4 BED
2 BATH
Prepare to be impressed by this fully remodeled Clearwater gem, ideally located off Rollingwood and Landmark Drive. From... Read More
Merritt Island Real Estate
$925,000
3 BED
3 BATH
Welcome to luxury living in the heart of Merritt Island at The Plantation! This stunning 3-Bed/3-Bath home on an expansi... Read More
Lakewood Ranch Real Estate
$849,900
4 BED
2 BATH
Set within the prestigious gates of Lakewood Ranch Country Club, this exceptional Neal-built residence offers 2,865 squa... Read More
Gainesville Real Estate
$849,900
5 BED
3 BATH
This newly completed custom home (2026) is ready for immediate occupancy. Designed in a modern-transitional style, the r... Read More
Morriston Real Estate
$815,000
3 BED
2 BATH
This exceptional 10-acre property provides expansive space, total privacy, and a prime location just minutes from Ocala ... Read More
Tampa Real Estate
$839,000
4 BED
3 BATH
Oversized lot in Sunset Park ... 74.77' x 157.52' x 160' x 122.12', survey attached. Numerous new homes built in the are... Read More
Orlando Real Estate
$959,000
4 BED
3 BATH
Brand-new construction in Wadeview Park, one of Orlando’s most established neighborhoods, and zoned for Boone High Schoo... Read More
Contact Sandra Pardo

407-990-2746

Wendy Morris LLC

Licensed in the State of Florida
BK 3146762
16797 Broadwater Avenue
Winter Garden, Florida 34787

Your privacy is our utmost concern. We will never sell your personal information. Privacy Policy
©2026 sandrapardohomes.com - all rights reserved. | Site Map