407-990-2746
Menu

413 Haven Point Drive, Treasure Island, FL

NEXT
PREV
$685,000

($391/sqft)

List Status: Active
413 Haven Point Drive
Treasure Island, FL 33706


2 beds
2 baths
1750 living sqft
Top Features
  • Frontage: Bay/Harbor
  • View: Water
  • Subdivision: Village Of Paradise Island
  • Built in  1979
  • Townhouse
Description
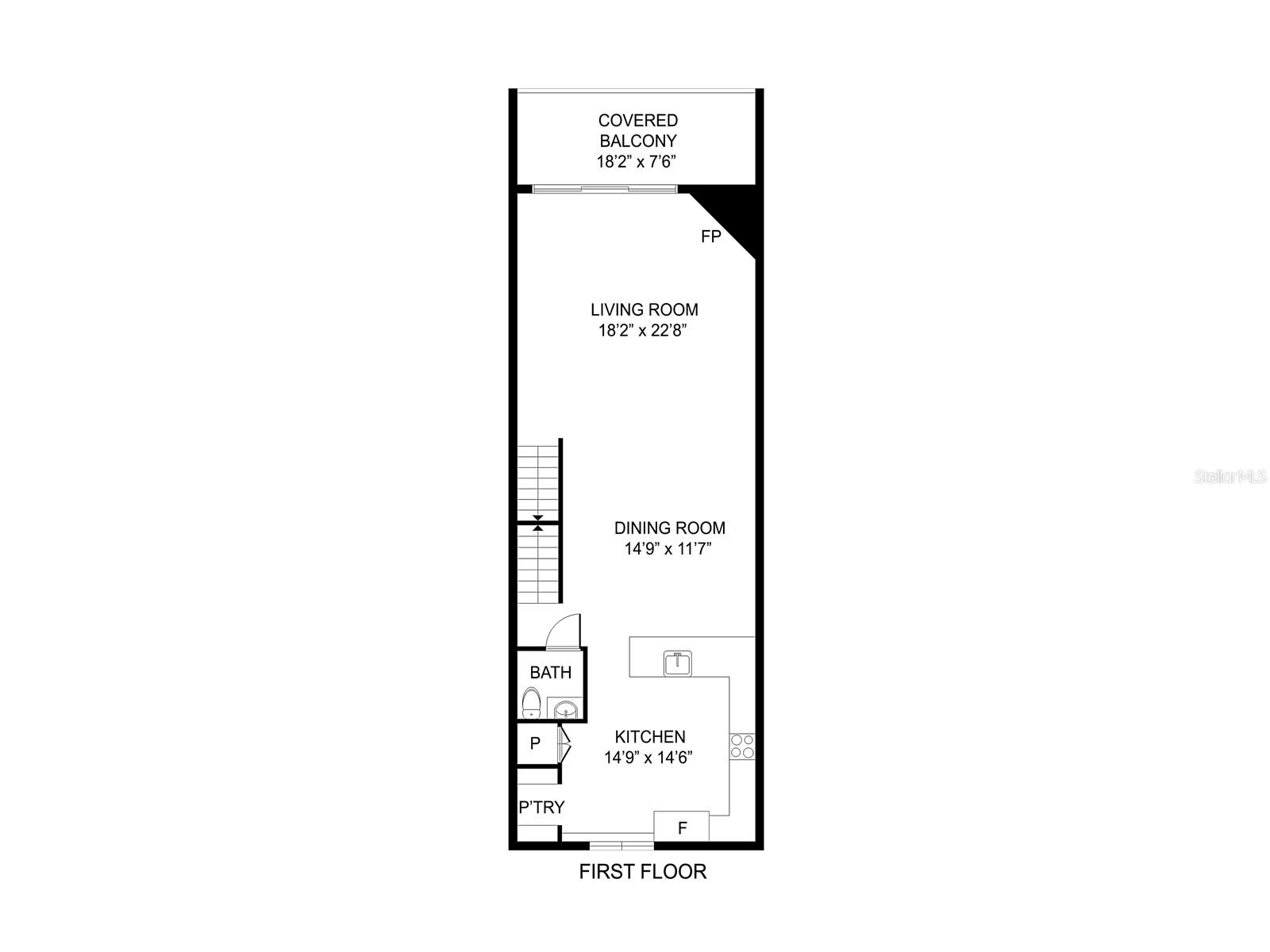
Experience true coastal living in this beautifully updated waterfront townhome-style condo in one of Treasure Island’s most desirable all-ages communities. Overlooking a full marina and wide Intracoastal Waterway, this residence offers stunning water views from nearly every level, creating an ideal retreat for buyers seeking a low-maintenance, year-round home with resort-style amenities. High ceilings, upgraded lighting, bamboo flooring, and a stone-faced fireplace complement the open-concept main living area, while impact-rated sliders lead to a private balcony perfect for watching dolphins, sea birds, and breathtaking Gulf Coast sunsets. The renovated kitchen is both stylish and functional, showcasing granite countertops, shaker cabinetry, stainless steel appliances, a walk-in pantry, built-in shelving, and charming banquette seating with under-cabinet accent lighting. Upstairs, French-style doors open to a spacious primary suite with vaulted cedar ceilings, custom closets, bamboo floors, and a spa-inspired bathroom featuring a jetted tub and walk-in shower. A second bedroom suite offers its own full bath, wall-to-wall closets, a cozy sitting nook, and designer shelving. The upper level also includes a dedicated laundry area, additional storage, and attic access for convenience. The lower level features an oversized one-car garage, a bonus room or den, and a walk-out patio that brings you just steps from tropical landscaping and shimmering marina water views. Recent upgrades—including NEW HVAC (2024), hot water heater (2024), and electrical panel (2023)—ensure worry-free living. The community’s pet-friendly policies, including allowance for large pets, make it ideal for animal lovers who want a true waterfront lifestyle. Residents of this vibrant marina community enjoy two pools with shaded cabanas, a fishing dock, and a private launch for kayaks and paddleboards. Boaters will appreciate access to 26 deep-water slips accommodating vessels up to 45’, leased exclusi
Property Details
Additional Information
Additional Lease Restrictions
Please verify all restrictions with association.
Additional Parcels YN
false
Additional Rooms
Bonus Room
Alternate Key Folio Num
243115941100024130
Appliances
Dishwasher, Disposal, Dryer, Electric Water Heater, Microwave, Range, Refrigerator, Washer
Approval Process
Please verify full approval process with the association.
Association Approval Required YN
1
Association Email
cjohnson@pbmfla.com
Association Fee Includes
Cable TV, Pool, Escrow Reserves Fund, Insurance, Maintenance Structure, Maintenance Grounds, Private Road, Recreational Facilities, Sewer, Trash, Water
Association YN
true
Attached Garage YN
true
Available For Lease YN
1
Bathrooms Total Integer
3
Building Area Source
Public Records
Building Area Total
1750
Building Area Total Srch SqM
162.58
Building Area Units
Square Feet
Calculated List Price By Calculated SqFt
391.43
Carport YN
false
Community Features
Association Recreation - Owned, Buyer Approval Required, Clubhouse, Deed Restrictions, Golf Carts OK, Irrigation-Reclaimed Water, Pool, Sidewalks
Condo Fees
1300
Condo Fees Term
Monthly
Construction Materials
Block, Cement Siding
Cooling
Central Air, Wall/Window Unit(s)
Country
US
Cumulative Days On Market
128
Current Price
685000.00
Direction Faces
North
Elementary School
Azalea Elementary-PN
Exterior Features
Balcony, Hurricane Shutters, Lighting, Rain Gutters, Sidewalk, Sliding Doors, Storage, Tennis Court(s)
Fireplace Features
Living Room, Stone, Wood Burning
Fireplace YN
true
Flood Zone Code
AE
Flood Zone Date
2021-08-24
Flood Zone Panel
12103C0194H
Flooring
Bamboo, Ceramic Tile
Foundation Details
Slab
Furnished
Unfurnished
Garage Dimensions
14x24
Garage Spaces
1
Garage YN
true
Heating
Central, Electric
High School
Boca Ciega High-PN
Interior Features
Built-in Features, Ceiling Fans(s), Eat-in Kitchen, High Ceilings, Living Room/Dining Room Combo, Open Floorplan, PrimaryBedroom Upstairs, Solid Wood Cabinets, Stone Counters, Thermostat, Tray Ceiling(s), Vaulted Ceiling(s), Walk-In Closet(s), Window Treatments
Internet Address Display YN
true
Internet Automated Valuation Display YN
true
Internet Consumer Comment YN
true
Internet Entire Listing Display YN
true
Laundry Features
Electric Dryer Hookup, Laundry Room, Upper Level, Washer Hookup
Lease Restrictions YN
1
Levels
Three Or More
List AOR
Suncoast Tampa
Living Area Meters
162.58
Living Area Source
Public Records
Living Area Units
Square Feet
Lot Features
City Limits, In County, Landscaped, Near Golf Course, Near Marina, Near Public Transit, Sidewalk, Paved, Private
Max Pet Weight
100
Middle Or Junior School
Azalea Middle-PN
Minimum Lease
6 Months
Modification Timestamp
2026-01-10T18:05:40.584Z
Monthly Condo Fee Amount
1300
New Construction YN
false
Number Of Pets
2
Occupant Type
Owner
Other Equipment
Irrigation Equipment
Other Structures
Cabana, Tennis Court(s)
Ownership
Condominium
Parcel Number
24-31-15-94110-002-4130
Patio And Porch Features
Covered, Front Porch, Rear Porch
Pet Size
Large (61-100 Lbs.)
Pets Allowed
Yes
Pool Private YN
false
Postal Code Plus 4
1206
Public Survey Range
15
Public Survey Section
24
RATIO Current Price By Calculated SqFt
391.43
Realtor Info
As-Is, Assoc approval required, Docs Available, No Sign
Road Surface Type
Asphalt, Paved
Roof
Shingle
Room Count
13
Senior Community YN
false
Sewer
Public Sewer
Showing Requirements
Appointment Only, See Remarks, ShowingTime
Status Change Timestamp
2025-11-28T19:29:54.000Z
Stories Total
3
Tax Annual Amount
8436.62
Tax Block
000
Tax Book Number
37-35
Tax Legal Description
VILLAGE OF PARADISE ISLAND PHASE I, CONDO BLDG 2, UNIT 413
Tax Lot
000
Tax Year
2024
Total Acreage
Non-Applicable
Total Annual Fees
15600.00
Total Monthly Fees
1300.00
Township
31
Universal Property Id
US-12103-N-243115941100024130-R-N
Unparsed Address
413 HAVEN POINT DR
Utilities
BB/HS Internet Available, Cable Connected, Electricity Connected, Public, Sewer Connected, Water Connected
Water Access
Bay/Harbor, Canal - Saltwater, Intracoastal Waterway
Water Access YN
1
Water Body Name
BOCA CIEGA BAY
Water Extras
Fishing Pier, Sailboat Water, Seawall - Concrete
Water Extras YN
1
Water Frontage Feet Bay Harbor
20
Water Source
Public
Water View
Bay/Harbor - Full
Water View YN
1
Waterfront Feet Total
20
Waterfront YN
true
Window Features
Shutters, Window Treatments
Neighborhood Map
Popup

Property Photos
Listing Photo
Listing Photo
Listing Photo
Listing Photo
Listing Photo
Listing Photo
Listing Photo
Listing Photo
Listing Photo
Listing Photo
Listing Photo
Listing Photo
Listing Photo
Listing Photo
Listing Photo
Listing Photo
Listing Photo
Listing Photo
Listing Photo
Listing Photo
Listing Photo
Listing Photo
Listing Photo
Listing Photo
Listing Photo
Listing Photo
Listing Photo
Listing Photo
Listing Photo
Listing Photo
Listing Photo
Listing Photo
Listing Photo
Listing Photo
Listing Photo
Listing Photo
Listing Photo
Listing Photo
Listing Photo
Listing Photo
Listing Photo
Listing Photo
Listing Photo
Listing Photo
Listing Photo
Listing Photo
Listing Photo
Listing Photo
Listing Photo
Listing Photo
Listing Photo
Listing Photo
Listing Photo
Listing Photo
Listing Photo
Listing Photo
Listing Photo
Listing Photo
Listing Photo
Listing Photo
Listing Photo
Listing Photo
Listing Photo
Listing Photo
Listing Photo
Listing Photo
Listing Photo
Listing Photo
Listing Photo
Listing Photo
Listing Photo
Listing Photo
Listing Photo
Listing Photo
Listing Photo
Listing Photo
Listing Photo
Listing Photo
Listing Photo
Listing Photo
Listing Photo
Listing Photo
Listing Photo
Listing Photo
Listing Photo
Listing Photo
Listing Photo
Listing Photo
Listing Photo
Listing Photo
Listing Photo
Listing Photo
Listing Photo
Listing Photo
Listing Photo
Listing Photo
Listing Photo
Listing Photo
Listing Photo
Listing Photo
Listing Photo
Listing Photo
Listing Photo
Listing Photo
Listing Photo
Listing Photo
Listing Photo
Listing Photo
Listing Photo
Listing Photo

MLS #MFRTB8451306 Listing courtesy of Keller Williams Gulf Beaches provided by Stellar MLS.

Similar Listings

$625,000
12592 N Capri Circle
Treasure Island
2BR/2BA
| Pending
$639,000
12140 Capri S Circle
Treasure Island
2BR/2BA
| Active
$649,000
1 Key Capri
Treasure Island
2BR/2BA
| Active
$649,000
12000 Gulf S Boulevard
Treasure Island
2BR/2BA
| Active



All listing information is deemed reliable but not guaranteed and should be independently verified through personal inspection by appropriate professionals. Listings displayed on this website may be subject to prior sale or removal from sale; availability of any listing should always be independent verified. Listing information is provided for consumer personal, non-commercial use, solely to identify potential properties for potential purchase; all other use is strictly prohibited and may violate relevant federal and state law. The source of the listing data is as follows: Stellar MLS (updated 4/9/26 1:48 AM) |

Listing Search



Translate Tool

Featured Listings
Bradenton Real Estate
$997,950
4 BED
4 BATH
Welcome to The Mango House, a rare opportunity in West Bradenton’s where lifestyle, flexibility, convenience and/or inco... Read More
Palm Coast Real Estate
$959,000
3 BED
3 BATH
TOP FLOOR END UNIT PENTHOUSE IN GORGEOUS CINNAMON BEACH! THIS IS THE LARGEST OF THE 3 FLOORPLANS WITH LARGE WINDOWS FLOO... Read More
Safety Harbor Real Estate
$999,000
4 BED
3 BATH
No Flood Zone. Just steps from downtown Safety Harbor, on the coveted cobblestone stretch of 5th Avenue, this charming c... Read More
Sarasota Real Estate
$1,049,999
1 BED
1 BATH
**This is the One! Coastal Contemporary Beachside Living!** Welcome to the stunning Penthouse-level, 4th-floor residence... Read More
Orlando Real Estate
$1,490,000
5 BED
4 BATH
Location Location Location ! only 4 years old Lake front house in gated community, come to build your owe boat deck! A v... Read More
Odessa Real Estate
$1,061,191
4 BED
4 BATH
Under Construction. What's Special: Tub in Primary Bath | Extended Lot | Backs to Open Space | Flex Room | Covered Patio... Read More
St Cloud Real Estate
$869,111
5 BED
3 BATH
Experience refined living in this beautifully designed two story home in St. Cloud, just minutes from Lake Nona. Located... Read More
Odessa Real Estate
$1,347,429
6 BED
5 BATH
Under Construction. What's Special: Water View | Dedicated Study | Gourmet Kitchen | Larger Lot. New Construction – Sept... Read More
Davenport Real Estate
$890,000
9 BED
5 BATH
Discover this stunning fully furnished two-story home in the highly desirable community of ChampionsGate, located at 888... Read More
Sarasota Real Estate
$889,990
4 BED
3 BATH
***Photos and additional room details coming soon*** Welcome to Country Place, one of Sarasota’s most desirable neighbor... Read More
Contact Sandra Pardo

407-990-2746

Wendy Morris LLC

Licensed in the State of Florida
BK 3146762
16797 Broadwater Avenue
Winter Garden, Florida 34787

Your privacy is our utmost concern. We will never sell your personal information. Privacy Policy
©2026 sandrapardohomes.com - all rights reserved. | Site Map