407-990-2746
Menu

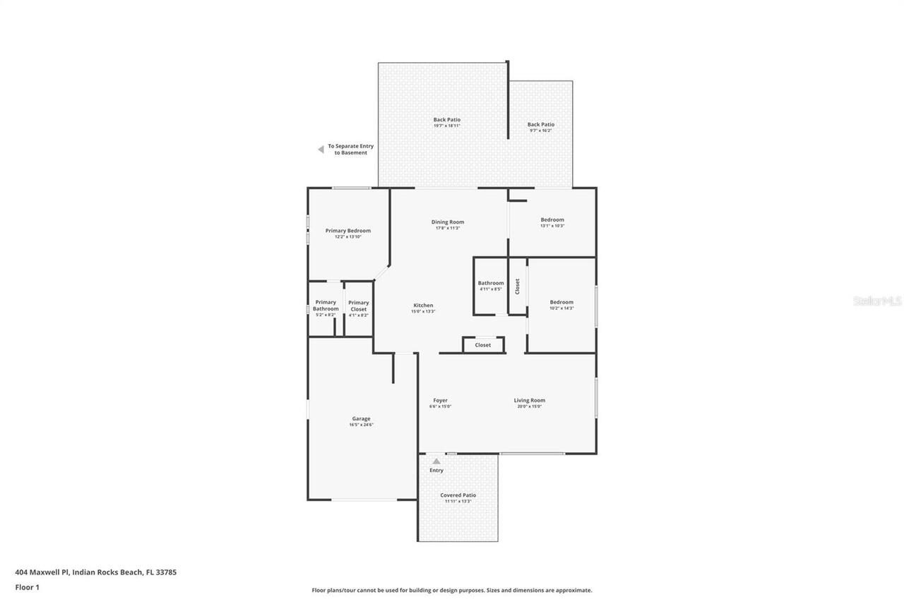
404 Maxwell Place, Indian Rocks Beach, FL

NEXT
PREV
$810,000

($564/sqft)

List Status: Pending
404 Maxwell Place
Indian Rocks Beach, FL 33785


3 beds
2 baths
1437 living sqft
Top Features
  • Subdivision: Indian Beach Re-revised 21st Add
  • Built in  1977
  • Single Family Residence
Description
Under contract-accepting backup offers. Own a premier piece of Indian Rocks Beach real estate with this fully furnished, single-family pool home that perfectly blends coastal charm with modern upgrades. Whether looking for your private retreat or a high-performing investment property, this home is Strategically located in one of Pinellas County’s most desirable short-term rental markets with no minimum lease restrictions. This property boasts an 80% occupancy history and over $80,000 in gross income for 2025. For those prioritizing safety and home resiliency, this residence is elevated on a stem wall foundation and remained dry during the 2024 storms, offering rare peace of mind in a waterfront community. The move-in-ready interior features a chef-inspired kitchen with granite countertops, stainless steel appliances, and sleek cabinetry, flowing into a versatile flex space currently utilized as a third bedroom. The private backyard oasis is a resort-style showstopper, centered around an oversized solar-heated gunite pool with a new pump and fresh resurfacing, surrounded by an expansive lounging deck and a covered grilling area perfect for alfresco dining. Major system upgrades including the new roof, HVAC, and water heater (all within 5 years) ensures a low-maintenance lifestyle and peace of mind. A unique private entrance leads to an unfinished basement with over 1,000 square feet of additional storage. Whether you are exploring the golf-cart-friendly streets, walking to the white-sand beaches of the Gulf, or enjoying all that Tampa Bay has to offer. Only 30-40 minutes to Tampa International Airport, Downtown St. Petersburg, multiple sports and music venues and a multitude of events to enjoy year round, this turnkey coastal retreat offers the perfect balance of luxury living and savvy investment potential in one of Florida’s most sought-after coastal communities.
Property Details
Additional Information
Additional Parcels YN
false
Alternate Key Folio Num
063015424080000110
Appliances
Dishwasher, Dryer, Electric Water Heater, Microwave, Range, Refrigerator, Washer, Wine Refrigerator
Association YN
false
Attached Garage YN
true
Available For Lease YN
1
Bathrooms Total Integer
2
Building Area Source
Public Records
Building Area Total
2936
Building Area Total Srch SqM
272.76
Building Area Units
Square Feet
Calculated List Price By Calculated SqFt
563.67
Carport YN
false
Community Features
Street Lights
Construction Materials
Block, Stucco
Contract Status
Financing, Inspections
Cooling
Central Air
Country
US
Cumulative Days On Market
45
Current Price
810000.00
Direction Faces
East
Elementary School
Anona Elementary-PN
Expected Closing Date
2026-04-27T00:00:00.000
Exterior Features
Lighting, Outdoor Shower, Rain Gutters, Sliding Doors, Storage
Fireplace YN
false
Flood Zone Code
AE
Flood Zone Date
2021-08-24
Flood Zone Panel
12103C0112H
Flooring
Carpet, Ceramic Tile
Foundation Details
Slab
Furnished
Furnished
Garage Dimensions
16x24
Garage Spaces
1
Garage YN
true
Green Energy Efficient
Pool
Green Energy Generation
Solar
Heating
Central, Electric
High School
Largo High-PN
Interior Features
Ceiling Fans(s), Crown Molding, Dry Bar, Eat-in Kitchen, High Ceilings, Open Floorplan, Primary Bedroom Main Floor, Solid Wood Cabinets, Split Bedroom, Stone Counters, Thermostat, Walk-In Closet(s)
Internet Address Display YN
true
Internet Automated Valuation Display YN
true
Internet Consumer Comment YN
true
Internet Entire Listing Display YN
true
Laundry Features
Electric Dryer Hookup, In Garage, Washer Hookup
Levels
Two
List AOR
Suncoast Tampa
Living Area Meters
133.50
Living Area Source
Public Records
Living Area Units
Square Feet
Lot Features
City Limits, In County, Landscaped, Near Marina, Near Public Transit, Paved
Lot Size Acres
0.16
Lot Size Dimensions
59x123
Lot Size Square Feet
7170
Lot Size Square Meters
666
Middle Or Junior School
Seminole Middle-PN
Minimum Lease
No Minimum
Modification Timestamp
2026-03-22T23:30:09.307Z
New Construction YN
false
Occupant Type
Tenant
Other Equipment
Irrigation Equipment
Other Structures
Storage
Ownership
Fee Simple
Parcel Number
06-30-15-42408-000-0110
Patio And Porch Features
Covered, Deck, Patio, Rear Porch
Pets Allowed
Yes
Pool Private YN
true
Postal Code Plus 4
3123
Public Survey Range
15
Public Survey Section
06
Purchase Contract Date
2026-03-22
RATIO Current Price By Calculated SqFt
563.67
Realtor Info
As-Is, No Sign, See Attachments
Road Surface Type
Asphalt, Paved
Roof
Shingle
Room Count
8
Senior Community YN
false
Sewer
Public Sewer
Showing Requirements
Supra Lock Box, Appointment Only, ShowingTime
Spa YN
false
Status Change Timestamp
2026-03-22T23:29:11.000Z
Stories Total
2
Tax Annual Amount
9759.28
Tax Block
000
Tax Book Number
37-58
Tax Legal Description
INDIAN BEACH RE-REVISED 21ST ADD LOT 11
Tax Lot
11
Tax Year
2024
Total Acreage
0 to less than 1/4
Total Annual Fees
0.00
Total Monthly Fees
0.00
Township
30
Universal Property Id
US-12103-N-063015424080000110-R-N
Unparsed Address
404 MAXWELL PL
Utilities
BB/HS Internet Available, Cable Available, Electricity Connected, Public, Sewer Connected, Water Connected
Water Source
Public
Waterfront YN
false
Neighborhood Map
Popup

Property Photos
Listing Photo
Listing Photo
Listing Photo
Listing Photo
Listing Photo
Listing Photo
Listing Photo
Listing Photo
Listing Photo
Listing Photo
Listing Photo
Listing Photo
Listing Photo
Listing Photo
Listing Photo
Listing Photo
Listing Photo
Listing Photo
Listing Photo
Listing Photo
Listing Photo
Listing Photo
Listing Photo
Listing Photo
Listing Photo
Listing Photo
Listing Photo
Listing Photo
Listing Photo
Listing Photo
Listing Photo
Listing Photo
Listing Photo
Listing Photo
Listing Photo
Listing Photo
Listing Photo
Listing Photo
Listing Photo
Listing Photo
Listing Photo
Listing Photo
Listing Photo
Listing Photo
Listing Photo
Listing Photo
Listing Photo
Listing Photo
Listing Photo
Listing Photo
Listing Photo
Listing Photo
Listing Photo
Listing Photo
Listing Photo
Listing Photo
Listing Photo
Listing Photo
Listing Photo
Listing Photo
Listing Photo
Listing Photo
Listing Photo
Listing Photo
Listing Photo
Listing Photo
Listing Photo
Listing Photo
Listing Photo
Listing Photo
Listing Photo
Listing Photo
Listing Photo
Listing Photo
Listing Photo
Listing Photo
Listing Photo
Listing Photo
Listing Photo
Listing Photo
Listing Photo
Listing Photo
Listing Photo
Listing Photo
Listing Photo
Listing Photo
Listing Photo
Listing Photo
Listing Photo
Listing Photo
Listing Photo
Listing Photo
Listing Photo
Listing Photo
Listing Photo
Listing Photo
Listing Photo
Listing Photo
Listing Photo
Listing Photo
Listing Photo
Listing Photo
Listing Photo
Listing Photo
Listing Photo
Listing Photo
Listing Photo
Listing Photo
Listing Photo
Listing Photo
Listing Photo
Listing Photo
Listing Photo
Listing Photo
Listing Photo
Listing Photo
Listing Photo
Listing Photo
Listing Photo
Listing Photo
Listing Photo
Listing Photo
Listing Photo
Listing Photo
Listing Photo
Listing Photo
Listing Photo
Listing Photo
Listing Photo
Listing Photo
Listing Photo
Listing Photo
Listing Photo
Listing Photo

MLS #MFRTB8473124 Listing courtesy of Keller Williams Realty Portfolio Collection provided by Stellar MLS.

Similar Listings

$780,000
202 18th Avenue
Indian Rocks Beach
3BR/2BA
| Pending
$780,000
1811 2nd Street
Indian Rocks Beach
3BR/2BA
| Active
$798,989
1210 Bay Palm Boulevard
Indian Rocks Beach
3BR/2BA
| Active
$799,000
2504 Gulf Boulevard
Indian Rocks Beach
3BR/2BA
| Pending



All listing information is deemed reliable but not guaranteed and should be independently verified through personal inspection by appropriate professionals. Listings displayed on this website may be subject to prior sale or removal from sale; availability of any listing should always be independent verified. Listing information is provided for consumer personal, non-commercial use, solely to identify potential properties for potential purchase; all other use is strictly prohibited and may violate relevant federal and state law. The source of the listing data is as follows: Stellar MLS (updated 3/22/26 9:21 PM) |

Listing Search



Translate Tool

Featured Listings
Parrish Real Estate
$1,069,000
4 BED
3 BATH
One or more photo(s) has been virtually staged. Welcome to a refined Florida lifestyle where elegant design, privacy, an... Read More
Lithia Real Estate
$1,450,000
5 BED
4 BATH
This is the opportunity you have been waiting for. Lovely living as you enter the gates to private luxury and easy acces... Read More
New Smyrna Beach Real Estate
$1,049,900
3 BED
2 BATH
Approximately 150 feet from the walkover to the car-free beach, this oceanview 3 bedroom, 2.5 bath home has been thought... Read More
Ocala Real Estate
$899,000
4 BED
3 BATH
Beautiful 4/3/3 pool home on 5 acres in SE Ocala! GREAT LOCATION! Peaceful neighborhood in a private setting! Fully fenc... Read More
Lakeland Real Estate
$825,000
4 BED
3 BATH
One or more photo(s) has been virtually staged. Experience the perfect blend of elegance and tranquility in this exquisi... Read More
New Smyrna Beach Real Estate
$959,000
3 BED
2 BATH
Enjoy lighthouse views and resort-style living on the Intracoastal from the largest floorplan in Inlet Marina Villas. Th... Read More
Sarasota Real Estate
$849,000
2 BED
2 BATH
Under contract-accepting backup offers. Imagine starting every morning with sunlight pouring across Sarasota Bay, coffee... Read More
Wesley Chapel Real Estate
$869,900
5 BED
4 BATH
Luxury Country Retreat Minutes from Wesley Chapel’s Best Shopping and Dining!!! Experience the perfect blend of serene c... Read More
Bradenton Beach Real Estate
$1,050,000
2 BED
2 BATH
Welcome to this slice of paradise in Bradenton Beach, this FULLY TURNKEY 3-bedroom, 2.5-bath beachfront townhouse perfec... Read More
The Villages Real Estate
$1,000,000
4 BED
2 BATH
~NO BOND~ ~POOL HOME~ ~GOLF COURSE VIEW~ ~2017 ROOF~ ~2018 HOT WATER HEATER~ ~2013 HVAC~ ~CERAMIC TILE THROUGHOUT~ ~GOLF... Read More
Contact Sandra Pardo

407-990-2746

Wendy Morris LLC

Licensed in the State of Florida
BK 3146762
16797 Broadwater Avenue
Winter Garden, Florida 34787

Your privacy is our utmost concern. We will never sell your personal information. Privacy Policy
©2026 sandrapardohomes.com - all rights reserved. | Site Map