407-990-2746
Menu

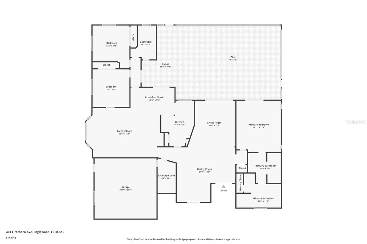
401 Firethorn Avenue, Englewood, FL

NEXT
PREV
$375,000

($153/sqft)

List Status: Active
401 Firethorn Avenue
Englewood, FL 34223


3 beds
2 baths
2443 living sqft
Top Features
  • Subdivision: Englewood Isles Sub
  • Built in  1986
  • Single Family Residence
Description
Welcome to 401 Firethorn Ave — a spacious Florida pool home nestled in one of Englewood’s most desirable communities! This expansive 3-bedroom, 2-bathroom residence with an attached 2-car garage offers over 2,400 square feet of potential living space, perfect for those dreaming of a custom retreat in sunny Southwest Florida. Step inside and imagine the possibilities in a floor plan that invites creativity and personalization. The generous layout features ample room for living, dining, and entertaining — with plenty of natural light and flow throughout the home. Enjoy morning coffee in the heart of the home or gather with family and friends in the open spaces that connect indoor comfort with outdoor fun. Outside, your private pool area awaits — the ideal backdrop for year-round Florida living. Whether you’re lounging poolside, hosting weekend barbecues, or simply savoring tranquil evenings under the stars, this outdoor oasis offers endless opportunities to create your own slice of paradise. Situated in the well-established Englewood Isles community, this home provides easy access to scenic Gulf Coast beaches, vibrant local dining, shopping, and recreational amenities. Take advantage of nearby paved bike trails that lead into town, explore historic Dearborn Street’s weekly markets and eclectic boutiques, or spend a day soaking up the sun at Manasota Key Beach — all just minutes away. Englewood’s relaxed coastal lifestyle offers a perfect blend of small-town charm and Southwest Florida adventure. From boating and fishing to golf, tennis, and nature trails, there’s something for everyone to enjoy year-round. Don’t miss your chance to make this extraordinary property your own — bring your vision and start living the Florida dream!
Property Details
Additional Information
Additional Lease Restrictions
Contact Englewood Isles Property Owners Association for any additional Leasing Restrictions.
Additional Parcels YN
false
Additional Rooms
Family Room
Alternate Key Folio Num
0486120034
Appliances
Dishwasher, Microwave, Range, Refrigerator
Association Email
eipoa456@gmail.com
Association Fee
125
Association Fee Frequency
Annually
Association Fee Requirement
Required
Association URL
https://eipoa.org/
Association YN
true
Attached Garage YN
true
Available For Lease YN
1
Bathrooms Total Integer
2
Building Area Source
Public Records
Building Area Total
3474
Building Area Total Srch SqM
322.75
Building Area Units
Square Feet
Calculated List Price By Calculated SqFt
153.50
Carport YN
false
Community Features
Deed Restrictions
Construction Materials
Block, Stucco
Cooling
Central Air
Country
US
Cumulative Days On Market
48
Current Price
375000.00
Direction Faces
Northwest
Elementary School
Englewood Elementary
Exterior Features
French Doors, Private Mailbox, Rain Barrel/Cistern(s)
Fireplace YN
false
Flood Zone Code
X
Flood Zone Date
2024-03-27
Flood Zone Panel
12115C0432G
Flooring
Carpet, Laminate, Tile
Foundation Details
Slab
Furnished
Unfurnished
Garage Spaces
2
Garage YN
true
Heating
Central, Electric
High School
Venice Senior High
Interior Features
Ceiling Fans(s), Dry Bar, Living Room/Dining Room Combo, Solid Surface Counters, Solid Wood Cabinets, Split Bedroom, Vaulted Ceiling(s)
Internet Address Display YN
true
Internet Automated Valuation Display YN
true
Internet Consumer Comment YN
true
Internet Entire Listing Display YN
true
Laundry Features
Inside, Laundry Room
Lease Restrictions YN
1
Levels
One
List AOR
Port Charlotte
Living Area Meters
226.96
Living Area Source
Public Records
Living Area Units
Square Feet
Lot Features
Corner Lot
Lot Size Acres
0.27
Lot Size Square Feet
11761
Lot Size Square Meters
1093
Middle Or Junior School
SKY Academy Englewood
Minimum Lease
1 Month
Modification Timestamp
2026-03-11T21:04:11.403Z
Monthly HOA Amount
10.42
New Construction YN
false
Num Times per Year
2
Occupant Type
Vacant
Ownership
Fee Simple
Parcel Number
0486120034
Patio And Porch Features
Porch, Rear Porch
Pets Allowed
Yes
Pool Private YN
true
Postal Code Plus 4
1950
Public Survey Range
19E
Public Survey Section
14
RATIO Current Price By Calculated SqFt
153.50
Realtor Info
As-Is
Road Surface Type
Asphalt, Paved
Roof
Tile
Room Count
11
SW Subdiv Community Name
Englewood Isles
Senior Community YN
false
Sewer
Public Sewer
Showing Requirements
Combination Lock Box, ShowingTime
Status Change Timestamp
2026-01-22T19:21:16.000Z
Stories Total
1
Tax Annual Amount
4690
Tax Book Number
25-26
Tax Legal Description
LOT 98 ENGLEWOOD ISLES UNIT 5
Tax Lot
98
Tax Year
2025
Total Acreage
1/4 to less than 1/2
Total Annual Fees
125.00
Total Monthly Fees
10.42
Township
40S
Universal Property Id
US-12115-N-0486120034-R-N
Unparsed Address
401 FIRETHORN AVE
Utilities
BB/HS Internet Available, Electricity Connected, Sewer Connected, Water Connected
Vegetation
Trees/Landscaped
Water Source
Public
Waterfront YN
false
Zoning
RSF2
Neighborhood Map
Popup

Property Photos
Listing Photo
Listing Photo
Listing Photo
Listing Photo
Listing Photo
Listing Photo
Listing Photo
Listing Photo
Listing Photo
Listing Photo
Listing Photo
Listing Photo
Listing Photo
Listing Photo
Listing Photo
Listing Photo
Listing Photo
Listing Photo
Listing Photo
Listing Photo
Listing Photo
Listing Photo
Listing Photo
Listing Photo
Listing Photo
Listing Photo
Listing Photo
Listing Photo
Listing Photo
Listing Photo
Listing Photo
Listing Photo
Listing Photo
Listing Photo
Listing Photo
Listing Photo
Listing Photo
Listing Photo
Listing Photo
Listing Photo
Listing Photo
Listing Photo
Listing Photo
Listing Photo
Listing Photo
Listing Photo
Listing Photo
Listing Photo
Listing Photo
Listing Photo
Listing Photo
Listing Photo
Listing Photo
Listing Photo
Listing Photo
Listing Photo
Listing Photo
Listing Photo
Listing Photo
Listing Photo
Listing Photo
Listing Photo
Listing Photo
Listing Photo

MLS #MFRC7520702 Listing courtesy of Grant Team Real Estate, Llc provided by Stellar MLS.

Similar Listings

$338,000
13488 Abercrombie Drive
Englewood
3BR/2BA
| Active
$339,000
810 Harvard Street
Englewood
3BR/2BA
| Active
$339,000
534 Wekiva River Court
Englewood
3BR/2BA
| Active
$339,900
10601 Lemon Creek Loop
Englewood
3BR/2BA
| Active



All listing information is deemed reliable but not guaranteed and should be independently verified through personal inspection by appropriate professionals. Listings displayed on this website may be subject to prior sale or removal from sale; availability of any listing should always be independent verified. Listing information is provided for consumer personal, non-commercial use, solely to identify potential properties for potential purchase; all other use is strictly prohibited and may violate relevant federal and state law. The source of the listing data is as follows: Stellar MLS (updated 3/23/26 10:07 AM) |

Listing Search



Translate Tool

Featured Listings
Ormond Beach Real Estate
$1,445,000
3 BED
3 BATH
This 2023-built estate home in the gated community of Plantation Bay offers over 3,100 sq ft of refined living with 3 be... Read More
Osteen Real Estate
$850,000
4 BED
3 BATH
Set on over 4 fully usable acres in Osteen, this custom-built estate offers a rare combination of privacy, space, and lo... Read More
Madeira Beach Real Estate
$950,000
3 BED
3 BATH
Welcome to your waterfront retreat in Madeira Beach - a beautifully renovated three-bedroom, three-bathroom, two-story h... Read More
St Petersburg Real Estate
$899,900
3 BED
2 BATH
Welcome to your waterfront dream home in St. Pete - a beautifully renovated three-bedroom, two-bathroom property offerin... Read More
Bradenton Real Estate
$990,000
3 BED
2 BATH
Colossal sized lot with expansive Bradenton Country Club Golf Course views! At 331.7' deep with 100' feet on the golf co... Read More
Montverde Real Estate
$939,900
4 BED
3 BATH
Experience luxury living in the Milan floor plan by Dream Finders Homes, offering stunning, unobstructed golf course vie... Read More
Sarasota Real Estate
$1,240,000
2 BED
2 BATH
Welcome to your beachfront oasis! NEXT AVAILABLE TO SHOW MARCH 28 between 10:00 and 2:00. VIDEO WALK THROUGH AVAILABLE U... Read More
Longboat Key Real Estate
$895,000
2 BED
2 BATH
Looking for a beachfront home on Longboat Key with direct Gulf access? This 2-bedroom, second floor condo offers the isl... Read More
Osprey Real Estate
$835,000
3 BED
3 BATH
This beautifully updated 3 bedroom, 3 bath residence with a den offers exceptional space, style, and privacy in Meridian... Read More
Sarasota Real Estate
$849,654
5 BED
3 BATH
Under Construction. What's Special: Corner Lot | Cul-de-Sac Lot | Game Room | New Floor Plan. New Construction - July Co... Read More
Contact Sandra Pardo

407-990-2746

Wendy Morris LLC

Licensed in the State of Florida
BK 3146762
16797 Broadwater Avenue
Winter Garden, Florida 34787

Your privacy is our utmost concern. We will never sell your personal information. Privacy Policy
©2026 sandrapardohomes.com - all rights reserved. | Site Map