407-990-2746
Menu

395 S Atlantic Avenue Unit: Unit: 501, Ormond Beach, FL

NEXT
PREV
$479,000

($230/sqft)

List Status: Active
395 S Atlantic Avenue
Ormond Beach, FL 32176


3 beds
2 baths
2082 living sqft
Top Features
  • Frontage: Beach Front, Gulf/Ocean
  • View: Water
  • Subdivision: Tidesfall Condo
  • Built in  1982
  • Condominium
Description
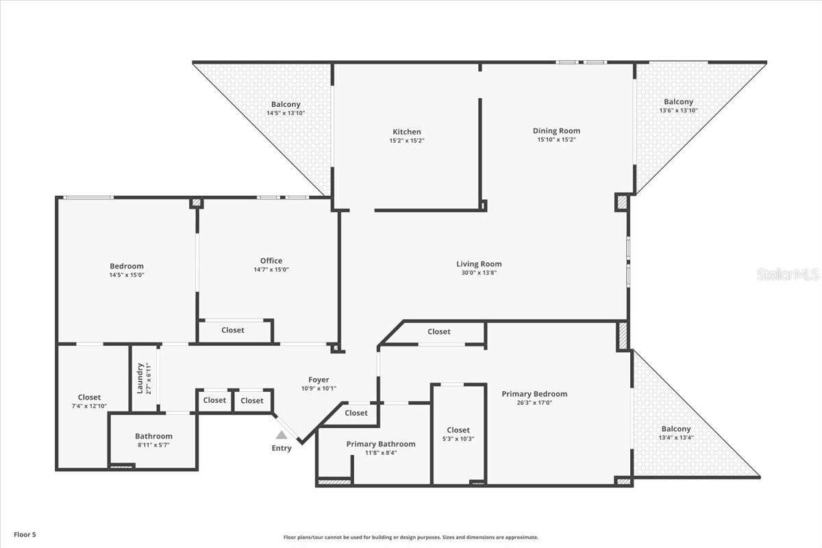
PRICE IMPROVEMENT – DIRECT ATLANTIC OCEAN ACCESS! 3BR/2BA luxury retreat at the coveted Tidesfall Condominium. With recent SIRS and Milestone reports in place, you can enjoy worry-free ownership from day one. Spanning nearly 2100 of elegant under-air living space, this residence combines rare size with the very best of coastal living. Enjoy breathtaking northeastern exposure with year-round sunrises, moonrises, and even sunsets from the comfort of your private balconies, pool deck, or oceanfront gazebos. The expansive three balconies showcasing both ocean and city views with stunning sunset views from your city view patio and sunrise views from living room and primary balconies, creating the perfect spot to relax or entertain. Inside, the open-concept design flows seamlessly from the open and bright kitchen to the dining and great room where floor-to-ceiling windows showcase endless ocean views. The split floor plan features two spacious master suites, each with walk in closets, offering ultimate privacy for you and your guests, and one additional bedroom currently used as an office. this room has double doors and could be used as a family room as well. The unique Layout of this unit makes it highly sought after. Additional highlights include impact-rated windows and doors, in-unit laundry, dedicated under-building parking, storage cubbies, and a bike/storage cage. Tidesfall’s resort-style amenities elevate your lifestyle with a sparkling pool, oceanfront gazebos, a club room, and more. HOA fees cover staff salaries, cable, internet, water, trash, reserves, insurance, and amenities—making your oceanfront living as effortless as it is luxurious. This is more than a condo—it’s a lifestyle upgrade. Experience the beauty, tranquility, and exclusivity of Tidesfall, one of the most sought-after oceanfront communities. This unit is being offered fully furnished
Property Details
Additional Information
Additional Lease Restrictions
minimum of 6 months
Additional Parcels YN
false
Additional Rooms
Inside Utility
Additional Water Information
Ocean front Condominium with community pool and spa
Alternate Key Folio Num
4541306
Appliances
Built-In Oven, Convection Oven, Cooktop, Dishwasher, Disposal, Dryer, Electric Water Heater, Exhaust Fan, Freezer, Ice Maker, Microwave, Range, Range Hood, Refrigerator, Washer
Approval Process
application required
Association Email
tidesfall395@gmail.com
Association Fee Frequency
Monthly
Association Fee Includes
Pool, Maintenance Structure, Maintenance Grounds, Maintenance, Management
Association Fee Requirement
Required
Association URL
https://floridapropertymanagement.com/contact-us/
Association YN
true
Attached Garage YN
true
Available For Lease YN
1
Bathrooms Total Integer
2
Building Area Source
Public Records
Building Area Total
2082
Building Area Total Srch SqM
193.42
Building Area Units
Square Feet
Building Elevator YN
1
Calculated List Price By Calculated SqFt
230.07
Carport YN
false
Community Features
Clubhouse, Community Mailbox, Pool
Condo Fees
1382
Condo Fees Term
Monthly
Condo Land Included YN
1
Construction Materials
Block, Concrete
Cooling
Central Air
Country
US
Cumulative Days On Market
129
Current Price
479000.00
Direction Faces
West
Disaster Mitigation
Above Flood Plain, Fire/Smoke Detection Integration, Hurricane Shutters/Windows
Exterior Features
Balcony, Garden, Outdoor Grill, Outdoor Shower
Fireplace YN
false
Flood Zone Code
X
Flood Zone Date
2017-09-29
Flood Zone Panel
12127C0216K
Floor Number
5
Flooring
Carpet, Luxury Vinyl
Foundation Details
Slab
Furnished
Turnkey
Garage Spaces
1
Garage YN
true
Green Energy Efficient
HVAC, Thermostat
Heating
Central, Electric, Heat Pump
Homestead YN
1
Interior Features
Built-in Features, Ceiling Fans(s), Crown Molding, Eat-in Kitchen, High Ceilings, Living Room/Dining Room Combo, Open Floorplan, Solid Wood Cabinets, Split Bedroom, Stone Counters, Thermostat, Walk-In Closet(s)
Internet Address Display YN
true
Internet Automated Valuation Display YN
false
Internet Consumer Comment YN
false
Internet Entire Listing Display YN
true
Laundry Features
Laundry Closet
Lease Restrictions YN
1
Levels
One
List AOR
Flagler
Living Area Meters
193.42
Living Area Source
Public Records
Living Area Units
Square Feet
Lot Size Acres
1.76
Lot Size Square Feet
76607
Lot Size Square Meters
7117
Management
On Site Property Manager
Max Pet Weight
100
Minimum Lease
6 Months
Modification Timestamp
2026-03-29T18:06:10.727Z
Monthly Condo Fee Amount
1382
New Construction YN
false
Occupant Type
Vacant
Other Structures
Gazebo
Ownership
Condominium
Parcel Number
4223-23-00-5010
Patio And Porch Features
Covered, Patio, Side Porch
Pet Restrictions
service animals only
Pets Allowed
Yes
Pool Private YN
false
Postal Code Plus 4
8157
Previous List Price
529000
Price Change Timestamp
2026-01-21T19:59:28.000Z
Property Description
Corner Unit, Mid Rise
Public Survey Range
32
Public Survey Section
23
RATIO Current Price By Calculated SqFt
230.07
Realtor Info
No Sign, Owner Motivated
Road Responsibility
Public Maintained Road
Road Surface Type
Asphalt
Roof
Concrete
Room Count
8
Security Features
Fire Alarm, Secured Garage/Parking
Senior Community YN
false
Sewer
Public Sewer
Showing Requirements
Combination Lock Box, See Remarks, ShowingTime
Spa YN
true
Status Change Timestamp
2025-11-20T16:28:23.000Z
Stories Total
7
Tax Annual Amount
2229
Tax Block
00
Tax Book Number
2389-490
Tax Legal Description
UNIT 501 TIDESFALL CONDO PER OR 2389 PGS 0490-0527 PER OR 6155 PGS 3701-3702 PER OR 6295 PG 2178 PER OR 6524 PG 0474 PER OR 6607 PG 2550 PER OR 6607 PG 2552 PER OR 7947 PGS 3983 & 3993
Tax Lot
1040
Tax Year
2024
Total Acreage
1 to less than 2
Total Annual Fees
16584.00
Total Monthly Fees
1382.00
Township
14
Universal Property Id
US-12127-N-422323005010-S-501
Unparsed Address
395 S ATLANTIC AVE #501
Utilities
BB/HS Internet Available, Cable Available, Electricity Connected, Phone Available, Private, Sewer Connected, Water Connected
Water Access
Beach
Water Access YN
1
Water Body Name
ATLANTIC OCEAN
Water Frontage Feet Gulf Ocean
1000
Water Source
Public
Water View
Beach, Gulf/Ocean - Partial
Water View YN
1
Waterfront Feet Total
2000
Waterfront YN
true
Window Features
Double Pane Windows, ENERGY STAR Qualified Windows, Low-Emissivity Windows
Zoning
0400
Neighborhood Map
Popup

Property Photos
Listing Photo
Listing Photo
Listing Photo
Listing Photo
Listing Photo
Listing Photo
Listing Photo
Listing Photo
Listing Photo
Listing Photo
Listing Photo
Listing Photo
Listing Photo
Listing Photo
Listing Photo
Listing Photo
Listing Photo
Listing Photo
Listing Photo
Listing Photo
Listing Photo
Listing Photo
Listing Photo
Listing Photo
Listing Photo
Listing Photo
Listing Photo
Listing Photo
Listing Photo
Listing Photo
Listing Photo
Listing Photo
Listing Photo
Listing Photo
Listing Photo
Listing Photo
Listing Photo
Listing Photo
Listing Photo
Listing Photo
Listing Photo
Listing Photo
Listing Photo
Listing Photo
Listing Photo
Listing Photo
Listing Photo
Listing Photo
Listing Photo
Listing Photo

MLS #MFRFC314239 Listing courtesy of Berger Realty Group Inc provided by Stellar MLS.

Similar Listings

$434,000
645 Elk River
Ormond Beach
3BR/2BA
| Active
$440,000
15 Longfellow Circle
Ormond Beach
3BR/2BA
| Pending
$444,700
5 Canterbury Woods
Ormond Beach
3BR/2BA
| Active
$448,900
108 Via Roma
Ormond Beach
3BR/2BA
| Active



All listing information is deemed reliable but not guaranteed and should be independently verified through personal inspection by appropriate professionals. Listings displayed on this website may be subject to prior sale or removal from sale; availability of any listing should always be independent verified. Listing information is provided for consumer personal, non-commercial use, solely to identify potential properties for potential purchase; all other use is strictly prohibited and may violate relevant federal and state law. The source of the listing data is as follows: Stellar MLS (updated 4/30/26 8:51 PM) |

Listing Search



Translate Tool

Featured Listings
Sarasota Real Estate
$1,195,000
2 BED
2 BATH
Experience Exquisite living at Harbor House South, where every moment is framed by breathtaking 180-degree Southerly vie... Read More
St Petersburg Real Estate
$1,250,000
3 BED
2 BATH
Why wait to build or rehab when you can *Move Right In* this Beautiful Venetian Isles Waterfront Pool Home on the Point ... Read More
Gainesville Real Estate
$889,000
4 BED
3 BATH
Welcome to this meticulously maintained custom home that showcases the architectural detail and craftsmanship synonymous... Read More
Sarasota Real Estate
$1,399,900
4 BED
5 BATH
One or more photo(s) has been virtually staged. Experience elevated living in this gorgeous newer Kolter Chagall home lo... Read More
Sarasota Real Estate
$1,480,000
4 BED
3 BATH
Set in the enchanting, tree-canopied gated community of Bent Tree – The Woodlands, find Modern Elegance in this 4-bed, 3... Read More
St Petersburg Real Estate
$1,073,000
2 BED
2 BATH
One or more photo(s) has been virtually staged. Elevate your lifestyle at The Residences at 400 Central, a towering 46-s... Read More
St Petersburg Real Estate
$1,100,000
2 BED
2 BATH
A rare single-level penthouse in a boutique downtown building - offering the privacy of just 83 residences and none of t... Read More
Tampa Real Estate
$914,900
4 BED
3 BATH
Luxury corner-unit townhome in one of Tampa’s most sought-after neighborhoods! Ideally located just steps from Hyde Park... Read More
Winter Garden Real Estate
$819,990
4 BED
3 BATH
Under Construction. . Read More
Dunedin Real Estate
$1,200,000
3 BED
3 BATH
Priced 100k BELOW appraised value! Clean 4 point inspection! Seller motivated! Key West–inspired conch-style elegance me... Read More
Contact Sandra Pardo

407-990-2746

Wendy Morris LLC

Licensed in the State of Florida
BK 3146762
16797 Broadwater Avenue
Winter Garden, Florida 34787

Your privacy is our utmost concern. We will never sell your personal information. Privacy Policy
©2026 sandrapardohomes.com - all rights reserved. | Site Map