407-990-2746
Menu

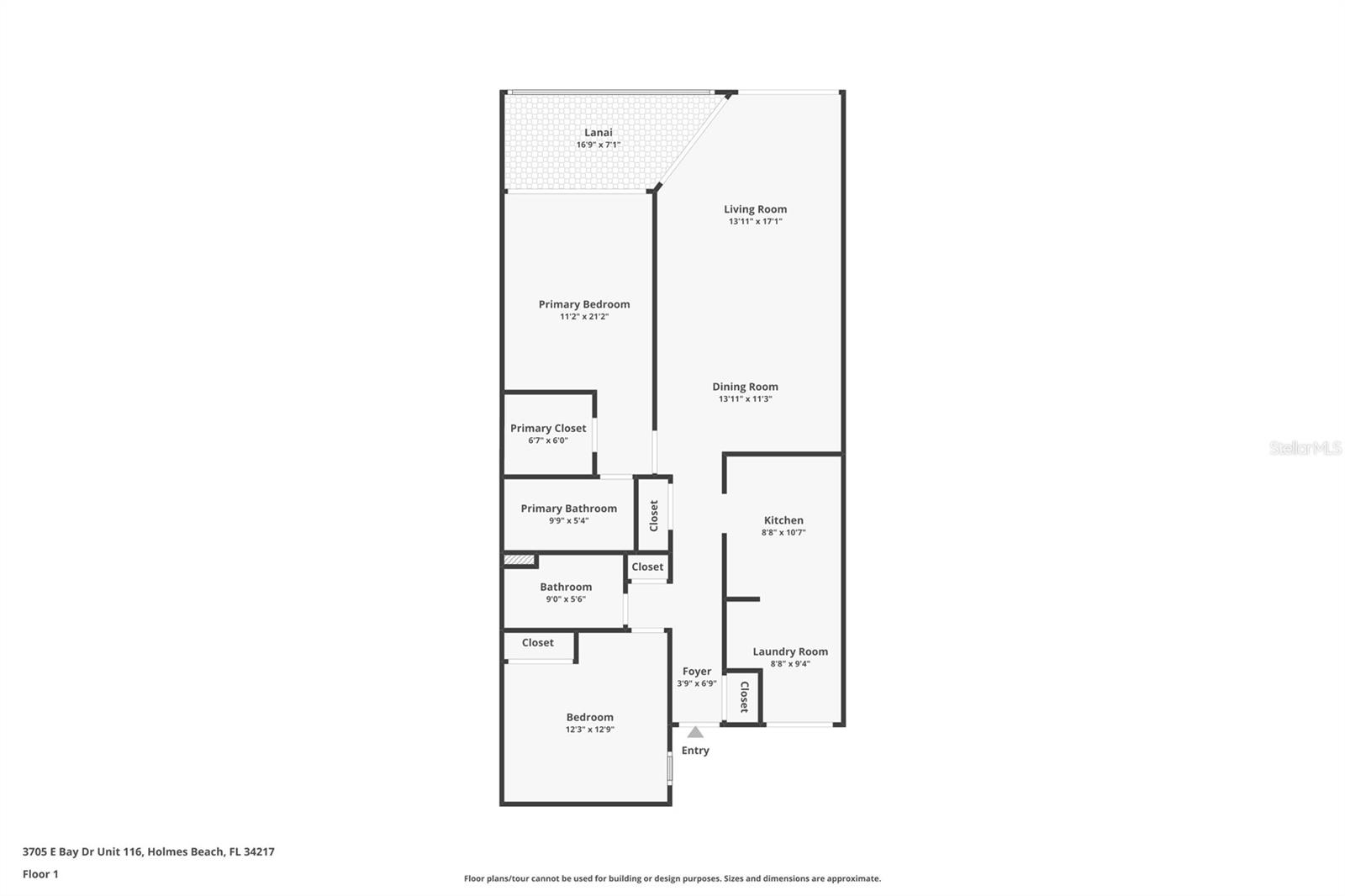
3705 E Bay Drive Unit: Unit: 212, Holmes Beach, FL

NEXT
PREV
$375,000

($327/sqft)

List Status: Active
3705 E Bay Drive
Holmes Beach, FL 34217


2 beds
2 baths
1146 living sqft
Top Features
  • View: Trees/Woods
  • Subdivision: Sunbow Bay Ph Iii
  • Built in  1980
  • Condominium
Description
Property Details
Additional Information
Additional Lease Restrictions
Confirm with association any additional lease restrictions.
Additional Parcels YN
false
Alternate Key Folio Num
7401413955
Appliances
Dishwasher, Disposal, Dryer, Electric Water Heater, Microwave, Range, Range Hood, Refrigerator, Washer
Approval Process
Application with association must be done and approved prior to renter occupancy
Association Amenities
Elevator(s), Pool, Storage, Tennis Court(s)
Association Approval Required YN
1
Association Email
kmorkus@resourcepropertymgmt.com
Association Fee Includes
Cable TV, Common Area Taxes, Pool, Escrow Reserves Fund, Maintenance Structure, Maintenance Grounds, Management, Private Road, Sewer, Trash, Water
Association URL
https://resourcepropertymgmt.com
Association YN
true
Attached Garage YN
false
Available For Lease YN
1
Bathrooms Total Integer
2
Building Area Source
Public Records
Building Area Total
1247
Building Area Total Srch SqM
115.85
Building Area Units
Square Feet
Building Elevator YN
1
Calculated List Price By Calculated SqFt
327.23
Carport Spaces
1
Carport YN
true
Community Features
Buyer Approval Required, Deed Restrictions, Pool, Tennis Court(s)
Condo Fees
1010
Condo Fees Term
Monthly
Condo Land Included YN
1
Construction Materials
Stucco
Cooling
Central Air
Country
US
Cumulative Days On Market
371
Current Price
375000.00
Direction Faces
North
Elementary School
Anna Maria Elementary
Exterior Features
Lighting, Storage
Fireplace YN
false
Flood Zone Code
AE
Flood Zone Date
2021-08-10
Flood Zone Panel
12081C0277F
Floor Number
2
Flooring
Carpet, Tile
Foundation Details
Slab
Furnished
Turnkey
Garage YN
false
Heating
Central
High School
Manatee High
Home Warranty YN
false
Interior Features
Ceiling Fans(s), Eat-in Kitchen, Living Room/Dining Room Combo
Internet Address Display YN
true
Internet Automated Valuation Display YN
true
Internet Consumer Comment YN
false
Internet Entire Listing Display YN
true
Laundry Features
In Kitchen
Lease Restrictions YN
1
Levels
One
List AOR
Sarasota - Manatee
Living Area Meters
106.47
Living Area Source
Public Records
Living Area Units
Square Feet
Lot Size Square Feet
10
Lot Size Square Meters
1
Middle Or Junior School
Martha B. King Middle
Minimum Lease
1 Month
Modification Timestamp
2025-12-16T03:10:08.989Z
Monthly Condo Fee Amount
1010
New Construction YN
false
Num Times per Year
12
Number Of Pets
1
Occupant Type
Vacant
Ownership
Condominium
Parcel Number
7401413955
Patio And Porch Features
Enclosed, Rear Porch
Pet Restrictions
Verify with management company
Pets Allowed
Breed Restrictions, Number Limit
Pool Private YN
false
Postal Code Plus 4
2089
Previous List Price
375001
Price Change Timestamp
2025-11-25T14:11:12.000Z
Public Remarks
Step into coastal living at its finest on Anna Maria Island! This beautifully furnished 2-bedroom, 2-bath condo offers a turnkey getaway just three blocks from the island’s iconic sugar-white shoreline. With its bright, open layout and inviting décor, this home is designed for effortless relaxation, whether you're searching for a full-time island haven, a seasonal retreat, or a strong investment opportunity. Outside your door, enjoy the best of island living with amenities that make every day feel like vacation: two resort-style pools, a fishing pier, tennis court, kayak launch with storage, under-building parking, and your own private storage closet for all things beach. Plus, peace of mind comes built-in with recent improvements including a new roof (2024), along with a newer AC and water heater (2023). Ideally located near charming boutiques and local dining favorites, this condo puts the true Anna Maria Island lifestyle within easy reach. Come experience your slice of paradise!
Public Survey Range
16
Public Survey Section
28
RATIO Current Price By Calculated SqFt
327.23
Realtor Info
As-Is, Docs Available, No Sign, Owner Motivated
Road Surface Type
Asphalt
Roof
Built-Up, Other, Tile
Room Count
6
SW Subdiv Community Name
Sunbow Bay
Security Features
Smoke Detector(s)
Senior Community YN
false
Sewer
Public Sewer
Showing Requirements
Appointment Only, Call Listing Agent
Spa Features
In Ground
Status Change Timestamp
2024-12-09T15:38:56.000Z
Stories Total
2
Tax Annual Amount
6106
Tax Book Number
11-&#
Tax Legal Description
UNIT 212 SUNBOW BAY PHASE III CONDO PI#74014.1395/5
Tax Lot
1
Tax Year
2023
Total Acreage
Non-Applicable
Total Annual Fees
12120.00
Total Monthly Fees
1010.00
Township
34
Universal Property Id
US-12081-N-7401413955-S-212
Unparsed Address
3705 E BAY DR #212
Utilities
BB/HS Internet Available, Cable Connected, Electricity Connected, Water Connected
Water Access
Bay/Harbor
Water Access YN
1
Water Source
Public
Waterfront YN
false
Window Features
Blinds
Zoning
R3
Neighborhood Map
Popup

Property Photos
Listing Photo
Listing Photo
Listing Photo
Listing Photo
Listing Photo
Listing Photo
Listing Photo
Listing Photo
Listing Photo
Listing Photo
Listing Photo
Listing Photo
Listing Photo
Listing Photo
Listing Photo
Listing Photo
Listing Photo
Listing Photo
Listing Photo
Listing Photo
Listing Photo
Listing Photo
Listing Photo
Listing Photo
Listing Photo
Listing Photo
Listing Photo
Listing Photo
Listing Photo
Listing Photo
Listing Photo
Listing Photo
Listing Photo
Listing Photo
Listing Photo
Listing Photo
Listing Photo
Listing Photo
Listing Photo
Listing Photo
Listing Photo
Listing Photo
Listing Photo
Listing Photo
Listing Photo
Listing Photo
Listing Photo
Listing Photo
Listing Photo
Listing Photo
Listing Photo
Listing Photo
Listing Photo
Listing Photo
Listing Photo
Listing Photo
Listing Photo
Listing Photo
Listing Photo
Listing Photo
Listing Photo
Listing Photo
Listing Photo
Listing Photo
Listing Photo
Listing Photo
Listing Photo
Listing Photo
Listing Photo
Listing Photo
Listing Photo
Listing Photo
Listing Photo
Listing Photo
Listing Photo
Listing Photo
Listing Photo
Listing Photo
Listing Photo
Listing Photo
Listing Photo
Listing Photo
Listing Photo
Listing Photo
Listing Photo
Listing Photo
Listing Photo
Listing Photo
Listing Photo
Listing Photo
Listing Photo
Listing Photo
Listing Photo
Listing Photo
Listing Photo
Listing Photo
Listing Photo
Listing Photo
Listing Photo
Listing Photo
Listing Photo
Listing Photo

MLS #MFRA4631686 Listing courtesy of Preferred Shore Llc provided by Stellar MLS.

Similar Listings

$399,000
6300 Flotilla Drive
Holmes Beach
2BR/2BA
| Active



All listing information is deemed reliable but not guaranteed and should be independently verified through personal inspection by appropriate professionals. Listings displayed on this website may be subject to prior sale or removal from sale; availability of any listing should always be independent verified. Listing information is provided for consumer personal, non-commercial use, solely to identify potential properties for potential purchase; all other use is strictly prohibited and may violate relevant federal and state law. The source of the listing data is as follows: Stellar MLS (updated 12/18/25 4:34 PM) |

Listing Search



Translate Tool

Featured Listings
Orlando Real Estate
$949,000
4 BED
3 BATH
Palm Coast Real Estate
$899,000
4 BED
3 BATH
St Petersburg Real Estate
$995,000
3 BED
2 BATH
St Petersburg Real Estate
$999,000
3 BED
2 BATH
Orlando Real Estate
$1,125,000
4 BED
3 BATH
Hutchinson Island Real Estate
$990,000
4 BED
3 BATH
Tierra Verde Real Estate
$1,249,000
4 BED
3 BATH
Kissimmee Real Estate
$1,200,000
2 BED
2 BATH
Zephyrhills Real Estate
$815,820
4 BED
3 BATH
Tampa Real Estate
$1,365,000
4 BED
3 BATH
Contact Sandra Pardo

407-990-2746

Wendy Morris LLC

Licensed in the State of Florida
BK 3146762
16797 Broadwater Avenue
Winter Garden, Florida 34787

Your privacy is our utmost concern. We will never sell your personal information. Privacy Policy
©2025 sandrapardohomes.com - all rights reserved. | Site Map