407-990-2746
Menu

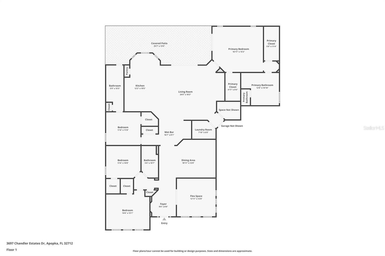
3697 Chandler Estates Drive, Apopka, FL

NEXT
PREV
$630,000

($221/sqft)

List Status: Pending
3697 Chandler Estates Drive
Apopka, FL 32712


4 beds
3 baths
2855 living sqft
Top Features
  • Subdivision: Chandler Estates
  • Built in  2013
  • Single Family Residence
Description
Under contract-accepting backup offers. One or more photo(s) has been virtually staged. Luxury Living on one of Chandler Estates’ Largest Lots! Welcome to this exceptional DR Horton built residence located in the highly sought-after Chandler Estates community, perfectly positioned on a rare .40-acre corner lot, one of the largest in the neighborhood. Offering just under 2,900 square feet of refined living space, this 4 bedroom, 3 bathroom home with a 2-car garage blends upscale finishes with resort-style outdoor living. Inside, the home showcases 5¼-inch baseboards, 18x18 tile laid in an elegant brick pattern throughout all wet areas and the family room, and rich wood flooring in both the flex room and the primary suite. The open family room is enhanced with surround sound speakers, LED recessed lighting, and ceiling fans with light kits, features thoughtfully included throughout all bedrooms and the flex room. The gourmet kitchen is designed to impress, featuring GE Profile stainless steel appliances, espresso cabinetry with crown molding, under and over cabinet lighting, a butler’s pantry with integrated wine rack, and seamless flow into the main living areas, ideal for entertaining. The primary suite is a true retreat, highlighted by adult-height vanities, a frameless 3/8” glass shower enclosure, and a luxurious jet tub in the spa-inspired bathroom. Step outside to your private oasis: a custom free-form pool with paver decking, pool lighting, two deck jets, and laminar water features, complemented by a concrete fire pit with cultured stone surround, all set within an expansive backyard offering endless possibilities for outdoor enjoyment and future enhancements. This is luxury, space, and lifestyle, beautifully combined in one of Chandler Estates’ most desirable homes.
Property Details
Additional Information
Additional Lease Restrictions
Buyer to verify.
Additional Parcels YN
false
Appliances
Dishwasher, Microwave, Range
Approval Process
Buyer to verify.
Association Approval Required YN
1
Association Fee
542.25
Association Fee Frequency
Semi-Annually
Association Fee Includes
Other
Association Fee Requirement
Required
Association YN
true
Attached Garage YN
true
Available For Lease YN
1
Bathrooms Total Integer
3
Building Area Source
Public Records
Building Area Total
3973
Building Area Total Srch SqM
369.10
Building Area Units
Square Feet
Calculated List Price By Calculated SqFt
220.67
Carport YN
false
Construction Materials
Stucco
Cooling
Central Air
Country
US
Cumulative Days On Market
46
Current Price
630000.00
Direction Faces
South
Elementary School
Zellwood Elem
Expected Closing Date
2026-05-15T00:00:00.000
Fencing
Vinyl
Fireplace YN
false
Flood Zone Code
X
Flood Zone Date
2021-09-24
Flood Zone Panel
12095C0125H
Flooring
Carpet, Hardwood, Tile
Foundation Details
Slab
Furnished
Unfurnished
Garage Spaces
2
Garage YN
true
Heating
Central
High School
Apopka High
Homestead YN
1
Interior Features
Ceiling Fans(s), Primary Bedroom Main Floor, Stone Counters
Internet Address Display YN
true
Internet Automated Valuation Display YN
true
Internet Consumer Comment YN
false
Internet Entire Listing Display YN
true
Laundry Features
Laundry Room
Lease Restrictions YN
1
Levels
One
List AOR
Orlando Regional
Living Area Meters
265.24
Living Area Source
Appraiser
Living Area Units
Square Feet
Lot Size Acres
0.4
Lot Size Square Feet
17465
Lot Size Square Meters
1623
Middle Or Junior School
Wolf Lake Middle
Minimum Lease
No Minimum
Modification Timestamp
2026-03-31T13:49:09.679Z
Monthly HOA Amount
90.38
New Construction YN
false
Occupant Type
Vacant
Other Equipment
Irrigation Equipment
Ownership
Fee Simple
Parcel Number
35-20-27-1253-00-890
Pets Allowed
Yes
Pool Private YN
true
Postal Code Plus 4
5852
Previous List Price
640000
Price Change Timestamp
2026-03-07T05:05:01.000Z
Public Survey Range
27
Public Survey Section
35
Purchase Contract Date
2026-03-28
RATIO Current Price By Calculated SqFt
220.67
Road Surface Type
Asphalt
Roof
Shingle
Room Count
3
Security Features
Security System Owned
Senior Community YN
false
Sewer
Public Sewer
Showing Requirements
Appointment Only, Call Listing Agent, Listing Agent Must Accompany, No Lockbox, ShowingTime
Status Change Timestamp
2026-03-31T13:47:22.000Z
Tax Annual Amount
5850.16
Tax Book Number
74/111
Tax Legal Description
CHANDLER ESTATES 74/111 LOT 89
Tax Lot
89
Tax Year
2025
Total Acreage
1/4 to less than 1/2
Total Annual Fees
1084.50
Total Monthly Fees
90.38
Township
20
Universal Property Id
US-12095-N-352027125300890-R-N
Unparsed Address
3697 CHANDLER ESTATES DR
Utilities
Electricity Available, Water Available
Water Source
Public
Waterfront YN
false
Zoning
RSF-1B
Neighborhood Map
Popup

Property Photos
Listing Photo
Listing Photo
Listing Photo
Listing Photo
Listing Photo
Listing Photo
Listing Photo
Listing Photo
Listing Photo
Listing Photo
Listing Photo
Listing Photo
Listing Photo
Listing Photo
Listing Photo
Listing Photo
Listing Photo
Listing Photo
Listing Photo
Listing Photo
Listing Photo
Listing Photo
Listing Photo
Listing Photo
Listing Photo
Listing Photo
Listing Photo
Listing Photo
Listing Photo
Listing Photo
Listing Photo
Listing Photo
Listing Photo
Listing Photo
Listing Photo
Listing Photo
Listing Photo
Listing Photo
Listing Photo
Listing Photo
Listing Photo
Listing Photo
Listing Photo
Listing Photo
Listing Photo
Listing Photo
Listing Photo
Listing Photo
Listing Photo
Listing Photo
Listing Photo
Listing Photo
Listing Photo
Listing Photo
Listing Photo
Listing Photo
Listing Photo
Listing Photo
Listing Photo
Listing Photo
Listing Photo
Listing Photo
Listing Photo
Listing Photo
Listing Photo
Listing Photo
Listing Photo
Listing Photo
Listing Photo
Listing Photo
Listing Photo
Listing Photo
Listing Photo
Listing Photo
Listing Photo
Listing Photo
Listing Photo
Listing Photo
Listing Photo
Listing Photo
Listing Photo
Listing Photo
Listing Photo
Listing Photo
Listing Photo
Listing Photo
Listing Photo
Listing Photo
Listing Photo
Listing Photo
Listing Photo
Listing Photo
Listing Photo
Listing Photo
Listing Photo
Listing Photo
Listing Photo
Listing Photo
Listing Photo
Listing Photo
Listing Photo
Listing Photo
Listing Photo
Listing Photo
Listing Photo
Listing Photo
Listing Photo
Listing Photo
Listing Photo
Listing Photo
Listing Photo
Listing Photo
Listing Photo
Listing Photo
Listing Photo
Listing Photo
Listing Photo
Listing Photo
Listing Photo
Listing Photo
Listing Photo
Listing Photo
Listing Photo
Listing Photo
Listing Photo
Listing Photo
Listing Photo
Listing Photo
Listing Photo
Listing Photo
Listing Photo
Listing Photo

MLS #MFRO6375446 Listing courtesy of Serhant provided by Stellar MLS.

Similar Listings

$572,000
3652 Rochelle Lane
Apopka
4BR/3BA
| Active
$574,500
3987 Meandering Bay Dr
Apopka
4BR/3BA
| Active
$574,900
1016 Parkside Pointe Boulevard
Apopka
4BR/3BA
| Active
$575,000
873 Gulf Land Drive
Apopka
4BR/3BA
| Active



All listing information is deemed reliable but not guaranteed and should be independently verified through personal inspection by appropriate professionals. Listings displayed on this website may be subject to prior sale or removal from sale; availability of any listing should always be independent verified. Listing information is provided for consumer personal, non-commercial use, solely to identify potential properties for potential purchase; all other use is strictly prohibited and may violate relevant federal and state law. The source of the listing data is as follows: Stellar MLS (updated 4/2/26 8:54 AM) |

Listing Search



Translate Tool

Featured Listings
Sarasota Real Estate
$950,000
2 BED
2 BATH
Positioned in a highly sought-after area, 1116 Yale Avenue presents a rare opportunity to create something truly special... Read More
Winter Park Real Estate
$845,000
4 BED
3 BATH
One or more photo(s) has been virtually staged. This luxurious Modern Style home epitomizes maintenance-free living, fea... Read More
Wimauma Real Estate
$825,000
3 BED
2 BATH
Welcome to a truly one of a kind estate in the highly sought-after Sundance community where privacy, resilience, and nat... Read More
Parrish Real Estate
$1,000,000
5 BED
4 BATH
Under contract-accepting backup offers. Experience refined Florida living in this extensively upgraded 2022 Neal Communi... Read More
Apopka Real Estate
$1,100,000
4 BED
3 BATH
One or more photo(s) has been virtually staged. This Hacienda is located on the 14th hole within the gated community of ... Read More
Odessa Real Estate
$950,000
4 BED
3 BATH
Rare single-story pool home crafted by local luxury builder Larson located in the prestigious guard-gated community of T... Read More
Bradenton Real Estate
$1,150,000
4 BED
3 BATH
Welcome to refined Florida living in the highly sought-after Waterlefe Golf & River Club, a premier gated community offe... Read More
Punta Gorda Real Estate
$1,249,000
3 BED
2 BATH
Waterfront living doesn’t get more elevated than this. Nestled in the heart of Punta Gorda Isles, this stunning canal fr... Read More
Crystal Beach Real Estate
$899,000
3 BED
2 BATH
ATTENTION QUALIFIED BUYERS-SELLER WILL ASSIST WITH A RATE BUY DOWN SO YOU CAN GET A RATE AS LOW AS 4.375! GET UP TO $20,... Read More
Venice Real Estate
$1,390,000
2 BED
3 BATH
ISLAND OF VENICE! Location, Location, Location This lovely home is located across the street from beautiful West Blalock... Read More
Contact Sandra Pardo

407-990-2746

Wendy Morris LLC

Licensed in the State of Florida
BK 3146762
16797 Broadwater Avenue
Winter Garden, Florida 34787

Your privacy is our utmost concern. We will never sell your personal information. Privacy Policy
©2026 sandrapardohomes.com - all rights reserved. | Site Map