407-990-2746
Menu

3425 S Atlantic Avenue Unit: Unit: 1503, Daytona Beach, FL

NEXT
PREV
$749,900

($315/sqft)

List Status: Active
3425 S Atlantic Avenue
Daytona Beach, FL 32118


3 beds
3 baths
2377 living sqft
Top Features
  • Frontage: Gulf/Ocean
  • View: Water, Pool, City
  • Subdivision: Towers 10 Condo
  • Built in  2001
  • Condominium
Description
Property Details
Additional Information
Additional Lease Restrictions
Check with condo
Additional Parcels YN
false
Additional Rooms
Family Room, Great Room, Storage Rooms
Alternate Key Folio Num
6030103
Appliances
Dishwasher, Disposal, Electric Water Heater, Microwave, Range, Refrigerator, Washer
Association Amenities
Elevator(s), Fitness Center, Gated, Pool, Recreation Facilities, Storage
Association Fee
3564.36
Association Fee Frequency
Quarterly
Association Fee Includes
Pool, Insurance, Maintenance Structure, Maintenance Grounds, Management, Pest Control, Recreational Facilities, Security, Sewer, Trash, Water
Association Fee Requirement
Required
Association YN
true
Attached Garage YN
true
Available For Lease YN
1
Bathrooms Total Integer
3
Builder Name
Tower Ten
Building Area Source
Public Records
Building Area Total
2377
Building Area Total Srch SqM
220.83
Building Area Units
Square Feet
Building Elevator YN
1
Calculated List Price By Calculated SqFt
315.48
Carport YN
false
Community Features
Association Recreation - Owned, Community Mailbox, Fitness Center, Pool, Sidewalks, Street Lights
Construction Materials
Concrete
Cooling
Central Air
Country
US
Cumulative Days On Market
6
Current Price
749900.00
Direction Faces
West
Exterior Features
Balcony, Hurricane Shutters, Outdoor Grill, Sidewalk, Storage
Fireplace YN
false
Flood Zone Code
X
Flood Zone Date
2017-09-29
Flood Zone Panel
12127C0388J
Floor Number
15+
Flooring
Carpet, Tile
Foundation Details
Slab, Stem Wall
Furnished
Furnished
Garage Spaces
1
Garage YN
true
Heating
Central
Interior Features
Ceiling Fans(s), Elevator, Open Floorplan, Primary Bedroom Main Floor, Split Bedroom, Thermostat, Walk-In Closet(s), Window Treatments
Internet Address Display YN
true
Internet Automated Valuation Display YN
false
Internet Consumer Comment YN
false
Internet Entire Listing Display YN
true
Laundry Features
Electric Dryer Hookup, Inside, Laundry Room, Washer Hookup
Lease Restrictions YN
1
Levels
One
List AOR
Flagler
Living Area Meters
220.83
Living Area Source
Public Records
Living Area Units
Square Feet
Lot Features
Near Public Transit, Sidewalk, Paved
Lot Size Acres
2.21
Lot Size Square Feet
96146
Lot Size Square Meters
8932
Minimum Lease
2 Weeks
Modification Timestamp
2025-10-10T09:10:09.630Z
Monthly HOA Amount
1188.12
New Construction YN
false
Number Of Pets
2
Occupant Type
Vacant
Ownership
Fee Simple
Parcel Number
5335-19-00-1503
Patio And Porch Features
Covered, Rear Porch
Pet Size
Small (16-35 Lbs.)
Pets Allowed
Cats OK, Dogs OK, Number Limit, Size Limit
Pool Private YN
true
Postal Code Plus 4
6368
Property Description
High Rise
Public Remarks
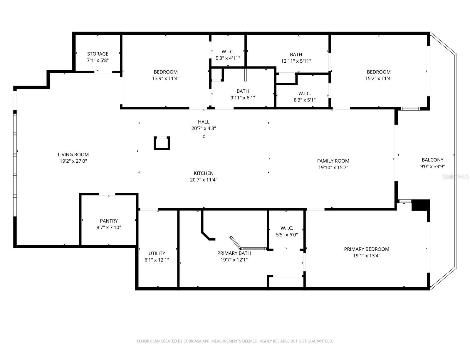
Welcome to the 15th floor of the highly sought-after Towers Ten Condominiums, where breathtaking views and coastal living meet. This 3-bedroom, 3-bathroom residence offers expansive ocean views to the east and sweeping city views to the west, capturing both sunrise and sunset in stunning fashion. Step inside and you’ll find a light-filled, open design ideal for both relaxation and entertaining. Windows and sliding glass doors create a seamless connection between indoor living and the Atlantic shoreline, while electronic storm shutters provide convenience, safety, and peace of mind. The generously sized kitchen and storage rooms offers ample storage, breakfast bar seating, and plenty of room for culinary creativity. Each of the three bedrooms is designed with comfort in mind—perfect for family, guests, or a private home office. The primary suite boasts direct ocean views, balcony access, dual vanities, soaking tub, and separate shower for a true spa-like retreat. Resort-style amenities await just outside your door, sparkling oceanfront heated pool and spa, expansive sun deck and grilling areas, fitness center, billiards, library, and social clubroom with bar. Secure building entry and underground assigned parking Pet-friendly community Perfectly positioned in Daytona Beach Shores, Towers Ten offers convenient access to dining, shopping, golf, and entertainment—all while being steps from the sandy shoreline. Whether you’re seeking a full-time residence, a vacation escape, or an investment opportunity, this condo delivers it all. Experience the elevated coastal lifestyle you deserve—schedule your private tour today. Square footage received from tax rolls. All information is intended to be accurate but cannot be guaranteed.
Public Survey Range
33
Public Survey Section
35
RATIO Current Price By Calculated SqFt
315.48
Realtor Info
Docs Available, Floor Plan Available, Lease Restrictions, No Sign, Owner Motivated, Owner Will Assist with closing costs
Road Surface Type
Paved
Roof
Built-Up
Room Count
8
Security Features
Closed Circuit Camera(s), Fire Alarm, Fire Sprinkler System, Key Card Entry, Secured Garage/Parking, Security Gate, Smoke Detector(s)
Senior Community YN
false
Sewer
Public Sewer
Showing Requirements
Sentri Lock Box, Appointment Only, Call Before Showing, Call Listing Agent, Gate Code Required, Lock Box Electronic, ShowingTime
Status Change Timestamp
2025-10-10T09:09:31.000Z
Stories Total
20
Tax Annual Amount
9157
Tax Block
00
Tax Book Number
19
Tax Legal Description
UNIT 1503 TOWERS TEN CONDOMINIUM PER OR 4767 PG 0425
Tax Lot
1503
Tax Year
2024
Total Annual Fees
14257.44
Total Monthly Fees
1188.12
Township
15
Universal Property Id
US-12127-N-533519001503-S-1503
Unparsed Address
3425 S ATLANTIC AVE #1503
Utilities
BB/HS Internet Available, Cable Connected, Electricity Connected, Public, Sewer Connected, Water Connected
Water Source
Public
Water View
Beach, Gulf/Ocean - Full
Water View YN
1
Waterfront YN
true
Window Features
Shutters, Storm Window(s), Window Treatments
Zoning
CONDO
Neighborhood Map
Popup

Property Photos
Listing Photo
Listing Photo
Listing Photo
Listing Photo
Listing Photo
Listing Photo
Listing Photo
Listing Photo
Listing Photo
Listing Photo
Listing Photo
Listing Photo
Listing Photo
Listing Photo
Listing Photo
Listing Photo
Listing Photo
Listing Photo
Listing Photo
Listing Photo
Listing Photo
Listing Photo
Listing Photo
Listing Photo
Listing Photo
Listing Photo
Listing Photo
Listing Photo
Listing Photo
Listing Photo
Listing Photo
Listing Photo
Listing Photo
Listing Photo
Listing Photo
Listing Photo
Listing Photo
Listing Photo
Listing Photo
Listing Photo
Listing Photo
Listing Photo
Listing Photo
Listing Photo
Listing Photo
Listing Photo
Listing Photo
Listing Photo
Listing Photo
Listing Photo
Listing Photo
Listing Photo
Listing Photo
Listing Photo
Listing Photo
Listing Photo
Listing Photo
Listing Photo
Listing Photo
Listing Photo
Listing Photo
Listing Photo
Listing Photo
Listing Photo
Listing Photo
Listing Photo
Listing Photo
Listing Photo
Listing Photo
Listing Photo
Listing Photo
Listing Photo
Listing Photo
Listing Photo
Listing Photo
Listing Photo
Listing Photo
Listing Photo
Listing Photo
Listing Photo
Listing Photo
Listing Photo
Listing Photo
Listing Photo
Listing Photo
Listing Photo
Listing Photo
Listing Photo
Listing Photo
Listing Photo
Listing Photo
Listing Photo
Listing Photo
Listing Photo
Listing Photo
Listing Photo
Listing Photo
Listing Photo

MLS #MFRFC313049 Listing courtesy of Nexthome Endless Summer provided by Stellar MLS.

Similar Listings

$675,000
1010 Big Tree Road
Daytona Beach
3BR/3BA
| Pending
$679,500
2900 S Peninsula Drive
Daytona Beach
3BR/3BA
| Active
$690,000
3311 S Atlantic Avenue
Daytona Beach
3BR/3BA
| Active
$699,000
3799 S Atlantic Avenue
Daytona Beach
3BR/3BA
| Active



All listing information is deemed reliable but not guaranteed and should be independently verified through personal inspection by appropriate professionals. Listings displayed on this website may be subject to prior sale or removal from sale; availability of any listing should always be independent verified. Listing information is provided for consumer personal, non-commercial use, solely to identify potential properties for potential purchase; all other use is strictly prohibited and may violate relevant federal and state law. The source of the listing data is as follows: Stellar MLS (updated 2/6/26 5:56 PM) |

Listing Search



Translate Tool

Featured Listings
Wesley Chapel Real Estate
$1,199,900
5 BED
4 BATH
Orlando Real Estate
$1,265,000
5 BED
4 BATH
Clearwater Real Estate
$1,200,000
4 BED
3 BATH
Placida Real Estate
$900,000
4 BED
2 BATH
Bradenton Real Estate
$1,195,000
3 BED
2 BATH
Seminole Real Estate
$998,000
2 BED
2 BATH
Windermere Real Estate
$1,050,000
4 BED
3 BATH
Sarasota Real Estate
$969,000
5 BED
3 BATH
Gainesville Real Estate
$999,900
5 BED
3 BATH
St Petersburg Real Estate
$995,000
2 BED
2 BATH
Contact Sandra Pardo

407-990-2746

Wendy Morris LLC

Licensed in the State of Florida
BK 3146762
16797 Broadwater Avenue
Winter Garden, Florida 34787

Your privacy is our utmost concern. We will never sell your personal information. Privacy Policy
©2026 sandrapardohomes.com - all rights reserved. | Site Map